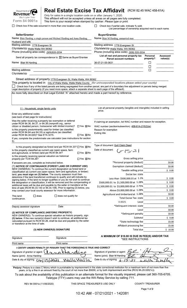
Property
Account |
| Property ID: | 7927 | Abbreviated Legal Description: | ENNIS ANNEX TAX 20 AND N 88.5' OF E 11.34' OF LOT 1 BLK 6 |
| Parcel Number: | 360721550631 | Agent Code: | |
| Type: | Real | | |
| Tax Area: | 1 - OL-140-F | Land Use Code | 11 |
| Open Space: | N | DFL | N |
| Historic Property: | N | Remodel Property: | N |
| Multi-Family Redevelopment: | N | | |
| Township: | 7 | Section: | 21 |
| Range: | 36 |
Location |
| Address: | 1778 EVERGREEN ST WA 99362 | Mapsco: | |
| Neighborhood: | A-SFR | Map ID: | |
| Neighborhood CD: | 513011 |
Owner |
| Name: | HARDING BLAIR M | Owner ID: | 69646 |
| Mailing Address: | 1778 EVERGREEN ST WALLA WALLA, WA 99362 | % Ownership: | 100.0000000000% |
| | | Exemptions: | |
Taxes and Assessment Details
Property Tax Information as of
02/21/2026
Click on "Statement Details" to expand or collapse a tax statement.
* Please enter a valid date ** Please enter a valid date *
Statement Details |
| | TOTAL: | $0.00 | $0.00 | $0.00 | $0.00 | $0.00 | $0.00 |
|
| | $0.00 | $0.00 | $0.00 | $0.00 | $0.00 | $0.00 |
Values
| (+) Improvement Homesite Value: | + | $0 | |
| (+) Improvement Non-Homesite Value: | + | $200,660 | |
| (+) Land Homesite Value: | + | $0 | |
| (+) Land Non-Homesite Value: | + | $65,910 | |
| (+) Curr Use (HS): | + | $0 | $0 |
| (+) Curr Use (NHS): | + | $0 | $0 |
| | | -------------------------- | |
| (=) Market Value: | = | $266,570 | |
| (–) Productivity Loss: | – | $0 | |
| | | -------------------------- | |
| (=) Subtotal: | = | $266,570 | |
| (+) Senior Appraised Value: | + | $0 | |
| (+) Non-Senior Appraised Value: | + | $266,570 | |
| | | -------------------------- | |
| (=) Total Appraised Value: | = | $266,570 | |
| (–) Senior Exemption Loss: | – | $0 | |
| (–) Exemption Loss: | – | $0 | |
| | | -------------------------- | |
| (=) Taxable Value: | = | $266,570 | |
Taxing Jurisdiction
| Owner: | HARDING BLAIR M | | |
| % Ownership: | 100.0000000000% | | |
| Total Value: | $266,570 | | |
| Tax Area: | 1 - OL-140-F |
| CERFD | CURRENT EXPENSE REFUND 010 | 0.0000000000 | $266,570 | $266,570 | $0.00 | | |
| CURREXP | CURRENT EXPENSE 010 | 1.0175366760 | $266,570 | $266,570 | $271.24 | | |
| HUMNSERV | HUMAN SERVICES 119 | 0.0250000000 | $266,570 | $266,570 | $6.66 | | |
| SLDREL | SOLDIERS RELIEF 121 | 0.0155990005 | $266,570 | $266,570 | $4.16 | | |
| EMERGSER | EMS 147 | 0.3792580840 | $266,570 | $266,570 | $101.10 | | |
| EMSRFD | EMS REFUND 147 | 0.0000000000 | $266,570 | $266,570 | $0.00 | | |
| PORTRFD | PORT REFUND 640 | 0.0000000000 | $266,570 | $266,570 | $0.00 | | |
| PORTWWGEN | PORT OF WW 640 | 0.2460186015 | $266,570 | $266,570 | $65.58 | | |
| SD140BOND | SD #140 BOND 764 | 0.8342371393 | $266,570 | $266,570 | $222.38 | | |
| SD140GEN | SD #140 GENERAL 760 | 2.0646500647 | $266,570 | $266,570 | $550.37 | | |
| ST2 | STATE SCHOOL PART 2 600 | 0.8131451643 | $266,570 | $266,570 | $216.76 | | |
| STATESCHL | STATE SCHOOL 600 | 1.5158548041 | $266,570 | $266,570 | $404.08 | | |
| STREFUND | STATE REFUND LEVY 603 | 0.0000000000 | $266,570 | $266,570 | $0.00 | | |
| CWWBOND | C OF WW BOND 643 | 0.2760494372 | $266,570 | $266,570 | $73.59 | | |
| CWWGEN | CITY OF WW 631 | 1.6100204973 | $266,570 | $266,570 | $429.18 | | |
| CWWRFD | CITY OF WALLA WALLA REFUND 631 | 0.0000000000 | $266,570 | $266,570 | $0.00 | | |
| | Total Tax Rate: | 8.7973694689 | | | | | |
| | | | | Taxes w/Current Exemptions: | $2,345.10 | | |
| | | | | Taxes w/o Exemptions: | $2,345.10 | | |
Improvement / Building
| Improvement #1: | RESIDENTIAL | State Code: | 11 | 1218.0 sqft | Value: | $200,660 |
| Exterior Wall: | STUCCO | Heating/Cooling: | FORCED AIR | | Number of Bathrooms: | 1 | Number of Bedrooms: | 3 | | Plumbing: | 8 | Roof Covering: | COMP SHINGLE |
|
| | Type | Description | Class CD | Sub Class CD | Year Built | Area |
| | MA | Main Area | 1 | 35 | 1956 | 1218.0 |
| | SI1 | SITE IMPROVEMENT | 1 | 35 | 0 | 1.5 |
| | ATG | Attached Garage | 1 | 35 | 1956 | 330.0 |
| | RPO | OPEN PORCH W/ROOF | 1 | 35 | 1956 | 60.0 |
| | S1F | Single One Story Fireplace | 1 | 35 | 1956 | 1.0 |
Sketch
Property Image
Land
| 1 | RES 1 | Converted: Residential | 0.3812 | 16603.00 | 0.00 | 0.00 | 1.00 | $65,910 | $0 |
Roll Value History
| 2026 | N/A | N/A | N/A | N/A | N/A |
| 2025 | $191,620 | $104,930 | $0 | $296,550 | $296,550 |
| 2024 | $159,680 | $104,930 | $0 | $264,610 | $264,610 |
| 2023 | $200,660 | $65,910 | $0 | $266,570 | $266,570 |
| 2022 | $191,100 | $65,910 | $0 | $257,010 | $257,010 |
| 2021 | $152,880 | $65,910 | $0 | $218,790 | $218,790 |
| 2020 | $117,600 | $65,910 | $0 | $183,510 | $183,510 |
| 2019 | $117,600 | $65,910 | $0 | $183,510 | $183,510 |
| 2018 | $117,600 | $65,910 | $0 | $183,510 | $183,510 |
| 2017 | $120,120 | $45,000 | $0 | $165,120 | $165,120 |
| 2016 | $109,200 | $45,000 | $0 | $154,200 | $154,200 |
| 2015 | $109,200 | $45,000 | $0 | $154,200 | $154,200 |
| 2014 | $104,000 | $45,000 | $0 | $149,000 | $149,000 |
| 2013 | $104,000 | $45,000 | $0 | $149,000 | $149,000 |
| 2012 | $112,600 | $45,000 | $0 | $0 | $0 |
| 2011 | $112,600 | $45,000 | $0 | $0 | $0 |
| 2010 | $105,100 | $45,000 | $0 | $0 | $0 |
| 2009 | $121,800 | $45,000 | $0 | $0 | $0 |
| 2008 | $83,300 | $45,000 | $0 | $0 | $0 |
| 2007 | $83,300 | $45,000 | $0 | $0 | $0 |
Deed and Sales History
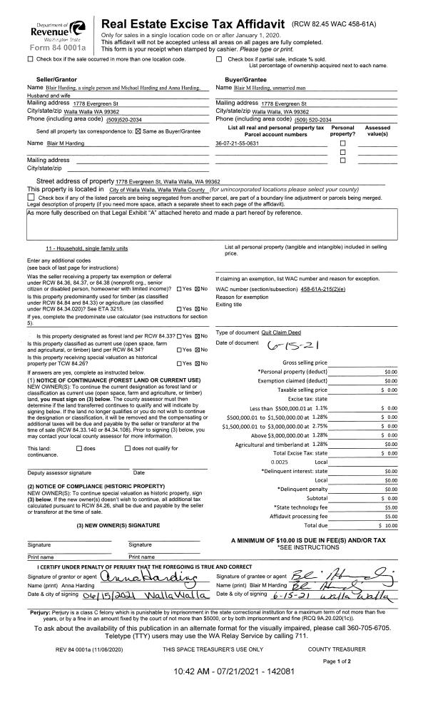
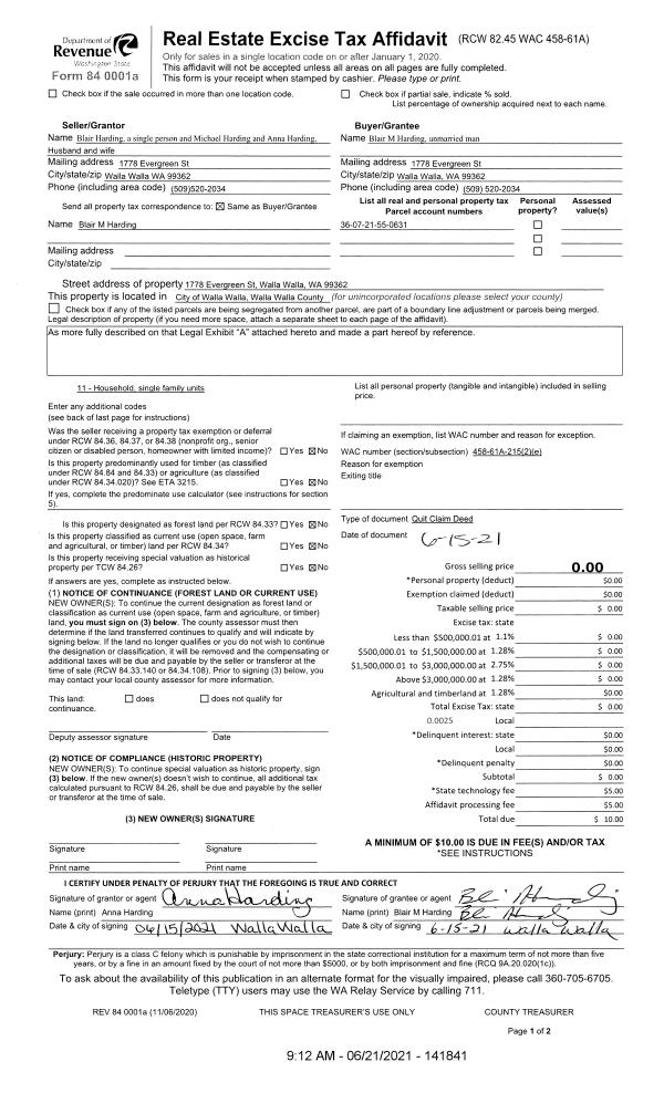
| 1 | 06/15/2021 | QCD | QUIT CLAIM DEED | HARDING BLAIR | HARDING BLAIR M | | | $0.00 | 142081 | 2021-08854 |
| 2 | 06/15/2021 | QCD | QUIT CLAIM DEED | HARDING BLAIR | HARDING BLAIR M | | | $0.00 | 141841 | 2021-07482 |
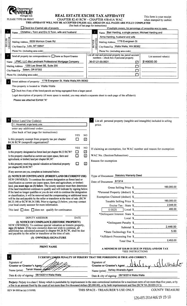
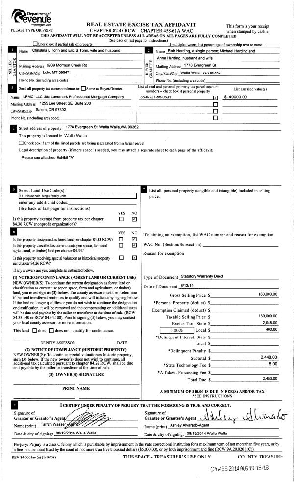
| 3 | 08/19/2014 | SWD | STATUTORY WARRANTY DEED | TONN ERIC S & CHRISTINA L | HARDING BLAIR | | | $160,000.00 | 126485 | 2014-06007 |
| 4 | 06/16/2003 | WARRANTY D | WARRANTY DEED | BURKETT, JOHN E & LORI L | TONN, ERIC S & CHRISTINA L | | | $109,000.00 | 102344 | 2003-08918 |
| 5 | 09/30/1993 | WARRANTY D | WARRANTY DEED | | | | | $72,900.00 | 80150 | 2119-310153 |
Payout Agreement
| No payout information available.. |