Property
Account |
| Property ID: | 7893 | Abbreviated Legal Description: | ENNIS ANNEX TAX 10 LOT 1 BLK 5 |
| Parcel Number: | 360721550514 | Agent Code: | |
| Type: | Real | | |
| Tax Area: | 1 - OL-140-F | Land Use Code | 11 |
| Open Space: | N | DFL | N |
| Historic Property: | N | Remodel Property: | N |
| Multi-Family Redevelopment: | N | | |
| Township: | 7 | Section: | 21 |
| Range: | 36 |
Location |
| Address: | 123 N ROOSEVELT ST WA 99362 | Mapsco: | |
| Neighborhood: | A-SFR | Map ID: | |
| Neighborhood CD: | 513011 |
Owner |
| Name: | GRAFFIS ZACHARY T | Owner ID: | 61360 |
| Mailing Address: | BRITTANY M CULVER 123 N ROOSEVELT ST WALLA WALLA, WA 99362 | % Ownership: | 100.0000000000% |
| | | Exemptions: | |
Taxes and Assessment Details
Values
| (+) Improvement Homesite Value: | + | $0 | |
| (+) Improvement Non-Homesite Value: | + | $283,900 | |
| (+) Land Homesite Value: | + | $0 | |
| (+) Land Non-Homesite Value: | + | $35,750 | |
| (+) Curr Use (HS): | + | $0 | $0 |
| (+) Curr Use (NHS): | + | $0 | $0 |
| | | -------------------------- | |
| (=) Market Value: | = | $319,650 | |
| (–) Productivity Loss: | – | $0 | |
| | | -------------------------- | |
| (=) Subtotal: | = | $319,650 | |
| (+) Senior Appraised Value: | + | $0 | |
| (+) Non-Senior Appraised Value: | + | $319,650 | |
| | | -------------------------- | |
| (=) Total Appraised Value: | = | $319,650 | |
| (–) Senior Exemption Loss: | – | $0 | |
| (–) Exemption Loss: | – | $0 | |
| | | -------------------------- | |
| (=) Taxable Value: | = | $319,650 | |
Taxing Jurisdiction
| Owner: | GRAFFIS ZACHARY T | | |
| % Ownership: | 100.0000000000% | | |
| Total Value: | $319,650 | | |
| Tax Area: | 1 - OL-140-F |
| CERFD | CURRENT EXPENSE REFUND 010 | 0.0000000000 | $319,650 | $319,650 | $0.00 | | |
| CURREXP | CURRENT EXPENSE 010 | 1.0175366760 | $319,650 | $319,650 | $325.26 | | |
| HUMNSERV | HUMAN SERVICES 119 | 0.0250000000 | $319,650 | $319,650 | $7.99 | | |
| SLDREL | SOLDIERS RELIEF 121 | 0.0155990005 | $319,650 | $319,650 | $4.99 | | |
| EMERGSER | EMS 147 | 0.3792580840 | $319,650 | $319,650 | $121.23 | | |
| EMSRFD | EMS REFUND 147 | 0.0000000000 | $319,650 | $319,650 | $0.00 | | |
| PORTRFD | PORT REFUND 640 | 0.0000000000 | $319,650 | $319,650 | $0.00 | | |
| PORTWWGEN | PORT OF WW 640 | 0.2460186015 | $319,650 | $319,650 | $78.64 | | |
| SD140BOND | SD #140 BOND 764 | 0.8342371393 | $319,650 | $319,650 | $266.66 | | |
| SD140GEN | SD #140 GENERAL 760 | 2.0646500647 | $319,650 | $319,650 | $659.97 | | |
| ST2 | STATE SCHOOL PART 2 600 | 0.8131451643 | $319,650 | $319,650 | $259.92 | | |
| STATESCHL | STATE SCHOOL 600 | 1.5158548041 | $319,650 | $319,650 | $484.54 | | |
| STREFUND | STATE REFUND LEVY 603 | 0.0000000000 | $319,650 | $319,650 | $0.00 | | |
| CWWBOND | C OF WW BOND 643 | 0.2760494372 | $319,650 | $319,650 | $88.24 | | |
| CWWGEN | CITY OF WW 631 | 1.6100204973 | $319,650 | $319,650 | $514.64 | | |
| CWWRFD | CITY OF WALLA WALLA REFUND 631 | 0.0000000000 | $319,650 | $319,650 | $0.00 | | |
| | Total Tax Rate: | 8.7973694689 | | | | | |
| | | | | Taxes w/Current Exemptions: | $2,812.08 | | |
| | | | | Taxes w/o Exemptions: | $2,812.08 | | |
Improvement / Building
| Improvement #1: | RESIDENTIAL | State Code: | 11 | 987.0 sqft | Value: | $283,900 |
| Exterior Wall: | VINYL | Heating/Cooling: | WARM & COOLED AIR | | Number of Bathrooms: | 2 | Number of Bedrooms: | 2 | | Plumbing: | 10 | Roof Covering: | COMP SHINGLE |
|
| | Type | Description | Class CD | Sub Class CD | Year Built | Area |
| | MA | Main Area | 1 | 30 | 1949 | 987.0 |
| | SI1 | SITE IMPROVEMENT | 1 | 30 | 1949 | 1.5 |
| | BASE | BASEMENT | 1 | 30 | 1949 | 987.0 |
| | BPF | BASEMENT -PARTITIONED FINISH | 1 | 30 | 1949 | 230.0 |
| | DTG | Detached Garage | 1 | 30 | 1949 | 360.0 |
| | OPS | OPEN PORCH W/STEPS | 1 | 30 | 1949 | 40.0 |
| | WOD | Wood Deck | 1 | 30 | 1949 | 64.0 |
Sketch
Property Image
Land
| 1 | RES 1 | Converted: Residential | 0.1313 | 5720.00 | 0.00 | 0.00 | 1.00 | $35,750 | $0 |
Roll Value History
| 2026 | N/A | N/A | N/A | N/A | N/A |
| 2025 | $255,110 | $57,200 | $0 | $312,310 | $312,310 |
| 2024 | $255,110 | $57,200 | $0 | $312,310 | $312,310 |
| 2023 | $283,900 | $35,750 | $0 | $319,650 | $319,650 |
| 2022 | $270,380 | $35,750 | $0 | $306,130 | $306,130 |
| 2021 | $207,990 | $35,750 | $0 | $243,740 | $243,740 |
| 2020 | $143,440 | $35,750 | $0 | $179,190 | $179,190 |
| 2019 | $143,440 | $35,750 | $0 | $179,190 | $179,190 |
| 2018 | $130,400 | $35,750 | $0 | $166,150 | $166,150 |
| 2017 | $142,590 | $22,900 | $0 | $165,490 | $165,490 |
| 2016 | $129,630 | $22,900 | $0 | $152,530 | $152,530 |
| 2015 | $129,630 | $22,900 | $0 | $152,530 | $152,530 |
| 2014 | $103,700 | $22,900 | $0 | $126,600 | $126,600 |
| 2013 | $103,700 | $22,900 | $0 | $126,600 | $126,600 |
| 2012 | $110,100 | $22,900 | $0 | $0 | $0 |
| 2011 | $110,100 | $22,900 | $0 | $0 | $0 |
| 2010 | $99,900 | $22,900 | $0 | $0 | $0 |
| 2009 | $113,500 | $22,900 | $0 | $0 | $0 |
| 2008 | $90,800 | $22,900 | $0 | $0 | $0 |
| 2007 | $90,800 | $22,900 | $0 | $0 | $0 |
Deed and Sales History
| 1 | 07/20/2017 | SWD | STATUTORY WARRANTY DEED | VAN BORSTEL AMY | GRAFFIS ZACHARY T | | | $170,000.00 | 132810 | 2017-05553 |
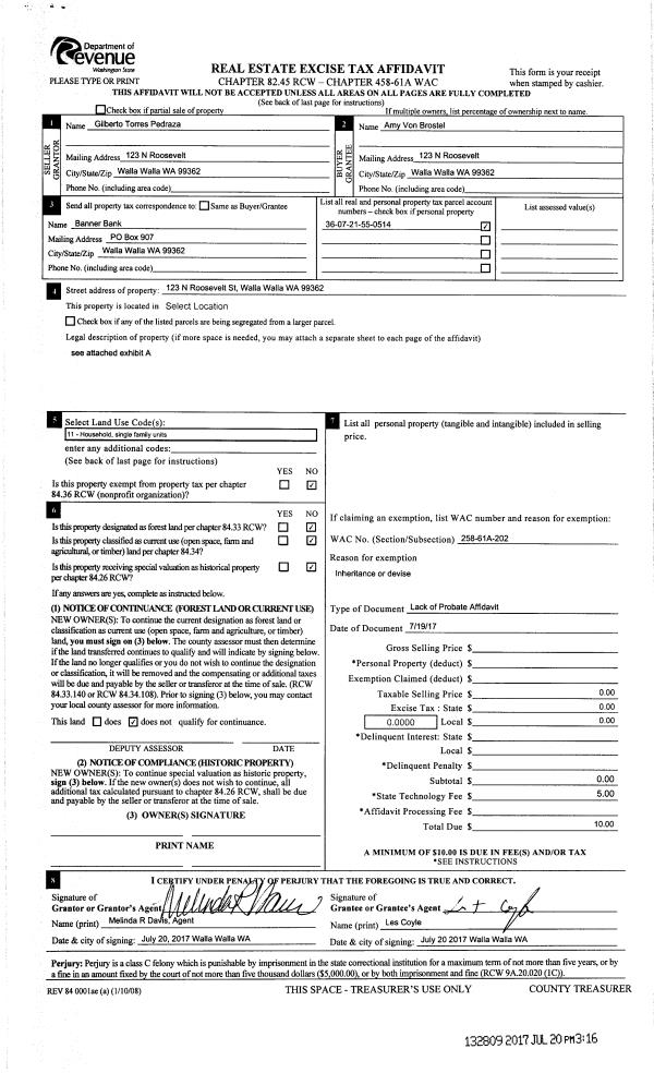
| 2 | 07/19/2017 | LOPA | LACK OF PROBATE AFFIDAVIT | PEDRAZA GILBERT P | VAN BORSTEL AMY | | | $0.00 | 132809 | 2017-05552 |
| 3 | 08/30/2004 | WARRANTY D | WARRANTY DEED | STINEBAUGH, SUSAN A | PEDRAZA, GILBERT P | | | $115,000.00 | 105606 | 2004-09996 |
| 4 | 03/14/2003 | QCD | QUIT CLAIM DEED | STINEBAUGH, SUSAN A | STINEBAUGH, SUSAN A | | | | 101592 | 2003-03428 |
| 5 | 08/05/1996 | WARRANTY D | WARRANTY DEED | | | | | $72,900.00 | 86650 | 2439-607896 |
Payout Agreement
| No payout information available.. |