Property
Account |
| Property ID: | 7891 | Abbreviated Legal Description: | ENNIS ANNEX TAX 7 LOT 2 BLK 5 |
| Parcel Number: | 360721550511 | Agent Code: | |
| Type: | Real | | |
| Tax Area: | 1 - OL-140-F | Land Use Code | 11 |
| Open Space: | N | DFL | N |
| Historic Property: | N | Remodel Property: | N |
| Multi-Family Redevelopment: | N | | |
| Township: | 7 | Section: | 21 |
| Range: | 36 |
Location |
| Address: | 116 N BLUE ST WA 99362 | Mapsco: | |
| Neighborhood: | A-SFR | Map ID: | |
| Neighborhood CD: | 513011 |
Owner |
| Name: | MIDDLETON JOSEPH HOWARD & CARMEN LANDA | Owner ID: | 73235 |
| Mailing Address: | 116 N BLUE ST WALLA WALLA, WA 99362 | % Ownership: | 100.0000000000% |
| | | Exemptions: | |
Taxes and Assessment Details
Property Tax Information as of
02/21/2026
Click on "Statement Details" to expand or collapse a tax statement.
* Please enter a valid date ** Please enter a valid date *
Statement Details |
| | TOTAL: | $0.00 | $0.00 | $0.00 | $0.00 | $0.00 | $0.00 |
|
| | $0.00 | $0.00 | $0.00 | $0.00 | $0.00 | $0.00 |
Values
| (+) Improvement Homesite Value: | + | $0 | |
| (+) Improvement Non-Homesite Value: | + | $236,080 | |
| (+) Land Homesite Value: | + | $0 | |
| (+) Land Non-Homesite Value: | + | $47,450 | |
| (+) Curr Use (HS): | + | $0 | $0 |
| (+) Curr Use (NHS): | + | $0 | $0 |
| | | -------------------------- | |
| (=) Market Value: | = | $283,530 | |
| (–) Productivity Loss: | – | $0 | |
| | | -------------------------- | |
| (=) Subtotal: | = | $283,530 | |
| (+) Senior Appraised Value: | + | $0 | |
| (+) Non-Senior Appraised Value: | + | $283,530 | |
| | | -------------------------- | |
| (=) Total Appraised Value: | = | $283,530 | |
| (–) Senior Exemption Loss: | – | $0 | |
| (–) Exemption Loss: | – | $0 | |
| | | -------------------------- | |
| (=) Taxable Value: | = | $283,530 | |
Taxing Jurisdiction
| Owner: | MIDDLETON JOSEPH HOWARD & CARMEN LANDA | | |
| % Ownership: | 100.0000000000% | | |
| Total Value: | $283,530 | | |
| Tax Area: | 1 - OL-140-F |
| CERFD | CURRENT EXPENSE REFUND 010 | 0.0000000000 | $283,530 | $283,530 | $0.00 | | |
| CURREXP | CURRENT EXPENSE 010 | 1.0175366760 | $283,530 | $283,530 | $288.50 | | |
| HUMNSERV | HUMAN SERVICES 119 | 0.0250000000 | $283,530 | $283,530 | $7.09 | | |
| SLDREL | SOLDIERS RELIEF 121 | 0.0155990005 | $283,530 | $283,530 | $4.42 | | |
| EMERGSER | EMS 147 | 0.3792580840 | $283,530 | $283,530 | $107.53 | | |
| EMSRFD | EMS REFUND 147 | 0.0000000000 | $283,530 | $283,530 | $0.00 | | |
| PORTRFD | PORT REFUND 640 | 0.0000000000 | $283,530 | $283,530 | $0.00 | | |
| PORTWWGEN | PORT OF WW 640 | 0.2460186015 | $283,530 | $283,530 | $69.75 | | |
| SD140BOND | SD #140 BOND 764 | 0.8342371393 | $283,530 | $283,530 | $236.53 | | |
| SD140GEN | SD #140 GENERAL 760 | 2.0646500647 | $283,530 | $283,530 | $585.39 | | |
| ST2 | STATE SCHOOL PART 2 600 | 0.8131451643 | $283,530 | $283,530 | $230.55 | | |
| STATESCHL | STATE SCHOOL 600 | 1.5158548041 | $283,530 | $283,530 | $429.79 | | |
| STREFUND | STATE REFUND LEVY 603 | 0.0000000000 | $283,530 | $283,530 | $0.00 | | |
| CWWBOND | C OF WW BOND 643 | 0.2760494372 | $283,530 | $283,530 | $78.27 | | |
| CWWGEN | CITY OF WW 631 | 1.6100204973 | $283,530 | $283,530 | $456.49 | | |
| CWWRFD | CITY OF WALLA WALLA REFUND 631 | 0.0000000000 | $283,530 | $283,530 | $0.00 | | |
| | Total Tax Rate: | 8.7973694689 | | | | | |
| | | | | Taxes w/Current Exemptions: | $2,494.31 | | |
| | | | | Taxes w/o Exemptions: | $2,494.31 | | |
Improvement / Building
| Improvement #1: | RESIDENTIAL | State Code: | 11 | 1503.0 sqft | Value: | $236,080 |
| Exterior Wall: | VINYL | Heating/Cooling: | WARM & COOLED AIR | | Number of Bathrooms: | 2 | Number of Bedrooms: | 3 | | Plumbing: | 9 | Roof Covering: | COMP SHINGLE |
|
| | Type | Description | Class CD | Sub Class CD | Year Built | Area |
| | MA | Main Area | 1 | 30 | 1946 | 1503.0 |
| | SI1 | SITE IMPROVEMENT | 1 | 30 | 1946 | 1.0 |
| | BASE | BASEMENT | 1 | 30 | 1946 | 330.0 |
| | CPC | COVERED CARPORT/PATIO | 1 | 30 | 1946 | 308.0 |
| | S1F | Single One Story Fireplace | 1 | 30 | 1946 | 1.0 |
| | RPS | PORCH W/STEPS,ROOF | 1 | 30 | 1946 | 64.0 |
| | TOOL | TOOL SHED | 1 | 30 | 1946 | 120.0 |
Sketch
Property Image
Land
| 1 | RES 1 | Converted: Residential | 0.1743 | 7592.00 | 0.00 | 0.00 | 1.00 | $47,450 | $0 |
Roll Value History
| 2026 | N/A | N/A | N/A | N/A | N/A |
| 2025 | $278,010 | $75,920 | $0 | $353,930 | $353,930 |
| 2024 | $243,850 | $75,920 | $0 | $319,770 | $319,770 |
| 2023 | $236,080 | $47,450 | $0 | $283,530 | $283,530 |
| 2022 | $224,840 | $47,450 | $0 | $272,290 | $272,290 |
| 2021 | $187,360 | $47,450 | $0 | $234,810 | $234,810 |
| 2020 | $149,890 | $47,450 | $0 | $197,340 | $197,340 |
| 2019 | $149,890 | $47,450 | $0 | $197,340 | $197,340 |
| 2018 | $115,300 | $47,450 | $0 | $162,750 | $162,750 |
| 2017 | $96,690 | $30,400 | $0 | $127,090 | $127,090 |
| 2016 | $87,900 | $30,400 | $0 | $118,300 | $118,300 |
| 2015 | $87,900 | $30,400 | $0 | $118,300 | $118,300 |
| 2014 | $87,900 | $30,400 | $0 | $118,300 | $118,300 |
| 2013 | $87,900 | $30,400 | $0 | $118,300 | $118,300 |
| 2012 | $87,900 | $30,400 | $0 | $0 | $0 |
| 2011 | $94,100 | $30,400 | $0 | $0 | $0 |
| 2010 | $115,000 | $30,400 | $0 | $0 | $0 |
| 2009 | $131,100 | $30,400 | $0 | $0 | $0 |
| 2008 | $98,800 | $30,400 | $0 | $0 | $0 |
| 2007 | $98,800 | $30,400 | $0 | $0 | $0 |
Deed and Sales History
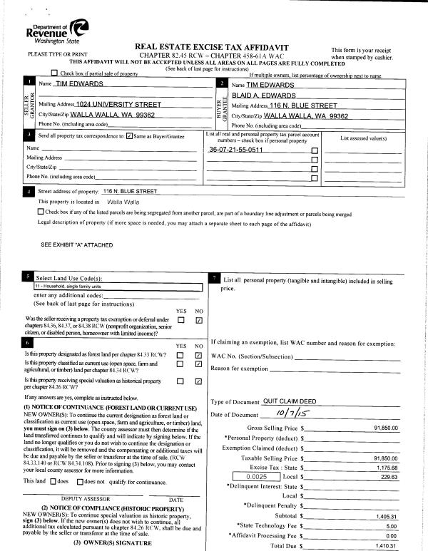
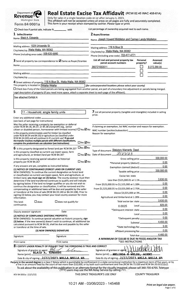
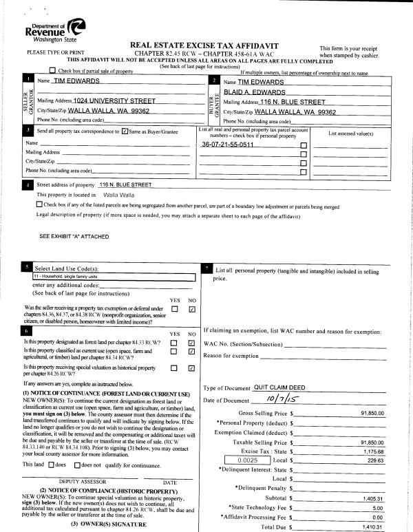
| 1 | 03/06/2023 | SWD | STATUTORY WARRANTY DEED | EDWARDS BLAID A | MIDDLETON JOSEPH HOWARD & CARMEN LANDA | | | $330,000.00 | 145468 | 2023-01126 |
| 2 | 11/02/2018 | QCD | QUIT CLAIM DEED | EDWARDS TIM | EDWARDS BLAID A | | | $0.00 | 135898 | 2018-09261 |
| 3 | 10/07/2015 | QCD | QUIT CLAIM DEED | EDWARDS TIM A | EDWARDS TIM | | | $91,850.00 | 128964 | 2015-08850 |
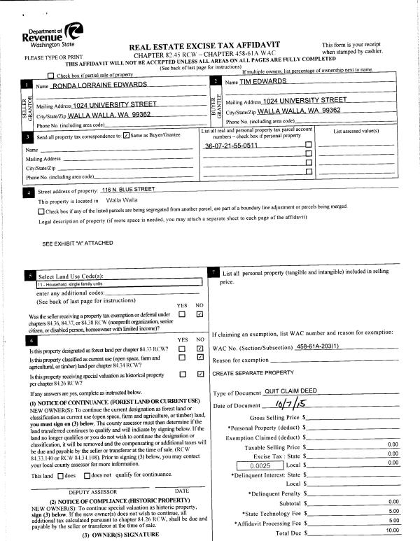
| 4 | 10/07/2015 | QCD | QUIT CLAIM DEED | EDWARDS RONDA LORRAINE | EDWARDS TIM A | | | | 128963 | 2015-08849 |
| 5 | 09/23/2014 | WARRANTY D | WARRANTY DEED | DEUTSCHE BANK NATIONAL TRUST COMPANY | EDWARDS TIM A | | | $82,000.00 | 126700 | 2014-07035 |
| 6 | 01/02/2014 | TRUSTEES D | TRUSTEE'S DEED | LUIPPOLD RAYMOND | DEUTSCHE BANK NATIONAL TRUST COMPANY | | | $103,112.00 | 125226 | 2014-00034 |
| 7 | 09/09/2004 | WARRANTY D | WARRANTY DEED | CHAGNON, ALBERT W & SANDRA J | LUIPPOLD, RAYMOND | | | $131,000.00 | 105671 | 2004-10396 |
| 8 | 03/08/1994 | WARRANTY D | WARRANTY DEED | | | | | $81,400.00 | 81166 | 2179-402830 |
Payout Agreement
| No payout information available.. |