Property
Account |
| Property ID: | 7880 | Abbreviated Legal Description: | ENNIS ANNEX S 50' OF N 100' OF E 120' OF LOT 2 BLK 3 |
| Parcel Number: | 360721550308 | Agent Code: | |
| Type: | Real | | |
| Tax Area: | 1 - OL-140-F | Land Use Code | 11 |
| Open Space: | N | DFL | N |
| Historic Property: | N | Remodel Property: | N |
| Multi-Family Redevelopment: | N | | |
| Township: | 7 | Section: | 21 |
| Range: | 36 |
Location |
| Address: | 209 N BLUE ST WA 99362 | Mapsco: | |
| Neighborhood: | A-SFR | Map ID: | |
| Neighborhood CD: | 513011 |
Owner |
| Name: | BLOCK ANDREW D | Owner ID: | 65536 |
| Mailing Address: | 117 E ROSE ST WALLA WALLA, WA 99362 | % Ownership: | 100.0000000000% |
| | | Exemptions: | |
Taxes and Assessment Details
Property Tax Information as of
02/21/2026
Click on "Statement Details" to expand or collapse a tax statement.
* Please enter a valid date ** Please enter a valid date *
Statement Details |
| | TOTAL: | $0.00 | $0.00 | $0.00 | $0.00 | $0.00 | $0.00 |
|
| | $0.00 | $0.00 | $0.00 | $0.00 | $0.00 | $0.00 |
Values
| (+) Improvement Homesite Value: | + | $0 | |
| (+) Improvement Non-Homesite Value: | + | $108,620 | |
| (+) Land Homesite Value: | + | $0 | |
| (+) Land Non-Homesite Value: | + | $37,500 | |
| (+) Curr Use (HS): | + | $0 | $0 |
| (+) Curr Use (NHS): | + | $0 | $0 |
| | | -------------------------- | |
| (=) Market Value: | = | $146,120 | |
| (–) Productivity Loss: | – | $0 | |
| | | -------------------------- | |
| (=) Subtotal: | = | $146,120 | |
| (+) Senior Appraised Value: | + | $0 | |
| (+) Non-Senior Appraised Value: | + | $146,120 | |
| | | -------------------------- | |
| (=) Total Appraised Value: | = | $146,120 | |
| (–) Senior Exemption Loss: | – | $0 | |
| (–) Exemption Loss: | – | $0 | |
| | | -------------------------- | |
| (=) Taxable Value: | = | $146,120 | |
Taxing Jurisdiction
| Owner: | BLOCK ANDREW D | | |
| % Ownership: | 100.0000000000% | | |
| Total Value: | $146,120 | | |
| Tax Area: | 1 - OL-140-F |
| CERFD | CURRENT EXPENSE REFUND 010 | 0.0000000000 | $146,120 | $146,120 | $0.00 | | |
| CURREXP | CURRENT EXPENSE 010 | 1.0175366760 | $146,120 | $146,120 | $148.68 | | |
| HUMNSERV | HUMAN SERVICES 119 | 0.0250000000 | $146,120 | $146,120 | $3.65 | | |
| SLDREL | SOLDIERS RELIEF 121 | 0.0155990005 | $146,120 | $146,120 | $2.28 | | |
| EMERGSER | EMS 147 | 0.3792580840 | $146,120 | $146,120 | $55.42 | | |
| EMSRFD | EMS REFUND 147 | 0.0000000000 | $146,120 | $146,120 | $0.00 | | |
| PORTRFD | PORT REFUND 640 | 0.0000000000 | $146,120 | $146,120 | $0.00 | | |
| PORTWWGEN | PORT OF WW 640 | 0.2460186015 | $146,120 | $146,120 | $35.95 | | |
| SD140BOND | SD #140 BOND 764 | 0.8342371393 | $146,120 | $146,120 | $121.90 | | |
| SD140GEN | SD #140 GENERAL 760 | 2.0646500647 | $146,120 | $146,120 | $301.69 | | |
| ST2 | STATE SCHOOL PART 2 600 | 0.8131451643 | $146,120 | $146,120 | $118.82 | | |
| STATESCHL | STATE SCHOOL 600 | 1.5158548041 | $146,120 | $146,120 | $221.50 | | |
| STREFUND | STATE REFUND LEVY 603 | 0.0000000000 | $146,120 | $146,120 | $0.00 | | |
| CWWBOND | C OF WW BOND 643 | 0.2760494372 | $146,120 | $146,120 | $40.34 | | |
| CWWGEN | CITY OF WW 631 | 1.6100204973 | $146,120 | $146,120 | $235.26 | | |
| CWWRFD | CITY OF WALLA WALLA REFUND 631 | 0.0000000000 | $146,120 | $146,120 | $0.00 | | |
| | Total Tax Rate: | 8.7973694689 | | | | | |
| | | | | Taxes w/Current Exemptions: | $1,285.49 | | |
| | | | | Taxes w/o Exemptions: | $1,285.49 | | |
Improvement / Building
| Improvement #1: | RESIDENTIAL | State Code: | 11 | 616.0 sqft | Value: | $108,620 |
| Exterior Wall: | SIDING | Heating/Cooling: | WARM & COOLED AIR | | Number of Bathrooms: | 1 | Number of Bedrooms: | 1 | | Plumbing: | 6 | Roof Covering: | COMP SHINGLE |
|
| | Type | Description | Class CD | Sub Class CD | Year Built | Area |
| | MA | Main Area | 1 | 20 | 1935 | 616.0 |
| | SI1 | SITE IMPROVEMENT | 1 | 20 | 1935 | 1.0 |
| | BASE | BASEMENT | 1 | 20 | 1935 | 616.0 |
| | BRF | BASEMENT - REC FINISH | 1 | 30 | 1935 | 225.0 |
| | DTG | Detached Garage | 1 | 20 | 1935 | 360.0 |
| | OPS | OPEN PORCH W/STEPS | 1 | 20 | 1935 | 49.0 |
| | SWP | Solid Wall Porch | 1 | 20 | 1935 | 154.0 |
Sketch
Property Image
Land
| 1 | RES 1 | Converted: Residential | 0.1377 | 6000.00 | 0.00 | 0.00 | 1.00 | $37,500 | $0 |
Roll Value History
| 2026 | N/A | N/A | N/A | N/A | N/A |
| 2025 | $109,130 | $60,000 | $0 | $169,130 | $169,130 |
| 2024 | $99,210 | $60,000 | $0 | $159,210 | $159,210 |
| 2023 | $108,620 | $37,500 | $0 | $146,120 | $146,120 |
| 2022 | $108,620 | $37,500 | $0 | $146,120 | $146,120 |
| 2021 | $60,350 | $37,500 | $0 | $97,850 | $97,850 |
| 2020 | $46,420 | $37,500 | $0 | $83,920 | $83,920 |
| 2019 | $46,420 | $37,500 | $0 | $83,920 | $83,920 |
| 2018 | $46,420 | $37,500 | $0 | $83,920 | $83,920 |
| 2017 | $53,450 | $24,000 | $0 | $77,450 | $77,450 |
| 2016 | $50,900 | $24,000 | $0 | $74,900 | $74,900 |
| 2015 | $50,900 | $24,000 | $0 | $74,900 | $74,900 |
| 2014 | $50,900 | $24,000 | $0 | $74,900 | $74,900 |
| 2013 | $50,900 | $24,000 | $0 | $74,900 | $74,900 |
| 2012 | $50,900 | $24,000 | $0 | $0 | $0 |
| 2011 | $50,900 | $24,000 | $0 | $0 | $0 |
| 2010 | $50,900 | $24,000 | $0 | $0 | $0 |
| 2009 | $59,200 | $24,000 | $0 | $0 | $0 |
| 2008 | $50,300 | $24,000 | $0 | $0 | $0 |
| 2007 | $50,300 | $24,000 | $0 | $0 | $0 |
Deed and Sales History
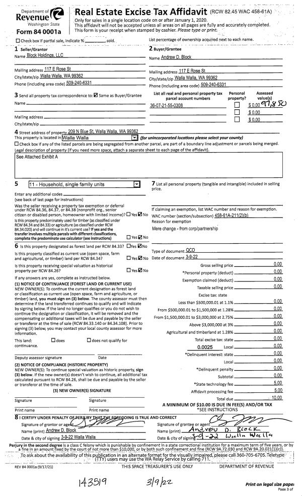
| 1 | 03/09/2022 | QCD | QUIT CLAIM DEED | BLOCK HOLDINGS LLC | BLOCK ANDREW D | | | $0.00 | 143519 | 2022-02018 |
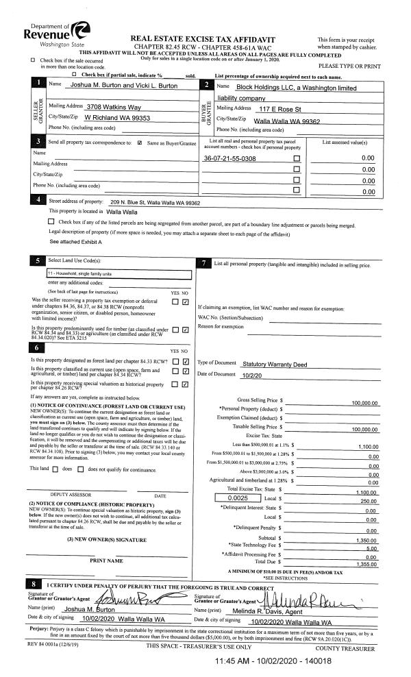
| 2 | 10/02/2020 | SWD | STATUTORY WARRANTY DEED | BURTON JOSHUA M & VICKI L | BLOCK HOLDINGS LLC | | | $100,000.00 | 140018 | 2020-10117 |
| 3 | 02/25/2008 | QCD | QUIT CLAIM DEED | BENNETT, ROBERT A & CAROL A | BURTON, JOSHUA M & VICKI L | | | $20,000.00 | 114574 | 2008-01658 |
| 4 | 11/16/1999 | WARRANTY D | WARRANTY DEED | | | | | $34,500.00 | 94027 | 2919-913068 |
Payout Agreement
| No payout information available.. |