Property
Account |
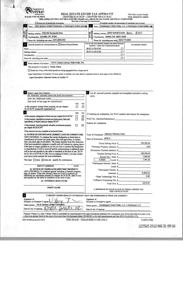
| Property ID: | 7870 | Abbreviated Legal Description: | ENNIS ANNEX (TRACT II) TAX 2 BLK 1 & WLY PTN TAX 5 ALSO SWLY CORNERLOT 1, LESS W 1' IN WIDTH OF LOT 1 |
| Parcel Number: | 360721550136 | Agent Code: | |
| Type: | Real | | |
| Tax Area: | 1 - OL-140-F | Land Use Code | 55 |
| Open Space: | N | DFL | N |
| Historic Property: | N | Remodel Property: | N |
| Multi-Family Redevelopment: | N | | |
| Township: | 7 | Section: | 21 |
| Range: | 36 |
Location |
| Address: | 1744 ISAACS AVE WA 99362 | Mapsco: | |
| Neighborhood: | WW Downtown Core Area #2 | Map ID: | |
| Neighborhood CD: | 5342 |
Owner |
| Name: | ECHELBARGER'S WALLA WALLA LLC | Owner ID: | 51713 |
| Mailing Address: | % JIFFY LUBE PO BOX 8877 MOSCOW, ID 83843 | % Ownership: | 100.0000000000% |
| | | Exemptions: | |
Taxes and Assessment Details
Values
| (+) Improvement Homesite Value: | + | $0 | |
| (+) Improvement Non-Homesite Value: | + | $155,400 | |
| (+) Land Homesite Value: | + | $0 | |
| (+) Land Non-Homesite Value: | + | $135,000 | |
| (+) Curr Use (HS): | + | $0 | $0 |
| (+) Curr Use (NHS): | + | $0 | $0 |
| | | -------------------------- | |
| (=) Market Value: | = | $290,400 | |
| (–) Productivity Loss: | – | $0 | |
| | | -------------------------- | |
| (=) Subtotal: | = | $290,400 | |
| (+) Senior Appraised Value: | + | $0 | |
| (+) Non-Senior Appraised Value: | + | $290,400 | |
| | | -------------------------- | |
| (=) Total Appraised Value: | = | $290,400 | |
| (–) Senior Exemption Loss: | – | $0 | |
| (–) Exemption Loss: | – | $0 | |
| | | -------------------------- | |
| (=) Taxable Value: | = | $290,400 | |
Taxing Jurisdiction
| Owner: | ECHELBARGER'S WALLA WALLA LLC | | |
| % Ownership: | 100.0000000000% | | |
| Total Value: | $290,400 | | |
| Tax Area: | 1 - OL-140-F |
| CERFD | CURRENT EXPENSE REFUND 010 | 0.0000000000 | $290,400 | $290,400 | $0.00 | | |
| CURREXP | CURRENT EXPENSE 010 | 1.0175366760 | $290,400 | $290,400 | $295.49 | | |
| HUMNSERV | HUMAN SERVICES 119 | 0.0250000000 | $290,400 | $290,400 | $7.26 | | |
| SLDREL | SOLDIERS RELIEF 121 | 0.0155990005 | $290,400 | $290,400 | $4.53 | | |
| EMERGSER | EMS 147 | 0.3792580840 | $290,400 | $290,400 | $110.14 | | |
| EMSRFD | EMS REFUND 147 | 0.0000000000 | $290,400 | $290,400 | $0.00 | | |
| PORTRFD | PORT REFUND 640 | 0.0000000000 | $290,400 | $290,400 | $0.00 | | |
| PORTWWGEN | PORT OF WW 640 | 0.2460186015 | $290,400 | $290,400 | $71.44 | | |
| SD140BOND | SD #140 BOND 764 | 0.8342371393 | $290,400 | $290,400 | $242.26 | | |
| SD140GEN | SD #140 GENERAL 760 | 2.0646500647 | $290,400 | $290,400 | $599.57 | | |
| ST2 | STATE SCHOOL PART 2 600 | 0.8131451643 | $290,400 | $290,400 | $236.14 | | |
| STATESCHL | STATE SCHOOL 600 | 1.5158548041 | $290,400 | $290,400 | $440.20 | | |
| STREFUND | STATE REFUND LEVY 603 | 0.0000000000 | $290,400 | $290,400 | $0.00 | | |
| CWWBOND | C OF WW BOND 643 | 0.2760494372 | $290,400 | $290,400 | $80.16 | | |
| CWWGEN | CITY OF WW 631 | 1.6100204973 | $290,400 | $290,400 | $467.55 | | |
| CWWRFD | CITY OF WALLA WALLA REFUND 631 | 0.0000000000 | $290,400 | $290,400 | $0.00 | | |
| | Total Tax Rate: | 8.7973694689 | | | | | |
| | | | | Taxes w/Current Exemptions: | $2,554.74 | | |
| | | | | Taxes w/o Exemptions: | $2,554.74 | | |
Improvement / Building
| Improvement #1: | COMMERCIAL | State Code: | 55 | 1770.0 sqft | Value: | $155,400 |
| | Type | Description | Class CD | Sub Class CD | Year Built | Area |
| | MA | Main Area | D | * | 1987 | 1770.0 |
| | SI1 | SITE IMPROVEMENT | D | * | 1987 | 5.0 |
| | PRKSTLA | PARK STALL AVERAGE | D | * | 1987 | 7.0 |
Sketch
Property Image
Land
| 1 | COM 1 | Converted: Commercial | 0.3100 | 13503.60 | 0.00 | 0.00 | 1.00 | $135,000 | $0 |
Roll Value History
| 2026 | N/A | N/A | N/A | N/A | N/A |
| 2025 | $245,690 | $148,500 | $0 | $394,190 | $394,190 |
| 2024 | $214,500 | $148,500 | $0 | $363,000 | $363,000 |
| 2023 | $155,400 | $135,000 | $0 | $290,400 | $290,400 |
| 2022 | $155,400 | $135,000 | $0 | $290,400 | $290,400 |
| 2021 | $155,400 | $135,000 | $0 | $290,400 | $290,400 |
| 2020 | $155,400 | $135,000 | $0 | $290,400 | $290,400 |
| 2019 | $155,400 | $135,000 | $0 | $290,400 | $290,400 |
| 2018 | $155,400 | $135,000 | $0 | $290,400 | $290,400 |
| 2017 | $155,400 | $135,000 | $0 | $290,400 | $290,400 |
| 2016 | $155,400 | $135,000 | $0 | $290,400 | $290,400 |
| 2015 | $155,400 | $135,000 | $0 | $290,400 | $290,400 |
| 2014 | $155,400 | $135,000 | $0 | $290,400 | $290,400 |
| 2013 | $155,400 | $135,000 | $0 | $290,400 | $290,400 |
| 2012 | $215,900 | $60,800 | $0 | $0 | $0 |
| 2011 | $215,900 | $60,800 | $0 | $0 | $0 |
| 2010 | $215,900 | $60,800 | $0 | $0 | $0 |
| 2009 | $215,900 | $60,800 | $0 | $0 | $0 |
| 2008 | $215,900 | $60,800 | $0 | $0 | $0 |
| 2007 | $215,900 | $60,800 | $0 | $0 | $0 |
Deed and Sales History
| 1 | 08/31/2012 | WARRANTY D | WARRANTY DEED | K & M JACKSON LTD PARTNERSHIP | ECHELBARGER'S WALLA WALLA LLC | | | $592,500.00 | 122565 | 2012-07631 |
|   | |
| 2 | 01/14/2000 | WARRANTY D | WARRANTY DEED | | | | | $365,000.00 | 94369 | 2930-000414 |
Payout Agreement
| No payout information available.. |