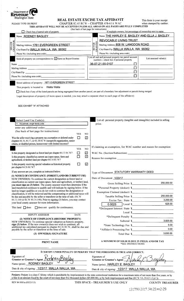
Property
Account |
| Property ID: | 7858 | Abbreviated Legal Description: | ENNIS ANNEX S 106' OF E 102.17' OF LOT 4 BLK 1 |
| Parcel Number: | 360721550107 | Agent Code: | |
| Type: | Real | | |
| Tax Area: | 1 - OL-140-F | Land Use Code | 11 |
| Open Space: | N | DFL | N |
| Historic Property: | N | Remodel Property: | N |
| Multi-Family Redevelopment: | N | | |
| Township: | 7 | Section: | 21 |
| Range: | 36 |
Location |
| Address: | 1761 EVERGREEN ST WA 99362 | Mapsco: | |
| Neighborhood: | A-SFR | Map ID: | |
| Neighborhood CD: | 513011 |
Owner |
| Name: | HARLEY E BAGLEY & ELLA J BAGLEY | Owner ID: | 57074 |
| Mailing Address: | REVOCABLE LIVING TRUST PO BOX 521 COLLEGE PLACE, WA 99324 | % Ownership: | 100.0000000000% |
| | | Exemptions: | |
Taxes and Assessment Details
Property Tax Information as of
02/21/2026
Click on "Statement Details" to expand or collapse a tax statement.
* Please enter a valid date ** Please enter a valid date *
Statement Details |
| | TOTAL: | $0.00 | $0.00 | $0.00 | $0.00 | $0.00 | $0.00 |
|
| | $0.00 | $0.00 | $0.00 | $0.00 | $0.00 | $0.00 |
Values
| (+) Improvement Homesite Value: | + | $0 | |
| (+) Improvement Non-Homesite Value: | + | $346,130 | |
| (+) Land Homesite Value: | + | $0 | |
| (+) Land Non-Homesite Value: | + | $62,930 | |
| (+) Curr Use (HS): | + | $0 | $0 |
| (+) Curr Use (NHS): | + | $0 | $0 |
| | | -------------------------- | |
| (=) Market Value: | = | $409,060 | |
| (–) Productivity Loss: | – | $0 | |
| | | -------------------------- | |
| (=) Subtotal: | = | $409,060 | |
| (+) Senior Appraised Value: | + | $0 | |
| (+) Non-Senior Appraised Value: | + | $409,060 | |
| | | -------------------------- | |
| (=) Total Appraised Value: | = | $409,060 | |
| (–) Senior Exemption Loss: | – | $0 | |
| (–) Exemption Loss: | – | $0 | |
| | | -------------------------- | |
| (=) Taxable Value: | = | $409,060 | |
Taxing Jurisdiction
| Owner: | HARLEY E BAGLEY & ELLA J BAGLEY | | |
| % Ownership: | 100.0000000000% | | |
| Total Value: | $409,060 | | |
| Tax Area: | 1 - OL-140-F |
| CERFD | CURRENT EXPENSE REFUND 010 | 0.0000000000 | $409,060 | $409,060 | $0.00 | | |
| CURREXP | CURRENT EXPENSE 010 | 1.0175366760 | $409,060 | $409,060 | $416.23 | | |
| HUMNSERV | HUMAN SERVICES 119 | 0.0250000000 | $409,060 | $409,060 | $10.23 | | |
| SLDREL | SOLDIERS RELIEF 121 | 0.0155990005 | $409,060 | $409,060 | $6.38 | | |
| EMERGSER | EMS 147 | 0.3792580840 | $409,060 | $409,060 | $155.14 | | |
| EMSRFD | EMS REFUND 147 | 0.0000000000 | $409,060 | $409,060 | $0.00 | | |
| PORTRFD | PORT REFUND 640 | 0.0000000000 | $409,060 | $409,060 | $0.00 | | |
| PORTWWGEN | PORT OF WW 640 | 0.2460186015 | $409,060 | $409,060 | $100.64 | | |
| SD140BOND | SD #140 BOND 764 | 0.8342371393 | $409,060 | $409,060 | $341.25 | | |
| SD140GEN | SD #140 GENERAL 760 | 2.0646500647 | $409,060 | $409,060 | $844.57 | | |
| ST2 | STATE SCHOOL PART 2 600 | 0.8131451643 | $409,060 | $409,060 | $332.63 | | |
| STATESCHL | STATE SCHOOL 600 | 1.5158548041 | $409,060 | $409,060 | $620.08 | | |
| STREFUND | STATE REFUND LEVY 603 | 0.0000000000 | $409,060 | $409,060 | $0.00 | | |
| CWWBOND | C OF WW BOND 643 | 0.2760494372 | $409,060 | $409,060 | $112.92 | | |
| CWWGEN | CITY OF WW 631 | 1.6100204973 | $409,060 | $409,060 | $658.59 | | |
| CWWRFD | CITY OF WALLA WALLA REFUND 631 | 0.0000000000 | $409,060 | $409,060 | $0.00 | | |
| | Total Tax Rate: | 8.7973694689 | | | | | |
| | | | | Taxes w/Current Exemptions: | $3,598.66 | | |
| | | | | Taxes w/o Exemptions: | $3,598.66 | | |
Improvement / Building
| Improvement #1: | RESIDENTIAL | State Code: | 11 | 1629.0 sqft | Value: | $346,130 |
| Exterior Wall: | PLYWOOD | Heating/Cooling: | WARM & COOLED AIR | | Number of Bathrooms: | 3 | Number of Bedrooms: | 3 | | Plumbing: | 12 | Roof Covering: | COMP SHINGLE |
|
| | Type | Description | Class CD | Sub Class CD | Year Built | Area |
| | MA | Main Area | 1 | 35 | 1948 | 1629.0 |
| | SI1 | SITE IMPROVEMENT | 1 | 35 | 1948 | 1.5 |
| | DTG | Detached Garage | 1 | 35 | 1948 | 640.0 |
| | S1F | Single One Story Fireplace | 1 | 35 | 1948 | 1.0 |
| | RPO | OPEN PORCH W/ROOF | 1 | 35 | 1948 | 131.0 |
| | CPC | COVERED CARPORT/PATIO | 1 | 35 | 1948 | 294.0 |
| | FBAT | FULL BATH | 1 | 35 | 2007 | 1.0 |
| | GIF | GARAGE INTERIOR FINISH | 1 | 35 | 2007 | 260.0 |
| | DTG | Detached Garage | 1 | 35 | 2007 | 260.0 |
| | RPO | OPEN PORCH W/ROOF | 1 | 35 | 1948 | 112.0 |
Sketch
Property Image
Land
| 1 | RES 1 | Converted: Residential | 0.2482 | 10812.00 | 0.00 | 0.00 | 1.00 | $62,930 | $0 |
Roll Value History
| 2026 | N/A | N/A | N/A | N/A | N/A |
| 2025 | $336,530 | $100,660 | $0 | $437,190 | $437,190 |
| 2024 | $305,940 | $100,660 | $0 | $406,600 | $406,600 |
| 2023 | $346,130 | $62,930 | $0 | $409,060 | $409,060 |
| 2022 | $329,650 | $62,930 | $0 | $392,580 | $392,580 |
| 2021 | $263,720 | $62,930 | $0 | $326,650 | $326,650 |
| 2020 | $188,370 | $62,930 | $0 | $251,300 | $251,300 |
| 2019 | $188,370 | $62,930 | $0 | $251,300 | $251,300 |
| 2018 | $179,400 | $62,930 | $0 | $242,330 | $242,330 |
| 2017 | $177,540 | $40,600 | $0 | $218,140 | $218,140 |
| 2016 | $147,950 | $40,600 | $0 | $188,550 | $188,550 |
| 2015 | $147,950 | $40,600 | $0 | $188,550 | $188,550 |
| 2014 | $140,900 | $40,600 | $0 | $181,500 | $181,500 |
| 2013 | $140,900 | $40,600 | $0 | $181,500 | $181,500 |
| 2012 | $129,800 | $40,600 | $0 | $0 | $0 |
| 2011 | $129,800 | $40,600 | $0 | $0 | $0 |
| 2010 | $121,700 | $40,600 | $0 | $0 | $0 |
| 2009 | $139,700 | $40,600 | $0 | $0 | $0 |
| 2008 | $139,700 | $40,600 | $0 | $0 | $0 |
| 2007 | $122,600 | $40,600 | $0 | $0 | $0 |
Deed and Sales History
| 1 | 01/23/2017 | SWD | STATUTORY WARRANTY DEED | BAGLEY RODNEY | HARLEY E BAGLEY & ELLA J BAGLEY | | | $250,000.00 | 131799 | 2017-00577 |
| 2 | 08/28/2006 | WARRANTY D | WARRANTY DEED | KIRBY, TRAVIS & LEALONI | BAGLEY, RODNEY | | | $175,000.00 | 111066 | 2006-10365 |
| 3 | 10/31/2005 | WARRANTY D | WARRANTY DEED | STIMMEL, WANDALENE | KIRBY, TRAVIS & LEALONI | | | $140,500.00 | 108902 | 2005-13720 |
| 4 | 07/01/1968 | WARRANTY D | WARRANTY DEED | | | | | $17,500.00 | 0 | 3270-495626 |
Payout Agreement
| No payout information available.. |