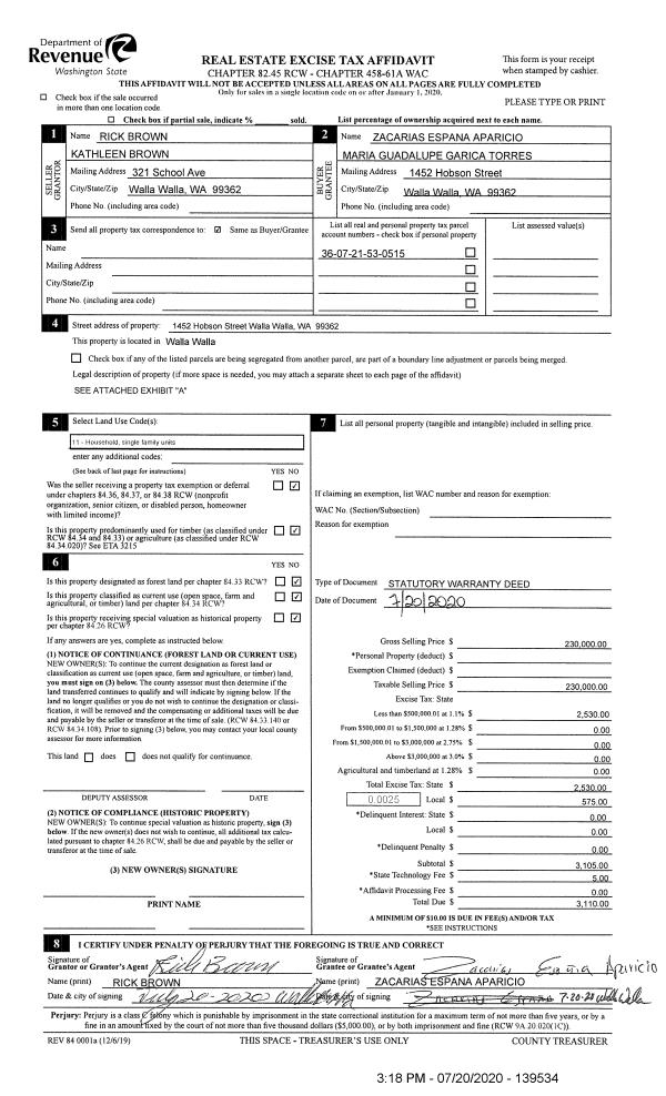
Property
Account |
| Property ID: | 7846 | Abbreviated Legal Description: | EASTLAWN LOTS 15 & 16 BLK 5 |
| Parcel Number: | 360721530515 | Agent Code: | |
| Type: | Real | | |
| Tax Area: | 1 - OL-140-F | Land Use Code | 11 |
| Open Space: | N | DFL | N |
| Historic Property: | N | Remodel Property: | N |
| Multi-Family Redevelopment: | N | | |
| Township: | 7 | Section: | 21 |
| Range: | 36 |
Location |
| Address: | 1452 HOBSON ST WA 99362 | Mapsco: | |
| Neighborhood: | A-SFR | Map ID: | |
| Neighborhood CD: | 513011 |
Owner |
| Name: | APARICIO ZACARIAS ESPANA | Owner ID: | 67590 |
| Mailing Address: | MARIA GUADALUPE GARCIA TORRES 1452 HOBSON ST WALLA WALLA, WA 99362 | % Ownership: | 100.0000000000% |
| | | Exemptions: | |
Taxes and Assessment Details
Property Tax Information as of
02/21/2026
Click on "Statement Details" to expand or collapse a tax statement.
* Please enter a valid date ** Please enter a valid date *
Statement Details |
| | TOTAL: | $0.00 | $0.00 | $0.00 | $0.00 | $0.00 | $0.00 |
|
| | $0.00 | $0.00 | $0.00 | $0.00 | $0.00 | $0.00 |
Values
| (+) Improvement Homesite Value: | + | $0 | |
| (+) Improvement Non-Homesite Value: | + | $163,010 | |
| (+) Land Homesite Value: | + | $0 | |
| (+) Land Non-Homesite Value: | + | $62,750 | |
| (+) Curr Use (HS): | + | $0 | $0 |
| (+) Curr Use (NHS): | + | $0 | $0 |
| | | -------------------------- | |
| (=) Market Value: | = | $225,760 | |
| (–) Productivity Loss: | – | $0 | |
| | | -------------------------- | |
| (=) Subtotal: | = | $225,760 | |
| (+) Senior Appraised Value: | + | $0 | |
| (+) Non-Senior Appraised Value: | + | $225,760 | |
| | | -------------------------- | |
| (=) Total Appraised Value: | = | $225,760 | |
| (–) Senior Exemption Loss: | – | $0 | |
| (–) Exemption Loss: | – | $0 | |
| | | -------------------------- | |
| (=) Taxable Value: | = | $225,760 | |
Taxing Jurisdiction
| Owner: | APARICIO ZACARIAS ESPANA | | |
| % Ownership: | 100.0000000000% | | |
| Total Value: | $225,760 | | |
| Tax Area: | 1 - OL-140-F |
| CERFD | CURRENT EXPENSE REFUND 010 | 0.0000000000 | $225,760 | $225,760 | $0.00 | | |
| CURREXP | CURRENT EXPENSE 010 | 1.0175366760 | $225,760 | $225,760 | $229.72 | | |
| HUMNSERV | HUMAN SERVICES 119 | 0.0250000000 | $225,760 | $225,760 | $5.64 | | |
| SLDREL | SOLDIERS RELIEF 121 | 0.0155990005 | $225,760 | $225,760 | $3.52 | | |
| EMERGSER | EMS 147 | 0.3792580840 | $225,760 | $225,760 | $85.62 | | |
| EMSRFD | EMS REFUND 147 | 0.0000000000 | $225,760 | $225,760 | $0.00 | | |
| PORTRFD | PORT REFUND 640 | 0.0000000000 | $225,760 | $225,760 | $0.00 | | |
| PORTWWGEN | PORT OF WW 640 | 0.2460186015 | $225,760 | $225,760 | $55.54 | | |
| SD140BOND | SD #140 BOND 764 | 0.8342371393 | $225,760 | $225,760 | $188.34 | | |
| SD140GEN | SD #140 GENERAL 760 | 2.0646500647 | $225,760 | $225,760 | $466.12 | | |
| ST2 | STATE SCHOOL PART 2 600 | 0.8131451643 | $225,760 | $225,760 | $183.58 | | |
| STATESCHL | STATE SCHOOL 600 | 1.5158548041 | $225,760 | $225,760 | $342.22 | | |
| STREFUND | STATE REFUND LEVY 603 | 0.0000000000 | $225,760 | $225,760 | $0.00 | | |
| CWWBOND | C OF WW BOND 643 | 0.2760494372 | $225,760 | $225,760 | $62.32 | | |
| CWWGEN | CITY OF WW 631 | 1.6100204973 | $225,760 | $225,760 | $363.48 | | |
| CWWRFD | CITY OF WALLA WALLA REFUND 631 | 0.0000000000 | $225,760 | $225,760 | $0.00 | | |
| | Total Tax Rate: | 8.7973694689 | | | | | |
| | | | | Taxes w/Current Exemptions: | $1,986.10 | | |
| | | | | Taxes w/o Exemptions: | $1,986.10 | | |
Improvement / Building
| Improvement #1: | RESIDENTIAL | State Code: | 11 | 1344.0 sqft | Value: | $163,010 |
| Exterior Wall: | PLYWOOD | Heating/Cooling: | WARM & COOLED AIR | | Number of Bathrooms: | 2 | Number of Bedrooms: | 2 | | Plumbing: | 9 | Roof Covering: | COMP SHINGLE |
|
| | Type | Description | Class CD | Sub Class CD | Year Built | Area |
| | MA | Main Area | 1 | 20 | 1950 | 1344.0 |
| | SI1 | SITE IMPROVEMENT | 1 | 20 | 1950 | 1.0 |
| | BASE | BASEMENT | 1 | 20 | 1950 | 576.0 |
| | BPF | BASEMENT -PARTITIONED FINISH | 1 | 20 | 1950 | 576.0 |
| | DTG | Detached Garage | 1 | 20 | 1950 | 246.0 |
| | CPC | COVERED CARPORT/PATIO | 1 | 20 | 1950 | 285.0 |
| | OPS | OPEN PORCH W/STEPS | 1 | 20 | 1950 | 25.0 |
Sketch
Property Image
Land
| 1 | RES 1 | Converted: Residential | 0.2369 | 10320.00 | 0.00 | 0.00 | 1.00 | $62,750 | $0 |
Roll Value History
| 2026 | N/A | N/A | N/A | N/A | N/A |
| 2025 | $186,500 | $100,310 | $0 | $286,810 | $286,810 |
| 2024 | $155,420 | $100,310 | $0 | $255,730 | $255,730 |
| 2023 | $163,010 | $62,750 | $0 | $225,760 | $225,760 |
| 2022 | $163,010 | $62,750 | $0 | $225,760 | $225,760 |
| 2021 | $135,840 | $62,750 | $0 | $198,590 | $198,590 |
| 2020 | $90,560 | $62,750 | $0 | $153,310 | $153,310 |
| 2019 | $90,560 | $62,750 | $0 | $153,310 | $153,310 |
| 2018 | $90,560 | $62,750 | $0 | $153,310 | $153,310 |
| 2017 | $107,450 | $40,200 | $0 | $147,650 | $147,650 |
| 2016 | $97,680 | $40,200 | $0 | $137,880 | $137,880 |
| 2015 | $93,030 | $40,200 | $0 | $133,230 | $133,230 |
| 2014 | $88,600 | $40,200 | $0 | $128,800 | $128,800 |
| 2013 | $88,600 | $40,200 | $0 | $128,800 | $128,800 |
| 2012 | $88,600 | $40,200 | $0 | $0 | $0 |
| 2011 | $95,400 | $40,200 | $0 | $0 | $0 |
| 2010 | $102,500 | $40,200 | $0 | $0 | $0 |
| 2009 | $118,400 | $40,200 | $0 | $0 | $0 |
| 2008 | $92,000 | $40,200 | $0 | $0 | $0 |
| 2007 | $92,000 | $40,200 | $0 | $0 | $0 |
Deed and Sales History
| 1 | 07/20/2020 | SWD | STATUTORY WARRANTY DEED | BROWN RICK & KATHLEEN | APARICIO ZACARIAS ESPANA | | | $230,000.00 | 139534 | 2020-07003 |
| 2 | 06/19/2002 | WARRANTY D | WARRANTY DEED | | | | | $99,500.00 | 99746 | 2002-0007083 |
Payout Agreement
| No payout information available.. |