Property
Account |
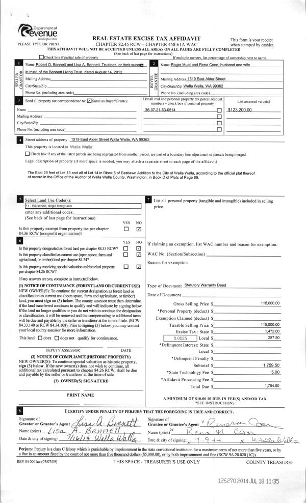
| Property ID: | 7845 | Abbreviated Legal Description: | EASTLAWN E 29' OF LOT 13 BLK 5; LOT 14 BLK 5 |
| Parcel Number: | 360721530514 | Agent Code: | |
| Type: | Real | | |
| Tax Area: | 1 - OL-140-F | Land Use Code | 11 |
| Open Space: | N | DFL | N |
| Historic Property: | N | Remodel Property: | N |
| Multi-Family Redevelopment: | N | | |
| Township: | 7 | Section: | 21 |
| Range: | 36 |
Location |
| Address: | 1519 E ALDER ST WA 99362 | Mapsco: | |
| Neighborhood: | A-SFR | Map ID: | |
| Neighborhood CD: | 513011 |
Owner |
| Name: | MUAT ROGER | Owner ID: | 55196 |
| Mailing Address: | RENA COON 1519 E ALDER ST WALLA WALLA, WA 99362 | % Ownership: | 100.0000000000% |
| | | Exemptions: | |
Taxes and Assessment Details
Property Tax Information as of
02/21/2026
Click on "Statement Details" to expand or collapse a tax statement.
* Please enter a valid date ** Please enter a valid date *
Statement Details |
| | TOTAL: | $0.00 | $0.00 | $0.00 | $0.00 | $0.00 | $0.00 |
|
| | $0.00 | $0.00 | $0.00 | $0.00 | $0.00 | $0.00 |
Values
| (+) Improvement Homesite Value: | + | $0 | |
| (+) Improvement Non-Homesite Value: | + | $170,210 | |
| (+) Land Homesite Value: | + | $0 | |
| (+) Land Non-Homesite Value: | + | $54,000 | |
| (+) Curr Use (HS): | + | $0 | $0 |
| (+) Curr Use (NHS): | + | $0 | $0 |
| | | -------------------------- | |
| (=) Market Value: | = | $224,210 | |
| (–) Productivity Loss: | – | $0 | |
| | | -------------------------- | |
| (=) Subtotal: | = | $224,210 | |
| (+) Senior Appraised Value: | + | $0 | |
| (+) Non-Senior Appraised Value: | + | $224,210 | |
| | | -------------------------- | |
| (=) Total Appraised Value: | = | $224,210 | |
| (–) Senior Exemption Loss: | – | $0 | |
| (–) Exemption Loss: | – | $0 | |
| | | -------------------------- | |
| (=) Taxable Value: | = | $224,210 | |
Taxing Jurisdiction
| Owner: | MUAT ROGER | | |
| % Ownership: | 100.0000000000% | | |
| Total Value: | $224,210 | | |
| Tax Area: | 1 - OL-140-F |
| CERFD | CURRENT EXPENSE REFUND 010 | 0.0000000000 | $224,210 | $224,210 | $0.00 | | |
| CURREXP | CURRENT EXPENSE 010 | 1.0175366760 | $224,210 | $224,210 | $228.14 | | |
| HUMNSERV | HUMAN SERVICES 119 | 0.0250000000 | $224,210 | $224,210 | $5.61 | | |
| SLDREL | SOLDIERS RELIEF 121 | 0.0155990005 | $224,210 | $224,210 | $3.50 | | |
| EMERGSER | EMS 147 | 0.3792580840 | $224,210 | $224,210 | $85.03 | | |
| EMSRFD | EMS REFUND 147 | 0.0000000000 | $224,210 | $224,210 | $0.00 | | |
| PORTRFD | PORT REFUND 640 | 0.0000000000 | $224,210 | $224,210 | $0.00 | | |
| PORTWWGEN | PORT OF WW 640 | 0.2460186015 | $224,210 | $224,210 | $55.16 | | |
| SD140BOND | SD #140 BOND 764 | 0.8342371393 | $224,210 | $224,210 | $187.04 | | |
| SD140GEN | SD #140 GENERAL 760 | 2.0646500647 | $224,210 | $224,210 | $462.92 | | |
| ST2 | STATE SCHOOL PART 2 600 | 0.8131451643 | $224,210 | $224,210 | $182.32 | | |
| STATESCHL | STATE SCHOOL 600 | 1.5158548041 | $224,210 | $224,210 | $339.87 | | |
| STREFUND | STATE REFUND LEVY 603 | 0.0000000000 | $224,210 | $224,210 | $0.00 | | |
| CWWBOND | C OF WW BOND 643 | 0.2760494372 | $224,210 | $224,210 | $61.89 | | |
| CWWGEN | CITY OF WW 631 | 1.6100204973 | $224,210 | $224,210 | $360.98 | | |
| CWWRFD | CITY OF WALLA WALLA REFUND 631 | 0.0000000000 | $224,210 | $224,210 | $0.00 | | |
| | Total Tax Rate: | 8.7973694689 | | | | | |
| | | | | Taxes w/Current Exemptions: | $1,972.46 | | |
| | | | | Taxes w/o Exemptions: | $1,972.46 | | |
Improvement / Building
| Improvement #1: | RESIDENTIAL | State Code: | 11 | 1032.0 sqft | Value: | $170,210 |
| Exterior Wall: | PLYWOOD | Heating/Cooling: | WARM & COOLED AIR | | Number of Bathrooms: | 1 | Number of Bedrooms: | 2 | | Plumbing: | 6 | Roof Covering: | COMP SHINGLE |
|
| | Type | Description | Class CD | Sub Class CD | Year Built | Area |
| | MA | Main Area | 1 | 25 | 1950 | 1032.0 |
| | SI1 | SITE IMPROVEMENT | 1 | 25 | 1950 | 1.0 |
| | OPS | OPEN PORCH W/STEPS | 1 | 25 | 1950 | 25.0 |
| | DTG | Detached Garage | 1 | 25 | 1950 | 640.0 |
| | SWP | Solid Wall Porch | 1 | 25 | 1950 | 160.0 |
Sketch
Property Image
Land
| 1 | RES 1 | Converted: Residential | 0.1983 | 8640.00 | 0.00 | 0.00 | 1.00 | $54,000 | $0 |
Roll Value History
| 2026 | N/A | N/A | N/A | N/A | N/A |
| 2025 | $158,710 | $86,400 | $0 | $245,110 | $245,110 |
| 2024 | $151,150 | $86,400 | $0 | $237,550 | $237,550 |
| 2023 | $170,210 | $54,000 | $0 | $224,210 | $224,210 |
| 2022 | $154,740 | $54,000 | $0 | $208,740 | $208,740 |
| 2021 | $128,950 | $54,000 | $0 | $182,950 | $182,950 |
| 2020 | $92,110 | $54,000 | $0 | $146,110 | $146,110 |
| 2019 | $92,110 | $54,000 | $0 | $146,110 | $146,110 |
| 2018 | $87,720 | $54,000 | $0 | $141,720 | $141,720 |
| 2017 | $87,710 | $34,600 | $0 | $122,310 | $122,310 |
| 2016 | $79,740 | $34,600 | $0 | $114,340 | $114,340 |
| 2015 | $79,740 | $34,600 | $0 | $114,340 | $114,340 |
| 2014 | $88,600 | $34,600 | $0 | $123,200 | $123,200 |
| 2013 | $88,600 | $34,600 | $0 | $123,200 | $123,200 |
| 2012 | $106,100 | $34,600 | $0 | $0 | $0 |
| 2011 | $106,100 | $34,600 | $0 | $0 | $0 |
| 2010 | $99,400 | $34,600 | $0 | $0 | $0 |
| 2009 | $114,300 | $34,600 | $0 | $0 | $0 |
| 2008 | $79,900 | $34,600 | $0 | $0 | $0 |
| 2007 | $79,900 | $34,600 | $0 | $0 | $0 |
Deed and Sales History
| 1 | 07/18/2014 | SWD | STATUTORY WARRANTY DEED | BENNETT LIVING TRUST | MUAT ROGER | | | $115,000.00 | 126270 | 2014-05029 |
| 2 | 08/31/2012 | WARRANTY D | WARRANTY DEED | BENNETT, ROBERT O & LIZABETH | BENNETT LIVING TRUST | | | $0.00 | 122567 | 2012-07668 |
| 3 | 06/09/1983 | WARRANTY D | WARRANTY DEED | | | | | $49,900.00 | 0 | 1388-304009 |
Payout Agreement
| No payout information available.. |