Property
Account |
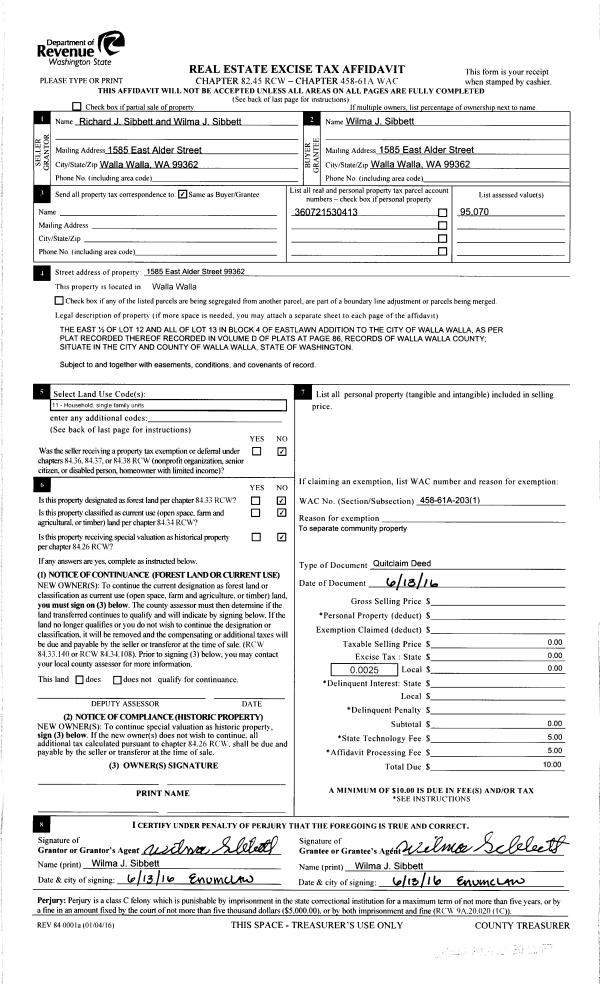
| Property ID: | 7838 | Abbreviated Legal Description: | EASTLAWN LOT 13 & E 1/2 OF LOT 12 BLK 4 |
| Parcel Number: | 360721530413 | Agent Code: | |
| Type: | Real | | |
| Tax Area: | 1 - OL-140-F | Land Use Code | 11 |
| Open Space: | N | DFL | N |
| Historic Property: | N | Remodel Property: | N |
| Multi-Family Redevelopment: | N | | |
| Township: | 7 | Section: | 21 |
| Range: | 36 |
Location |
| Address: | 1585 E ALDER ST WA 99362 | Mapsco: | |
| Neighborhood: | A-SFR | Map ID: | |
| Neighborhood CD: | 513011 |
Owner |
| Name: | SIBBETT WILMA J | Owner ID: | 60436 |
| Mailing Address: | 1585 E ALDER ST WALLA WALLA, WA 99362 | % Ownership: | 100.0000000000% |
| | | Exemptions: | |
Taxes and Assessment Details
Values
| (+) Improvement Homesite Value: | + | $153,000 | |
| (+) Improvement Non-Homesite Value: | + | $0 | |
| (+) Land Homesite Value: | + | $49,500 | |
| (+) Land Non-Homesite Value: | + | $0 | |
| (+) Curr Use (HS): | + | $0 | $0 |
| (+) Curr Use (NHS): | + | $0 | $0 |
| | | -------------------------- | |
| (=) Market Value: | = | $202,500 | |
| (–) Productivity Loss: | – | $0 | |
| | | -------------------------- | |
| (=) Subtotal: | = | $202,500 | |
| (+) Senior Appraised Value: | + | $0 | |
| (+) Non-Senior Appraised Value: | + | $202,500 | |
| | | -------------------------- | |
| (=) Total Appraised Value: | = | $202,500 | |
| (–) Senior Exemption Loss: | – | $0 | |
| (–) Exemption Loss: | – | $0 | |
| | | -------------------------- | |
| (=) Taxable Value: | = | $202,500 | |
Taxing Jurisdiction
| Owner: | SIBBETT WILMA J | | |
| % Ownership: | 100.0000000000% | | |
| Total Value: | $202,500 | | |
| Tax Area: | 1 - OL-140-F |
| CERFD | CURRENT EXPENSE REFUND 010 | 0.0000000000 | $202,500 | $202,500 | $0.00 | | |
| CURREXP | CURRENT EXPENSE 010 | 1.0175366760 | $202,500 | $202,500 | $206.05 | | |
| HUMNSERV | HUMAN SERVICES 119 | 0.0250000000 | $202,500 | $202,500 | $5.06 | | |
| SLDREL | SOLDIERS RELIEF 121 | 0.0155990005 | $202,500 | $202,500 | $3.16 | | |
| EMERGSER | EMS 147 | 0.3792580840 | $202,500 | $202,500 | $76.80 | | |
| EMSRFD | EMS REFUND 147 | 0.0000000000 | $202,500 | $202,500 | $0.00 | | |
| PORTRFD | PORT REFUND 640 | 0.0000000000 | $202,500 | $202,500 | $0.00 | | |
| PORTWWGEN | PORT OF WW 640 | 0.2460186015 | $202,500 | $202,500 | $49.82 | | |
| SD140BOND | SD #140 BOND 764 | 0.8342371393 | $202,500 | $202,500 | $168.93 | | |
| SD140GEN | SD #140 GENERAL 760 | 2.0646500647 | $202,500 | $202,500 | $418.09 | | |
| ST2 | STATE SCHOOL PART 2 600 | 0.8131451643 | $202,500 | $202,500 | $164.66 | | |
| STATESCHL | STATE SCHOOL 600 | 1.5158548041 | $202,500 | $202,500 | $306.96 | | |
| STREFUND | STATE REFUND LEVY 603 | 0.0000000000 | $202,500 | $202,500 | $0.00 | | |
| CWWBOND | C OF WW BOND 643 | 0.2760494372 | $202,500 | $202,500 | $55.90 | | |
| CWWGEN | CITY OF WW 631 | 1.6100204973 | $202,500 | $202,500 | $326.03 | | |
| CWWRFD | CITY OF WALLA WALLA REFUND 631 | 0.0000000000 | $202,500 | $202,500 | $0.00 | | |
| | Total Tax Rate: | 8.7973694689 | | | | | |
| | | | | Taxes w/Current Exemptions: | $1,781.46 | | |
| | | | | Taxes w/o Exemptions: | $1,781.46 | | |
Improvement / Building
| Improvement #1: | RESIDENTIAL | State Code: | 11 | 756.0 sqft | Value: | $153,000 |
| Exterior Wall: | STUCCO | Heating/Cooling: | FLOOR FURNACE | | Number of Bathrooms: | 1 | Number of Bedrooms: | 2 | | Plumbing: | 6 | Roof Covering: | COMP SHINGLE |
|
| | Type | Description | Class CD | Sub Class CD | Year Built | Area |
| | MA | Main Area | 1 | 30 | 1946 | 756.0 |
| | SI1 | SITE IMPROVEMENT | 1 | 30 | 1946 | 1.0 |
| | BASE | BASEMENT | 1 | 30 | 1946 | 320.0 |
| | WDR | WOOD DECK W/ROOF | 1 | 30 | 1946 | 120.0 |
| | DTG | Detached Garage | 1 | 30 | 1946 | 504.0 |
| | SWP | Solid Wall Porch | 1 | 30 | 1946 | 42.0 |
Sketch
Property Image
Land
| 1 | RES 1 | Converted: Residential | 0.1818 | 7920.00 | 0.00 | 0.00 | 1.00 | $49,500 | $0 |
Roll Value History
| 2026 | N/A | N/A | N/A | N/A | N/A |
| 2025 | $190,960 | $79,200 | $0 | $270,160 | $270,160 |
| 2024 | $40,630 | $79,200 | $0 | $119,830 | $119,830 |
| 2023 | $153,000 | $49,500 | $0 | $202,500 | $202,500 |
| 2022 | $137,470 | $49,500 | $0 | $186,970 | $40,560 |
| 2021 | $105,750 | $49,500 | $0 | $155,250 | $40,560 |
| 2020 | $70,500 | $49,500 | $0 | $120,000 | $40,560 |
| 2019 | $70,500 | $49,500 | $0 | $120,000 | $40,560 |
| 2018 | $67,140 | $49,500 | $0 | $116,640 | $40,560 |
| 2017 | $69,700 | $31,700 | $0 | $101,400 | $40,560 |
| 2016 | $63,370 | $31,700 | $0 | $95,070 | $95,070 |
| 2015 | $63,370 | $31,700 | $0 | $95,070 | $95,070 |
| 2014 | $55,100 | $31,700 | $0 | $86,800 | $86,800 |
| 2013 | $55,100 | $31,700 | $0 | $86,800 | $86,800 |
| 2012 | $32,500 | $31,700 | $0 | $0 | $0 |
| 2011 | $29,400 | $31,700 | $0 | $0 | $0 |
| 2010 | $29,400 | $31,700 | $0 | $0 | $0 |
| 2009 | $36,200 | $31,700 | $0 | $0 | $0 |
| 2008 | $36,200 | $31,700 | $0 | $0 | $0 |
| 2007 | $36,200 | $31,700 | $0 | $0 | $0 |
Deed and Sales History
| 1 | 11/27/2023 | SWD | STATUTORY WARRANTY DEED | SIBBETT WILMA J | VENTURA ELMER & XIOMARA E GARCIA | | | $120,000.00 | 146849 | 2023-06869 |
| 2 | 06/13/2016 | QCD | QUIT CLAIM DEED | SIBBETT RICHARD J & WILMA J | SIBBETT WILMA J | | | $0.00 | 130448 | 2016-04702 |
| 3 | 08/20/1974 | WARRANTY D | WARRANTY DEED | | | | | $0.00 | 39613 | 1805-38693 |
Payout Agreement
| No payout information available.. |