Property
Account |
| Property ID: | 7837 | Abbreviated Legal Description: | EASTLAWN LOT 10 BLK 4 LESS TAX 1 |
| Parcel Number: | 360721530410 | Agent Code: | |
| Type: | Real | | |
| Tax Area: | 1 - OL-140-F | Land Use Code | 11 |
| Open Space: | N | DFL | N |
| Historic Property: | N | Remodel Property: | N |
| Multi-Family Redevelopment: | N | | |
| Township: | 7 | Section: | 21 |
| Range: | 36 |
Location |
| Address: | 1571 E ALDER ST WA 99362 | Mapsco: | |
| Neighborhood: | A-SFR | Map ID: | |
| Neighborhood CD: | 513011 |
Owner |
| Name: | ALEXANDER JANICE J TRUST | Owner ID: | 61438 |
| Mailing Address: | 100 ANGELO PL WALLA WALLA, WA 99362 | % Ownership: | 100.0000000000% |
| | | Exemptions: | |
Taxes and Assessment Details
Values
| (+) Improvement Homesite Value: | + | $0 | |
| (+) Improvement Non-Homesite Value: | + | $215,300 | |
| (+) Land Homesite Value: | + | $0 | |
| (+) Land Non-Homesite Value: | + | $33,000 | |
| (+) Curr Use (HS): | + | $0 | $0 |
| (+) Curr Use (NHS): | + | $0 | $0 |
| | | -------------------------- | |
| (=) Market Value: | = | $248,300 | |
| (–) Productivity Loss: | – | $0 | |
| | | -------------------------- | |
| (=) Subtotal: | = | $248,300 | |
| (+) Senior Appraised Value: | + | $0 | |
| (+) Non-Senior Appraised Value: | + | $248,300 | |
| | | -------------------------- | |
| (=) Total Appraised Value: | = | $248,300 | |
| (–) Senior Exemption Loss: | – | $0 | |
| (–) Exemption Loss: | – | $0 | |
| | | -------------------------- | |
| (=) Taxable Value: | = | $248,300 | |
Taxing Jurisdiction
| Owner: | ALEXANDER JANICE J TRUST | | |
| % Ownership: | 100.0000000000% | | |
| Total Value: | $248,300 | | |
| Tax Area: | 1 - OL-140-F |
| CERFD | CURRENT EXPENSE REFUND 010 | 0.0000000000 | $248,300 | $248,300 | $0.00 | | |
| CURREXP | CURRENT EXPENSE 010 | 1.0175366760 | $248,300 | $248,300 | $252.65 | | |
| HUMNSERV | HUMAN SERVICES 119 | 0.0250000000 | $248,300 | $248,300 | $6.21 | | |
| SLDREL | SOLDIERS RELIEF 121 | 0.0155990005 | $248,300 | $248,300 | $3.87 | | |
| EMERGSER | EMS 147 | 0.3792580840 | $248,300 | $248,300 | $94.17 | | |
| EMSRFD | EMS REFUND 147 | 0.0000000000 | $248,300 | $248,300 | $0.00 | | |
| PORTRFD | PORT REFUND 640 | 0.0000000000 | $248,300 | $248,300 | $0.00 | | |
| PORTWWGEN | PORT OF WW 640 | 0.2460186015 | $248,300 | $248,300 | $61.09 | | |
| SD140BOND | SD #140 BOND 764 | 0.8342371393 | $248,300 | $248,300 | $207.14 | | |
| SD140GEN | SD #140 GENERAL 760 | 2.0646500647 | $248,300 | $248,300 | $512.65 | | |
| ST2 | STATE SCHOOL PART 2 600 | 0.8131451643 | $248,300 | $248,300 | $201.90 | | |
| STATESCHL | STATE SCHOOL 600 | 1.5158548041 | $248,300 | $248,300 | $376.39 | | |
| STREFUND | STATE REFUND LEVY 603 | 0.0000000000 | $248,300 | $248,300 | $0.00 | | |
| CWWBOND | C OF WW BOND 643 | 0.2760494372 | $248,300 | $248,300 | $68.54 | | |
| CWWGEN | CITY OF WW 631 | 1.6100204973 | $248,300 | $248,300 | $399.77 | | |
| CWWRFD | CITY OF WALLA WALLA REFUND 631 | 0.0000000000 | $248,300 | $248,300 | $0.00 | | |
| | Total Tax Rate: | 8.7973694689 | | | | | |
| | | | | Taxes w/Current Exemptions: | $2,184.38 | | |
| | | | | Taxes w/o Exemptions: | $2,184.38 | | |
Improvement / Building
| Improvement #1: | RESIDENTIAL | State Code: | 11 | 1144.0 sqft | Value: | $215,300 |
| Exterior Wall: | VINYL | Heating/Cooling: | WARM & COOLED AIR | | Number of Bathrooms: | 1 | Number of Bedrooms: | 1 | | Plumbing: | 6 | Roof Covering: | COMP SHINGLE |
|
| | Type | Description | Class CD | Sub Class CD | Year Built | Area |
| | MA | Main Area | 1 | 20 | 2001 | 1144.0 |
| | SI1 | SITE IMPROVEMENT | 1 | 20 | 2001 | 1.0 |
| | RCD | WOOD DECK W/ROOF, CEILED | 1 | 20 | 2001 | 220.0 |
Sketch
Property Image
Land
| 1 | RES 1 | Converted: Residential | 0.1212 | 5280.00 | 0.00 | 0.00 | 1.00 | $33,000 | $0 |
Roll Value History
| 2026 | N/A | N/A | N/A | N/A | N/A |
| 2025 | $220,540 | $52,800 | $0 | $273,340 | $273,340 |
| 2024 | $200,490 | $52,800 | $0 | $253,290 | $253,290 |
| 2023 | $215,300 | $33,000 | $0 | $248,300 | $248,300 |
| 2022 | $215,300 | $33,000 | $0 | $248,300 | $248,300 |
| 2021 | $153,780 | $33,000 | $0 | $186,780 | $186,780 |
| 2020 | $102,520 | $33,000 | $0 | $135,520 | $135,520 |
| 2019 | $102,520 | $33,000 | $0 | $135,520 | $135,520 |
| 2018 | $97,640 | $33,000 | $0 | $130,640 | $130,640 |
| 2017 | $102,700 | $21,100 | $0 | $123,800 | $123,800 |
| 2016 | $97,810 | $21,100 | $0 | $118,910 | $118,910 |
| 2015 | $93,150 | $21,100 | $0 | $114,250 | $114,250 |
| 2014 | $81,000 | $21,100 | $0 | $102,100 | $102,100 |
| 2013 | $81,000 | $21,100 | $0 | $102,100 | $102,100 |
| 2012 | $81,000 | $21,100 | $0 | $0 | $0 |
| 2011 | $81,000 | $21,100 | $0 | $0 | $0 |
| 2010 | $81,000 | $21,100 | $0 | $0 | $0 |
| 2009 | $92,300 | $21,100 | $0 | $0 | $0 |
| 2008 | $69,600 | $21,100 | $0 | $0 | $0 |
| 2007 | $69,600 | $21,100 | $0 | $0 | $0 |
Deed and Sales History
| 1 | 02/07/2024 | SWD | STATUTORY WARRANTY DEED | ALEXANDER JANICE J TRUST | GREENE JONATHAN MICHAEL | | | $290,000.00 | 147122 | 2024-00650 |
| 2 | 07/31/2017 | DPR | DEED OF PERSONAL REPRESENTATIVE | ALEXANDER JOE E & JANICE | ALEXANDER JANICE J TRUST | | | $0.00 | 132898 | 2017-05894 |
| 3 | 10/07/2016 | SWD | STATUTORY WARRANTY DEED | DESALVO DEVEN CHARLES | ALEXANDER JOE E & JANICE | | | $134,900.00 | 131222 | 2016-08300 |
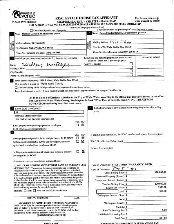
| 4 | 05/15/2014 | SWD | STATUTORY WARRANTY DEED | DUNN MATTHEW A | DESALVO DEVEN CHARLES | | | $120,000.00 | 125893 | 2014-03308 |
| 5 | 04/15/1991 | WARRANTY D | WARRANTY DEED | | | | | $10,000.00 | 0 | 1889-102191 |
Payout Agreement
| No payout information available.. |