Property
Account |
| Property ID: | 7831 | Abbreviated Legal Description: | EASTLAWN E 40' OF LOT 18 & W 12' OF LOT 19 BLK 3 |
| Parcel Number: | 360721530318 | Agent Code: | |
| Type: | Real | | |
| Tax Area: | 1 - OL-140-F | Land Use Code | 11 |
| Open Space: | N | DFL | N |
| Historic Property: | N | Remodel Property: | N |
| Multi-Family Redevelopment: | N | | |
| Township: | 7 | Section: | 21 |
| Range: | 36 |
Location |
| Address: | 1527 GRANVILLE ST WA 99362 | Mapsco: | |
| Neighborhood: | A-SFR | Map ID: | |
| Neighborhood CD: | 513011 |
Owner |
| Name: | WEAVER JERRELL A | Owner ID: | 57032 |
| Mailing Address: | 1527 GRANVILLE ST WALLA WALLA, WA 99362 | % Ownership: | 100.0000000000% |
| | | Exemptions: | |
Taxes and Assessment Details
Values
| (+) Improvement Homesite Value: | + | $0 | |
| (+) Improvement Non-Homesite Value: | + | $136,920 | |
| (+) Land Homesite Value: | + | $0 | |
| (+) Land Non-Homesite Value: | + | $26,000 | |
| (+) Curr Use (HS): | + | $0 | $0 |
| (+) Curr Use (NHS): | + | $0 | $0 |
| | | -------------------------- | |
| (=) Market Value: | = | $162,920 | |
| (–) Productivity Loss: | – | $0 | |
| | | -------------------------- | |
| (=) Subtotal: | = | $162,920 | |
| (+) Senior Appraised Value: | + | $0 | |
| (+) Non-Senior Appraised Value: | + | $162,920 | |
| | | -------------------------- | |
| (=) Total Appraised Value: | = | $162,920 | |
| (–) Senior Exemption Loss: | – | $0 | |
| (–) Exemption Loss: | – | $0 | |
| | | -------------------------- | |
| (=) Taxable Value: | = | $162,920 | |
Taxing Jurisdiction
| Owner: | WEAVER JERRELL A | | |
| % Ownership: | 100.0000000000% | | |
| Total Value: | $162,920 | | |
| Tax Area: | 1 - OL-140-F |
| CERFD | CURRENT EXPENSE REFUND 010 | 0.0000000000 | $162,920 | $162,920 | $0.00 | | |
| CURREXP | CURRENT EXPENSE 010 | 1.0175366760 | $162,920 | $162,920 | $165.78 | | |
| HUMNSERV | HUMAN SERVICES 119 | 0.0250000000 | $162,920 | $162,920 | $4.07 | | |
| SLDREL | SOLDIERS RELIEF 121 | 0.0155990005 | $162,920 | $162,920 | $2.54 | | |
| EMERGSER | EMS 147 | 0.3792580840 | $162,920 | $162,920 | $61.79 | | |
| EMSRFD | EMS REFUND 147 | 0.0000000000 | $162,920 | $162,920 | $0.00 | | |
| PORTRFD | PORT REFUND 640 | 0.0000000000 | $162,920 | $162,920 | $0.00 | | |
| PORTWWGEN | PORT OF WW 640 | 0.2460186015 | $162,920 | $162,920 | $40.08 | | |
| SD140BOND | SD #140 BOND 764 | 0.8342371393 | $162,920 | $162,920 | $135.91 | | |
| SD140GEN | SD #140 GENERAL 760 | 2.0646500647 | $162,920 | $162,920 | $336.37 | | |
| ST2 | STATE SCHOOL PART 2 600 | 0.8131451643 | $162,920 | $162,920 | $132.48 | | |
| STATESCHL | STATE SCHOOL 600 | 1.5158548041 | $162,920 | $162,920 | $246.96 | | |
| STREFUND | STATE REFUND LEVY 603 | 0.0000000000 | $162,920 | $162,920 | $0.00 | | |
| CWWBOND | C OF WW BOND 643 | 0.2760494372 | $162,920 | $162,920 | $44.97 | | |
| CWWGEN | CITY OF WW 631 | 1.6100204973 | $162,920 | $162,920 | $262.30 | | |
| CWWRFD | CITY OF WALLA WALLA REFUND 631 | 0.0000000000 | $162,920 | $162,920 | $0.00 | | |
| | Total Tax Rate: | 8.7973694689 | | | | | |
| | | | | Taxes w/Current Exemptions: | $1,433.25 | | |
| | | | | Taxes w/o Exemptions: | $1,433.25 | | |
Improvement / Building
| Improvement #1: | RESIDENTIAL | State Code: | 11 | 1003.0 sqft | Value: | $136,920 |
| Exterior Wall: | STUCCO | Heating/Cooling: | BASEBOARD ELECTRIC | | Number of Bathrooms: | 1 | Number of Bedrooms: | 3 | | Plumbing: | 6 | Roof Covering: | COMP SHINGLE |
|
| | Type | Description | Class CD | Sub Class CD | Year Built | Area |
| | MA | Main Area | 1 | 20 | 1941 | 1003.0 |
| | SI1 | SITE IMPROVEMENT | 1 | 20 | 1941 | 1.0 |
| | CPC | COVERED CARPORT/PATIO | 1 | 20 | 1941 | 30.0 |
Sketch
Property Image
Land
| 1 | RES 1 | Converted: Residential | 0.0955 | 4160.00 | 0.00 | 0.00 | 1.00 | $26,000 | $0 |
Roll Value History
| 2026 | N/A | N/A | N/A | N/A | N/A |
| 2025 | $127,910 | $41,600 | $0 | $169,510 | $169,510 |
| 2024 | $127,910 | $41,600 | $0 | $169,510 | $169,510 |
| 2023 | $136,920 | $26,000 | $0 | $162,920 | $162,920 |
| 2022 | $136,920 | $26,000 | $0 | $162,920 | $162,920 |
| 2021 | $68,460 | $26,000 | $0 | $94,460 | $94,460 |
| 2020 | $68,460 | $26,000 | $0 | $94,460 | $94,460 |
| 2019 | $68,460 | $26,000 | $0 | $94,460 | $94,460 |
| 2018 | $68,460 | $26,000 | $0 | $94,460 | $94,460 |
| 2017 | $88,700 | $16,600 | $0 | $105,300 | $105,300 |
| 2016 | $73,920 | $16,600 | $0 | $90,520 | $90,520 |
| 2015 | $67,200 | $16,600 | $0 | $83,800 | $83,800 |
| 2014 | $67,200 | $16,600 | $0 | $83,800 | $83,800 |
| 2013 | $67,200 | $16,600 | $0 | $83,800 | $83,800 |
| 2012 | $67,200 | $16,600 | $0 | $0 | $0 |
| 2011 | $76,500 | $16,600 | $0 | $0 | $0 |
| 2010 | $76,500 | $16,600 | $0 | $0 | $0 |
| 2009 | $86,800 | $16,600 | $0 | $0 | $0 |
| 2008 | $66,100 | $16,600 | $0 | $0 | $0 |
| 2007 | $66,100 | $16,600 | $0 | $0 | $0 |
Deed and Sales History
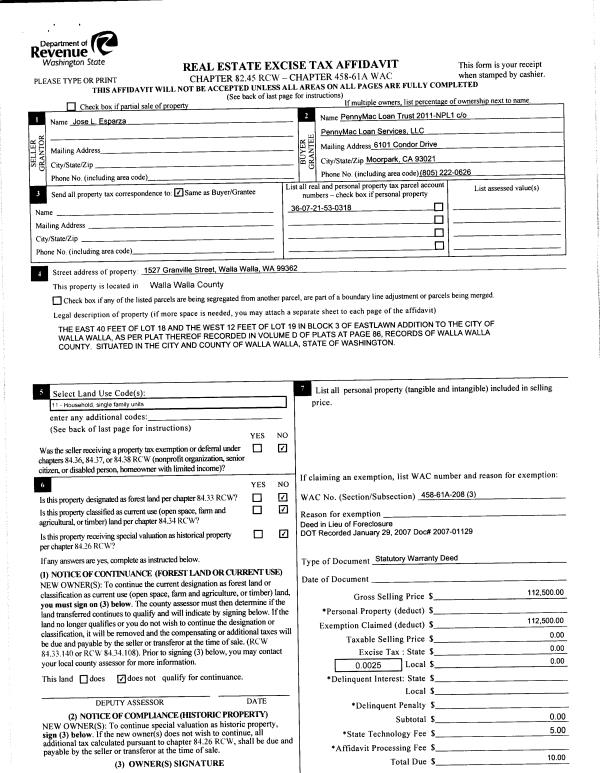
| 1 | 07/24/2015 | SWP | Special Warranty Deed | PENNYMAC LOANS TRUST 2011-NPL1 | WEAVER JERRELL A | | | $89,900.00 | 128462 | 2015-06324 |
| 2 | 12/24/2014 | SWD | STATUTORY WARRANTY DEED | ESPARZA JOSE L | PENNYMAC LOANS TRUST 2011-NPL1 | | | $112,500.00 | 127180 | 2014-09386 |
| 3 | 03/27/2006 | QCD | QUIT CLAIM DEED | ESPARZA, RUTH | ESPARZA, JOSE L | | | | 109900 | 2006-03469 |
| 4 | 03/27/2006 | WARRANTY D | WARRANTY DEED | CASTILLO, ELIAS O & DEBRA E | ESPARZA, JOSE L | | | $90,000.00 | 109901 | 2006-03470 |
| 5 | 06/13/1997 | WARRANTY D | WARRANTY DEED | | | | | $48,900.00 | 88340 | 2539-705353 |
Payout Agreement
| No payout information available.. |