Property
Account |
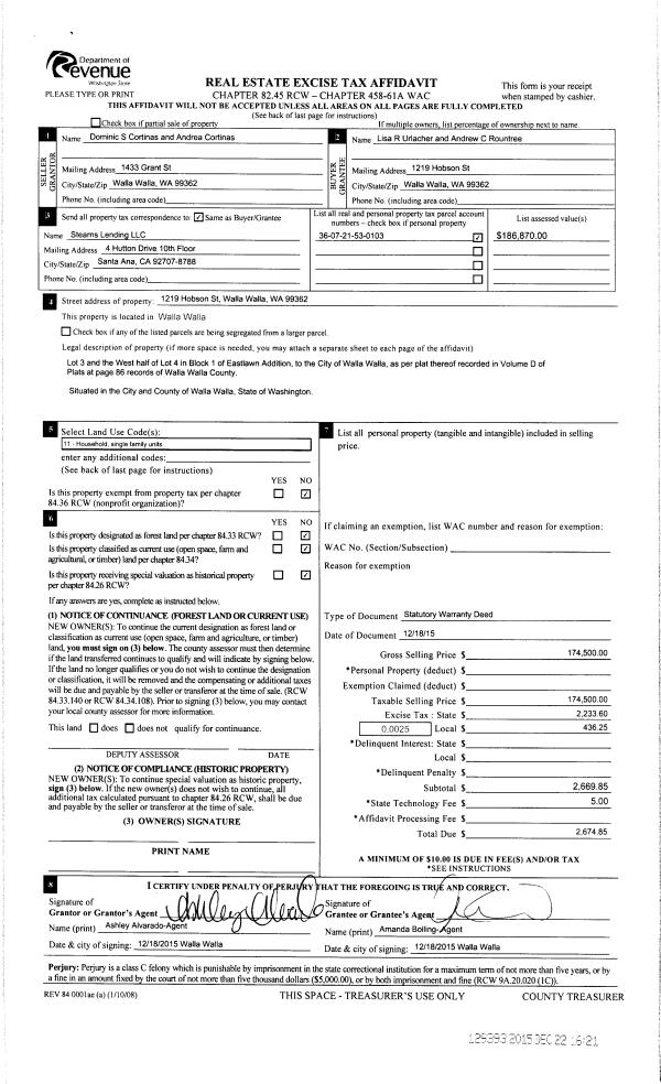
| Property ID: | 7820 | Abbreviated Legal Description: | EASTLAWN LOT 3 & W1/2 OF LOT 4 BLK 1 |
| Parcel Number: | 360721530103 | Agent Code: | |
| Type: | Real | | |
| Tax Area: | 1 - OL-140-F | Land Use Code | 11 |
| Open Space: | N | DFL | N |
| Historic Property: | N | Remodel Property: | N |
| Multi-Family Redevelopment: | N | | |
| Township: | 7 | Section: | 21 |
| Range: | 36 |
Location |
| Address: | 1219 HOBSON ST WA 99362 | Mapsco: | |
| Neighborhood: | A-SFR | Map ID: | |
| Neighborhood CD: | 513011 |
Owner |
| Name: | HINES ALLISON & ROBERT TABACCO | Owner ID: | 66807 |
| Mailing Address: | 1219 HOBSON ST WALLA WALLA, WA 99362 | % Ownership: | 100.0000000000% |
| | | Exemptions: | |
Taxes and Assessment Details
Property Tax Information as of
02/21/2026
Click on "Statement Details" to expand or collapse a tax statement.
* Please enter a valid date ** Please enter a valid date *
Statement Details |
| | TOTAL: | $0.00 | $0.00 | $0.00 | $0.00 | $0.00 | $0.00 |
|
| | $0.00 | $0.00 | $0.00 | $0.00 | $0.00 | $0.00 |
Values
| (+) Improvement Homesite Value: | + | $0 | |
| (+) Improvement Non-Homesite Value: | + | $248,960 | |
| (+) Land Homesite Value: | + | $0 | |
| (+) Land Non-Homesite Value: | + | $55,130 | |
| (+) Curr Use (HS): | + | $0 | $0 |
| (+) Curr Use (NHS): | + | $0 | $0 |
| | | -------------------------- | |
| (=) Market Value: | = | $304,090 | |
| (–) Productivity Loss: | – | $0 | |
| | | -------------------------- | |
| (=) Subtotal: | = | $304,090 | |
| (+) Senior Appraised Value: | + | $0 | |
| (+) Non-Senior Appraised Value: | + | $304,090 | |
| | | -------------------------- | |
| (=) Total Appraised Value: | = | $304,090 | |
| (–) Senior Exemption Loss: | – | $0 | |
| (–) Exemption Loss: | – | $0 | |
| | | -------------------------- | |
| (=) Taxable Value: | = | $304,090 | |
Taxing Jurisdiction
| Owner: | HINES ALLISON & ROBERT TABACCO | | |
| % Ownership: | 100.0000000000% | | |
| Total Value: | $304,090 | | |
| Tax Area: | 1 - OL-140-F |
| CERFD | CURRENT EXPENSE REFUND 010 | 0.0000000000 | $304,090 | $304,090 | $0.00 | | |
| CURREXP | CURRENT EXPENSE 010 | 1.0175366760 | $304,090 | $304,090 | $309.42 | | |
| HUMNSERV | HUMAN SERVICES 119 | 0.0250000000 | $304,090 | $304,090 | $7.60 | | |
| SLDREL | SOLDIERS RELIEF 121 | 0.0155990005 | $304,090 | $304,090 | $4.74 | | |
| EMERGSER | EMS 147 | 0.3792580840 | $304,090 | $304,090 | $115.33 | | |
| EMSRFD | EMS REFUND 147 | 0.0000000000 | $304,090 | $304,090 | $0.00 | | |
| PORTRFD | PORT REFUND 640 | 0.0000000000 | $304,090 | $304,090 | $0.00 | | |
| PORTWWGEN | PORT OF WW 640 | 0.2460186015 | $304,090 | $304,090 | $74.81 | | |
| SD140BOND | SD #140 BOND 764 | 0.8342371393 | $304,090 | $304,090 | $253.68 | | |
| SD140GEN | SD #140 GENERAL 760 | 2.0646500647 | $304,090 | $304,090 | $627.84 | | |
| ST2 | STATE SCHOOL PART 2 600 | 0.8131451643 | $304,090 | $304,090 | $247.27 | | |
| STATESCHL | STATE SCHOOL 600 | 1.5158548041 | $304,090 | $304,090 | $460.96 | | |
| STREFUND | STATE REFUND LEVY 603 | 0.0000000000 | $304,090 | $304,090 | $0.00 | | |
| CWWBOND | C OF WW BOND 643 | 0.2760494372 | $304,090 | $304,090 | $83.94 | | |
| CWWGEN | CITY OF WW 631 | 1.6100204973 | $304,090 | $304,090 | $489.59 | | |
| CWWRFD | CITY OF WALLA WALLA REFUND 631 | 0.0000000000 | $304,090 | $304,090 | $0.00 | | |
| | Total Tax Rate: | 8.7973694689 | | | | | |
| | | | | Taxes w/Current Exemptions: | $2,675.18 | | |
| | | | | Taxes w/o Exemptions: | $2,675.18 | | |
Improvement / Building
| Improvement #1: | RESIDENTIAL | State Code: | 11 | 1600.0 sqft | Value: | $248,960 |
| Exterior Wall: | SIDING | Heating/Cooling: | WARM & COOLED AIR | | Number of Bathrooms: | 1.5 | Number of Bedrooms: | 4 | | Plumbing: | 9 | Roof Covering: | COMP SHINGLE |
|
| | Type | Description | Class CD | Sub Class CD | Year Built | Area |
| | MA | Main Area | 4 | 30 | 1953 | 1600.0 |
| | UPFL | Upper Floor (included in main area) | 4 | 30 | 1953 | 468.0 |
| | SI1 | SITE IMPROVEMENT | 4 | 30 | 1953 | 1.5 |
| | BASE | BASEMENT | 4 | 30 | 1953 | 575.0 |
| | BRF | BASEMENT - REC FINISH | 4 | 30 | 1953 | 575.0 |
| | S1F | Single One Story Fireplace | 4 | 30 | 1953 | 1.0 |
| | RPO | OPEN PORCH W/ROOF | 4 | 30 | 1953 | 200.0 |
| | DTG | Detached Garage | 4 | 30 | 1953 | 220.0 |
Sketch
Property Image
Land
| 1 | RES 1 | Converted: Residential | 0.2025 | 8820.00 | 0.00 | 0.00 | 1.00 | $55,130 | $0 |
Roll Value History
| 2026 | N/A | N/A | N/A | N/A | N/A |
| 2025 | $258,850 | $88,200 | $0 | $347,050 | $347,050 |
| 2024 | $215,710 | $88,200 | $0 | $303,910 | $303,910 |
| 2023 | $248,960 | $55,130 | $0 | $304,090 | $304,090 |
| 2022 | $226,330 | $55,130 | $0 | $281,460 | $281,460 |
| 2021 | $196,810 | $55,130 | $0 | $251,940 | $251,940 |
| 2020 | $171,140 | $55,130 | $0 | $226,270 | $226,270 |
| 2019 | $171,140 | $55,130 | $0 | $226,270 | $226,270 |
| 2018 | $166,150 | $55,130 | $0 | $221,280 | $221,280 |
| 2017 | $143,230 | $35,300 | $0 | $178,530 | $178,530 |
| 2016 | $136,410 | $35,300 | $0 | $171,710 | $171,710 |
| 2015 | $151,570 | $35,300 | $0 | $186,870 | $186,870 |
| 2014 | $131,800 | $35,300 | $0 | $167,100 | $167,100 |
| 2013 | $131,800 | $35,300 | $0 | $167,100 | $167,100 |
| 2012 | $131,800 | $35,300 | $0 | $0 | $0 |
| 2011 | $123,800 | $35,300 | $0 | $0 | $0 |
| 2010 | $109,300 | $35,300 | $0 | $0 | $0 |
| 2009 | $125,400 | $35,300 | $0 | $0 | $0 |
| 2008 | $98,600 | $35,300 | $0 | $0 | $0 |
| 2007 | $98,600 | $35,300 | $0 | $0 | $0 |
Deed and Sales History
| 1 | 02/28/2020 | SWD | STATUTORY WARRANTY DEED | URLACHER LISA R | HINES ALLISON & ROBERT TABACCO | | | $259,000.00 | 138719 | 2020-01903 |
| 2 | 12/22/2015 | SWD | STATUTORY WARRANTY DEED | CORTINAS DOMINIC S & ANDREA | URLACHER LISA R | | | $174,500.00 | 129393 | 2015-10973 |
| 3 | 06/04/1996 | WARRANTY D | WARRANTY DEED | | | | | $83,500.00 | 86248 | 2419-605573 |
Payout Agreement
| No payout information available.. |