Property
Account |
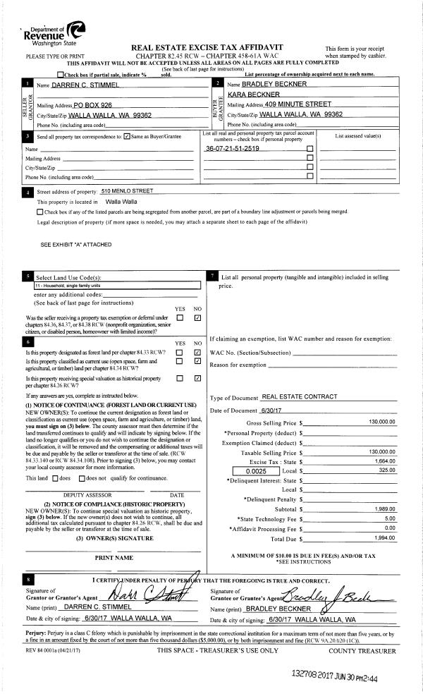
| Property ID: | 7794 | Abbreviated Legal Description: | GREEN PARK NLY 55' OF LOTS 10 AND 11 BLK 25 |
| Parcel Number: | 360721512519 | Agent Code: | |
| Type: | Real | | |
| Tax Area: | 1 - OL-140-F | Land Use Code | 11 |
| Open Space: | N | DFL | N |
| Historic Property: | N | Remodel Property: | N |
| Multi-Family Redevelopment: | N | | |
| Township: | 7 | Section: | 21 |
| Range: | 36 |
Location |
| Address: | 510 MENLO ST WA 99362 | Mapsco: | |
| Neighborhood: | G-SFR | Map ID: | |
| Neighborhood CD: | 514011 |
Owner |
| Name: | BECKNER BRADLEY & KARA | Owner ID: | 58569 |
| Mailing Address: | PO BOX 3333 WALLA WALLA, WA 99362 | % Ownership: | 100.0000000000% |
| | | Exemptions: | |
Taxes and Assessment Details
Property Tax Information as of
02/21/2026
Click on "Statement Details" to expand or collapse a tax statement.
* Please enter a valid date ** Please enter a valid date *
Statement Details |
| | TOTAL: | $0.00 | $0.00 | $0.00 | $0.00 | $0.00 | $0.00 |
|
| | $0.00 | $0.00 | $0.00 | $0.00 | $0.00 | $0.00 |
Values
| (+) Improvement Homesite Value: | + | $0 | |
| (+) Improvement Non-Homesite Value: | + | $291,390 | |
| (+) Land Homesite Value: | + | $0 | |
| (+) Land Non-Homesite Value: | + | $47,850 | |
| (+) Curr Use (HS): | + | $0 | $0 |
| (+) Curr Use (NHS): | + | $0 | $0 |
| | | -------------------------- | |
| (=) Market Value: | = | $339,240 | |
| (–) Productivity Loss: | – | $0 | |
| | | -------------------------- | |
| (=) Subtotal: | = | $339,240 | |
| (+) Senior Appraised Value: | + | $0 | |
| (+) Non-Senior Appraised Value: | + | $339,240 | |
| | | -------------------------- | |
| (=) Total Appraised Value: | = | $339,240 | |
| (–) Senior Exemption Loss: | – | $0 | |
| (–) Exemption Loss: | – | $0 | |
| | | -------------------------- | |
| (=) Taxable Value: | = | $339,240 | |
Taxing Jurisdiction
| Owner: | BECKNER BRADLEY & KARA | | |
| % Ownership: | 100.0000000000% | | |
| Total Value: | $339,240 | | |
| Tax Area: | 1 - OL-140-F |
| CERFD | CURRENT EXPENSE REFUND 010 | 0.0000000000 | $339,240 | $339,240 | $0.00 | | |
| CURREXP | CURRENT EXPENSE 010 | 1.0175366760 | $339,240 | $339,240 | $345.19 | | |
| HUMNSERV | HUMAN SERVICES 119 | 0.0250000000 | $339,240 | $339,240 | $8.48 | | |
| SLDREL | SOLDIERS RELIEF 121 | 0.0155990005 | $339,240 | $339,240 | $5.29 | | |
| EMERGSER | EMS 147 | 0.3792580840 | $339,240 | $339,240 | $128.66 | | |
| EMSRFD | EMS REFUND 147 | 0.0000000000 | $339,240 | $339,240 | $0.00 | | |
| PORTRFD | PORT REFUND 640 | 0.0000000000 | $339,240 | $339,240 | $0.00 | | |
| PORTWWGEN | PORT OF WW 640 | 0.2460186015 | $339,240 | $339,240 | $83.46 | | |
| SD140BOND | SD #140 BOND 764 | 0.8342371393 | $339,240 | $339,240 | $283.01 | | |
| SD140GEN | SD #140 GENERAL 760 | 2.0646500647 | $339,240 | $339,240 | $700.41 | | |
| ST2 | STATE SCHOOL PART 2 600 | 0.8131451643 | $339,240 | $339,240 | $275.85 | | |
| STATESCHL | STATE SCHOOL 600 | 1.5158548041 | $339,240 | $339,240 | $514.24 | | |
| STREFUND | STATE REFUND LEVY 603 | 0.0000000000 | $339,240 | $339,240 | $0.00 | | |
| CWWBOND | C OF WW BOND 643 | 0.2760494372 | $339,240 | $339,240 | $93.65 | | |
| CWWGEN | CITY OF WW 631 | 1.6100204973 | $339,240 | $339,240 | $546.18 | | |
| CWWRFD | CITY OF WALLA WALLA REFUND 631 | 0.0000000000 | $339,240 | $339,240 | $0.00 | | |
| | Total Tax Rate: | 8.7973694689 | | | | | |
| | | | | Taxes w/Current Exemptions: | $2,984.42 | | |
| | | | | Taxes w/o Exemptions: | $2,984.42 | | |
Improvement / Building
| Improvement #1: | RESIDENTIAL | State Code: | 11 | 1060.0 sqft | Value: | $291,390 |
| Exterior Wall: | SIDING | Heating/Cooling: | HEAT PUMP | | Number of Bathrooms: | 2 | Number of Bedrooms: | 2 | | Plumbing: | 10 | Roof Covering: | COMP SHINGLE |
|
| | Type | Description | Class CD | Sub Class CD | Year Built | Area |
| | MA | Main Area | 1 | 30 | 1941 | 1060.0 |
| | CPC | COVERED CARPORT/PATIO | 1 | 30 | 0 | 180.0 |
| | SI1 | SITE IMPROVEMENT | 1 | 30 | 0 | 1.0 |
| | BASE | BASEMENT | 1 | 30 | 1941 | 1060.0 |
| | DTG | Detached Garage | 1 | 30 | 1941 | 572.0 |
| | RPO | OPEN PORCH W/ROOF | 1 | 30 | 1941 | 24.0 |
| | S1F | Single One Story Fireplace | 1 | 30 | 1941 | 1.0 |
Sketch
Property Image
Land
| 1 | RES 1 | Converted: Residential | 0.1515 | 6600.00 | 0.00 | 0.00 | 1.00 | $47,850 | $0 |
Roll Value History
| 2026 | N/A | N/A | N/A | N/A | N/A |
| 2025 | $266,890 | $72,600 | $0 | $339,490 | $339,490 |
| 2024 | $266,890 | $72,600 | $0 | $339,490 | $339,490 |
| 2023 | $291,390 | $47,850 | $0 | $339,240 | $339,240 |
| 2022 | $264,900 | $47,850 | $0 | $312,750 | $312,750 |
| 2021 | $203,770 | $47,850 | $0 | $251,620 | $251,620 |
| 2020 | $145,550 | $47,850 | $0 | $193,400 | $193,400 |
| 2019 | $145,550 | $47,850 | $0 | $193,400 | $193,400 |
| 2018 | $145,550 | $47,850 | $0 | $193,400 | $193,400 |
| 2017 | $117,270 | $29,700 | $0 | $146,970 | $146,970 |
| 2016 | $106,610 | $29,700 | $0 | $136,310 | $136,310 |
| 2015 | $101,530 | $29,700 | $0 | $131,230 | $131,230 |
| 2014 | $92,300 | $29,700 | $0 | $122,000 | $122,000 |
| 2013 | $92,300 | $29,700 | $0 | $122,000 | $122,000 |
| 2012 | $93,800 | $29,700 | $0 | $0 | $0 |
| 2011 | $93,800 | $29,700 | $0 | $0 | $0 |
| 2010 | $93,800 | $29,700 | $0 | $0 | $0 |
| 2009 | $107,500 | $29,700 | $0 | $0 | $0 |
| 2008 | $71,900 | $29,700 | $0 | $0 | $0 |
| 2007 | $71,900 | $29,700 | $0 | $0 | $0 |
Deed and Sales History
| 1 | 07/23/2018 | FUL | FULFILLMENT DEED | STIMMEL DARREN C | BECKNER BRADLEY & KARA | | | | 0 | 2018-05955 |
| 2 | 06/30/2017 | REAL ESTAT | REAL ESTATE CONTRACT | STIMMEL DARREN C | BECKNER BRADLEY & KARA | | | $130,000.00 | 132708 | 2017-05039 |
| 3 | 07/14/1988 | WARRANTY D | WARRANTY DEED | | | | | $56,000.00 | 59573 | 1718-804569 |
Payout Agreement
| No payout information available.. |