Property
Account |
| Property ID: | 7792 | Abbreviated Legal Description: | GREEN PARK LOT 15 BLK 25 |
| Parcel Number: | 360721512515 | Agent Code: | |
| Type: | Real | | |
| Tax Area: | 1 - OL-140-F | Land Use Code | 11 |
| Open Space: | N | DFL | N |
| Historic Property: | N | Remodel Property: | N |
| Multi-Family Redevelopment: | N | | |
| Township: | 7 | Section: | 21 |
| Range: | 36 |
Location |
| Address: | 1333 ALVARADO TER WALLA WALLA, WA 99362 | Mapsco: | |
| Neighborhood: | G-SFR | Map ID: | |
| Neighborhood CD: | 514011 |
Owner |
| Name: | WILSON ANN V | Owner ID: | 68679 |
| Mailing Address: | 1333 ALVARADO TERRACE WALLA WALLA, WA 99362 | % Ownership: | 100.0000000000% |
| | | Exemptions: | |
Taxes and Assessment Details
Values
| (+) Improvement Homesite Value: | + | $0 | |
| (+) Improvement Non-Homesite Value: | + | $287,280 | |
| (+) Land Homesite Value: | + | $0 | |
| (+) Land Non-Homesite Value: | + | $72,770 | |
| (+) Curr Use (HS): | + | $0 | $0 |
| (+) Curr Use (NHS): | + | $0 | $0 |
| | | -------------------------- | |
| (=) Market Value: | = | $360,050 | |
| (–) Productivity Loss: | – | $0 | |
| | | -------------------------- | |
| (=) Subtotal: | = | $360,050 | |
| (+) Senior Appraised Value: | + | $0 | |
| (+) Non-Senior Appraised Value: | + | $360,050 | |
| | | -------------------------- | |
| (=) Total Appraised Value: | = | $360,050 | |
| (–) Senior Exemption Loss: | – | $0 | |
| (–) Exemption Loss: | – | $0 | |
| | | -------------------------- | |
| (=) Taxable Value: | = | $360,050 | |
Taxing Jurisdiction
| Owner: | WILSON ANN V | | |
| % Ownership: | 100.0000000000% | | |
| Total Value: | $360,050 | | |
| Tax Area: | 1 - OL-140-F |
| CERFD | CURRENT EXPENSE REFUND 010 | 0.0000000000 | $360,050 | $360,050 | $0.00 | | |
| CURREXP | CURRENT EXPENSE 010 | 1.0175366760 | $360,050 | $360,050 | $366.36 | | |
| HUMNSERV | HUMAN SERVICES 119 | 0.0250000000 | $360,050 | $360,050 | $9.00 | | |
| SLDREL | SOLDIERS RELIEF 121 | 0.0155990005 | $360,050 | $360,050 | $5.62 | | |
| EMERGSER | EMS 147 | 0.3792580840 | $360,050 | $360,050 | $136.55 | | |
| EMSRFD | EMS REFUND 147 | 0.0000000000 | $360,050 | $360,050 | $0.00 | | |
| PORTRFD | PORT REFUND 640 | 0.0000000000 | $360,050 | $360,050 | $0.00 | | |
| PORTWWGEN | PORT OF WW 640 | 0.2460186015 | $360,050 | $360,050 | $88.58 | | |
| SD140BOND | SD #140 BOND 764 | 0.8342371393 | $360,050 | $360,050 | $300.37 | | |
| SD140GEN | SD #140 GENERAL 760 | 2.0646500647 | $360,050 | $360,050 | $743.38 | | |
| ST2 | STATE SCHOOL PART 2 600 | 0.8131451643 | $360,050 | $360,050 | $292.77 | | |
| STATESCHL | STATE SCHOOL 600 | 1.5158548041 | $360,050 | $360,050 | $545.78 | | |
| STREFUND | STATE REFUND LEVY 603 | 0.0000000000 | $360,050 | $360,050 | $0.00 | | |
| CWWBOND | C OF WW BOND 643 | 0.2760494372 | $360,050 | $360,050 | $99.39 | | |
| CWWGEN | CITY OF WW 631 | 1.6100204973 | $360,050 | $360,050 | $579.69 | | |
| CWWRFD | CITY OF WALLA WALLA REFUND 631 | 0.0000000000 | $360,050 | $360,050 | $0.00 | | |
| | Total Tax Rate: | 8.7973694689 | | | | | |
| | | | | Taxes w/Current Exemptions: | $3,167.49 | | |
| | | | | Taxes w/o Exemptions: | $3,167.49 | | |
Improvement / Building
| Improvement #1: | RESIDENTIAL | State Code: | 11 | 1042.0 sqft | Value: | $287,280 |
| Exterior Wall: | STUCCO | Heating/Cooling: | HEAT PUMP | | Number of Bathrooms: | 2 | Number of Bedrooms: | 2 | | Plumbing: | 10 | Roof Covering: | COMP SHINGLE |
|
| | Type | Description | Class CD | Sub Class CD | Year Built | Area |
| | MA | Main Area | 1 | 40 | 1939 | 1042.0 |
| | CPCG | CARPORT/ GABLE ROOF | 1 | 40 | 2009 | 306.0 |
| | SI1 | SITE IMPROVEMENT | 1 | 40 | 0 | 1.5 |
| | SOLR | SOLAR POWER PANELS | 1 | 40 | 0 | 10.0 |
| | BASE | BASEMENT | 1 | 40 | 1939 | 1042.0 |
| | BPF | BASEMENT -PARTITIONED FINISH | 1 | 40 | 1939 | 521.0 |
| | DTG | Detached Garage | 1 | 40 | 2009 | 240.0 |
| | RPO | OPEN PORCH W/ROOF | 1 | 40 | 2009 | 80.0 |
| | RPO | OPEN PORCH W/ROOF | 1 | 40 | 2009 | 78.0 |
| | S1F | Single One Story Fireplace | 1 | 40 | 2009 | 1.0 |
Sketch
Property Image
Land
| 1 | RES 1 | Converted: Residential | 0.2410 | 10500.00 | 0.00 | 0.00 | 1.00 | $72,770 | $0 |
Roll Value History
| 2026 | N/A | N/A | N/A | N/A | N/A |
| 2025 | $261,720 | $115,500 | $0 | $377,220 | $377,220 |
| 2024 | $261,720 | $115,500 | $0 | $377,220 | $377,220 |
| 2023 | $287,280 | $72,770 | $0 | $360,050 | $360,050 |
| 2022 | $261,160 | $72,770 | $0 | $333,930 | $333,930 |
| 2021 | $248,730 | $72,770 | $0 | $321,500 | $321,500 |
| 2020 | $207,270 | $72,770 | $0 | $280,040 | $280,040 |
| 2019 | $207,270 | $72,770 | $0 | $280,040 | $280,040 |
| 2018 | $188,430 | $72,770 | $0 | $261,200 | $261,200 |
| 2017 | $187,110 | $45,300 | $0 | $232,410 | $232,410 |
| 2016 | $170,100 | $45,300 | $0 | $215,400 | $215,400 |
| 2015 | $170,100 | $45,300 | $0 | $215,400 | $215,400 |
| 2014 | $170,100 | $45,300 | $0 | $215,400 | $215,400 |
| 2013 | $170,100 | $45,300 | $0 | $215,400 | $215,400 |
| 2012 | $170,100 | $45,300 | $0 | $0 | $0 |
| 2011 | $170,100 | $45,300 | $0 | $0 | $0 |
| 2010 | $150,500 | $45,300 | $0 | $0 | $0 |
| 2009 | $165,000 | $45,300 | $0 | $0 | $0 |
| 2008 | $116,500 | $45,300 | $0 | $0 | $0 |
| 2007 | $116,500 | $45,300 | $0 | $0 | $0 |
Deed and Sales History
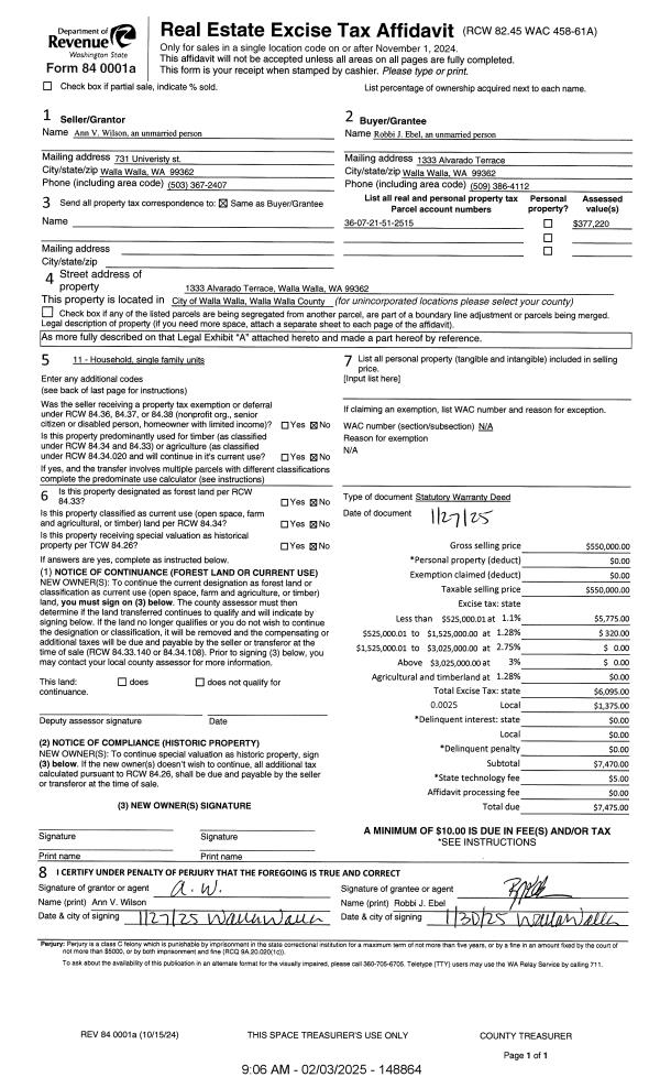
| 1 | 02/03/2025 | SWD | STATUTORY WARRANTY DEED | WILSON ANN V | EBEL ROBBI J | | | $550,000.00 | 148864 | 2025-00539 |
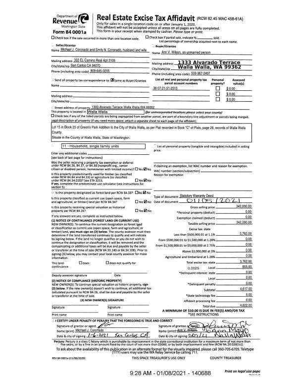
| 2 | 01/08/2021 | SWD | STATUTORY WARRANTY DEED | CORONADO MICHEAL J & EMILY N | WILSON ANN V | | | $342,000.00 | 140688 | 2021-00261 |
| 3 | 05/08/2018 | SWD | STATUTORY WARRANTY DEED | BECK MARK | CORONADO MICHEAL J & EMILY N | | | $285,000.00 | 134654 | 2018-03575 |
| 4 | 06/12/1996 | WARRANTY D | WARRANTY DEED | | | | | $98,500.00 | 86292 | 2419-605868 |
Payout Agreement
| No payout information available.. |