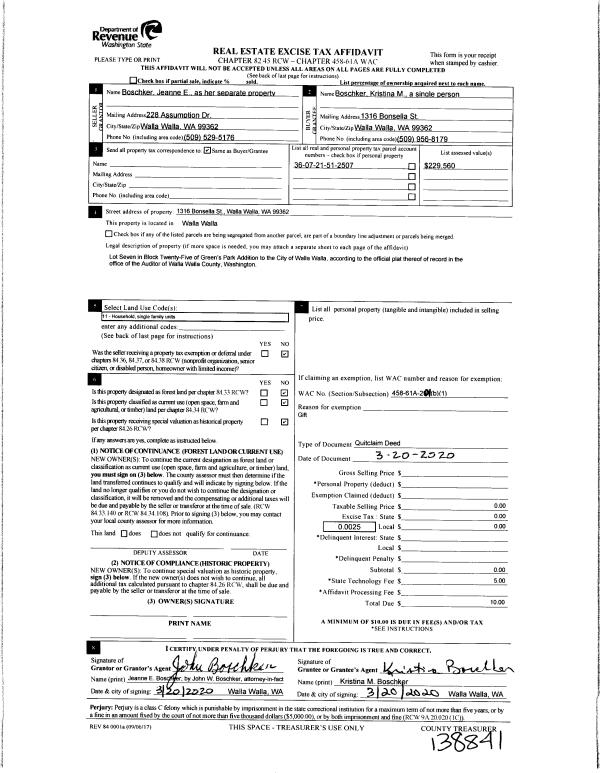
Property
Account |
| Property ID: | 7787 | Abbreviated Legal Description: | GREEN PARK LOT 7 BLK 25 |
| Parcel Number: | 360721512507 | Agent Code: | |
| Type: | Real | | |
| Tax Area: | 1 - OL-140-F | Land Use Code | 11 |
| Open Space: | N | DFL | N |
| Historic Property: | N | Remodel Property: | N |
| Multi-Family Redevelopment: | N | | |
| Township: | 7 | Section: | 21 |
| Range: | 36 |
Location |
| Address: | 1316 BONSELLA ST WA 99362 | Mapsco: | |
| Neighborhood: | G-SFR | Map ID: | |
| Neighborhood CD: | 514011 |
Owner |
| Name: | BOSCHKER KRISTINA M | Owner ID: | 66962 |
| Mailing Address: | 1316 BONSELLA ST WALLA WALLA, WA 99362 | % Ownership: | 100.0000000000% |
| | | Exemptions: | |
Taxes and Assessment Details
Values
| (+) Improvement Homesite Value: | + | $0 | |
| (+) Improvement Non-Homesite Value: | + | $339,470 | |
| (+) Land Homesite Value: | + | $0 | |
| (+) Land Non-Homesite Value: | + | $52,200 | |
| (+) Curr Use (HS): | + | $0 | $0 |
| (+) Curr Use (NHS): | + | $0 | $0 |
| | | -------------------------- | |
| (=) Market Value: | = | $391,670 | |
| (–) Productivity Loss: | – | $0 | |
| | | -------------------------- | |
| (=) Subtotal: | = | $391,670 | |
| (+) Senior Appraised Value: | + | $0 | |
| (+) Non-Senior Appraised Value: | + | $391,670 | |
| | | -------------------------- | |
| (=) Total Appraised Value: | = | $391,670 | |
| (–) Senior Exemption Loss: | – | $0 | |
| (–) Exemption Loss: | – | $0 | |
| | | -------------------------- | |
| (=) Taxable Value: | = | $391,670 | |
Taxing Jurisdiction
| Owner: | BOSCHKER KRISTINA M | | |
| % Ownership: | 100.0000000000% | | |
| Total Value: | $391,670 | | |
| Tax Area: | 1 - OL-140-F |
| CERFD | CURRENT EXPENSE REFUND 010 | 0.0000000000 | $391,670 | $391,670 | $0.00 | | |
| CURREXP | CURRENT EXPENSE 010 | 1.0175366760 | $391,670 | $391,670 | $398.54 | | |
| HUMNSERV | HUMAN SERVICES 119 | 0.0250000000 | $391,670 | $391,670 | $9.79 | | |
| SLDREL | SOLDIERS RELIEF 121 | 0.0155990005 | $391,670 | $391,670 | $6.11 | | |
| EMERGSER | EMS 147 | 0.3792580840 | $391,670 | $391,670 | $148.54 | | |
| EMSRFD | EMS REFUND 147 | 0.0000000000 | $391,670 | $391,670 | $0.00 | | |
| PORTRFD | PORT REFUND 640 | 0.0000000000 | $391,670 | $391,670 | $0.00 | | |
| PORTWWGEN | PORT OF WW 640 | 0.2460186015 | $391,670 | $391,670 | $96.36 | | |
| SD140BOND | SD #140 BOND 764 | 0.8342371393 | $391,670 | $391,670 | $326.75 | | |
| SD140GEN | SD #140 GENERAL 760 | 2.0646500647 | $391,670 | $391,670 | $808.66 | | |
| ST2 | STATE SCHOOL PART 2 600 | 0.8131451643 | $391,670 | $391,670 | $318.48 | | |
| STATESCHL | STATE SCHOOL 600 | 1.5158548041 | $391,670 | $391,670 | $593.71 | | |
| STREFUND | STATE REFUND LEVY 603 | 0.0000000000 | $391,670 | $391,670 | $0.00 | | |
| CWWBOND | C OF WW BOND 643 | 0.2760494372 | $391,670 | $391,670 | $108.12 | | |
| CWWGEN | CITY OF WW 631 | 1.6100204973 | $391,670 | $391,670 | $630.60 | | |
| CWWRFD | CITY OF WALLA WALLA REFUND 631 | 0.0000000000 | $391,670 | $391,670 | $0.00 | | |
| | Total Tax Rate: | 8.7973694689 | | | | | |
| | | | | Taxes w/Current Exemptions: | $3,445.66 | | |
| | | | | Taxes w/o Exemptions: | $3,445.66 | | |
Improvement / Building
| Improvement #1: | RESIDENTIAL | State Code: | 11 | 1380.0 sqft | Value: | $339,470 |
| Exterior Wall: | SIDING | Heating/Cooling: | HEAT PUMP | | Number of Bathrooms: | 2 | Number of Bedrooms: | 3 | | Plumbing: | 10 | Roof Covering: | COMP SHINGLE |
|
| | Type | Description | Class CD | Sub Class CD | Year Built | Area |
| | MA | Main Area | 1 | 30 | 1940 | 1380.0 |
| | SI1 | SITE IMPROVEMENT | 1 | 30 | 1940 | 1.0 |
| | BASE | BASEMENT | 1 | 30 | 1940 | 1092.0 |
| | BPF | BASEMENT -PARTITIONED FINISH | 1 | 30 | 1940 | 500.0 |
| | DTG | Detached Garage | 1 | 30 | 1940 | 348.0 |
| | RPS | PORCH W/STEPS,ROOF | 1 | 30 | 1940 | 56.0 |
| | S1F | Single One Story Fireplace | 1 | 30 | 1940 | 1.0 |
| | CPC | COVERED CARPORT/PATIO | 1 | 30 | 1940 | 420.0 |
Sketch
Property Image
Land
| 1 | RES 1 | Converted: Residential | 0.1653 | 7200.00 | 0.00 | 0.00 | 1.00 | $52,200 | $0 |
Roll Value History
| 2026 | N/A | N/A | N/A | N/A | N/A |
| 2025 | $307,050 | $79,200 | $0 | $386,250 | $386,250 |
| 2024 | $307,050 | $79,200 | $0 | $386,250 | $386,250 |
| 2023 | $339,470 | $52,200 | $0 | $391,670 | $391,670 |
| 2022 | $308,610 | $52,200 | $0 | $360,810 | $360,810 |
| 2021 | $212,830 | $52,200 | $0 | $265,030 | $265,030 |
| 2020 | $177,360 | $52,200 | $0 | $229,560 | $229,560 |
| 2019 | $177,360 | $52,200 | $0 | $229,560 | $229,560 |
| 2018 | $147,800 | $52,200 | $0 | $200,000 | $200,000 |
| 2017 | $194,860 | $32,400 | $0 | $227,260 | $227,260 |
| 2016 | $177,140 | $32,400 | $0 | $209,540 | $209,540 |
| 2015 | $147,620 | $32,400 | $0 | $180,020 | $180,020 |
| 2014 | $134,200 | $32,400 | $0 | $166,600 | $166,600 |
| 2013 | $134,200 | $32,400 | $0 | $166,600 | $166,600 |
| 2012 | $134,200 | $32,400 | $0 | $0 | $0 |
| 2011 | $134,200 | $32,400 | $0 | $0 | $0 |
| 2010 | $126,300 | $32,400 | $0 | $0 | $0 |
| 2009 | $195,300 | $32,400 | $0 | $0 | $0 |
| 2008 | $114,500 | $32,400 | $0 | $0 | $0 |
| 2007 | $114,500 | $32,400 | $0 | $0 | $0 |
Deed and Sales History
| 1 | 03/20/2020 | QCD | QUIT CLAIM DEED | BOSCHKER JEANNE E | BOSCHKER KRISTINA M | | | $0.00 | 138841 | 2020-02603 |
| 2 | 10/13/2000 | WARRANTY D | WARRANTY DEED | | | | | $90,000.00 | 95990 | 3030-009819 |
Payout Agreement
| No payout information available.. |