Property
Account |
| Property ID: | 7756 | Abbreviated Legal Description: | GREEN PARK TAX 8 BLK 21 |
| Parcel Number: | 360721512119 | Agent Code: | |
| Type: | Real | | |
| Tax Area: | 1 - OL-140-F | Land Use Code | 11 |
| Open Space: | N | DFL | N |
| Historic Property: | N | Remodel Property: | N |
| Multi-Family Redevelopment: | N | | |
| Township: | 7 | Section: | 21 |
| Range: | 36 |
Location |
| Address: | 1225 PORTLAND AVE WA 99362 | Mapsco: | |
| Neighborhood: | G-SFR | Map ID: | |
| Neighborhood CD: | 514011 |
Owner |
| Name: | RASMUSSEN MARIT LYNN | Owner ID: | 69182 |
| Mailing Address: | 1225 PORTLAND AVE WALLA WALLA, WA 99362 | % Ownership: | 100.0000000000% |
| | | Exemptions: | |
Taxes and Assessment Details
Values
| (+) Improvement Homesite Value: | + | $0 | |
| (+) Improvement Non-Homesite Value: | + | $409,860 | |
| (+) Land Homesite Value: | + | $0 | |
| (+) Land Non-Homesite Value: | + | $40,600 | |
| (+) Curr Use (HS): | + | $0 | $0 |
| (+) Curr Use (NHS): | + | $0 | $0 |
| | | -------------------------- | |
| (=) Market Value: | = | $450,460 | |
| (–) Productivity Loss: | – | $0 | |
| | | -------------------------- | |
| (=) Subtotal: | = | $450,460 | |
| (+) Senior Appraised Value: | + | $0 | |
| (+) Non-Senior Appraised Value: | + | $450,460 | |
| | | -------------------------- | |
| (=) Total Appraised Value: | = | $450,460 | |
| (–) Senior Exemption Loss: | – | $0 | |
| (–) Exemption Loss: | – | $0 | |
| | | -------------------------- | |
| (=) Taxable Value: | = | $450,460 | |
Taxing Jurisdiction
| Owner: | RASMUSSEN MARIT LYNN | | |
| % Ownership: | 100.0000000000% | | |
| Total Value: | $450,460 | | |
| Tax Area: | 1 - OL-140-F |
| CERFD | CURRENT EXPENSE REFUND 010 | 0.0000000000 | $450,460 | $450,460 | $0.00 | | |
| CURREXP | CURRENT EXPENSE 010 | 1.0175366760 | $450,460 | $450,460 | $458.36 | | |
| HUMNSERV | HUMAN SERVICES 119 | 0.0250000000 | $450,460 | $450,460 | $11.26 | | |
| SLDREL | SOLDIERS RELIEF 121 | 0.0155990005 | $450,460 | $450,460 | $7.03 | | |
| EMERGSER | EMS 147 | 0.3792580840 | $450,460 | $450,460 | $170.84 | | |
| EMSRFD | EMS REFUND 147 | 0.0000000000 | $450,460 | $450,460 | $0.00 | | |
| PORTRFD | PORT REFUND 640 | 0.0000000000 | $450,460 | $450,460 | $0.00 | | |
| PORTWWGEN | PORT OF WW 640 | 0.2460186015 | $450,460 | $450,460 | $110.82 | | |
| SD140BOND | SD #140 BOND 764 | 0.8342371393 | $450,460 | $450,460 | $375.79 | | |
| SD140GEN | SD #140 GENERAL 760 | 2.0646500647 | $450,460 | $450,460 | $930.04 | | |
| ST2 | STATE SCHOOL PART 2 600 | 0.8131451643 | $450,460 | $450,460 | $366.29 | | |
| STATESCHL | STATE SCHOOL 600 | 1.5158548041 | $450,460 | $450,460 | $682.83 | | |
| STREFUND | STATE REFUND LEVY 603 | 0.0000000000 | $450,460 | $450,460 | $0.00 | | |
| CWWBOND | C OF WW BOND 643 | 0.2760494372 | $450,460 | $450,460 | $124.35 | | |
| CWWGEN | CITY OF WW 631 | 1.6100204973 | $450,460 | $450,460 | $725.25 | | |
| CWWRFD | CITY OF WALLA WALLA REFUND 631 | 0.0000000000 | $450,460 | $450,460 | $0.00 | | |
| | Total Tax Rate: | 8.7973694689 | | | | | |
| | | | | Taxes w/Current Exemptions: | $3,962.86 | | |
| | | | | Taxes w/o Exemptions: | $3,962.86 | | |
Improvement / Building
| Improvement #1: | RESIDENTIAL | State Code: | 11 | 1278.0 sqft | Value: | $409,860 |
| Exterior Wall: | SHINGLE | Heating/Cooling: | WARM & COOLED AIR | | Number of Bathrooms: | 2 | Number of Bedrooms: | 2 | | Plumbing: | 10 | Roof Covering: | COMP SHINGLE |
|
| | Type | Description | Class CD | Sub Class CD | Year Built | Area |
| | MA | Main Area | 1 | 30 | 1938 | 1278.0 |
| | RPC | OPEN PORCH W/ROOF , CEILED | 1 | 30 | 0 | 32.0 |
| | SI1 | SITE IMPROVEMENT | 1 | 30 | 0 | 1.0 |
| | BASE | BASEMENT | 1 | 30 | 1938 | 942.0 |
| | BPF | BASEMENT -PARTITIONED FINISH | 1 | 30 | 1938 | 713.0 |
| | DTG | Detached Garage | 1 | 30 | 1938 | 396.0 |
| | WOD | Wood Deck | 1 | 30 | 1938 | 63.0 |
| | S1F | Single One Story Fireplace | 1 | 30 | 1938 | 1.0 |
Sketch
Property Image
Land
| 1 | RES 1 | Converted: Residential | 0.1286 | 5600.00 | 0.00 | 0.00 | 1.00 | $40,600 | $0 |
Roll Value History
| 2026 | N/A | N/A | N/A | N/A | N/A |
| 2025 | $369,950 | $61,600 | $0 | $431,550 | $431,550 |
| 2024 | $369,950 | $61,600 | $0 | $431,550 | $431,550 |
| 2023 | $409,860 | $40,600 | $0 | $450,460 | $450,460 |
| 2022 | $372,600 | $40,600 | $0 | $413,200 | $413,200 |
| 2021 | $310,500 | $40,600 | $0 | $351,100 | $351,100 |
| 2020 | $207,000 | $40,600 | $0 | $247,600 | $247,600 |
| 2019 | $207,000 | $40,600 | $0 | $247,600 | $247,600 |
| 2018 | $180,000 | $40,600 | $0 | $220,600 | $220,600 |
| 2017 | $186,530 | $25,200 | $0 | $211,730 | $211,730 |
| 2016 | $169,580 | $25,200 | $0 | $194,780 | $194,780 |
| 2015 | $169,580 | $25,200 | $0 | $194,780 | $194,780 |
| 2014 | $161,500 | $25,200 | $0 | $186,700 | $186,700 |
| 2013 | $161,500 | $25,200 | $0 | $186,700 | $186,700 |
| 2012 | $161,500 | $25,200 | $0 | $0 | $0 |
| 2011 | $161,500 | $25,200 | $0 | $0 | $0 |
| 2010 | $152,600 | $25,200 | $0 | $0 | $0 |
| 2009 | $172,300 | $25,200 | $0 | $0 | $0 |
| 2008 | $106,700 | $25,200 | $0 | $0 | $0 |
| 2007 | $106,700 | $25,200 | $0 | $0 | $0 |
Deed and Sales History
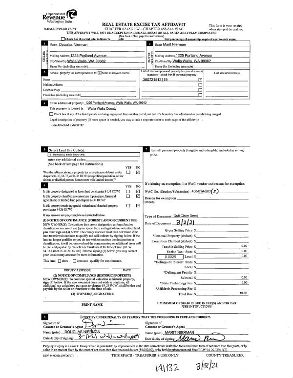
| 1 | | COURT CASE | COURT CASE | | | | | | 141132 | NO DEED |
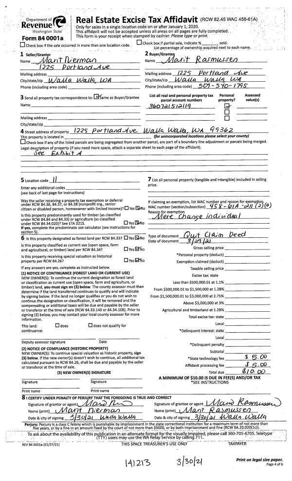
| 2 | 03/29/2021 | QCD | QUIT CLAIM DEED | NIERMAN DOUGLAS & MARIT | RASMUSSEN MARIT LYNN | | | $0.00 | 141213 | 2021-04189 |
| 3 | 09/14/2007 | WARRANTY D | WARRANTY DEED | BRADLEY, MORGAN | NIERMAN, DOUGLAS & MARIT | | | $199,000.00 | 113725 | 2007-10834 |
| 4 | 05/23/2007 | WARRANTY D | WARRANTY DEED | BRADLEY, MARY | BRADLEY, MORGAN | | | | 0 | CC #05-3-00308-6 |
| 5 | 04/26/2000 | WARRANTY D | WARRANTY DEED | | | | | $99,900.00 | 94964 | 2970-003985 |
Payout Agreement
| No payout information available.. |