Property
Account |
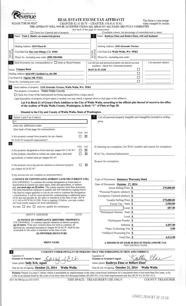
| Property ID: | 7750 | Abbreviated Legal Description: | GREEN PARK LOT 5 BLK 21 |
| Parcel Number: | 360721512105 | Agent Code: | |
| Type: | Real | | |
| Tax Area: | 1 - OL-140-F | Land Use Code | 11 |
| Open Space: | N | DFL | N |
| Historic Property: | N | Remodel Property: | N |
| Multi-Family Redevelopment: | N | | |
| Township: | 7 | Section: | 21 |
| Range: | 36 |
Location |
| Address: | 1218 ALVARADO TER WALLA WALLA, WA 99362 | Mapsco: | |
| Neighborhood: | G-SFR | Map ID: | |
| Neighborhood CD: | 514011 |
Owner |
| Name: | ELSEE ROBERT & KATHRYN | Owner ID: | 55680 |
| Mailing Address: | 1218 ALVARADO TERRACE WALLA WALLA, WA 99362 | % Ownership: | 100.0000000000% |
| | | Exemptions: | |
Taxes and Assessment Details
Property Tax Information as of
02/21/2026
Click on "Statement Details" to expand or collapse a tax statement.
* Please enter a valid date ** Please enter a valid date *
Statement Details |
| | TOTAL: | $0.00 | $0.00 | $0.00 | $0.00 | $0.00 | $0.00 |
|
| | $0.00 | $0.00 | $0.00 | $0.00 | $0.00 | $0.00 |
Values
| (+) Improvement Homesite Value: | + | $338,740 | |
| (+) Improvement Non-Homesite Value: | + | $0 | |
| (+) Land Homesite Value: | + | $59,160 | |
| (+) Land Non-Homesite Value: | + | $0 | |
| (+) Curr Use (HS): | + | $0 | $0 |
| (+) Curr Use (NHS): | + | $0 | $0 |
| | | -------------------------- | |
| (=) Market Value: | = | $397,900 | |
| (–) Productivity Loss: | – | $0 | |
| | | -------------------------- | |
| (=) Subtotal: | = | $397,900 | |
| (+) Senior Appraised Value: | + | $0 | |
| (+) Non-Senior Appraised Value: | + | $397,900 | |
| | | -------------------------- | |
| (=) Total Appraised Value: | = | $397,900 | |
| (–) Senior Exemption Loss: | – | $0 | |
| (–) Exemption Loss: | – | $0 | |
| | | -------------------------- | |
| (=) Taxable Value: | = | $397,900 | |
Taxing Jurisdiction
| Owner: | ELSEE ROBERT & KATHRYN | | |
| % Ownership: | 100.0000000000% | | |
| Total Value: | $397,900 | | |
| Tax Area: | 1 - OL-140-F |
| CERFD | CURRENT EXPENSE REFUND 010 | 0.0000000000 | $397,900 | $397,900 | $0.00 | | |
| CURREXP | CURRENT EXPENSE 010 | 1.0175366760 | $397,900 | $397,900 | $404.88 | | |
| HUMNSERV | HUMAN SERVICES 119 | 0.0250000000 | $397,900 | $397,900 | $9.95 | | |
| SLDREL | SOLDIERS RELIEF 121 | 0.0155990005 | $397,900 | $397,900 | $6.21 | | |
| EMERGSER | EMS 147 | 0.3792580840 | $397,900 | $397,900 | $150.91 | | |
| EMSRFD | EMS REFUND 147 | 0.0000000000 | $397,900 | $397,900 | $0.00 | | |
| PORTRFD | PORT REFUND 640 | 0.0000000000 | $397,900 | $397,900 | $0.00 | | |
| PORTWWGEN | PORT OF WW 640 | 0.2460186015 | $397,900 | $397,900 | $97.89 | | |
| SD140BOND | SD #140 BOND 764 | 0.8342371393 | $397,900 | $397,900 | $331.94 | | |
| SD140GEN | SD #140 GENERAL 760 | 2.0646500647 | $397,900 | $397,900 | $821.52 | | |
| ST2 | STATE SCHOOL PART 2 600 | 0.8131451643 | $397,900 | $397,900 | $323.55 | | |
| STATESCHL | STATE SCHOOL 600 | 1.5158548041 | $397,900 | $397,900 | $603.16 | | |
| STREFUND | STATE REFUND LEVY 603 | 0.0000000000 | $397,900 | $397,900 | $0.00 | | |
| CWWBOND | C OF WW BOND 643 | 0.2760494372 | $397,900 | $397,900 | $109.84 | | |
| CWWGEN | CITY OF WW 631 | 1.6100204973 | $397,900 | $397,900 | $640.63 | | |
| CWWRFD | CITY OF WALLA WALLA REFUND 631 | 0.0000000000 | $397,900 | $397,900 | $0.00 | | |
| | Total Tax Rate: | 8.7973694689 | | | | | |
| | | | | Taxes w/Current Exemptions: | $3,500.48 | | |
| | | | | Taxes w/o Exemptions: | $3,500.48 | | |
Improvement / Building
| Improvement #1: | RESIDENTIAL | State Code: | 11 | 1204.0 sqft | Value: | $338,740 |
| Exterior Wall: | SIDING | Heating/Cooling: | WARM & COOLED AIR | | Number of Bathrooms: | 2 | Number of Bedrooms: | 1 | | Plumbing: | 10 | Roof Covering: | COMP SHINGLE |
|
| | Type | Description | Class CD | Sub Class CD | Year Built | Area |
| | MA | Main Area | 1 | 45 | 1937 | 1204.0 |
| | CPCG | CARPORT/ GABLE ROOF | 1 | 45 | 0 | 432.0 |
| | SI1 | SITE IMPROVEMENT | 1 | 45 | 0 | 2.5 |
| | BASE | BASEMENT | 1 | 45 | 1937 | 1204.0 |
| | BPF | BASEMENT -PARTITIONED FINISH | 1 | 45 | 1937 | 1029.0 |
| | OPS | OPEN PORCH W/STEPS | 1 | 45 | 1937 | 20.0 |
| | S1F | Single One Story Fireplace | 1 | 45 | 1937 | 1.0 |
| | TOOL | TOOL SHED | 1 | 45 | 1937 | 160.0 |
Sketch
Property Image
Land
| 1 | RES 1 | Converted: Residential | 0.1873 | 8160.00 | 0.00 | 0.00 | 1.00 | $59,160 | $0 |
Roll Value History
| 2026 | N/A | N/A | N/A | N/A | N/A |
| 2025 | $357,080 | $89,760 | $0 | $446,840 | $446,840 |
| 2024 | $310,500 | $89,760 | $0 | $400,260 | $400,260 |
| 2023 | $338,740 | $59,160 | $0 | $397,900 | $397,900 |
| 2022 | $307,950 | $59,160 | $0 | $367,110 | $367,110 |
| 2021 | $279,950 | $59,160 | $0 | $339,110 | $339,110 |
| 2020 | $254,500 | $59,160 | $0 | $313,660 | $313,660 |
| 2019 | $254,500 | $59,160 | $0 | $313,660 | $164,100 |
| 2018 | $254,500 | $59,160 | $0 | $313,660 | $164,100 |
| 2017 | $249,710 | $36,700 | $0 | $286,410 | $164,100 |
| 2016 | $227,010 | $36,700 | $0 | $263,710 | $164,100 |
| 2015 | $227,010 | $36,700 | $0 | $263,710 | $164,100 |
| 2014 | $197,400 | $36,700 | $0 | $234,100 | $234,100 |
| 2013 | $197,400 | $36,700 | $0 | $234,100 | $234,100 |
| 2012 | $189,600 | $36,700 | $0 | $0 | $0 |
| 2011 | $189,600 | $36,700 | $0 | $0 | $0 |
| 2010 | $169,000 | $36,700 | $0 | $0 | $0 |
| 2009 | $191,800 | $36,700 | $0 | $0 | $0 |
| 2008 | $162,000 | $36,700 | $0 | $0 | $0 |
| 2007 | $162,000 | $36,700 | $0 | $0 | $0 |
Deed and Sales History
| 1 | 10/22/2014 | SWD | STATUTORY WARRANTY DEED | SHAFER VICKI | ELSEE ROBERT & KATHRYN | | | $275,000.00 | 126821 | 2014-07724 |
| 2 | 11/05/2009 | COMMUNITY | COMMUNITY PROPERTY AGREEMENT | SHAFER VICKI | | | | | 0 | 2014-02268 |
| 3 | 06/26/1998 | WARRANTY D | WARRANTY DEED | | | | | $140,000.00 | 90701 | 2699-807167 |
Payout Agreement
| No payout information available.. |