Property
Account |
| Property ID: | 7744 | Abbreviated Legal Description: | 2-6-35 TRACT B OF SHORT PLAT (PTN LY IN ELY PT LOT 4) |
| Parcel Number: | 350602220017 | Agent Code: | |
| Type: | Real | | |
| Tax Area: | 311 - 250-4 | Land Use Code | 11 |
| Open Space: | N | DFL | N |
| Historic Property: | N | Remodel Property: | N |
| Multi-Family Redevelopment: | N | | |
| Township: | 6 | Section: | 2 |
| Range: | 35 |
Location |
| Address: | 1558 CLARENCE AVE WA 99362 | Mapsco: | |
| Neighborhood: | Res No Water Rights | Map ID: | |
| Neighborhood CD: | 113112 |
Owner |
| Name: | JOICE MATT & ALICIA | Owner ID: | 71511 |
| Mailing Address: | 1558 CLARENCE AVE WALLA WALLA, WA 99362 | % Ownership: | 100.0000000000% |
| | | Exemptions: | |
Taxes and Assessment Details
Property Tax Information as of
02/21/2026
Click on "Statement Details" to expand or collapse a tax statement.
* Please enter a valid date ** Please enter a valid date *
Statement Details |
| | TOTAL: | $0.00 | $0.00 | $0.00 | $0.00 | $0.00 | $0.00 |
|
| | $0.00 | $0.00 | $0.00 | $0.00 | $0.00 | $0.00 |
Values
| (+) Improvement Homesite Value: | + | $0 | |
| (+) Improvement Non-Homesite Value: | + | $523,710 | |
| (+) Land Homesite Value: | + | $0 | |
| (+) Land Non-Homesite Value: | + | $108,850 | |
| (+) Curr Use (HS): | + | $0 | $0 |
| (+) Curr Use (NHS): | + | $0 | $0 |
| | | -------------------------- | |
| (=) Market Value: | = | $632,560 | |
| (–) Productivity Loss: | – | $0 | |
| | | -------------------------- | |
| (=) Subtotal: | = | $632,560 | |
| (+) Senior Appraised Value: | + | $0 | |
| (+) Non-Senior Appraised Value: | + | $632,560 | |
| | | -------------------------- | |
| (=) Total Appraised Value: | = | $632,560 | |
| (–) Senior Exemption Loss: | – | $0 | |
| (–) Exemption Loss: | – | $0 | |
| | | -------------------------- | |
| (=) Taxable Value: | = | $632,560 | |
Taxing Jurisdiction
| Owner: | JOICE MATT & ALICIA | | |
| % Ownership: | 100.0000000000% | | |
| Total Value: | $632,560 | | |
| Tax Area: | 311 - 250-4 |
| CERFD | CURRENT EXPENSE REFUND 010 | 0.0000000000 | $632,560 | $632,560 | $0.00 | | |
| CURREXP | CURRENT EXPENSE 010 | 1.0175366760 | $632,560 | $632,560 | $643.65 | | |
| HUMNSERV | HUMAN SERVICES 119 | 0.0250000000 | $632,560 | $632,560 | $15.81 | | |
| SLDREL | SOLDIERS RELIEF 121 | 0.0155990005 | $632,560 | $632,560 | $9.87 | | |
| EMERGSER | EMS 147 | 0.3792580840 | $632,560 | $632,560 | $239.90 | | |
| EMSRFD | EMS REFUND 147 | 0.0000000000 | $632,560 | $632,560 | $0.00 | | |
| FD4EXP | FD #4 EXPENSE 686 | 0.8836993059 | $632,560 | $632,560 | $558.99 | | |
| RLBRFD | RURAL LIBRARY REFUND 623 | 0.0000000000 | $632,560 | $632,560 | $0.00 | | |
| RURALLIB | RURAL LIBRARY 623 | 0.3710609029 | $632,560 | $632,560 | $234.72 | | |
| PORTRFD | PORT REFUND 640 | 0.0000000000 | $632,560 | $632,560 | $0.00 | | |
| PORTWWGEN | PORT OF WW 640 | 0.2460186015 | $632,560 | $632,560 | $155.62 | | |
| SD250BOND | SD #250 BOND 773 | 1.4560608159 | $632,560 | $632,560 | $921.05 | | |
| SD250GEN | SD #250 GENERAL 770 | 2.3880724087 | $632,560 | $632,560 | $1,510.60 | | |
| ST2 | STATE SCHOOL PART 2 600 | 0.8131451643 | $632,560 | $632,560 | $514.36 | | |
| STATESCHL | STATE SCHOOL 600 | 1.5158548041 | $632,560 | $632,560 | $958.87 | | |
| STREFUND | STATE REFUND LEVY 603 | 0.0000000000 | $632,560 | $632,560 | $0.00 | | |
| COROAD | COUNTY ROAD 115 | 1.6549953990 | $632,560 | $632,560 | $1,046.88 | | |
| CRPRD | COUNTY ROAD REFUND 115 | 0.0000000000 | $632,560 | $632,560 | $0.00 | | |
| | Total Tax Rate: | 10.7663011628 | | | | | |
| | | | | Taxes w/Current Exemptions: | $6,810.32 | | |
| | | | | Taxes w/o Exemptions: | $6,810.32 | | |
Improvement / Building
| Improvement #1: | RESIDENTIAL | State Code: | 11 | 3322.0 sqft | Value: | $523,710 |
| Exterior Wall: | POURED CONCRETE | Heating/Cooling: | WARM & COOLED AIR | | Number of Bathrooms: | 3 | Number of Bedrooms: | 4 | | Plumbing: | 12 | Roof Covering: | COMP SHINGLE |
|
| | Type | Description | Class CD | Sub Class CD | Year Built | Area |
| | MA | Main Area | 2 | 35 | 2005 | 3322.0 |
| | UPFL | Upper Floor (included in main area) | 2 | 35 | 2005 | 1350.0 |
| | SI1 | SITE IMPROVEMENT | 2 | 35 | 2005 | 3.5 |
| | BASE | BASEMENT | 2 | 35 | 2005 | 680.0 |
| | ATG | Attached Garage | 2 | 35 | 2005 | 840.0 |
| | RPO | OPEN PORCH W/ROOF | 2 | 35 | 2005 | 204.0 |
| | BLW | WOOD BALCONIES | 2 | 35 | 2005 | 120.0 |
Sketch
Property Image
Land
| 1 | RES 1 | Converted: Residential | 8.5400 | 0.00 | 0.00 | 0.00 | 1.00 | $108,850 | $0 |
Roll Value History
| 2026 | N/A | N/A | N/A | N/A | N/A |
| 2025 | $418,970 | $210,340 | $0 | $629,310 | $629,310 |
| 2024 | $523,710 | $108,850 | $0 | $632,560 | $632,560 |
| 2023 | $523,710 | $108,850 | $0 | $632,560 | $632,560 |
| 2022 | $476,100 | $108,850 | $0 | $584,950 | $584,950 |
| 2021 | $238,050 | $108,850 | $0 | $346,900 | $346,900 |
| 2020 | $238,050 | $108,850 | $0 | $346,900 | $346,900 |
| 2019 | $241,700 | $105,200 | $0 | $346,900 | $346,900 |
| 2018 | $241,700 | $105,200 | $0 | $346,900 | $346,900 |
| 2017 | $241,700 | $105,200 | $0 | $346,900 | $346,900 |
| 2016 | $241,700 | $105,200 | $0 | $346,900 | $346,900 |
| 2015 | $241,700 | $105,200 | $0 | $346,900 | $346,900 |
| 2014 | $241,700 | $105,200 | $0 | $346,900 | $346,900 |
| 2013 | $241,700 | $105,200 | $0 | $346,900 | $346,900 |
| 2012 | $241,700 | $105,200 | $0 | $0 | $0 |
| 2011 | $241,700 | $105,200 | $0 | $0 | $0 |
| 2010 | $241,700 | $105,200 | $0 | $0 | $0 |
| 2009 | $280,300 | $105,200 | $0 | $0 | $0 |
| 2008 | $264,500 | $75,200 | $0 | $0 | $0 |
| 2007 | $264,500 | $75,200 | $0 | $0 | $0 |
Deed and Sales History
| 1 | 04/22/2022 | SWD | STATUTORY WARRANTY DEED | WILSON MARK A | JOICE MATT & ALICIA | | | $670,000.00 | 143822 | 2022-03460 |
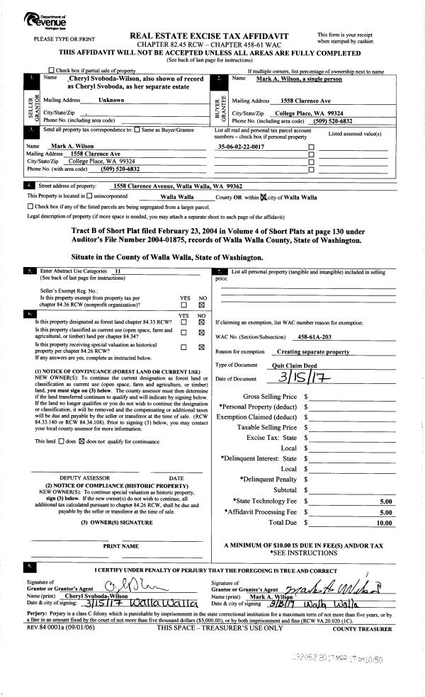
| 2 | 03/15/2017 | QCD | QUIT CLAIM DEED | WILSON MARK A | WILSON MARK A | | | $0.00 | 132062 | 2017-02053 |
| 3 | 08/25/2004 | QCD | QUIT CLAIM DEED | WILSON, MARK A & CHERYL R | WILSON, MARK A | | | | 105569 | 2004-09816 |
| 4 | 03/15/2004 | WARRANTY D | WARRANTY DEED | NORTHRUP, GORDON & SANDRA L | WILSON, MARK A & CHERYL R | | | $40,450.00 | 104267 | 2004-02705 |
Payout Agreement
| No payout information available.. |