Property
Account |
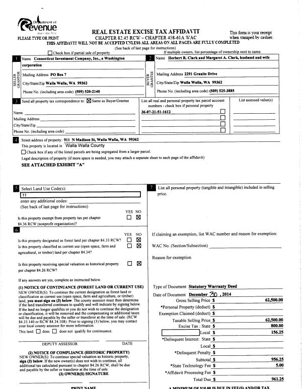
| Property ID: | 7719 | Abbreviated Legal Description: | GREEN PARK SLY 55.34' OF LOT 1 BLK 16 |
| Parcel Number: | 360721511612 | Agent Code: | |
| Type: | Real | | |
| Tax Area: | 1 - OL-140-F | Land Use Code | 11 |
| Open Space: | N | DFL | N |
| Historic Property: | N | Remodel Property: | N |
| Multi-Family Redevelopment: | N | | |
| Township: | 7 | Section: | 21 |
| Range: | 36 |
Location |
| Address: | 911 N MADISON ST WA 99362 | Mapsco: | |
| Neighborhood: | G-SFR | Map ID: | |
| Neighborhood CD: | 514011 |
Owner |
| Name: | CLARK HERBERT R & MARGARET A | Owner ID: | 56021 |
| Mailing Address: | 2291 GRANITE DR WALLA WALLA, WA 99362 | % Ownership: | 100.0000000000% |
| | | Exemptions: | |
Taxes and Assessment Details
Property Tax Information as of
02/21/2026
Click on "Statement Details" to expand or collapse a tax statement.
* Please enter a valid date ** Please enter a valid date *
Statement Details |
| | TOTAL: | $0.00 | $0.00 | $0.00 | $0.00 | $0.00 | $0.00 |
|
| | $0.00 | $0.00 | $0.00 | $0.00 | $0.00 | $0.00 |
Values
| (+) Improvement Homesite Value: | + | $0 | |
| (+) Improvement Non-Homesite Value: | + | $125,160 | |
| (+) Land Homesite Value: | + | $0 | |
| (+) Land Non-Homesite Value: | + | $27,910 | |
| (+) Curr Use (HS): | + | $0 | $0 |
| (+) Curr Use (NHS): | + | $0 | $0 |
| | | -------------------------- | |
| (=) Market Value: | = | $153,070 | |
| (–) Productivity Loss: | – | $0 | |
| | | -------------------------- | |
| (=) Subtotal: | = | $153,070 | |
| (+) Senior Appraised Value: | + | $0 | |
| (+) Non-Senior Appraised Value: | + | $153,070 | |
| | | -------------------------- | |
| (=) Total Appraised Value: | = | $153,070 | |
| (–) Senior Exemption Loss: | – | $0 | |
| (–) Exemption Loss: | – | $0 | |
| | | -------------------------- | |
| (=) Taxable Value: | = | $153,070 | |
Taxing Jurisdiction
| Owner: | CLARK HERBERT R & MARGARET A | | |
| % Ownership: | 100.0000000000% | | |
| Total Value: | $153,070 | | |
| Tax Area: | 1 - OL-140-F |
| CERFD | CURRENT EXPENSE REFUND 010 | 0.0000000000 | $153,070 | $153,070 | $0.00 | | |
| CURREXP | CURRENT EXPENSE 010 | 1.0175366760 | $153,070 | $153,070 | $155.75 | | |
| HUMNSERV | HUMAN SERVICES 119 | 0.0250000000 | $153,070 | $153,070 | $3.83 | | |
| SLDREL | SOLDIERS RELIEF 121 | 0.0155990005 | $153,070 | $153,070 | $2.39 | | |
| EMERGSER | EMS 147 | 0.3792580840 | $153,070 | $153,070 | $58.05 | | |
| EMSRFD | EMS REFUND 147 | 0.0000000000 | $153,070 | $153,070 | $0.00 | | |
| PORTRFD | PORT REFUND 640 | 0.0000000000 | $153,070 | $153,070 | $0.00 | | |
| PORTWWGEN | PORT OF WW 640 | 0.2460186015 | $153,070 | $153,070 | $37.66 | | |
| SD140BOND | SD #140 BOND 764 | 0.8342371393 | $153,070 | $153,070 | $127.70 | | |
| SD140GEN | SD #140 GENERAL 760 | 2.0646500647 | $153,070 | $153,070 | $316.04 | | |
| ST2 | STATE SCHOOL PART 2 600 | 0.8131451643 | $153,070 | $153,070 | $124.47 | | |
| STATESCHL | STATE SCHOOL 600 | 1.5158548041 | $153,070 | $153,070 | $232.03 | | |
| STREFUND | STATE REFUND LEVY 603 | 0.0000000000 | $153,070 | $153,070 | $0.00 | | |
| CWWBOND | C OF WW BOND 643 | 0.2760494372 | $153,070 | $153,070 | $42.25 | | |
| CWWGEN | CITY OF WW 631 | 1.6100204973 | $153,070 | $153,070 | $246.45 | | |
| CWWRFD | CITY OF WALLA WALLA REFUND 631 | 0.0000000000 | $153,070 | $153,070 | $0.00 | | |
| | Total Tax Rate: | 8.7973694689 | | | | | |
| | | | | Taxes w/Current Exemptions: | $1,346.62 | | |
| | | | | Taxes w/o Exemptions: | $1,346.62 | | |
Improvement / Building
| Improvement #1: | RESIDENTIAL | State Code: | 11 | 572.0 sqft | Value: | $125,160 |
| Exterior Wall: | SIDING | Heating/Cooling: | WARM & COOLED AIR | | Number of Bathrooms: | 1 | Number of Bedrooms: | 2 | | Plumbing: | 7 | Roof Covering: | COMP SHINGLE |
|
| | Type | Description | Class CD | Sub Class CD | Year Built | Area |
| | MA | Main Area | 1 | 25 | 1936 | 572.0 |
| | SI1 | SITE IMPROVEMENT | 1 | 25 | 0 | 1.0 |
| | BASE | BASEMENT | 1 | 25 | 1936 | 429.0 |
| | OPS | OPEN PORCH W/STEPS | 1 | 25 | 1936 | 24.0 |
| | DTG | Detached Garage | 1 | 25 | 1936 | 216.0 |
Sketch
Property Image
Land
| 1 | RES 1 | Converted: Residential | 0.0884 | 3850.00 | 0.00 | 0.00 | 1.00 | $27,910 | $0 |
Roll Value History
| 2026 | N/A | N/A | N/A | N/A | N/A |
| 2025 | $145,780 | $42,350 | $0 | $188,130 | $188,130 |
| 2024 | $145,780 | $42,350 | $0 | $188,130 | $188,130 |
| 2023 | $125,160 | $27,910 | $0 | $153,070 | $153,070 |
| 2022 | $113,780 | $27,910 | $0 | $141,690 | $141,690 |
| 2021 | $113,780 | $27,910 | $0 | $141,690 | $141,690 |
| 2020 | $71,110 | $27,910 | $0 | $99,020 | $99,020 |
| 2019 | $71,110 | $27,910 | $0 | $99,020 | $99,020 |
| 2018 | $56,890 | $27,910 | $0 | $84,800 | $84,800 |
| 2017 | $52,730 | $17,300 | $0 | $70,030 | $70,030 |
| 2016 | $43,950 | $17,300 | $0 | $61,250 | $61,250 |
| 2015 | $43,950 | $17,300 | $0 | $61,250 | $61,250 |
| 2014 | $51,700 | $17,300 | $0 | $69,000 | $69,000 |
| 2013 | $51,700 | $17,300 | $0 | $69,000 | $69,000 |
| 2012 | $51,100 | $17,300 | $0 | $0 | $0 |
| 2011 | $51,100 | $17,300 | $0 | $0 | $0 |
| 2010 | $47,800 | $17,300 | $0 | $0 | $0 |
| 2009 | $55,000 | $17,300 | $0 | $0 | $0 |
| 2008 | $55,000 | $17,300 | $0 | $0 | $0 |
| 2007 | $55,000 | $17,300 | $0 | $0 | $0 |
Deed and Sales History
| 1 | 12/31/2014 | SWD | STATUTORY WARRANTY DEED | CONNECTICUT INVESTMENT CO | CLARK HERBERT R & MARGARET A | | | $62,500.00 | 127203 | 2014-09504 |
| 2 | 01/01/1964 | WARRANTY D | WARRANTY DEED | | | | | $0.00 | 0 | 2800-394410 |
Payout Agreement
| No payout information available.. |