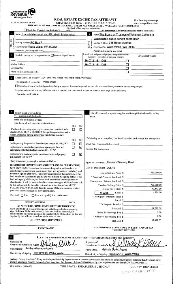
Property
Account |
| Property ID: | 7694 | Abbreviated Legal Description: | GREEN PARK TAX 1 LOT 6 BLK 12 |
| Parcel Number: | 360721511206 | Agent Code: | |
| Type: | Real | | |
| Tax Area: | 1 - OL-140-F | Land Use Code | 11 |
| Open Space: | N | DFL | N |
| Historic Property: | N | Remodel Property: | N |
| Multi-Family Redevelopment: | N | | |
| Township: | 7 | Section: | 21 |
| Range: | 36 |
Location |
| Address: | 1041 ISAACS AVE WA 99362 | Mapsco: | |
| Neighborhood: | G-SFR | Map ID: | |
| Neighborhood CD: | 514011 |
Owner |
| Name: | WHITMAN COLL BOARD OF TRUSTEES | Owner ID: | 694 |
| Mailing Address: | C/O TREASURERS OFFICE 345 BOYER AVE WALLA WALLA, WA 99362 | % Ownership: | 100.0000000000% |
| | | Exemptions: | EX |
Taxes and Assessment Details
Property Tax Information as of
02/21/2026
Click on "Statement Details" to expand or collapse a tax statement.
* Please enter a valid date ** Please enter a valid date *
Statement Details |
| | TOTAL: | $0.00 | $0.00 | $0.00 | $0.00 | $0.00 | $0.00 |
|
| | $0.00 | $0.00 | $0.00 | $0.00 | $0.00 | $0.00 |
Values
| (+) Improvement Homesite Value: | + | $0 | |
| (+) Improvement Non-Homesite Value: | + | $415,890 | |
| (+) Land Homesite Value: | + | $0 | |
| (+) Land Non-Homesite Value: | + | $59,200 | |
| (+) Curr Use (HS): | + | $0 | $0 |
| (+) Curr Use (NHS): | + | $0 | $0 |
| | | -------------------------- | |
| (=) Market Value: | = | $475,090 | |
| (–) Productivity Loss: | – | $0 | |
| | | -------------------------- | |
| (=) Subtotal: | = | $475,090 | |
| (+) Senior Appraised Value: | + | $0 | |
| (+) Non-Senior Appraised Value: | + | $475,090 | |
| | | -------------------------- | |
| (=) Total Appraised Value: | = | $475,090 | |
| (–) Senior Exemption Loss: | – | $0 | |
| (–) Exemption Loss: | – | $475,090 | |
| | | -------------------------- | |
| (=) Taxable Value: | = | $0 | |
Taxing Jurisdiction
| Owner: | WHITMAN COLL BOARD OF TRUSTEES | | |
| % Ownership: | 100.0000000000% | | |
| Total Value: | $475,090 | | |
| Tax Area: | 1 - OL-140-F |
| CERFD | CURRENT EXPENSE REFUND 010 | 0.0000000000 | $475,090 | $0 | $0.00 | | |
| CURREXP | CURRENT EXPENSE 010 | 1.0175366760 | $475,090 | $0 | $0.00 | | |
| HUMNSERV | HUMAN SERVICES 119 | 0.0250000000 | $475,090 | $0 | $0.00 | | |
| SLDREL | SOLDIERS RELIEF 121 | 0.0155990005 | $475,090 | $0 | $0.00 | | |
| EMERGSER | EMS 147 | 0.3792580840 | $475,090 | $0 | $0.00 | | |
| EMSRFD | EMS REFUND 147 | 0.0000000000 | $475,090 | $0 | $0.00 | | |
| PORTRFD | PORT REFUND 640 | 0.0000000000 | $475,090 | $0 | $0.00 | | |
| PORTWWGEN | PORT OF WW 640 | 0.2460186015 | $475,090 | $0 | $0.00 | | |
| SD140BOND | SD #140 BOND 764 | 0.8342371393 | $475,090 | $0 | $0.00 | | |
| SD140GEN | SD #140 GENERAL 760 | 2.0646500647 | $475,090 | $0 | $0.00 | | |
| ST2 | STATE SCHOOL PART 2 600 | 0.8131451643 | $475,090 | $0 | $0.00 | | |
| STATESCHL | STATE SCHOOL 600 | 1.5158548041 | $475,090 | $0 | $0.00 | | |
| STREFUND | STATE REFUND LEVY 603 | 0.0000000000 | $475,090 | $0 | $0.00 | | |
| CWWBOND | C OF WW BOND 643 | 0.2760494372 | $475,090 | $0 | $0.00 | | |
| CWWGEN | CITY OF WW 631 | 1.6100204973 | $475,090 | $0 | $0.00 | | |
| CWWRFD | CITY OF WALLA WALLA REFUND 631 | 0.0000000000 | $475,090 | $0 | $0.00 | | |
| | Total Tax Rate: | 8.7973694689 | | | | | |
| | | | | Taxes w/Current Exemptions: | $0.00 | | |
| | | | | Taxes w/o Exemptions: | $4,179.54 | | |
Improvement / Building
| Improvement #1: | RESIDENTIAL | State Code: | 11 | 2265.0 sqft | Value: | $415,890 |
| Exterior Wall: | SIDING | Heating/Cooling: | FORCED AIR | | Number of Bathrooms: | 2 | Number of Bedrooms: | 4 | | Plumbing: | 8 | Roof Covering: | COMP SHINGLE |
|
| | Type | Description | Class CD | Sub Class CD | Year Built | Area |
| | MA | Main Area | 4 | 35 | 1930 | 2265.0 |
| | SI1 | SITE IMPROVEMENT | 4 | 35 | 0 | 1.5 |
| | BASE | BASEMENT | 4 | 35 | 1930 | 1514.0 |
| | BPF | BASEMENT -PARTITIONED FINISH | 4 | 35 | 1930 | 400.0 |
| | STG1 | Sub Terrain Garage Single | 4 | 35 | 1930 | 1.0 |
| | RPS | PORCH W/STEPS,ROOF | 4 | 35 | 1930 | 48.0 |
| | S1F | Single One Story Fireplace | 4 | 35 | 1930 | 1.0 |
| | OUT | OUTSIDE BASEMENT ENTRY | 4 | 35 | 1930 | 1.0 |
| | UPFL | Upper Floor (included in main area) | 4 | 35 | 1930 | 727.0 |
Sketch
Property Image
Land
| 1 | RES 1 | Converted: Residential | 0.1873 | 8160.00 | 0.00 | 0.00 | 1.00 | $59,200 | $0 |
Roll Value History
| 2026 | N/A | N/A | N/A | N/A | N/A |
| 2025 | $356,910 | $59,200 | $0 | $416,110 | $0 |
| 2024 | $356,910 | $59,200 | $0 | $416,110 | $0 |
| 2023 | $415,890 | $59,200 | $0 | $475,090 | $0 |
| 2022 | $396,080 | $59,200 | $0 | $455,280 | $0 |
| 2021 | $330,070 | $59,200 | $0 | $389,270 | $0 |
| 2020 | $253,900 | $59,200 | $0 | $313,100 | $0 |
| 2019 | $239,760 | $59,160 | $0 | $298,920 | $298,920 |
| 2018 | $228,340 | $59,160 | $0 | $287,500 | $287,500 |
| 2017 | $245,120 | $36,700 | $0 | $281,820 | $281,820 |
| 2016 | $222,840 | $36,700 | $0 | $259,540 | $259,540 |
| 2015 | $222,840 | $36,700 | $0 | $259,540 | $259,540 |
| 2014 | $185,700 | $36,700 | $0 | $222,400 | $222,400 |
| 2013 | $185,700 | $36,700 | $0 | $222,400 | $222,400 |
| 2012 | $185,700 | $36,700 | $0 | $0 | $0 |
| 2011 | $141,200 | $36,700 | $0 | $0 | $0 |
| 2010 | $132,700 | $36,700 | $0 | $0 | $0 |
| 2009 | $151,500 | $36,700 | $0 | $0 | $0 |
| 2008 | $138,500 | $32,600 | $0 | $0 | $0 |
| 2007 | $138,500 | $32,600 | $0 | $0 | $0 |
Deed and Sales History
| 1 | 09/30/2019 | SWD | STATUTORY WARRANTY DEED | MATSCHUKAT HANS & ELIZABETH | WHITMAN COLL BOARD OF TRUSTEES | | 2-PARCELS | $790,000.00 | 137792 | 2019-07741 |
|   | |
| 2 | 03/31/2014 | SWD | STATUTORY WARRANTY DEED | WHITFIELD DONNIE R | MATSCHUKAT HANS & ELIZABETH | | | $260,000.00 | 125646 | 2014-02184 |
| 3 | 05/25/2000 | WARRANTY D | WARRANTY DEED | | | | | $115,000.00 | 95132 | 2980-005003 |
Payout Agreement
| No payout information available.. |