Property
Account |
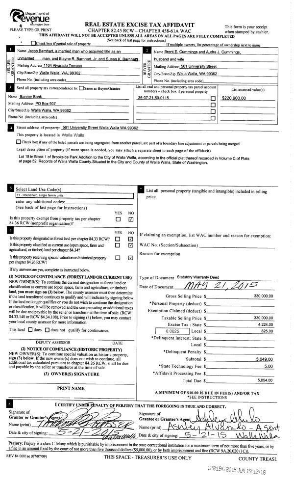
| Property ID: | 7692 | Abbreviated Legal Description: | BROOKSIDE PARK LOT 15 BLK 1 |
| Parcel Number: | 360721500115 | Agent Code: | |
| Type: | Real | | |
| Tax Area: | 1 - OL-140-F | Land Use Code | 11 |
| Open Space: | N | DFL | N |
| Historic Property: | N | Remodel Property: | N |
| Multi-Family Redevelopment: | N | | |
| Township: | 7 | Section: | 21 |
| Range: | 36 |
Location |
| Address: | 561 UNIVERSITY ST WA 99362 | Mapsco: | |
| Neighborhood: | G Superior SFR | Map ID: | |
| Neighborhood CD: | 514211 |
Owner |
| Name: | CUMMINGS BRENT E & AUDRA J | Owner ID: | 51809 |
| Mailing Address: | 561 UNIVERSITY ST WALLA WALLA, WA 99362 | % Ownership: | 100.0000000000% |
| | | Exemptions: | |
Taxes and Assessment Details
Property Tax Information as of
02/21/2026
Click on "Statement Details" to expand or collapse a tax statement.
* Please enter a valid date ** Please enter a valid date *
Statement Details |
| | TOTAL: | $0.00 | $0.00 | $0.00 | $0.00 | $0.00 | $0.00 |
|
| | $0.00 | $0.00 | $0.00 | $0.00 | $0.00 | $0.00 |
Values
| (+) Improvement Homesite Value: | + | $0 | |
| (+) Improvement Non-Homesite Value: | + | $391,460 | |
| (+) Land Homesite Value: | + | $0 | |
| (+) Land Non-Homesite Value: | + | $39,150 | |
| (+) Curr Use (HS): | + | $0 | $0 |
| (+) Curr Use (NHS): | + | $0 | $0 |
| | | -------------------------- | |
| (=) Market Value: | = | $430,610 | |
| (–) Productivity Loss: | – | $0 | |
| | | -------------------------- | |
| (=) Subtotal: | = | $430,610 | |
| (+) Senior Appraised Value: | + | $0 | |
| (+) Non-Senior Appraised Value: | + | $430,610 | |
| | | -------------------------- | |
| (=) Total Appraised Value: | = | $430,610 | |
| (–) Senior Exemption Loss: | – | $0 | |
| (–) Exemption Loss: | – | $0 | |
| | | -------------------------- | |
| (=) Taxable Value: | = | $430,610 | |
Taxing Jurisdiction
| Owner: | CUMMINGS BRENT E & AUDRA J | | |
| % Ownership: | 100.0000000000% | | |
| Total Value: | $430,610 | | |
| Tax Area: | 1 - OL-140-F |
| CERFD | CURRENT EXPENSE REFUND 010 | 0.0000000000 | $430,610 | $430,610 | $0.00 | | |
| CURREXP | CURRENT EXPENSE 010 | 1.0175366760 | $430,610 | $430,610 | $438.16 | | |
| HUMNSERV | HUMAN SERVICES 119 | 0.0250000000 | $430,610 | $430,610 | $10.77 | | |
| SLDREL | SOLDIERS RELIEF 121 | 0.0155990005 | $430,610 | $430,610 | $6.72 | | |
| EMERGSER | EMS 147 | 0.3792580840 | $430,610 | $430,610 | $163.31 | | |
| EMSRFD | EMS REFUND 147 | 0.0000000000 | $430,610 | $430,610 | $0.00 | | |
| PORTRFD | PORT REFUND 640 | 0.0000000000 | $430,610 | $430,610 | $0.00 | | |
| PORTWWGEN | PORT OF WW 640 | 0.2460186015 | $430,610 | $430,610 | $105.94 | | |
| SD140BOND | SD #140 BOND 764 | 0.8342371393 | $430,610 | $430,610 | $359.23 | | |
| SD140GEN | SD #140 GENERAL 760 | 2.0646500647 | $430,610 | $430,610 | $889.06 | | |
| ST2 | STATE SCHOOL PART 2 600 | 0.8131451643 | $430,610 | $430,610 | $350.15 | | |
| STATESCHL | STATE SCHOOL 600 | 1.5158548041 | $430,610 | $430,610 | $652.74 | | |
| STREFUND | STATE REFUND LEVY 603 | 0.0000000000 | $430,610 | $430,610 | $0.00 | | |
| CWWBOND | C OF WW BOND 643 | 0.2760494372 | $430,610 | $430,610 | $118.87 | | |
| CWWGEN | CITY OF WW 631 | 1.6100204973 | $430,610 | $430,610 | $693.29 | | |
| CWWRFD | CITY OF WALLA WALLA REFUND 631 | 0.0000000000 | $430,610 | $430,610 | $0.00 | | |
| | Total Tax Rate: | 8.7973694689 | | | | | |
| | | | | Taxes w/Current Exemptions: | $3,788.24 | | |
| | | | | Taxes w/o Exemptions: | $3,788.24 | | |
Improvement / Building
| Improvement #1: | RESIDENTIAL | State Code: | 11 | 1736.0 sqft | Value: | $391,460 |
| Exterior Wall: | SIDING | Heating/Cooling: | WARM & COOLED AIR | | Number of Bathrooms: | 2.5 | Number of Bedrooms: | 4 | | Plumbing: | 14 | Roof Covering: | COMP SHINGLE |
|
| | Type | Description | Class CD | Sub Class CD | Year Built | Area |
| | MA | Main Area | 4 | 45 | 1900 | 1736.0 |
| | SI1 | SITE IMPROVEMENT | 4 | 45 | 0 | 2.0 |
| | BASE | BASEMENT | 4 | 45 | 1900 | 1200.0 |
| | BPF | BASEMENT -PARTITIONED FINISH | 4 | 45 | 1900 | 600.0 |
| | STG1 | Sub Terrain Garage Single | 4 | 45 | 1900 | 1.0 |
| | UPFL | Upper Floor (included in main area) | 4 | 45 | 1900 | 500.0 |
| | WOD | Wood Deck | 4 | 45 | 1900 | 40.0 |
| | D2F | Double 2 Story Fireplace | 4 | 45 | 1900 | 1.0 |
Sketch
Property Image
Land
| 1 | RES 1 | Converted: Residential | 0.1240 | 5400.00 | 0.00 | 0.00 | 1.00 | $39,150 | $0 |
Roll Value History
| 2026 | N/A | N/A | N/A | N/A | N/A |
| 2025 | $370,660 | $59,400 | $0 | $430,060 | $430,060 |
| 2024 | $370,660 | $59,400 | $0 | $430,060 | $430,060 |
| 2023 | $391,460 | $39,150 | $0 | $430,610 | $430,610 |
| 2022 | $391,460 | $39,150 | $0 | $430,610 | $430,610 |
| 2021 | $326,220 | $39,150 | $0 | $365,370 | $365,370 |
| 2020 | $296,560 | $39,150 | $0 | $335,710 | $335,710 |
| 2019 | $296,560 | $39,150 | $0 | $335,710 | $335,710 |
| 2018 | $296,560 | $39,150 | $0 | $335,710 | $335,710 |
| 2017 | $311,410 | $24,300 | $0 | $335,710 | $335,710 |
| 2016 | $283,100 | $24,300 | $0 | $307,400 | $307,400 |
| 2015 | $235,920 | $24,300 | $0 | $260,220 | $260,220 |
| 2014 | $196,600 | $24,300 | $0 | $220,900 | $220,900 |
| 2013 | $196,600 | $24,300 | $0 | $220,900 | $220,900 |
| 2012 | $196,600 | $24,300 | $0 | $0 | $0 |
| 2011 | $196,600 | $24,300 | $0 | $0 | $0 |
| 2010 | $186,100 | $24,300 | $0 | $0 | $0 |
| 2009 | $209,500 | $24,300 | $0 | $0 | $0 |
| 2008 | $209,500 | $24,300 | $0 | $0 | $0 |
| 2007 | $209,500 | $24,300 | $0 | $0 | $0 |
Deed and Sales History
| 1 | 06/19/2015 | SWD | STATUTORY WARRANTY DEED | BARNHART JACOB | CUMMINGS BRENT E & AUDRA J | | | $330,000.00 | 128196 | 2015-05159 |
| 2 | 08/04/2009 | WARRANTY D | WARRANTY DEED | STEIN, JUDITH L | BARNHART, JACOB | | | $225,800.00 | 117117 | 2009-07918 |
| 3 | 06/24/1987 | WARRANTY D | WARRANTY DEED | | | | | $89,800.00 | 0 | 1658-704858 |
Payout Agreement
| No payout information available.. |