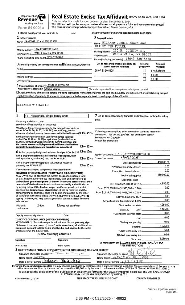
Property
Account |
| Property ID: | 7684 | Abbreviated Legal Description: | BROOKSIDE PARK LOT 5 BLK 1 |
| Parcel Number: | 360721500105 | Agent Code: | |
| Type: | Real | | |
| Tax Area: | 1 - OL-140-F | Land Use Code | 11 |
| Open Space: | N | DFL | N |
| Historic Property: | N | Remodel Property: | N |
| Multi-Family Redevelopment: | N | | |
| Township: | 7 | Section: | 21 |
| Range: | 36 |
Location |
| Address: | 215 N CLINTON ST WA 99362 | Mapsco: | |
| Neighborhood: | G Superior SFR | Map ID: | |
| Neighborhood CD: | 514211 |
Owner |
| Name: | HE JIANPING | Owner ID: | 50555 |
| Mailing Address: | JING ZHOU 1244 FORREST LANE WALLA WALLA, WA 99362 | % Ownership: | 100.0000000000% |
| | | Exemptions: | |
Taxes and Assessment Details
Property Tax Information as of
02/21/2026
Click on "Statement Details" to expand or collapse a tax statement.
* Please enter a valid date ** Please enter a valid date *
Statement Details |
| | TOTAL: | $0.00 | $0.00 | $0.00 | $0.00 | $0.00 | $0.00 |
|
| | $0.00 | $0.00 | $0.00 | $0.00 | $0.00 | $0.00 |
Values
| (+) Improvement Homesite Value: | + | $0 | |
| (+) Improvement Non-Homesite Value: | + | $411,510 | |
| (+) Land Homesite Value: | + | $0 | |
| (+) Land Non-Homesite Value: | + | $52,930 | |
| (+) Curr Use (HS): | + | $0 | $0 |
| (+) Curr Use (NHS): | + | $0 | $0 |
| | | -------------------------- | |
| (=) Market Value: | = | $464,440 | |
| (–) Productivity Loss: | – | $0 | |
| | | -------------------------- | |
| (=) Subtotal: | = | $464,440 | |
| (+) Senior Appraised Value: | + | $0 | |
| (+) Non-Senior Appraised Value: | + | $464,440 | |
| | | -------------------------- | |
| (=) Total Appraised Value: | = | $464,440 | |
| (–) Senior Exemption Loss: | – | $0 | |
| (–) Exemption Loss: | – | $0 | |
| | | -------------------------- | |
| (=) Taxable Value: | = | $464,440 | |
Taxing Jurisdiction
| Owner: | HE JIANPING | | |
| % Ownership: | 100.0000000000% | | |
| Total Value: | $464,440 | | |
| Tax Area: | 1 - OL-140-F |
| CERFD | CURRENT EXPENSE REFUND 010 | 0.0000000000 | $464,440 | $464,440 | $0.00 | | |
| CURREXP | CURRENT EXPENSE 010 | 1.0175366760 | $464,440 | $464,440 | $472.58 | | |
| HUMNSERV | HUMAN SERVICES 119 | 0.0250000000 | $464,440 | $464,440 | $11.61 | | |
| SLDREL | SOLDIERS RELIEF 121 | 0.0155990005 | $464,440 | $464,440 | $7.24 | | |
| EMERGSER | EMS 147 | 0.3792580840 | $464,440 | $464,440 | $176.14 | | |
| EMSRFD | EMS REFUND 147 | 0.0000000000 | $464,440 | $464,440 | $0.00 | | |
| PORTRFD | PORT REFUND 640 | 0.0000000000 | $464,440 | $464,440 | $0.00 | | |
| PORTWWGEN | PORT OF WW 640 | 0.2460186015 | $464,440 | $464,440 | $114.26 | | |
| SD140BOND | SD #140 BOND 764 | 0.8342371393 | $464,440 | $464,440 | $387.45 | | |
| SD140GEN | SD #140 GENERAL 760 | 2.0646500647 | $464,440 | $464,440 | $958.91 | | |
| ST2 | STATE SCHOOL PART 2 600 | 0.8131451643 | $464,440 | $464,440 | $377.66 | | |
| STATESCHL | STATE SCHOOL 600 | 1.5158548041 | $464,440 | $464,440 | $704.02 | | |
| STREFUND | STATE REFUND LEVY 603 | 0.0000000000 | $464,440 | $464,440 | $0.00 | | |
| CWWBOND | C OF WW BOND 643 | 0.2760494372 | $464,440 | $464,440 | $128.21 | | |
| CWWGEN | CITY OF WW 631 | 1.6100204973 | $464,440 | $464,440 | $747.76 | | |
| CWWRFD | CITY OF WALLA WALLA REFUND 631 | 0.0000000000 | $464,440 | $464,440 | $0.00 | | |
| | Total Tax Rate: | 8.7973694689 | | | | | |
| | | | | Taxes w/Current Exemptions: | $4,085.84 | | |
| | | | | Taxes w/o Exemptions: | $4,085.84 | | |
Improvement / Building
| Improvement #1: | RESIDENTIAL | State Code: | 11 | 1976.0 sqft | Value: | $411,510 |
| Exterior Wall: | SIDING | Heating/Cooling: | WARM & COOLED AIR | | Number of Bathrooms: | 2 | Number of Bedrooms: | 5 | | Plumbing: | 10 | Roof Covering: | COMP SHINGLE |
|
| | Type | Description | Class CD | Sub Class CD | Year Built | Area |
| | MA | Main Area | 2 | 45 | 1910 | 1976.0 |
| | RCD | WOOD DECK W/ROOF, CEILED | 2 | 45 | 0 | 148.0 |
| | SI1 | SITE IMPROVEMENT | 2 | 45 | 0 | 2.5 |
| | BASE | BASEMENT | 2 | 45 | 1910 | 984.0 |
| | DTG | Detached Garage | 2 | 45 | 1910 | 280.0 |
| | UPFL | Upper Floor (included in main area) | 2 | 45 | 1910 | 988.0 |
Sketch
Property Image
Land
| 1 | RES 1 | Converted: Residential | 0.1676 | 7300.00 | 0.00 | 0.00 | 1.00 | $52,930 | $0 |
Roll Value History
| 2026 | N/A | N/A | N/A | N/A | N/A |
| 2025 | $386,260 | $80,300 | $0 | $466,560 | $466,560 |
| 2024 | $386,260 | $80,300 | $0 | $466,560 | $466,560 |
| 2023 | $411,510 | $52,930 | $0 | $464,440 | $464,440 |
| 2022 | $411,510 | $52,930 | $0 | $464,440 | $464,440 |
| 2021 | $342,920 | $52,930 | $0 | $395,850 | $395,850 |
| 2020 | $285,770 | $52,930 | $0 | $338,700 | $338,700 |
| 2019 | $285,770 | $52,930 | $0 | $338,700 | $338,700 |
| 2018 | $285,770 | $52,930 | $0 | $338,700 | $338,700 |
| 2017 | $285,770 | $32,900 | $0 | $318,670 | $318,670 |
| 2016 | $238,140 | $32,900 | $0 | $271,040 | $271,040 |
| 2015 | $198,450 | $32,900 | $0 | $231,350 | $231,350 |
| 2014 | $189,000 | $32,900 | $0 | $221,900 | $221,900 |
| 2013 | $189,000 | $32,900 | $0 | $221,900 | $221,900 |
| 2012 | $182,400 | $32,900 | $0 | $0 | $0 |
| 2011 | $172,100 | $32,900 | $0 | $0 | $0 |
| 2010 | $172,100 | $32,900 | $0 | $0 | $0 |
| 2009 | $194,900 | $32,900 | $0 | $0 | $0 |
| 2008 | $194,900 | $32,900 | $0 | $0 | $0 |
| 2007 | $194,900 | $32,900 | $0 | $0 | $0 |
Deed and Sales History
| 1 | 01/22/2025 | SWD | STATUTORY WARRANTY DEED | HE JIANPING | BRAUN RICHARD CURRIE & HAILEY LYN FULLER | | | $450,000.00 | 148822 | 2025-00362 |
| 2 | 11/15/2011 | WARRANTY D | WARRANTY DEED | MORENO, JOHN J & MARCIA L | HE, JIANPING | | | $230,000.00 | 120982 | 2011-08961 |
| 3 | 07/01/2000 | WARRANTY D | WARRANTY DEED | | | | | $155,000.00 | 95555 | 3010-007323 |
Payout Agreement
| No payout information available.. |