Property
Account |
| Property ID: | 7670 | Abbreviated Legal Description: | 21-7-36 TAX 66B |
| Parcel Number: | 360721440005 | Agent Code: | |
| Type: | Real | | |
| Tax Area: | 1 - OL-140-F | Land Use Code | 11 |
| Open Space: | N | DFL | N |
| Historic Property: | N | Remodel Property: | N |
| Multi-Family Redevelopment: | N | | |
| Township: | 7 | Section: | 21 |
| Range: | 36 |
Location |
| Address: | 1554 E ALDER ST WA 99362 | Mapsco: | |
| Neighborhood: | A-SFR | Map ID: | |
| Neighborhood CD: | 513011 |
Owner |
| Name: | GOOD PAUL H & ANNA B | Owner ID: | 8216 |
| Mailing Address: | C/O LAURIE KAUTZ 89326 DELLMOOR LOOP WARRENTON, OR 97146 | % Ownership: | 100.0000000000% |
| | | Exemptions: | |
Taxes and Assessment Details
Property Tax Information as of
02/21/2026
Click on "Statement Details" to expand or collapse a tax statement.
* Please enter a valid date ** Please enter a valid date *
Statement Details |
| | TOTAL: | $0.00 | $0.00 | $0.00 | $0.00 | $0.00 | $0.00 |
|
| | $0.00 | $0.00 | $0.00 | $0.00 | $0.00 | $0.00 |
Values
| (+) Improvement Homesite Value: | + | $0 | |
| (+) Improvement Non-Homesite Value: | + | $244,100 | |
| (+) Land Homesite Value: | + | $0 | |
| (+) Land Non-Homesite Value: | + | $43,560 | |
| (+) Curr Use (HS): | + | $0 | $0 |
| (+) Curr Use (NHS): | + | $0 | $0 |
| | | -------------------------- | |
| (=) Market Value: | = | $287,660 | |
| (–) Productivity Loss: | – | $0 | |
| | | -------------------------- | |
| (=) Subtotal: | = | $287,660 | |
| (+) Senior Appraised Value: | + | $0 | |
| (+) Non-Senior Appraised Value: | + | $287,660 | |
| | | -------------------------- | |
| (=) Total Appraised Value: | = | $287,660 | |
| (–) Senior Exemption Loss: | – | $0 | |
| (–) Exemption Loss: | – | $0 | |
| | | -------------------------- | |
| (=) Taxable Value: | = | $287,660 | |
Taxing Jurisdiction
| Owner: | GOOD PAUL H & ANNA B | | |
| % Ownership: | 100.0000000000% | | |
| Total Value: | $287,660 | | |
| Tax Area: | 1 - OL-140-F |
| CERFD | CURRENT EXPENSE REFUND 010 | 0.0000000000 | $287,660 | $287,660 | $0.00 | | |
| CURREXP | CURRENT EXPENSE 010 | 1.0175366760 | $287,660 | $287,660 | $292.70 | | |
| HUMNSERV | HUMAN SERVICES 119 | 0.0250000000 | $287,660 | $287,660 | $7.19 | | |
| SLDREL | SOLDIERS RELIEF 121 | 0.0155990005 | $287,660 | $287,660 | $4.49 | | |
| EMERGSER | EMS 147 | 0.3792580840 | $287,660 | $287,660 | $109.10 | | |
| EMSRFD | EMS REFUND 147 | 0.0000000000 | $287,660 | $287,660 | $0.00 | | |
| PORTRFD | PORT REFUND 640 | 0.0000000000 | $287,660 | $287,660 | $0.00 | | |
| PORTWWGEN | PORT OF WW 640 | 0.2460186015 | $287,660 | $287,660 | $70.77 | | |
| SD140BOND | SD #140 BOND 764 | 0.8342371393 | $287,660 | $287,660 | $239.98 | | |
| SD140GEN | SD #140 GENERAL 760 | 2.0646500647 | $287,660 | $287,660 | $593.92 | | |
| ST2 | STATE SCHOOL PART 2 600 | 0.8131451643 | $287,660 | $287,660 | $233.91 | | |
| STATESCHL | STATE SCHOOL 600 | 1.5158548041 | $287,660 | $287,660 | $436.05 | | |
| STREFUND | STATE REFUND LEVY 603 | 0.0000000000 | $287,660 | $287,660 | $0.00 | | |
| CWWBOND | C OF WW BOND 643 | 0.2760494372 | $287,660 | $287,660 | $79.41 | | |
| CWWGEN | CITY OF WW 631 | 1.6100204973 | $287,660 | $287,660 | $463.14 | | |
| CWWRFD | CITY OF WALLA WALLA REFUND 631 | 0.0000000000 | $287,660 | $287,660 | $0.00 | | |
| | Total Tax Rate: | 8.7973694689 | | | | | |
| | | | | Taxes w/Current Exemptions: | $2,530.66 | | |
| | | | | Taxes w/o Exemptions: | $2,530.66 | | |
Improvement / Building
| Improvement #1: | RESIDENTIAL | State Code: | 11 | 1662.0 sqft | Value: | $244,100 |
| Exterior Wall: | PLYWOOD | Heating/Cooling: | HEAT PUMP | | Number of Bathrooms: | 2 | Number of Bedrooms: | 3 | | Plumbing: | 9 | Roof Covering: | COMP SHINGLE |
|
| | Type | Description | Class CD | Sub Class CD | Year Built | Area |
| | MA | Main Area | 1 | 25 | 1970 | 1662.0 |
| | SI1 | SITE IMPROVEMENT | 1 | 25 | 1970 | 1.0 |
| | RPO | OPEN PORCH W/ROOF | 1 | 25 | 1970 | 48.0 |
| | SWP | Solid Wall Porch | 1 | 25 | 1970 | 88.0 |
| | ATG | Attached Garage | 1 | 25 | 1970 | 672.0 |
Sketch
Property Image
Land
| 1 | RES 1 | Converted: Residential | 0.1600 | 6970.00 | 0.00 | 0.00 | 1.00 | $43,560 | $0 |
Roll Value History
| 2026 | N/A | N/A | N/A | N/A | N/A |
| 2025 | $271,770 | $69,700 | $0 | $341,470 | $341,470 |
| 2024 | $258,830 | $69,700 | $0 | $328,530 | $328,530 |
| 2023 | $244,100 | $43,560 | $0 | $287,660 | $287,660 |
| 2022 | $221,910 | $43,560 | $0 | $265,470 | $265,470 |
| 2021 | $184,920 | $43,560 | $0 | $228,480 | $228,480 |
| 2020 | $127,530 | $43,560 | $0 | $171,090 | $171,090 |
| 2019 | $127,530 | $43,560 | $0 | $171,090 | $171,090 |
| 2018 | $121,460 | $43,560 | $0 | $165,020 | $165,020 |
| 2017 | $134,860 | $27,900 | $0 | $162,760 | $162,760 |
| 2016 | $128,440 | $27,900 | $0 | $156,340 | $156,340 |
| 2015 | $122,330 | $27,900 | $0 | $150,230 | $150,230 |
| 2014 | $116,500 | $27,900 | $0 | $144,400 | $144,400 |
| 2013 | $116,500 | $27,900 | $0 | $144,400 | $144,400 |
| 2012 | $116,500 | $27,900 | $0 | $0 | $0 |
| 2011 | $116,500 | $27,900 | $0 | $0 | $0 |
| 2010 | $124,100 | $27,900 | $0 | $0 | $0 |
| 2009 | $141,000 | $27,900 | $0 | $0 | $0 |
| 2008 | $102,000 | $27,900 | $0 | $0 | $0 |
| 2007 | $102,000 | $27,900 | $0 | $0 | $0 |
Deed and Sales History
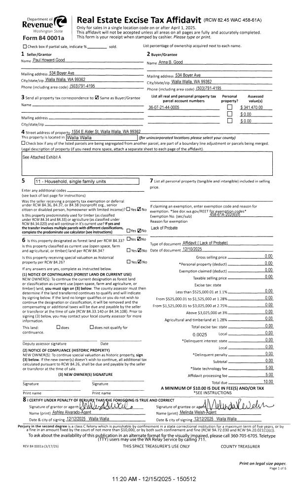
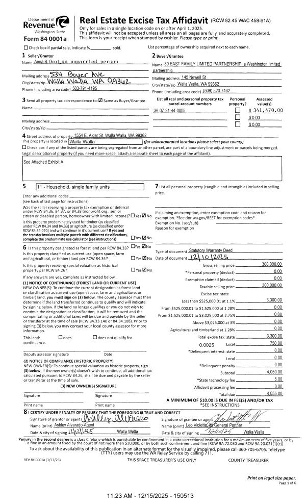
| 1 | 12/15/2025 | SWD | STATUTORY WARRANTY DEED | GOOD ANNA B | 30 EAST FAMILY LIMITED PARTNERSHIP | | | $300,000.00 | 150513 | 2025-07670 |
| 2 | 12/15/2025 | LOPA | LACK OF PROBATE AFFIDAVIT | GOOD PAUL H & ANNA B | GOOD ANNA B | | | | 150512 | 2025-07669 |
| 3 | 01/08/1993 | WARRANTY D | WARRANTY DEED | | | | | $62,000.00 | 78328 | 2039-300205 |
Payout Agreement
| No payout information available.. |