Property
Account |
| Property ID: | 7655 | Abbreviated Legal Description: | 21-7-36 TAX 24A & TAX 31 |
| Parcel Number: | 360721320006 | Agent Code: | |
| Type: | Real | | |
| Tax Area: | 1 - OL-140-F | Land Use Code | 11 |
| Open Space: | N | DFL | N |
| Historic Property: | N | Remodel Property: | N |
| Multi-Family Redevelopment: | N | | |
| Township: | 7 | Section: | 21 |
| Range: | 36 |
Location |
| Address: | 733 FRANCIS AVE WA 99362 | Mapsco: | |
| Neighborhood: | G-SFR | Map ID: | |
| Neighborhood CD: | 514011 |
Owner |
| Name: | SEIDL DAVID RICHARD | Owner ID: | 71793 |
| Mailing Address: | ROBERT BRYCE & CHRISTINA R SEIDL 733 FRANCIS AVE WALLA WALLA, WA 99362 | % Ownership: | 100.0000000000% |
| | | Exemptions: | |
Taxes and Assessment Details
Property Tax Information as of
02/21/2026
Click on "Statement Details" to expand or collapse a tax statement.
* Please enter a valid date ** Please enter a valid date *
Statement Details |
| | TOTAL: | $0.00 | $0.00 | $0.00 | $0.00 | $0.00 | $0.00 |
|
| | $0.00 | $0.00 | $0.00 | $0.00 | $0.00 | $0.00 |
Values
| (+) Improvement Homesite Value: | + | $0 | |
| (+) Improvement Non-Homesite Value: | + | $722,800 | |
| (+) Land Homesite Value: | + | $0 | |
| (+) Land Non-Homesite Value: | + | $79,510 | |
| (+) Curr Use (HS): | + | $0 | $0 |
| (+) Curr Use (NHS): | + | $0 | $0 |
| | | -------------------------- | |
| (=) Market Value: | = | $802,310 | |
| (–) Productivity Loss: | – | $0 | |
| | | -------------------------- | |
| (=) Subtotal: | = | $802,310 | |
| (+) Senior Appraised Value: | + | $0 | |
| (+) Non-Senior Appraised Value: | + | $802,310 | |
| | | -------------------------- | |
| (=) Total Appraised Value: | = | $802,310 | |
| (–) Senior Exemption Loss: | – | $0 | |
| (–) Exemption Loss: | – | $0 | |
| | | -------------------------- | |
| (=) Taxable Value: | = | $802,310 | |
Taxing Jurisdiction
| Owner: | SEIDL DAVID RICHARD | | |
| % Ownership: | 100.0000000000% | | |
| Total Value: | $802,310 | | |
| Tax Area: | 1 - OL-140-F |
| CERFD | CURRENT EXPENSE REFUND 010 | 0.0000000000 | $802,310 | $802,310 | $0.00 | | |
| CURREXP | CURRENT EXPENSE 010 | 1.0175366760 | $802,310 | $802,310 | $816.38 | | |
| HUMNSERV | HUMAN SERVICES 119 | 0.0250000000 | $802,310 | $802,310 | $20.06 | | |
| SLDREL | SOLDIERS RELIEF 121 | 0.0155990005 | $802,310 | $802,310 | $12.52 | | |
| EMERGSER | EMS 147 | 0.3792580840 | $802,310 | $802,310 | $304.28 | | |
| EMSRFD | EMS REFUND 147 | 0.0000000000 | $802,310 | $802,310 | $0.00 | | |
| PORTRFD | PORT REFUND 640 | 0.0000000000 | $802,310 | $802,310 | $0.00 | | |
| PORTWWGEN | PORT OF WW 640 | 0.2460186015 | $802,310 | $802,310 | $197.38 | | |
| SD140BOND | SD #140 BOND 764 | 0.8342371393 | $802,310 | $802,310 | $669.32 | | |
| SD140GEN | SD #140 GENERAL 760 | 2.0646500647 | $802,310 | $802,310 | $1,656.49 | | |
| ST2 | STATE SCHOOL PART 2 600 | 0.8131451643 | $802,310 | $802,310 | $652.39 | | |
| STATESCHL | STATE SCHOOL 600 | 1.5158548041 | $802,310 | $802,310 | $1,216.19 | | |
| STREFUND | STATE REFUND LEVY 603 | 0.0000000000 | $802,310 | $802,310 | $0.00 | | |
| CWWBOND | C OF WW BOND 643 | 0.2760494372 | $802,310 | $802,310 | $221.48 | | |
| CWWGEN | CITY OF WW 631 | 1.6100204973 | $802,310 | $802,310 | $1,291.74 | | |
| CWWRFD | CITY OF WALLA WALLA REFUND 631 | 0.0000000000 | $802,310 | $802,310 | $0.00 | | |
| | Total Tax Rate: | 8.7973694689 | | | | | |
| | | | | Taxes w/Current Exemptions: | $7,058.23 | | |
| | | | | Taxes w/o Exemptions: | $7,058.23 | | |
Improvement / Building
| Improvement #1: | RESIDENTIAL | State Code: | 11 | 2395.0 sqft | Value: | $722,800 |
| Exterior Wall: | COMMON BRICK | Heating/Cooling: | WARM & COOLED AIR | | Number of Bathrooms: | 2 | Number of Bedrooms: | 2 | | Plumbing: | 16 | Roof Covering: | WOOD SHAKE |
|
| | Type | Description | Class CD | Sub Class CD | Year Built | Area |
| | MA | Main Area | 1 | 45 | 1956 | 2395.0 |
| | SI1 | SITE IMPROVEMENT | 1 | 45 | 1956 | 3.0 |
| | BASE | BASEMENT | 1 | 45 | 1956 | 2775.0 |
| | BPF | BASEMENT -PARTITIONED FINISH | 1 | 45 | 1956 | 1778.0 |
| | D2F | Double 2 Story Fireplace | 1 | 45 | 1956 | 1.0 |
| | SMP | SWIMMING POOL | 1 | 45 | 1956 | 1.0 |
| | OSP | Open | 1 | 45 | 1956 | 104.0 |
| | STG2 | Sub Terrain Garage Double | 1 | 45 | 1956 | 1.0 |
| | DTG | Detached Garage | 1 | 45 | 1999 | 576.0 |
Sketch
Property Image
Land
| 1 | RES 1 | Converted: Residential | 0.5200 | 22651.00 | 0.00 | 0.00 | 1.00 | $79,510 | $0 |
Roll Value History
| 2026 | N/A | N/A | N/A | N/A | N/A |
| 2025 | $669,420 | $141,120 | $0 | $810,540 | $810,540 |
| 2024 | $669,420 | $141,120 | $0 | $810,540 | $810,540 |
| 2023 | $722,800 | $79,510 | $0 | $802,310 | $802,310 |
| 2022 | $657,090 | $79,510 | $0 | $736,600 | $736,600 |
| 2021 | $505,450 | $79,510 | $0 | $584,960 | $584,960 |
| 2020 | $459,500 | $79,510 | $0 | $539,010 | $539,010 |
| 2019 | $459,500 | $79,510 | $0 | $539,010 | $539,010 |
| 2018 | $437,620 | $79,510 | $0 | $517,130 | $517,130 |
| 2017 | $452,620 | $52,600 | $0 | $505,220 | $505,220 |
| 2016 | $411,470 | $52,600 | $0 | $464,070 | $464,070 |
| 2015 | $411,470 | $52,600 | $0 | $464,070 | $464,070 |
| 2014 | $357,800 | $52,600 | $0 | $410,400 | $410,400 |
| 2013 | $357,800 | $52,600 | $0 | $410,400 | $410,400 |
| 2012 | $362,200 | $52,600 | $0 | $0 | $0 |
| 2011 | $362,200 | $52,600 | $0 | $0 | $0 |
| 2010 | $342,400 | $52,600 | $0 | $0 | $0 |
| 2009 | $365,400 | $52,600 | $0 | $0 | $0 |
| 2008 | $310,900 | $52,600 | $0 | $0 | $0 |
| 2007 | $310,900 | $52,600 | $0 | $0 | $0 |
Deed and Sales History
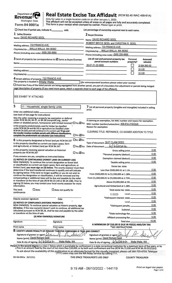
| 1 | 06/10/2022 | QCD | QUIT CLAIM DEED | SEIDL DAVID | SEIDL DAVID RICHARD | | | $0.00 | 144119 | 2022-04941 |
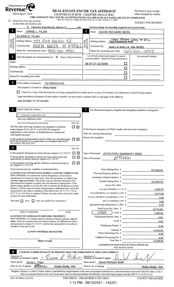
| 2 | 08/10/2021 | SWD | STATUTORY WARRANTY DEED | FILAN ERNIE L AND | SEIDL DAVID | | | $912,000.00 | 142251 | 2021-09726 |
| 3 | 11/01/1994 | QCD | QUIT CLAIM DEED | | | | | $191,400.00 | 82912 | 2249-412722 |
Payout Agreement
| No payout information available.. |