Property
Account |
| Property ID: | 7651 | Abbreviated Legal Description: | 21-7-36 TAX 36; PLUS TAX 53B; PLUS PORTION TAX 50 |
| Parcel Number: | 360721310038 | Agent Code: | |
| Type: | Real | | |
| Tax Area: | 1 - OL-140-F | Land Use Code | 11 |
| Open Space: | N | DFL | N |
| Historic Property: | N | Remodel Property: | N |
| Multi-Family Redevelopment: | N | | |
| Township: | 7 | Section: | 21 |
| Range: | 36 |
Location |
| Address: | 992 HOBSON ST WA 99362 | Mapsco: | |
| Neighborhood: | A-SFR | Map ID: | |
| Neighborhood CD: | 513011 |
Owner |
| Name: | STOTTLEMYRE HALEY L & TATE W GABRIEL | Owner ID: | 73695 |
| Mailing Address: | 992 HOBSON ST WALLA WALLA, WA 99362 | % Ownership: | 100.0000000000% |
| | | Exemptions: | |
Taxes and Assessment Details
Values
| (+) Improvement Homesite Value: | + | $0 | |
| (+) Improvement Non-Homesite Value: | + | $260,830 | |
| (+) Land Homesite Value: | + | $0 | |
| (+) Land Non-Homesite Value: | + | $54,840 | |
| (+) Curr Use (HS): | + | $0 | $0 |
| (+) Curr Use (NHS): | + | $0 | $0 |
| | | -------------------------- | |
| (=) Market Value: | = | $315,670 | |
| (–) Productivity Loss: | – | $0 | |
| | | -------------------------- | |
| (=) Subtotal: | = | $315,670 | |
| (+) Senior Appraised Value: | + | $0 | |
| (+) Non-Senior Appraised Value: | + | $315,670 | |
| | | -------------------------- | |
| (=) Total Appraised Value: | = | $315,670 | |
| (–) Senior Exemption Loss: | – | $0 | |
| (–) Exemption Loss: | – | $0 | |
| | | -------------------------- | |
| (=) Taxable Value: | = | $315,670 | |
Taxing Jurisdiction
| Owner: | STOTTLEMYRE HALEY L & TATE W GABRIEL | | |
| % Ownership: | 100.0000000000% | | |
| Total Value: | $315,670 | | |
| Tax Area: | 1 - OL-140-F |
| CERFD | CURRENT EXPENSE REFUND 010 | 0.0000000000 | $315,670 | $315,670 | $0.00 | | |
| CURREXP | CURRENT EXPENSE 010 | 1.0175366760 | $315,670 | $315,670 | $321.21 | | |
| HUMNSERV | HUMAN SERVICES 119 | 0.0250000000 | $315,670 | $315,670 | $7.89 | | |
| SLDREL | SOLDIERS RELIEF 121 | 0.0155990005 | $315,670 | $315,670 | $4.92 | | |
| EMERGSER | EMS 147 | 0.3792580840 | $315,670 | $315,670 | $119.72 | | |
| EMSRFD | EMS REFUND 147 | 0.0000000000 | $315,670 | $315,670 | $0.00 | | |
| PORTRFD | PORT REFUND 640 | 0.0000000000 | $315,670 | $315,670 | $0.00 | | |
| PORTWWGEN | PORT OF WW 640 | 0.2460186015 | $315,670 | $315,670 | $77.66 | | |
| SD140BOND | SD #140 BOND 764 | 0.8342371393 | $315,670 | $315,670 | $263.34 | | |
| SD140GEN | SD #140 GENERAL 760 | 2.0646500647 | $315,670 | $315,670 | $651.75 | | |
| ST2 | STATE SCHOOL PART 2 600 | 0.8131451643 | $315,670 | $315,670 | $256.69 | | |
| STATESCHL | STATE SCHOOL 600 | 1.5158548041 | $315,670 | $315,670 | $478.51 | | |
| STREFUND | STATE REFUND LEVY 603 | 0.0000000000 | $315,670 | $315,670 | $0.00 | | |
| CWWBOND | C OF WW BOND 643 | 0.2760494372 | $315,670 | $315,670 | $87.14 | | |
| CWWGEN | CITY OF WW 631 | 1.6100204973 | $315,670 | $315,670 | $508.24 | | |
| CWWRFD | CITY OF WALLA WALLA REFUND 631 | 0.0000000000 | $315,670 | $315,670 | $0.00 | | |
| | Total Tax Rate: | 8.7973694689 | | | | | |
| | | | | Taxes w/Current Exemptions: | $2,777.07 | | |
| | | | | Taxes w/o Exemptions: | $2,777.07 | | |
Improvement / Building
| Improvement #1: | RESIDENTIAL | State Code: | 11 | 1196.0 sqft | Value: | $260,830 |
| Exterior Wall: | PLYWOOD | Heating/Cooling: | HEAT PUMP | | Number of Bathrooms: | 2 | Number of Bedrooms: | 2 | | Plumbing: | 9 | Roof Covering: | COMP SHINGLE |
|
| | Type | Description | Class CD | Sub Class CD | Year Built | Area |
| | MA | Main Area | 1 | 30 | 1970 | 1196.0 |
| | SI1 | SITE IMPROVEMENT | 1 | 30 | 1970 | 1.5 |
| | BASE | BASEMENT | 1 | 30 | 1970 | 1196.0 |
| | BPF | BASEMENT -PARTITIONED FINISH | 1 | 30 | 1970 | 1196.0 |
| | D1F | Double 1 Story Fireplace | 1 | 30 | 1970 | 1.0 |
| | OSP | Open | 1 | 30 | 1970 | 88.0 |
| | ATG | Attached Garage | 1 | 30 | 1970 | 468.0 |
Sketch
Property Image
Land
| 1 | RES 1 | Converted: Residential | 0.2014 | 8775.00 | 0.00 | 0.00 | 1.00 | $54,840 | $0 |
Roll Value History
| 2026 | N/A | N/A | N/A | N/A | N/A |
| 2025 | $297,020 | $87,750 | $0 | $384,770 | $384,770 |
| 2024 | $297,020 | $87,750 | $0 | $384,770 | $384,770 |
| 2023 | $260,830 | $54,840 | $0 | $315,670 | $315,670 |
| 2022 | $248,410 | $54,840 | $0 | $303,250 | $303,250 |
| 2021 | $207,010 | $54,840 | $0 | $261,850 | $261,850 |
| 2020 | $165,610 | $54,840 | $0 | $220,450 | $220,450 |
| 2019 | $165,610 | $54,840 | $0 | $220,450 | $220,450 |
| 2018 | $150,550 | $54,840 | $0 | $205,390 | $205,390 |
| 2017 | $170,120 | $35,100 | $0 | $205,220 | $205,220 |
| 2016 | $154,660 | $35,100 | $0 | $189,760 | $189,760 |
| 2015 | $147,290 | $35,100 | $0 | $182,390 | $182,390 |
| 2014 | $133,900 | $35,100 | $0 | $169,000 | $169,000 |
| 2013 | $133,900 | $35,100 | $0 | $169,000 | $169,000 |
| 2012 | $123,100 | $35,100 | $0 | $0 | $0 |
| 2011 | $123,100 | $35,100 | $0 | $0 | $0 |
| 2010 | $115,600 | $35,100 | $0 | $0 | $0 |
| 2009 | $132,300 | $35,100 | $0 | $0 | $0 |
| 2008 | $117,100 | $35,100 | $0 | $0 | $0 |
| 2007 | $117,100 | $35,100 | $0 | $0 | $0 |
Deed and Sales History
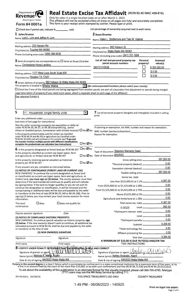
| 1 | 06/06/2023 | SWD | STATUTORY WARRANTY DEED | ZINK LORA L & JEFFREY A LINN | STOTTLEMYRE HALEY L & TATE W GABRIEL | | | $397,000.00 | 145925 | 2023-03081 |
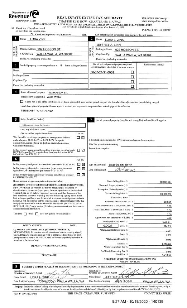
| 2 | 10/19/2020 | QCD | QUIT CLAIM DEED | ZINK LORA | ZINK LORA L & JEFFREY A LINN | | | $89,901.00 | 140138 | 2020-10793 |
| 3 | 09/07/2012 | WARRANTY D | WARRANTY DEED | WATTS, BRADLY A | ZINK, LORA | | | $174,900.00 | 122607 | 2012-07833 |
| 4 | 12/11/2006 | WARRANTY D | WARRANTY DEED | MORELAND, DAVID L & BARBARA S | WATTS, BRADLY A | | | $170,000.00 | 111866 | 2006-14765 |
| 5 | 06/14/2002 | WARRANTY D | WARRANTY DEED | | | | | $124,000.00 | 99703 | 2002-0006884 |
Payout Agreement
| No payout information available.. |