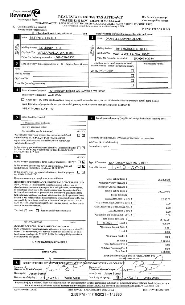
Property
Account |
| Property ID: | 7639 | Abbreviated Legal Description: | NE1/4 OF SW1/4 21-7-36 TAX 238 |
| Parcel Number: | 360721310023 | Agent Code: | |
| Type: | Real | | |
| Tax Area: | 1 - OL-140-F | Land Use Code | 11 |
| Open Space: | N | DFL | N |
| Historic Property: | N | Remodel Property: | N |
| Multi-Family Redevelopment: | N | | |
| Township: | 7 | Section: | 21 |
| Range: | 36 |
Location |
| Address: | 1011 HOBSON ST WA 99362 | Mapsco: | |
| Neighborhood: | A-SFR | Map ID: | |
| Neighborhood CD: | 513011 |
Owner |
| Name: | ALANIZ DANIELLE LAVINIA | Owner ID: | 70881 |
| Mailing Address: | 1011 HOBSON ST WALLA WALLA, WA 99362 | % Ownership: | 100.0000000000% |
| | | Exemptions: | |
Taxes and Assessment Details
Property Tax Information as of
02/21/2026
Click on "Statement Details" to expand or collapse a tax statement.
* Please enter a valid date ** Please enter a valid date *
Statement Details |
| | TOTAL: | $0.00 | $0.00 | $0.00 | $0.00 | $0.00 | $0.00 |
|
| | $0.00 | $0.00 | $0.00 | $0.00 | $0.00 | $0.00 |
Values
| (+) Improvement Homesite Value: | + | $0 | |
| (+) Improvement Non-Homesite Value: | + | $275,860 | |
| (+) Land Homesite Value: | + | $0 | |
| (+) Land Non-Homesite Value: | + | $30,310 | |
| (+) Curr Use (HS): | + | $0 | $0 |
| (+) Curr Use (NHS): | + | $0 | $0 |
| | | -------------------------- | |
| (=) Market Value: | = | $306,170 | |
| (–) Productivity Loss: | – | $0 | |
| | | -------------------------- | |
| (=) Subtotal: | = | $306,170 | |
| (+) Senior Appraised Value: | + | $0 | |
| (+) Non-Senior Appraised Value: | + | $306,170 | |
| | | -------------------------- | |
| (=) Total Appraised Value: | = | $306,170 | |
| (–) Senior Exemption Loss: | – | $0 | |
| (–) Exemption Loss: | – | $0 | |
| | | -------------------------- | |
| (=) Taxable Value: | = | $306,170 | |
Taxing Jurisdiction
| Owner: | ALANIZ DANIELLE LAVINIA | | |
| % Ownership: | 100.0000000000% | | |
| Total Value: | $306,170 | | |
| Tax Area: | 1 - OL-140-F |
| CERFD | CURRENT EXPENSE REFUND 010 | 0.0000000000 | $306,170 | $306,170 | $0.00 | | |
| CURREXP | CURRENT EXPENSE 010 | 1.0175366760 | $306,170 | $306,170 | $311.54 | | |
| HUMNSERV | HUMAN SERVICES 119 | 0.0250000000 | $306,170 | $306,170 | $7.65 | | |
| SLDREL | SOLDIERS RELIEF 121 | 0.0155990005 | $306,170 | $306,170 | $4.78 | | |
| EMERGSER | EMS 147 | 0.3792580840 | $306,170 | $306,170 | $116.12 | | |
| EMSRFD | EMS REFUND 147 | 0.0000000000 | $306,170 | $306,170 | $0.00 | | |
| PORTRFD | PORT REFUND 640 | 0.0000000000 | $306,170 | $306,170 | $0.00 | | |
| PORTWWGEN | PORT OF WW 640 | 0.2460186015 | $306,170 | $306,170 | $75.32 | | |
| SD140BOND | SD #140 BOND 764 | 0.8342371393 | $306,170 | $306,170 | $255.42 | | |
| SD140GEN | SD #140 GENERAL 760 | 2.0646500647 | $306,170 | $306,170 | $632.13 | | |
| ST2 | STATE SCHOOL PART 2 600 | 0.8131451643 | $306,170 | $306,170 | $248.96 | | |
| STATESCHL | STATE SCHOOL 600 | 1.5158548041 | $306,170 | $306,170 | $464.11 | | |
| STREFUND | STATE REFUND LEVY 603 | 0.0000000000 | $306,170 | $306,170 | $0.00 | | |
| CWWBOND | C OF WW BOND 643 | 0.2760494372 | $306,170 | $306,170 | $84.52 | | |
| CWWGEN | CITY OF WW 631 | 1.6100204973 | $306,170 | $306,170 | $492.94 | | |
| CWWRFD | CITY OF WALLA WALLA REFUND 631 | 0.0000000000 | $306,170 | $306,170 | $0.00 | | |
| | Total Tax Rate: | 8.7973694689 | | | | | |
| | | | | Taxes w/Current Exemptions: | $2,693.49 | | |
| | | | | Taxes w/o Exemptions: | $2,693.49 | | |
Improvement / Building
| Improvement #1: | RESIDENTIAL | State Code: | 11 | 1201.0 sqft | Value: | $275,860 |
| Exterior Wall: | SIDING | Heating/Cooling: | WARM & COOLED AIR | | Number of Bathrooms: | 2 | Number of Bedrooms: | 2 | | Plumbing: | 9 | Roof Covering: | COMP SHINGLE |
|
| | Type | Description | Class CD | Sub Class CD | Year Built | Area |
| | MA | Main Area | 1 | 35 | 1950 | 1201.0 |
| | BONU | BONUS ROOM W/FINISH | 1 | 35 | 1950 | 288.0 |
| | SI1 | SITE IMPROVEMENT | 1 | 35 | 1950 | 1.5 |
| | BASE | BASEMENT | 1 | 35 | 1950 | 798.0 |
| | BPF | BASEMENT -PARTITIONED FINISH | 1 | 35 | 1950 | 798.0 |
| | S1F | Single One Story Fireplace | 1 | 35 | 1950 | 1.0 |
| | OPS | OPEN PORCH W/STEPS | 1 | 35 | 1950 | 25.0 |
| | ATG | Attached Garage | 1 | 35 | 1950 | 486.0 |
Sketch
Property Image
Land
| 1 | RES 1 | Converted: Residential | 0.1113 | 4850.00 | 0.00 | 0.00 | 1.00 | $30,310 | $0 |
Roll Value History
| 2026 | N/A | N/A | N/A | N/A | N/A |
| 2025 | $291,120 | $48,500 | $0 | $339,620 | $339,620 |
| 2024 | $242,600 | $48,500 | $0 | $291,100 | $291,100 |
| 2023 | $275,860 | $30,310 | $0 | $306,170 | $306,170 |
| 2022 | $262,720 | $30,310 | $0 | $293,030 | $293,030 |
| 2021 | $218,930 | $30,310 | $0 | $249,240 | $249,240 |
| 2020 | $168,410 | $30,310 | $0 | $198,720 | $198,720 |
| 2019 | $168,410 | $30,310 | $0 | $198,720 | $198,720 |
| 2018 | $168,410 | $30,310 | $0 | $198,720 | $198,720 |
| 2017 | $142,070 | $19,400 | $0 | $161,470 | $161,470 |
| 2016 | $135,300 | $19,400 | $0 | $154,700 | $154,700 |
| 2015 | $135,300 | $19,400 | $0 | $154,700 | $154,700 |
| 2014 | $135,300 | $19,400 | $0 | $154,700 | $154,700 |
| 2013 | $135,300 | $19,400 | $0 | $154,700 | $154,700 |
| 2012 | $147,400 | $19,400 | $0 | $0 | $0 |
| 2011 | $147,400 | $19,400 | $0 | $0 | $0 |
| 2010 | $139,500 | $19,400 | $0 | $0 | $0 |
| 2009 | $157,100 | $19,400 | $0 | $0 | $0 |
| 2008 | $134,100 | $19,400 | $0 | $0 | $0 |
| 2007 | $134,100 | $19,400 | $0 | $0 | $0 |
Deed and Sales History
| 1 | 11/16/2021 | SWD | STATUTORY WARRANTY DEED | FISHER SUSAN & KAREN LAVINIA ALANIZ | ALANIZ DANIELLE LAVINIA | | | $250,000.00 | 142880 | 2021-13650 |
| 2 | 11/16/2021 | DEATH CERT | DEATH CERTIFICATE | FISHER MURRAY | FISHER SUSAN & KAREN LAVINIA ALANIZ | | | | 0 | 2021-13648 |
| 3 | 04/04/2016 | TODD | TRANSFER ON DEATH DEED | FISHER MURRAY | FISHER SUSAN & KAREN LAVINIA ALANIZ | | | | 0 | 2016-02446 |
Payout Agreement
| No payout information available.. |