Property
Account |
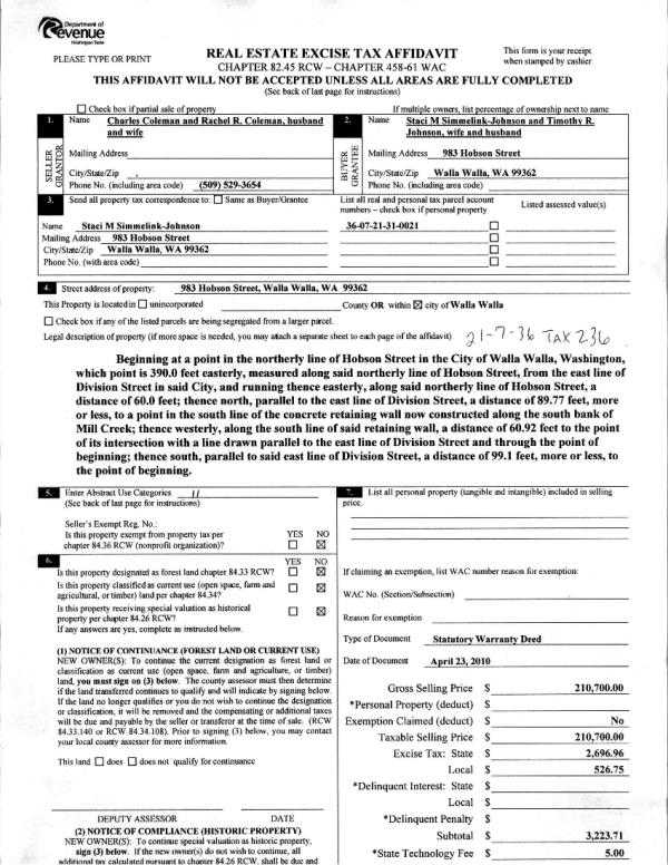
| Property ID: | 7638 | Abbreviated Legal Description: | 21-7-36 TAX 236 |
| Parcel Number: | 360721310021 | Agent Code: | |
| Type: | Real | | |
| Tax Area: | 1 - OL-140-F | Land Use Code | 11 |
| Open Space: | N | DFL | N |
| Historic Property: | N | Remodel Property: | N |
| Multi-Family Redevelopment: | N | | |
| Township: | 7 | Section: | 21 |
| Range: | 36 |
Location |
| Address: | 983 HOBSON ST WA 99362 | Mapsco: | |
| Neighborhood: | A-SFR | Map ID: | |
| Neighborhood CD: | 513011 |
Owner |
| Name: | JOHNSON STACI M SIMMELINK | Owner ID: | 65249 |
| Mailing Address: | 983 HOBSON ST WALLA WALLA, WA 99362 | % Ownership: | 100.0000000000% |
| | | Exemptions: | |
Taxes and Assessment Details
Property Tax Information as of
02/21/2026
Click on "Statement Details" to expand or collapse a tax statement.
* Please enter a valid date ** Please enter a valid date *
Statement Details |
| | TOTAL: | $0.00 | $0.00 | $0.00 | $0.00 | $0.00 | $0.00 |
|
| | $0.00 | $0.00 | $0.00 | $0.00 | $0.00 | $0.00 |
Values
| (+) Improvement Homesite Value: | + | $0 | |
| (+) Improvement Non-Homesite Value: | + | $242,810 | |
| (+) Land Homesite Value: | + | $0 | |
| (+) Land Non-Homesite Value: | + | $33,750 | |
| (+) Curr Use (HS): | + | $0 | $0 |
| (+) Curr Use (NHS): | + | $0 | $0 |
| | | -------------------------- | |
| (=) Market Value: | = | $276,560 | |
| (–) Productivity Loss: | – | $0 | |
| | | -------------------------- | |
| (=) Subtotal: | = | $276,560 | |
| (+) Senior Appraised Value: | + | $0 | |
| (+) Non-Senior Appraised Value: | + | $276,560 | |
| | | -------------------------- | |
| (=) Total Appraised Value: | = | $276,560 | |
| (–) Senior Exemption Loss: | – | $0 | |
| (–) Exemption Loss: | – | $0 | |
| | | -------------------------- | |
| (=) Taxable Value: | = | $276,560 | |
Taxing Jurisdiction
| Owner: | JOHNSON STACI M SIMMELINK | | |
| % Ownership: | 100.0000000000% | | |
| Total Value: | $276,560 | | |
| Tax Area: | 1 - OL-140-F |
| CERFD | CURRENT EXPENSE REFUND 010 | 0.0000000000 | $276,560 | $276,560 | $0.00 | | |
| CURREXP | CURRENT EXPENSE 010 | 1.0175366760 | $276,560 | $276,560 | $281.41 | | |
| HUMNSERV | HUMAN SERVICES 119 | 0.0250000000 | $276,560 | $276,560 | $6.91 | | |
| SLDREL | SOLDIERS RELIEF 121 | 0.0155990005 | $276,560 | $276,560 | $4.31 | | |
| EMERGSER | EMS 147 | 0.3792580840 | $276,560 | $276,560 | $104.89 | | |
| EMSRFD | EMS REFUND 147 | 0.0000000000 | $276,560 | $276,560 | $0.00 | | |
| PORTRFD | PORT REFUND 640 | 0.0000000000 | $276,560 | $276,560 | $0.00 | | |
| PORTWWGEN | PORT OF WW 640 | 0.2460186015 | $276,560 | $276,560 | $68.04 | | |
| SD140BOND | SD #140 BOND 764 | 0.8342371393 | $276,560 | $276,560 | $230.72 | | |
| SD140GEN | SD #140 GENERAL 760 | 2.0646500647 | $276,560 | $276,560 | $571.00 | | |
| ST2 | STATE SCHOOL PART 2 600 | 0.8131451643 | $276,560 | $276,560 | $224.88 | | |
| STATESCHL | STATE SCHOOL 600 | 1.5158548041 | $276,560 | $276,560 | $419.22 | | |
| STREFUND | STATE REFUND LEVY 603 | 0.0000000000 | $276,560 | $276,560 | $0.00 | | |
| CWWBOND | C OF WW BOND 643 | 0.2760494372 | $276,560 | $276,560 | $76.34 | | |
| CWWGEN | CITY OF WW 631 | 1.6100204973 | $276,560 | $276,560 | $445.27 | | |
| CWWRFD | CITY OF WALLA WALLA REFUND 631 | 0.0000000000 | $276,560 | $276,560 | $0.00 | | |
| | Total Tax Rate: | 8.7973694689 | | | | | |
| | | | | Taxes w/Current Exemptions: | $2,432.99 | | |
| | | | | Taxes w/o Exemptions: | $2,432.99 | | |
Improvement / Building
| Improvement #1: | RESIDENTIAL | State Code: | 11 | 876.0 sqft | Value: | $242,810 |
| Exterior Wall: | STUCCO | Heating/Cooling: | WARM & COOLED AIR | | Number of Bathrooms: | 2 | Number of Bedrooms: | 2 | | Plumbing: | 9 | Roof Covering: | COMP SHINGLE |
|
| | Type | Description | Class CD | Sub Class CD | Year Built | Area |
| | MA | Main Area | 1 | 35 | 1942 | 876.0 |
| | SI1 | SITE IMPROVEMENT | 1 | 35 | 1942 | 2.0 |
| | BASE | BASEMENT | 1 | 35 | 1942 | 876.0 |
| | BPF | BASEMENT -PARTITIONED FINISH | 1 | 35 | 1942 | 876.0 |
| | OPS | OPEN PORCH W/STEPS | 1 | 35 | 1942 | 35.0 |
| | DTG | Detached Garage | 1 | 35 | 1942 | 308.0 |
Sketch
Property Image
Land
| 1 | RES 1 | Converted: Residential | 0.1240 | 5400.00 | 0.00 | 0.00 | 1.00 | $33,750 | $0 |
Roll Value History
| 2026 | N/A | N/A | N/A | N/A | N/A |
| 2025 | $251,220 | $54,000 | $0 | $305,220 | $305,220 |
| 2024 | $218,450 | $54,000 | $0 | $272,450 | $272,450 |
| 2023 | $242,810 | $33,750 | $0 | $276,560 | $276,560 |
| 2022 | $231,250 | $33,750 | $0 | $265,000 | $265,000 |
| 2021 | $210,230 | $33,750 | $0 | $243,980 | $243,980 |
| 2020 | $175,190 | $33,750 | $0 | $208,940 | $208,940 |
| 2019 | $175,190 | $33,750 | $0 | $208,940 | $208,940 |
| 2018 | $175,190 | $33,750 | $0 | $208,940 | $208,940 |
| 2017 | $185,540 | $21,600 | $0 | $207,140 | $207,140 |
| 2016 | $176,700 | $21,600 | $0 | $198,300 | $198,300 |
| 2015 | $176,700 | $21,600 | $0 | $198,300 | $198,300 |
| 2014 | $176,700 | $21,600 | $0 | $198,300 | $198,300 |
| 2013 | $176,700 | $21,600 | $0 | $198,300 | $198,300 |
| 2012 | $163,400 | $21,600 | $0 | $0 | $0 |
| 2011 | $154,600 | $21,600 | $0 | $0 | $0 |
| 2010 | $95,500 | $21,600 | $0 | $0 | $0 |
| 2009 | $108,500 | $21,600 | $0 | $0 | $0 |
| 2008 | $71,300 | $21,600 | $0 | $0 | $0 |
| 2007 | $71,300 | $21,600 | $0 | $0 | $0 |
Deed and Sales History
| 1 | 06/07/2019 | QCD | QUIT CLAIM DEED | JOHNSON TIMOTHY R | JOHNSON STACI M SIMMELINK | | | $0.00 | 137039 | 2019-03944 |
| 2 | 04/26/2010 | WARRANTY D | WARRANTY DEED | COLEMAN, CHARLES & RACHEL R | JOHNSON, TIMOTHY R | | | $210,700.00 | 118385 | 2010-03213 |
| 3 | 11/21/2003 | WARRANTY D | WARRANTY DEED | BENEFICIAL MTG CORP | COLEMAN, CHARLES & RACHEL R | | | $88,900.00 | 103577 | 2003-17973 |
| 4 | 06/05/2003 | WARRANTY D | WARRANTY DEED | DAGGETT, JERRY E & VICKI L | BENEFICIAL MTG CORP | | | | 102262 | 2003-08283 |
| 5 | 03/24/1997 | WARRANTY D | WARRANTY DEED | | | | | $76,000.00 | 87855 | 2509-702504 |
Payout Agreement
| No payout information available.. |