Property
Account |
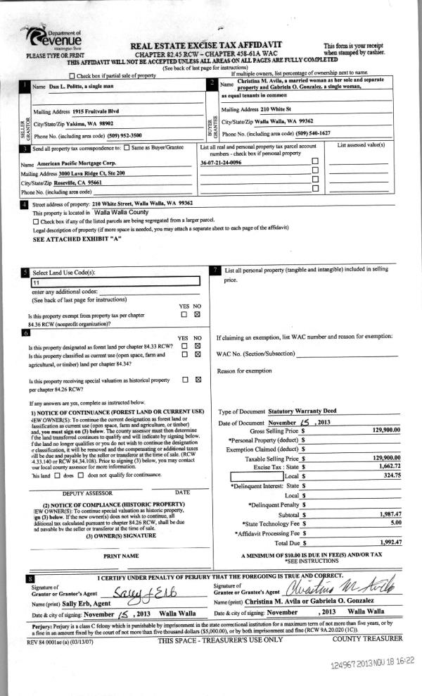
| Property ID: | 7624 | Abbreviated Legal Description: | 21-7-36 TAX 112 |
| Parcel Number: | 360721240096 | Agent Code: | |
| Type: | Real | | |
| Tax Area: | 1 - OL-140-F | Land Use Code | 11 |
| Open Space: | N | DFL | N |
| Historic Property: | N | Remodel Property: | N |
| Multi-Family Redevelopment: | N | | |
| Township: | 7 | Section: | 21 |
| Range: | 36 |
Location |
| Address: | 210 WHITE ST WA 99362 | Mapsco: | |
| Neighborhood: | A-SFR | Map ID: | |
| Neighborhood CD: | 513011 |
Owner |
| Name: | NULL SHANNON M | Owner ID: | 68747 |
| Mailing Address: | 210 WHITE ST WALLA WALLA, WA 99362 | % Ownership: | 100.0000000000% |
| | | Exemptions: | |
Taxes and Assessment Details
Property Tax Information as of
02/21/2026
Click on "Statement Details" to expand or collapse a tax statement.
* Please enter a valid date ** Please enter a valid date *
Statement Details |
| | TOTAL: | $0.00 | $0.00 | $0.00 | $0.00 | $0.00 | $0.00 |
|
| | $0.00 | $0.00 | $0.00 | $0.00 | $0.00 | $0.00 |
Values
| (+) Improvement Homesite Value: | + | $0 | |
| (+) Improvement Non-Homesite Value: | + | $268,810 | |
| (+) Land Homesite Value: | + | $0 | |
| (+) Land Non-Homesite Value: | + | $32,670 | |
| (+) Curr Use (HS): | + | $0 | $0 |
| (+) Curr Use (NHS): | + | $0 | $0 |
| | | -------------------------- | |
| (=) Market Value: | = | $301,480 | |
| (–) Productivity Loss: | – | $0 | |
| | | -------------------------- | |
| (=) Subtotal: | = | $301,480 | |
| (+) Senior Appraised Value: | + | $0 | |
| (+) Non-Senior Appraised Value: | + | $301,480 | |
| | | -------------------------- | |
| (=) Total Appraised Value: | = | $301,480 | |
| (–) Senior Exemption Loss: | – | $0 | |
| (–) Exemption Loss: | – | $0 | |
| | | -------------------------- | |
| (=) Taxable Value: | = | $301,480 | |
Taxing Jurisdiction
| Owner: | NULL SHANNON M | | |
| % Ownership: | 100.0000000000% | | |
| Total Value: | $301,480 | | |
| Tax Area: | 1 - OL-140-F |
| CERFD | CURRENT EXPENSE REFUND 010 | 0.0000000000 | $301,480 | $301,480 | $0.00 | | |
| CURREXP | CURRENT EXPENSE 010 | 1.0175366760 | $301,480 | $301,480 | $306.77 | | |
| HUMNSERV | HUMAN SERVICES 119 | 0.0250000000 | $301,480 | $301,480 | $7.54 | | |
| SLDREL | SOLDIERS RELIEF 121 | 0.0155990005 | $301,480 | $301,480 | $4.70 | | |
| EMERGSER | EMS 147 | 0.3792580840 | $301,480 | $301,480 | $114.34 | | |
| EMSRFD | EMS REFUND 147 | 0.0000000000 | $301,480 | $301,480 | $0.00 | | |
| PORTRFD | PORT REFUND 640 | 0.0000000000 | $301,480 | $301,480 | $0.00 | | |
| PORTWWGEN | PORT OF WW 640 | 0.2460186015 | $301,480 | $301,480 | $74.17 | | |
| SD140BOND | SD #140 BOND 764 | 0.8342371393 | $301,480 | $301,480 | $251.51 | | |
| SD140GEN | SD #140 GENERAL 760 | 2.0646500647 | $301,480 | $301,480 | $622.45 | | |
| ST2 | STATE SCHOOL PART 2 600 | 0.8131451643 | $301,480 | $301,480 | $245.15 | | |
| STATESCHL | STATE SCHOOL 600 | 1.5158548041 | $301,480 | $301,480 | $457.00 | | |
| STREFUND | STATE REFUND LEVY 603 | 0.0000000000 | $301,480 | $301,480 | $0.00 | | |
| CWWBOND | C OF WW BOND 643 | 0.2760494372 | $301,480 | $301,480 | $83.22 | | |
| CWWGEN | CITY OF WW 631 | 1.6100204973 | $301,480 | $301,480 | $485.39 | | |
| CWWRFD | CITY OF WALLA WALLA REFUND 631 | 0.0000000000 | $301,480 | $301,480 | $0.00 | | |
| | Total Tax Rate: | 8.7973694689 | | | | | |
| | | | | Taxes w/Current Exemptions: | $2,652.24 | | |
| | | | | Taxes w/o Exemptions: | $2,652.24 | | |
Improvement / Building
| Improvement #1: | RESIDENTIAL | State Code: | 11 | 840.0 sqft | Value: | $268,810 |
| Exterior Wall: | STUCCO | Heating/Cooling: | BASEBOARD ELECTRIC | | Number of Bathrooms: | 2 | Number of Bedrooms: | 2 | | Plumbing: | 9 | Roof Covering: | COMP SHINGLE |
|
| | Type | Description | Class CD | Sub Class CD | Year Built | Area |
| | MA | Main Area | 1 | 30 | 1943 | 840.0 |
| | CPC | COVERED CARPORT/PATIO | 1 | 30 | 0 | 504.0 |
| | DTG | Detached Garage | 1 | 30 | 0 | 240.0 |
| | SI1 | SITE IMPROVEMENT | 1 | 30 | 0 | 1.5 |
| | BASE | BASEMENT | 1 | 30 | 1943 | 840.0 |
| | BPF | BASEMENT -PARTITIONED FINISH | 1 | 30 | 1943 | 630.0 |
| | RPS | PORCH W/STEPS,ROOF | 1 | 30 | 1943 | 24.0 |
| | OPS | OPEN PORCH W/STEPS | 1 | 30 | 1943 | 20.0 |
Sketch
Property Image
Land
| 1 | RES 1 | Converted: Residential | 0.1200 | 5227.00 | 0.00 | 0.00 | 1.00 | $32,670 | $0 |
Roll Value History
| 2026 | N/A | N/A | N/A | N/A | N/A |
| 2025 | $258,680 | $52,270 | $0 | $310,950 | $310,950 |
| 2024 | $246,360 | $52,270 | $0 | $298,630 | $298,630 |
| 2023 | $268,810 | $32,670 | $0 | $301,480 | $301,480 |
| 2022 | $268,810 | $32,670 | $0 | $301,480 | $301,480 |
| 2021 | $244,380 | $32,670 | $0 | $277,050 | $277,050 |
| 2020 | $143,750 | $32,670 | $0 | $176,420 | $176,420 |
| 2019 | $143,750 | $32,670 | $0 | $176,420 | $176,420 |
| 2018 | $125,000 | $32,670 | $0 | $157,670 | $157,670 |
| 2017 | $125,020 | $20,900 | $0 | $145,920 | $145,920 |
| 2016 | $113,650 | $20,900 | $0 | $134,550 | $134,550 |
| 2015 | $108,240 | $20,900 | $0 | $129,140 | $129,140 |
| 2014 | $90,200 | $20,900 | $0 | $111,100 | $111,100 |
| 2013 | $90,200 | $20,900 | $0 | $111,100 | $111,100 |
| 2012 | $90,200 | $20,900 | $0 | $0 | $0 |
| 2011 | $90,200 | $20,900 | $0 | $0 | $0 |
| 2010 | $75,700 | $20,900 | $0 | $0 | $0 |
| 2009 | $86,400 | $20,900 | $0 | $0 | $0 |
| 2008 | $64,900 | $20,900 | $0 | $0 | $0 |
| 2007 | $64,900 | $20,900 | $0 | $0 | $0 |
Deed and Sales History
| 1 | 01/21/2021 | SWD | STATUTORY WARRANTY DEED | AVILA JONATHAN OMAR & CHRISTINA MARLEE | NULL SHANNON M | | | $310,000.00 | 140782 | 2021-00842 |
| 2 | 11/08/2016 | QCD | QUIT CLAIM DEED | AVILA CHRISTINA M | AVILA JONATHAN OMAR & CHRISTINA MARLEE | | | $0.00 | 131428 | 2016-09429 |
| 3 | 11/18/2013 | WARRANTY D | WARRANTY DEED | POLITTE DAN L | AVILA CHRISTINA M | | | $129,900.00 | 124967 | 2013-11315 |
| 4 | 11/18/2013 | QCD | QUIT CLAIM DEED | AVILA CHRISTINA M | | | | | 124968 | 2013-11316 |
| 5 | 03/22/2013 | WARRANTY D | WARRANTY DEED | NORTHWEST TRUSTEE SERVICES INC | POLITTE, DAN L | | | $70,100.00 | 123655 | 2013-02734 |
| 6 | 06/25/2010 | WARRANTY D | WARRANTY DEED | WALLING, LEANNE | WALLING, JESSE V JR | | | | 0 | CC #09-3-00222-8 |
| 7 | 01/29/1999 | WARRANTY D | WARRANTY DEED | | | | | $70,000.00 | 92095 | 2799-901145 |
Payout Agreement
| No payout information available.. |