Property
Account |
| Property ID: | 7607 | Abbreviated Legal Description: | 21-7-36 TAX 201 |
| Parcel Number: | 360721240067 | Agent Code: | |
| Type: | Real | | |
| Tax Area: | 1 - OL-140-F | Land Use Code | 11 |
| Open Space: | N | DFL | N |
| Historic Property: | N | Remodel Property: | N |
| Multi-Family Redevelopment: | N | | |
| Township: | 7 | Section: | 21 |
| Range: | 36 |
Location |
| Address: | 219 WHITE ST WALLA WALLA, WA 99362 | Mapsco: | |
| Neighborhood: | A-SFR | Map ID: | |
| Neighborhood CD: | 513011 |
Owner |
| Name: | ANTONSEN ROSS | Owner ID: | 69002 |
| Mailing Address: | 110 N BLUE ST WALLA WALLA, WA 99362 | % Ownership: | 100.0000000000% |
| | | Exemptions: | |
Taxes and Assessment Details
Values
| (+) Improvement Homesite Value: | + | $0 | |
| (+) Improvement Non-Homesite Value: | + | $277,260 | |
| (+) Land Homesite Value: | + | $0 | |
| (+) Land Non-Homesite Value: | + | $53,130 | |
| (+) Curr Use (HS): | + | $0 | $0 |
| (+) Curr Use (NHS): | + | $0 | $0 |
| | | -------------------------- | |
| (=) Market Value: | = | $330,390 | |
| (–) Productivity Loss: | – | $0 | |
| | | -------------------------- | |
| (=) Subtotal: | = | $330,390 | |
| (+) Senior Appraised Value: | + | $0 | |
| (+) Non-Senior Appraised Value: | + | $330,390 | |
| | | -------------------------- | |
| (=) Total Appraised Value: | = | $330,390 | |
| (–) Senior Exemption Loss: | – | $0 | |
| (–) Exemption Loss: | – | $0 | |
| | | -------------------------- | |
| (=) Taxable Value: | = | $330,390 | |
Taxing Jurisdiction
| Owner: | ANTONSEN ROSS | | |
| % Ownership: | 100.0000000000% | | |
| Total Value: | $330,390 | | |
| Tax Area: | 1 - OL-140-F |
| CERFD | CURRENT EXPENSE REFUND 010 | 0.0000000000 | $330,390 | $330,390 | $0.00 | | |
| CURREXP | CURRENT EXPENSE 010 | 1.0175366760 | $330,390 | $330,390 | $336.18 | | |
| HUMNSERV | HUMAN SERVICES 119 | 0.0250000000 | $330,390 | $330,390 | $8.26 | | |
| SLDREL | SOLDIERS RELIEF 121 | 0.0155990005 | $330,390 | $330,390 | $5.15 | | |
| EMERGSER | EMS 147 | 0.3792580840 | $330,390 | $330,390 | $125.30 | | |
| EMSRFD | EMS REFUND 147 | 0.0000000000 | $330,390 | $330,390 | $0.00 | | |
| PORTRFD | PORT REFUND 640 | 0.0000000000 | $330,390 | $330,390 | $0.00 | | |
| PORTWWGEN | PORT OF WW 640 | 0.2460186015 | $330,390 | $330,390 | $81.28 | | |
| SD140BOND | SD #140 BOND 764 | 0.8342371393 | $330,390 | $330,390 | $275.62 | | |
| SD140GEN | SD #140 GENERAL 760 | 2.0646500647 | $330,390 | $330,390 | $682.14 | | |
| ST2 | STATE SCHOOL PART 2 600 | 0.8131451643 | $330,390 | $330,390 | $268.66 | | |
| STATESCHL | STATE SCHOOL 600 | 1.5158548041 | $330,390 | $330,390 | $500.82 | | |
| STREFUND | STATE REFUND LEVY 603 | 0.0000000000 | $330,390 | $330,390 | $0.00 | | |
| CWWBOND | C OF WW BOND 643 | 0.2760494372 | $330,390 | $330,390 | $91.20 | | |
| CWWGEN | CITY OF WW 631 | 1.6100204973 | $330,390 | $330,390 | $531.93 | | |
| CWWRFD | CITY OF WALLA WALLA REFUND 631 | 0.0000000000 | $330,390 | $330,390 | $0.00 | | |
| | Total Tax Rate: | 8.7973694689 | | | | | |
| | | | | Taxes w/Current Exemptions: | $2,906.54 | | |
| | | | | Taxes w/o Exemptions: | $2,906.54 | | |
Improvement / Building
| Improvement #1: | RESIDENTIAL | State Code: | 11 | 980.0 sqft | Value: | $277,260 |
| Exterior Wall: | VINYL | Heating/Cooling: | WARM & COOLED AIR | | Number of Bathrooms: | 2 | Number of Bedrooms: | 2 | | Plumbing: | 9 | Roof Covering: | COMP SHINGLE |
|
| | Type | Description | Class CD | Sub Class CD | Year Built | Area |
| | MA | Main Area | 1 | 30 | 1943 | 980.0 |
| | CPC | COVERED CARPORT/PATIO | 1 | 30 | 0 | 275.0 |
| | DTG | Detached Garage | 1 | 30 | 0 | 625.0 |
| | SI1 | SITE IMPROVEMENT | 1 | 30 | 0 | 1.5 |
| | BASE | BASEMENT | 1 | 30 | 1943 | 760.0 |
| | BRF | BASEMENT - REC FINISH | 1 | 30 | 1943 | 380.0 |
| | RPS | PORCH W/STEPS,ROOF | 1 | 30 | 1943 | 49.0 |
| | SWP | Solid Wall Porch | 1 | 30 | 1943 | 276.0 |
Sketch
Property Image
Land
| 1 | RES 1 | Converted: Residential | 0.1951 | 8500.00 | 0.00 | 0.00 | 1.00 | $53,130 | $0 |
Roll Value History
| 2026 | N/A | N/A | N/A | N/A | N/A |
| 2025 | $240,450 | $85,000 | $0 | $325,450 | $325,450 |
| 2024 | $253,100 | $85,000 | $0 | $338,100 | $338,100 |
| 2023 | $277,260 | $53,130 | $0 | $330,390 | $330,390 |
| 2022 | $252,050 | $53,130 | $0 | $305,180 | $305,180 |
| 2021 | $193,890 | $53,130 | $0 | $247,020 | $247,020 |
| 2020 | $138,490 | $53,130 | $0 | $191,620 | $191,620 |
| 2019 | $138,490 | $53,130 | $0 | $191,620 | $191,620 |
| 2018 | $125,900 | $53,130 | $0 | $179,030 | $179,030 |
| 2017 | $131,460 | $34,000 | $0 | $165,460 | $165,460 |
| 2016 | $119,510 | $34,000 | $0 | $153,510 | $153,510 |
| 2015 | $113,820 | $34,000 | $0 | $147,820 | $147,820 |
| 2014 | $108,400 | $34,000 | $0 | $142,400 | $142,400 |
| 2013 | $108,400 | $34,000 | $0 | $142,400 | $142,400 |
| 2012 | $114,700 | $34,000 | $0 | $0 | $0 |
| 2011 | $114,700 | $34,000 | $0 | $0 | $0 |
| 2010 | $107,600 | $34,000 | $0 | $0 | $0 |
| 2009 | $123,300 | $34,000 | $0 | $0 | $0 |
| 2008 | $87,000 | $34,000 | $0 | $0 | $0 |
| 2007 | $87,000 | $34,000 | $0 | $0 | $0 |
Deed and Sales History
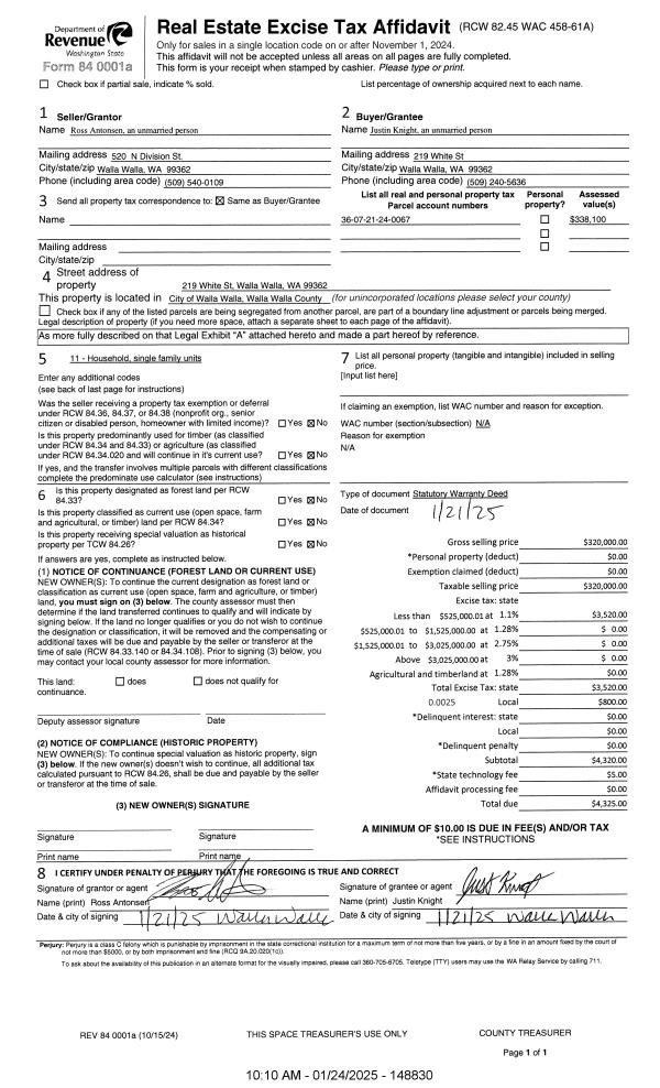
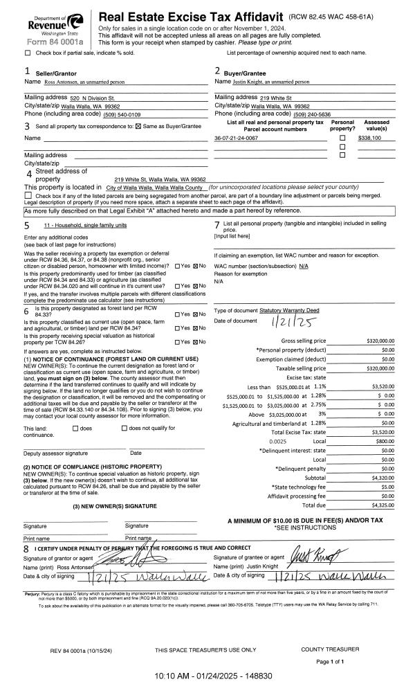
| 1 | 01/24/2025 | SWD | STATUTORY WARRANTY DEED | ANTONSEN ROSS | KNIGHT JUSTIN | | | $320,000.00 | 148830 | 2025-00390 |
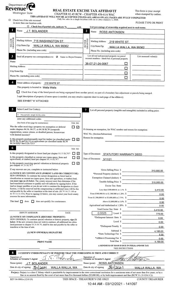
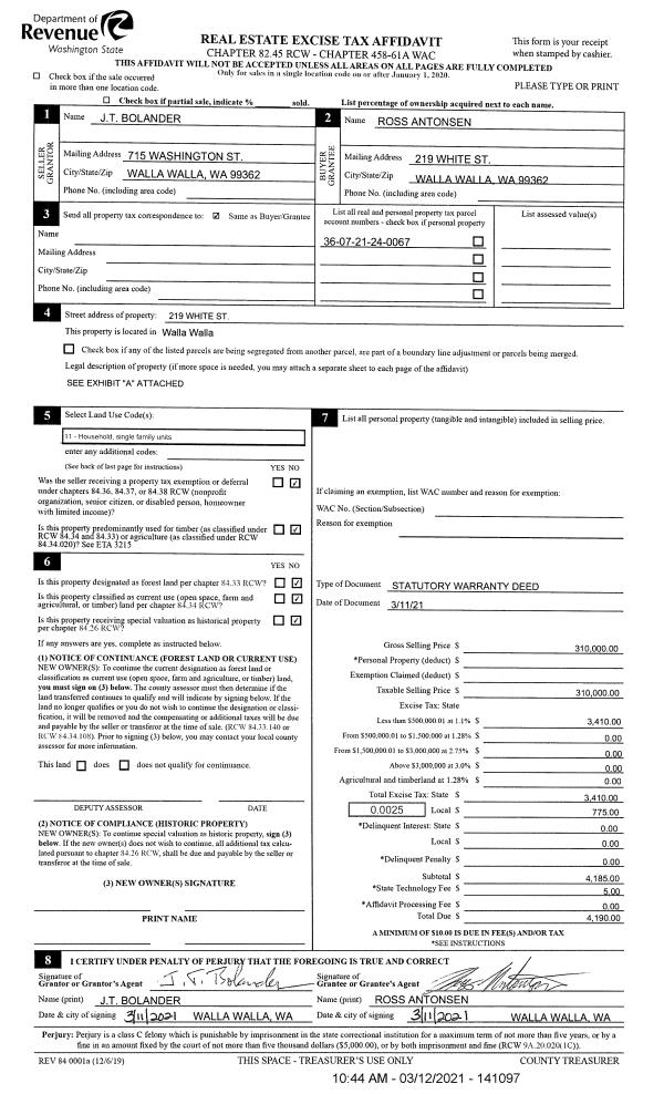
| 2 | 03/12/2021 | SWD | STATUTORY WARRANTY DEED | BOLANDER JT | ANTONSEN ROSS | | | $310,000.00 | 141097 | 2021-02865 |
| 3 | 04/22/2004 | WARRANTY D | WARRANTY DEED | SCHEIBE, FREDERICK & DONNA | BOLANDER, JT | | | $120,500.00 | 104551 | 2004-04262 |
| 4 | 02/24/1994 | WARRANTY D | WARRANTY DEED | | | | | $82,900.00 | 81080 | 2169-402363 |
Payout Agreement
| No payout information available.. |