Property
Account |
| Property ID: | 7600 | Abbreviated Legal Description: | 21-7-36 TAX 174 |
| Parcel Number: | 360721240051 | Agent Code: | |
| Type: | Real | | |
| Tax Area: | 1 - OL-140-F | Land Use Code | 11 |
| Open Space: | N | DFL | N |
| Historic Property: | N | Remodel Property: | N |
| Multi-Family Redevelopment: | N | | |
| Township: | 7 | Section: | 21 |
| Range: | 36 |
Location |
| Address: | 1015 WAVERLY ST WA 99362 | Mapsco: | |
| Neighborhood: | A-SFR | Map ID: | |
| Neighborhood CD: | 513011 |
Owner |
| Name: | DORAN DANIEL J & ZOE J CATSIFF | Owner ID: | 70912 |
| Mailing Address: | 1204 ALVARADO TERRACE WALLA WALLA, WA 99362 | % Ownership: | 100.0000000000% |
| | | Exemptions: | |
Taxes and Assessment Details
Property Tax Information as of
02/21/2026
Click on "Statement Details" to expand or collapse a tax statement.
* Please enter a valid date ** Please enter a valid date *
Statement Details |
| | TOTAL: | $0.00 | $0.00 | $0.00 | $0.00 | $0.00 | $0.00 |
|
| | $0.00 | $0.00 | $0.00 | $0.00 | $0.00 | $0.00 |
Values
| (+) Improvement Homesite Value: | + | $0 | |
| (+) Improvement Non-Homesite Value: | + | $356,490 | |
| (+) Land Homesite Value: | + | $0 | |
| (+) Land Non-Homesite Value: | + | $43,560 | |
| (+) Curr Use (HS): | + | $0 | $0 |
| (+) Curr Use (NHS): | + | $0 | $0 |
| | | -------------------------- | |
| (=) Market Value: | = | $400,050 | |
| (–) Productivity Loss: | – | $0 | |
| | | -------------------------- | |
| (=) Subtotal: | = | $400,050 | |
| (+) Senior Appraised Value: | + | $0 | |
| (+) Non-Senior Appraised Value: | + | $400,050 | |
| | | -------------------------- | |
| (=) Total Appraised Value: | = | $400,050 | |
| (–) Senior Exemption Loss: | – | $0 | |
| (–) Exemption Loss: | – | $0 | |
| | | -------------------------- | |
| (=) Taxable Value: | = | $400,050 | |
Taxing Jurisdiction
| Owner: | DORAN DANIEL J & ZOE J CATSIFF | | |
| % Ownership: | 100.0000000000% | | |
| Total Value: | $400,050 | | |
| Tax Area: | 1 - OL-140-F |
| CERFD | CURRENT EXPENSE REFUND 010 | 0.0000000000 | $400,050 | $400,050 | $0.00 | | |
| CURREXP | CURRENT EXPENSE 010 | 1.0175366760 | $400,050 | $400,050 | $407.07 | | |
| HUMNSERV | HUMAN SERVICES 119 | 0.0250000000 | $400,050 | $400,050 | $10.00 | | |
| SLDREL | SOLDIERS RELIEF 121 | 0.0155990005 | $400,050 | $400,050 | $6.24 | | |
| EMERGSER | EMS 147 | 0.3792580840 | $400,050 | $400,050 | $151.72 | | |
| EMSRFD | EMS REFUND 147 | 0.0000000000 | $400,050 | $400,050 | $0.00 | | |
| PORTRFD | PORT REFUND 640 | 0.0000000000 | $400,050 | $400,050 | $0.00 | | |
| PORTWWGEN | PORT OF WW 640 | 0.2460186015 | $400,050 | $400,050 | $98.42 | | |
| SD140BOND | SD #140 BOND 764 | 0.8342371393 | $400,050 | $400,050 | $333.74 | | |
| SD140GEN | SD #140 GENERAL 760 | 2.0646500647 | $400,050 | $400,050 | $825.96 | | |
| ST2 | STATE SCHOOL PART 2 600 | 0.8131451643 | $400,050 | $400,050 | $325.30 | | |
| STATESCHL | STATE SCHOOL 600 | 1.5158548041 | $400,050 | $400,050 | $606.42 | | |
| STREFUND | STATE REFUND LEVY 603 | 0.0000000000 | $400,050 | $400,050 | $0.00 | | |
| CWWBOND | C OF WW BOND 643 | 0.2760494372 | $400,050 | $400,050 | $110.43 | | |
| CWWGEN | CITY OF WW 631 | 1.6100204973 | $400,050 | $400,050 | $644.09 | | |
| CWWRFD | CITY OF WALLA WALLA REFUND 631 | 0.0000000000 | $400,050 | $400,050 | $0.00 | | |
| | Total Tax Rate: | 8.7973694689 | | | | | |
| | | | | Taxes w/Current Exemptions: | $3,519.39 | | |
| | | | | Taxes w/o Exemptions: | $3,519.39 | | |
Improvement / Building
| Improvement #1: | RESIDENTIAL | State Code: | 11 | 859.0 sqft | Value: | $356,490 |
| Exterior Wall: | SIDING | Heating/Cooling: | WARM & COOLED AIR | | Number of Bathrooms: | 1 | Number of Bedrooms: | 1 | | Plumbing: | 7 | Roof Covering: | COMP SHINGLE |
|
| | Type | Description | Class CD | Sub Class CD | Year Built | Area |
| | MA | Main Area | 1 | 35 | 1939 | 859.0 |
| | SI1 | SITE IMPROVEMENT | 1 | 35 | 1939 | 3.5 |
| | RPO | OPEN PORCH W/ROOF | 1 | 35 | 1939 | 20.0 |
| | S1F | Single One Story Fireplace | 1 | 35 | 1939 | 1.0 |
Sketch
Property Image
Land
| 1 | RES 1 | Converted: Residential | 0.1600 | 6969.00 | 0.00 | 0.00 | 1.00 | $43,560 | $0 |
Roll Value History
| 2026 | N/A | N/A | N/A | N/A | N/A |
| 2025 | $332,370 | $69,690 | $0 | $402,060 | $402,060 |
| 2024 | $332,370 | $69,690 | $0 | $402,060 | $402,060 |
| 2023 | $356,490 | $43,560 | $0 | $400,050 | $400,050 |
| 2022 | $339,510 | $43,560 | $0 | $383,070 | $383,070 |
| 2021 | $96,150 | $43,560 | $0 | $139,710 | $139,710 |
| 2020 | $20,480 | $43,560 | $0 | $64,040 | $64,040 |
| 2019 | $20,480 | $43,560 | $0 | $64,040 | $64,040 |
| 2018 | $20,480 | $43,560 | $0 | $64,040 | $64,040 |
| 2017 | $81,480 | $27,900 | $0 | $109,380 | $109,380 |
| 2016 | $67,900 | $27,900 | $0 | $95,800 | $95,800 |
| 2015 | $59,040 | $27,900 | $0 | $86,940 | $86,940 |
| 2014 | $65,600 | $27,900 | $0 | $93,500 | $93,500 |
| 2013 | $65,600 | $27,900 | $0 | $93,500 | $93,500 |
| 2012 | $69,200 | $27,900 | $0 | $0 | $0 |
| 2011 | $74,300 | $27,900 | $0 | $0 | $0 |
| 2010 | $69,400 | $27,900 | $0 | $0 | $0 |
| 2009 | $80,200 | $27,900 | $0 | $0 | $0 |
| 2008 | $58,600 | $27,900 | $0 | $0 | $0 |
| 2007 | $58,600 | $27,900 | $0 | $0 | $0 |
Deed and Sales History
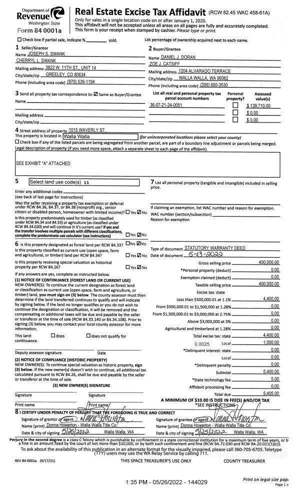
| 1 | 05/26/2022 | SWD | STATUTORY WARRANTY DEED | SWANK JOSEPH S & CHERRYL L | DORAN DANIEL J & ZOE J CATSIFF | | | $400,000.00 | 144029 | 2022-04552 |
| 2 | 10/21/2021 | SWD | STATUTORY WARRANTY DEED | GALANO SAM A | SWANK JOSEPH S & CHERRYL L | | | $350,000.00 | 142723 | 2021-12781 |
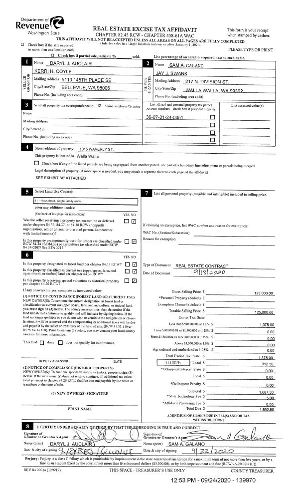
| 3 | 09/24/2020 | REAL ESTAT | REAL ESTATE CONTRACT | AUCLAIR DARYL J | GALANO SAM A | | | $125,000.00 | 139970 | 2020-09776 |
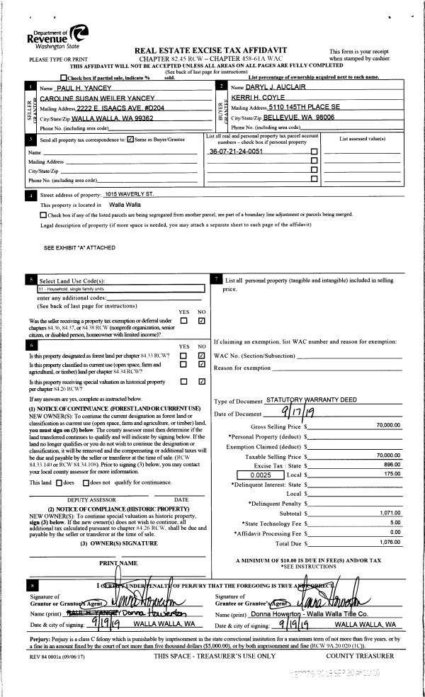
| 4 | 09/20/2019 | SWD | STATUTORY WARRANTY DEED | YANCEY PAUL H | AUCLAIR DARYL J | | | $70,000.00 | 137726 | 2019-07394 |
| 5 | 03/30/1988 | WARRANTY D | WARRANTY DEED | | | | | $15,500.00 | 0 | 1698-801910 |
Payout Agreement
| No payout information available.. |