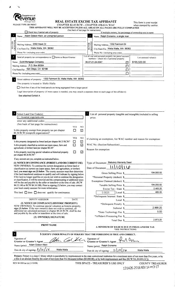
Property
Account |
| Property ID: | 7596 | Abbreviated Legal Description: | 21-7-36 TAX 143 |
| Parcel Number: | 360721240047 | Agent Code: | |
| Type: | Real | | |
| Tax Area: | 1 - OL-140-F | Land Use Code | 11 |
| Open Space: | N | DFL | N |
| Historic Property: | N | Remodel Property: | N |
| Multi-Family Redevelopment: | N | | |
| Township: | 7 | Section: | 21 |
| Range: | 36 |
Location |
| Address: | 1332 FAIRMONT ST WA 99362 | Mapsco: | |
| Neighborhood: | G-SFR | Map ID: | |
| Neighborhood CD: | 514011 |
Owner |
| Name: | ERONEMO RALPH | Owner ID: | 56536 |
| Mailing Address: | 1219 PORTLAND AVE WALLA WALLA, WA 99362 | % Ownership: | 100.0000000000% |
| | | Exemptions: | |
Taxes and Assessment Details
Values
| (+) Improvement Homesite Value: | + | $0 | |
| (+) Improvement Non-Homesite Value: | + | $293,960 | |
| (+) Land Homesite Value: | + | $0 | |
| (+) Land Non-Homesite Value: | + | $38,170 | |
| (+) Curr Use (HS): | + | $0 | $0 |
| (+) Curr Use (NHS): | + | $0 | $0 |
| | | -------------------------- | |
| (=) Market Value: | = | $332,130 | |
| (–) Productivity Loss: | – | $0 | |
| | | -------------------------- | |
| (=) Subtotal: | = | $332,130 | |
| (+) Senior Appraised Value: | + | $0 | |
| (+) Non-Senior Appraised Value: | + | $332,130 | |
| | | -------------------------- | |
| (=) Total Appraised Value: | = | $332,130 | |
| (–) Senior Exemption Loss: | – | $0 | |
| (–) Exemption Loss: | – | $0 | |
| | | -------------------------- | |
| (=) Taxable Value: | = | $332,130 | |
Taxing Jurisdiction
| Owner: | ERONEMO RALPH | | |
| % Ownership: | 100.0000000000% | | |
| Total Value: | $332,130 | | |
| Tax Area: | 1 - OL-140-F |
| CERFD | CURRENT EXPENSE REFUND 010 | 0.0000000000 | $332,130 | $332,130 | $0.00 | | |
| CURREXP | CURRENT EXPENSE 010 | 1.0175366760 | $332,130 | $332,130 | $337.95 | | |
| HUMNSERV | HUMAN SERVICES 119 | 0.0250000000 | $332,130 | $332,130 | $8.30 | | |
| SLDREL | SOLDIERS RELIEF 121 | 0.0155990005 | $332,130 | $332,130 | $5.18 | | |
| EMERGSER | EMS 147 | 0.3792580840 | $332,130 | $332,130 | $125.96 | | |
| EMSRFD | EMS REFUND 147 | 0.0000000000 | $332,130 | $332,130 | $0.00 | | |
| PORTRFD | PORT REFUND 640 | 0.0000000000 | $332,130 | $332,130 | $0.00 | | |
| PORTWWGEN | PORT OF WW 640 | 0.2460186015 | $332,130 | $332,130 | $81.71 | | |
| SD140BOND | SD #140 BOND 764 | 0.8342371393 | $332,130 | $332,130 | $277.08 | | |
| SD140GEN | SD #140 GENERAL 760 | 2.0646500647 | $332,130 | $332,130 | $685.73 | | |
| ST2 | STATE SCHOOL PART 2 600 | 0.8131451643 | $332,130 | $332,130 | $270.07 | | |
| STATESCHL | STATE SCHOOL 600 | 1.5158548041 | $332,130 | $332,130 | $503.46 | | |
| STREFUND | STATE REFUND LEVY 603 | 0.0000000000 | $332,130 | $332,130 | $0.00 | | |
| CWWBOND | C OF WW BOND 643 | 0.2760494372 | $332,130 | $332,130 | $91.68 | | |
| CWWGEN | CITY OF WW 631 | 1.6100204973 | $332,130 | $332,130 | $534.74 | | |
| CWWRFD | CITY OF WALLA WALLA REFUND 631 | 0.0000000000 | $332,130 | $332,130 | $0.00 | | |
| | Total Tax Rate: | 8.7973694689 | | | | | |
| | | | | Taxes w/Current Exemptions: | $2,921.86 | | |
| | | | | Taxes w/o Exemptions: | $2,921.86 | | |
Improvement / Building
| Improvement #1: | RESIDENTIAL | State Code: | 11 | 1117.0 sqft | Value: | $293,960 |
| Exterior Wall: | SIDING | Heating/Cooling: | HEAT PUMP | | Number of Bathrooms: | 1 | Number of Bedrooms: | 3 | | Plumbing: | 6 | Roof Covering: | COMP SHINGLE |
|
| | Type | Description | Class CD | Sub Class CD | Year Built | Area |
| | MA | Main Area | 4 | 35 | 1938 | 1117.0 |
| | SI1 | SITE IMPROVEMENT | 4 | 35 | 0 | 3.0 |
| | BASE | BASEMENT | 4 | 35 | 1938 | 420.0 |
| | OPS | OPEN PORCH W/STEPS | 4 | 35 | 1938 | 30.0 |
| | UPFL | Upper Floor (included in main area) | 4 | 35 | 1938 | 228.0 |
| | DTG | Detached Garage | 4 | 35 | 1938 | 198.0 |
| | S1F | Single One Story Fireplace | 4 | 35 | 1938 | 1.0 |
Sketch
Property Image
Land
| 1 | RES 1 | Converted: Residential | 0.1209 | 5265.00 | 0.00 | 0.00 | 1.00 | $38,170 | $0 |
Roll Value History
| 2026 | N/A | N/A | N/A | N/A | N/A |
| 2025 | $272,860 | $57,920 | $0 | $330,780 | $330,780 |
| 2024 | $272,860 | $57,920 | $0 | $330,780 | $330,780 |
| 2023 | $293,960 | $38,170 | $0 | $332,130 | $332,130 |
| 2022 | $255,610 | $38,170 | $0 | $293,780 | $293,780 |
| 2021 | $196,630 | $38,170 | $0 | $234,800 | $234,800 |
| 2020 | $157,300 | $38,170 | $0 | $195,470 | $195,470 |
| 2019 | $157,300 | $38,170 | $0 | $195,470 | $195,470 |
| 2018 | $157,300 | $38,170 | $0 | $195,470 | $195,470 |
| 2017 | $171,820 | $23,700 | $0 | $195,520 | $195,520 |
| 2016 | $171,820 | $23,700 | $0 | $195,520 | $195,520 |
| 2015 | $171,820 | $23,700 | $0 | $195,520 | $195,520 |
| 2014 | $156,200 | $23,700 | $0 | $179,900 | $179,900 |
| 2013 | $156,200 | $23,700 | $0 | $179,900 | $179,900 |
| 2012 | $168,900 | $23,700 | $0 | $0 | $0 |
| 2011 | $168,900 | $23,700 | $0 | $0 | $0 |
| 2010 | $130,400 | $23,700 | $0 | $0 | $0 |
| 2009 | $147,500 | $23,700 | $0 | $0 | $0 |
| 2008 | $127,800 | $21,100 | $0 | $0 | $0 |
| 2007 | $127,800 | $21,100 | $0 | $0 | $0 |
Deed and Sales History
| 1 | 11/14/2016 | SWD | STATUTORY WARRANTY DEED | KLEIN ADAM GIDEON | ERONEMO RALPH | | | $194,000.00 | 131426 | 2016-09425 |
| 2 | 11/23/2009 | WARRANTY D | WARRANTY DEED | HUBBARD, JEREMY MICHAEL | KLEIN, ADAM GIDEON | | | $200,000.00 | 117711 | 2009-11427 |
| 3 | 02/27/2004 | WARRANTY D | WARRANTY DEED | SMITH, MEGAN RONDEAU | HUBBARD, JEREMY MICHAEL | | | $133,500.00 | 104153 | 2004-02094 |
| 4 | 07/21/2000 | WARRANTY D | WARRANTY DEED | | | | | $102,500.00 | 95477 | 3000-006963 |
Payout Agreement
| No payout information available.. |