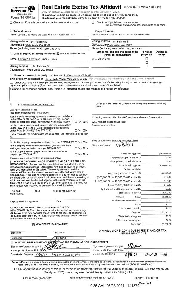
Property
Account |
| Property ID: | 7589 | Abbreviated Legal Description: | 21-7-36 TAX 84 |
| Parcel Number: | 360721240033 | Agent Code: | |
| Type: | Real | | |
| Tax Area: | 1 - OL-140-F | Land Use Code | 11 |
| Open Space: | N | DFL | N |
| Historic Property: | N | Remodel Property: | N |
| Multi-Family Redevelopment: | N | | |
| Township: | 7 | Section: | 21 |
| Range: | 36 |
Location |
| Address: | 1341 FAIRMONT ST WA 99362 | Mapsco: | |
| Neighborhood: | G-SFR | Map ID: | |
| Neighborhood CD: | 514011 |
Owner |
| Name: | ESSEX EAMON P & SUSAN J | Owner ID: | 69671 |
| Mailing Address: | 1341 FAIRMONT ST WALLA WALLA, WA 99362 | % Ownership: | 100.0000000000% |
| | | Exemptions: | |
Taxes and Assessment Details
Values
| (+) Improvement Homesite Value: | + | $0 | |
| (+) Improvement Non-Homesite Value: | + | $443,300 | |
| (+) Land Homesite Value: | + | $0 | |
| (+) Land Non-Homesite Value: | + | $33,890 | |
| (+) Curr Use (HS): | + | $0 | $0 |
| (+) Curr Use (NHS): | + | $0 | $0 |
| | | -------------------------- | |
| (=) Market Value: | = | $477,190 | |
| (–) Productivity Loss: | – | $0 | |
| | | -------------------------- | |
| (=) Subtotal: | = | $477,190 | |
| (+) Senior Appraised Value: | + | $0 | |
| (+) Non-Senior Appraised Value: | + | $477,190 | |
| | | -------------------------- | |
| (=) Total Appraised Value: | = | $477,190 | |
| (–) Senior Exemption Loss: | – | $0 | |
| (–) Exemption Loss: | – | $0 | |
| | | -------------------------- | |
| (=) Taxable Value: | = | $477,190 | |
Taxing Jurisdiction
| Owner: | ESSEX EAMON P & SUSAN J | | |
| % Ownership: | 100.0000000000% | | |
| Total Value: | $477,190 | | |
| Tax Area: | 1 - OL-140-F |
| CERFD | CURRENT EXPENSE REFUND 010 | 0.0000000000 | $477,190 | $477,190 | $0.00 | | |
| CURREXP | CURRENT EXPENSE 010 | 1.0175366760 | $477,190 | $477,190 | $485.56 | | |
| HUMNSERV | HUMAN SERVICES 119 | 0.0250000000 | $477,190 | $477,190 | $11.93 | | |
| SLDREL | SOLDIERS RELIEF 121 | 0.0155990005 | $477,190 | $477,190 | $7.44 | | |
| EMERGSER | EMS 147 | 0.3792580840 | $477,190 | $477,190 | $180.98 | | |
| EMSRFD | EMS REFUND 147 | 0.0000000000 | $477,190 | $477,190 | $0.00 | | |
| PORTRFD | PORT REFUND 640 | 0.0000000000 | $477,190 | $477,190 | $0.00 | | |
| PORTWWGEN | PORT OF WW 640 | 0.2460186015 | $477,190 | $477,190 | $117.40 | | |
| SD140BOND | SD #140 BOND 764 | 0.8342371393 | $477,190 | $477,190 | $398.09 | | |
| SD140GEN | SD #140 GENERAL 760 | 2.0646500647 | $477,190 | $477,190 | $985.23 | | |
| ST2 | STATE SCHOOL PART 2 600 | 0.8131451643 | $477,190 | $477,190 | $388.02 | | |
| STATESCHL | STATE SCHOOL 600 | 1.5158548041 | $477,190 | $477,190 | $723.35 | | |
| STREFUND | STATE REFUND LEVY 603 | 0.0000000000 | $477,190 | $477,190 | $0.00 | | |
| CWWBOND | C OF WW BOND 643 | 0.2760494372 | $477,190 | $477,190 | $131.73 | | |
| CWWGEN | CITY OF WW 631 | 1.6100204973 | $477,190 | $477,190 | $768.29 | | |
| CWWRFD | CITY OF WALLA WALLA REFUND 631 | 0.0000000000 | $477,190 | $477,190 | $0.00 | | |
| | Total Tax Rate: | 8.7973694689 | | | | | |
| | | | | Taxes w/Current Exemptions: | $4,198.02 | | |
| | | | | Taxes w/o Exemptions: | $4,198.02 | | |
Improvement / Building
| Improvement #1: | RESIDENTIAL | State Code: | 11 | 1408.0 sqft | Value: | $443,300 |
| Exterior Wall: | SIDING | Heating/Cooling: | WARM & COOLED AIR | | Number of Bathrooms: | 2 | Number of Bedrooms: | 3 | | Plumbing: | 9 | Roof Covering: | COMP SHINGLE |
|
| | Type | Description | Class CD | Sub Class CD | Year Built | Area |
| | MA | Main Area | 4 | 40 | 1930 | 1408.0 |
| | SI1 | SITE IMPROVEMENT | 4 | 40 | 0 | 2.5 |
| | BASE | BASEMENT | 4 | 40 | 1930 | 516.0 |
| | OPS | OPEN PORCH W/STEPS | 4 | 40 | 1930 | 55.0 |
| | STG1 | Sub Terrain Garage Single | 4 | 40 | 1930 | 1.0 |
| | S1F | Single One Story Fireplace | 4 | 40 | 1930 | 1.0 |
| | TOOL | TOOL SHED | 4 | 40 | 1930 | 240.0 |
| | UPFL | Upper Floor (included in main area) | 4 | 40 | 1930 | 350.0 |
| | BMF | BASEMENT - MIN FINISH | 4 | 40 | 1930 | 516.0 |
Sketch
Property Image
Land
| 1 | RES 1 | Converted: Residential | 0.1073 | 4674.00 | 0.00 | 0.00 | 1.00 | $33,890 | $0 |
Roll Value History
| 2026 | N/A | N/A | N/A | N/A | N/A |
| 2025 | $422,110 | $51,410 | $0 | $473,520 | $473,520 |
| 2024 | $422,110 | $51,410 | $0 | $473,520 | $473,520 |
| 2023 | $443,300 | $33,890 | $0 | $477,190 | $477,190 |
| 2022 | $403,000 | $33,890 | $0 | $436,890 | $436,890 |
| 2021 | $260,000 | $33,890 | $0 | $293,890 | $293,890 |
| 2020 | $200,000 | $33,890 | $0 | $233,890 | $233,890 |
| 2019 | $200,000 | $33,890 | $0 | $233,890 | $233,890 |
| 2018 | $200,000 | $33,890 | $0 | $233,890 | $233,890 |
| 2017 | $209,400 | $21,000 | $0 | $230,400 | $230,400 |
| 2016 | $209,400 | $21,000 | $0 | $230,400 | $230,400 |
| 2015 | $209,400 | $21,000 | $0 | $230,400 | $230,400 |
| 2014 | $174,500 | $21,000 | $0 | $195,500 | $195,500 |
| 2013 | $174,500 | $21,000 | $0 | $195,500 | $195,500 |
| 2012 | $185,000 | $21,000 | $0 | $0 | $0 |
| 2011 | $158,100 | $21,000 | $0 | $0 | $0 |
| 2010 | $144,700 | $21,000 | $0 | $0 | $0 |
| 2009 | $163,100 | $21,000 | $0 | $0 | $0 |
| 2008 | $141,400 | $18,700 | $0 | $0 | $0 |
| 2007 | $141,400 | $18,700 | $0 | $0 | $0 |
Deed and Sales History
| 1 | 06/25/2021 | SWD | STATUTORY WARRANTY DEED | MORRIS EDWARD ER | ESSEX EAMON P & SUSAN J | | | $450,000.00 | 141879 | 2021-07716 |
| 2 | 10/29/2003 | WARRANTY D | WARRANTY DEED | WALDRON, HELEN MELINDA MORRIS | MORRIS, EDWARD ER | | | $90,000.00 | 103390 | 2003-16716 |
| 3 | 01/01/1944 | WARRANTY D | WARRANTY DEED | | | | | $0.00 | 0 | 2160-276771 |
Payout Agreement
| No payout information available.. |