Property
Account |
| Property ID: | 7588 | Abbreviated Legal Description: | 21-7-36 TAX 82 |
| Parcel Number: | 360721240032 | Agent Code: | |
| Type: | Real | | |
| Tax Area: | 1 - OL-140-F | Land Use Code | 11 |
| Open Space: | N | DFL | N |
| Historic Property: | N | Remodel Property: | N |
| Multi-Family Redevelopment: | N | | |
| Township: | 7 | Section: | 21 |
| Range: | 36 |
Location |
| Address: | 245 N BELLEVUE AVE WA 99362 | Mapsco: | |
| Neighborhood: | G-SFR | Map ID: | |
| Neighborhood CD: | 514011 |
Owner |
| Name: | ENTZE MARC ALAN | Owner ID: | 57938 |
| Mailing Address: | JERRY MICHAEL ENTZE 248 N BELLEVUE AVE WALLA WALLA, WA 99362 | % Ownership: | 100.0000000000% |
| | | Exemptions: | |
Taxes and Assessment Details
Property Tax Information as of
02/21/2026
Click on "Statement Details" to expand or collapse a tax statement.
* Please enter a valid date ** Please enter a valid date *
Statement Details |
| | TOTAL: | $0.00 | $0.00 | $0.00 | $0.00 | $0.00 | $0.00 |
|
| | $0.00 | $0.00 | $0.00 | $0.00 | $0.00 | $0.00 |
Values
| (+) Improvement Homesite Value: | + | $0 | |
| (+) Improvement Non-Homesite Value: | + | $169,810 | |
| (+) Land Homesite Value: | + | $0 | |
| (+) Land Non-Homesite Value: | + | $34,440 | |
| (+) Curr Use (HS): | + | $0 | $0 |
| (+) Curr Use (NHS): | + | $0 | $0 |
| | | -------------------------- | |
| (=) Market Value: | = | $204,250 | |
| (–) Productivity Loss: | – | $0 | |
| | | -------------------------- | |
| (=) Subtotal: | = | $204,250 | |
| (+) Senior Appraised Value: | + | $0 | |
| (+) Non-Senior Appraised Value: | + | $204,250 | |
| | | -------------------------- | |
| (=) Total Appraised Value: | = | $204,250 | |
| (–) Senior Exemption Loss: | – | $0 | |
| (–) Exemption Loss: | – | $0 | |
| | | -------------------------- | |
| (=) Taxable Value: | = | $204,250 | |
Taxing Jurisdiction
| Owner: | ENTZE MARC ALAN | | |
| % Ownership: | 100.0000000000% | | |
| Total Value: | $204,250 | | |
| Tax Area: | 1 - OL-140-F |
| CERFD | CURRENT EXPENSE REFUND 010 | 0.0000000000 | $204,250 | $204,250 | $0.00 | | |
| CURREXP | CURRENT EXPENSE 010 | 1.0175366760 | $204,250 | $204,250 | $207.83 | | |
| HUMNSERV | HUMAN SERVICES 119 | 0.0250000000 | $204,250 | $204,250 | $5.11 | | |
| SLDREL | SOLDIERS RELIEF 121 | 0.0155990005 | $204,250 | $204,250 | $3.19 | | |
| EMERGSER | EMS 147 | 0.3792580840 | $204,250 | $204,250 | $77.46 | | |
| EMSRFD | EMS REFUND 147 | 0.0000000000 | $204,250 | $204,250 | $0.00 | | |
| PORTRFD | PORT REFUND 640 | 0.0000000000 | $204,250 | $204,250 | $0.00 | | |
| PORTWWGEN | PORT OF WW 640 | 0.2460186015 | $204,250 | $204,250 | $50.25 | | |
| SD140BOND | SD #140 BOND 764 | 0.8342371393 | $204,250 | $204,250 | $170.39 | | |
| SD140GEN | SD #140 GENERAL 760 | 2.0646500647 | $204,250 | $204,250 | $421.70 | | |
| ST2 | STATE SCHOOL PART 2 600 | 0.8131451643 | $204,250 | $204,250 | $166.08 | | |
| STATESCHL | STATE SCHOOL 600 | 1.5158548041 | $204,250 | $204,250 | $309.61 | | |
| STREFUND | STATE REFUND LEVY 603 | 0.0000000000 | $204,250 | $204,250 | $0.00 | | |
| CWWBOND | C OF WW BOND 643 | 0.2760494372 | $204,250 | $204,250 | $56.38 | | |
| CWWGEN | CITY OF WW 631 | 1.6100204973 | $204,250 | $204,250 | $328.85 | | |
| CWWRFD | CITY OF WALLA WALLA REFUND 631 | 0.0000000000 | $204,250 | $204,250 | $0.00 | | |
| | Total Tax Rate: | 8.7973694689 | | | | | |
| | | | | Taxes w/Current Exemptions: | $1,796.85 | | |
| | | | | Taxes w/o Exemptions: | $1,796.85 | | |
Improvement / Building
| Improvement #1: | RESIDENTIAL | State Code: | 11 | 1200.0 sqft | Value: | $169,810 |
| Exterior Wall: | SIDING | Heating/Cooling: | FORCED AIR | | Number of Bathrooms: | 1 | Number of Bedrooms: | 2 | | Plumbing: | 6 | Roof Covering: | COMP SHINGLE |
|
| | Type | Description | Class CD | Sub Class CD | Year Built | Area |
| | MA | Main Area | 1 | 25 | 1900 | 1200.0 |
| | SI1 | SITE IMPROVEMENT | 1 | 25 | 0 | 1.5 |
| | BASE | BASEMENT | 1 | 25 | 1900 | 628.0 |
| | DTG | Detached Garage | 1 | 25 | 1900 | 162.0 |
| | RPO | OPEN PORCH W/ROOF | 1 | 25 | 1900 | 48.0 |
Sketch
Property Image
Land
| 1 | RES 1 | Converted: Residential | 0.1090 | 4750.00 | 0.00 | 0.00 | 1.00 | $34,440 | $0 |
Roll Value History
| 2026 | N/A | N/A | N/A | N/A | N/A |
| 2025 | $149,960 | $52,250 | $0 | $202,210 | $202,210 |
| 2024 | $149,960 | $52,250 | $0 | $202,210 | $202,210 |
| 2023 | $169,810 | $34,440 | $0 | $204,250 | $204,250 |
| 2022 | $154,380 | $34,440 | $0 | $188,820 | $188,820 |
| 2021 | $154,380 | $34,440 | $0 | $188,820 | $188,820 |
| 2020 | $118,750 | $34,440 | $0 | $153,190 | $153,190 |
| 2019 | $118,750 | $34,440 | $0 | $153,190 | $153,190 |
| 2018 | $95,000 | $34,440 | $0 | $129,440 | $129,440 |
| 2017 | $101,900 | $21,400 | $0 | $123,300 | $123,300 |
| 2016 | $84,920 | $21,400 | $0 | $106,320 | $106,320 |
| 2015 | $84,920 | $21,400 | $0 | $106,320 | $106,320 |
| 2014 | $99,900 | $21,400 | $0 | $121,300 | $121,300 |
| 2013 | $99,900 | $21,400 | $0 | $121,300 | $121,300 |
| 2012 | $106,900 | $21,400 | $0 | $0 | $0 |
| 2011 | $106,900 | $21,400 | $0 | $0 | $0 |
| 2010 | $106,900 | $21,400 | $0 | $0 | $0 |
| 2009 | $121,200 | $21,400 | $0 | $0 | $0 |
| 2008 | $86,600 | $19,000 | $0 | $0 | $0 |
| 2007 | $86,600 | $19,000 | $0 | $0 | $0 |
Deed and Sales History
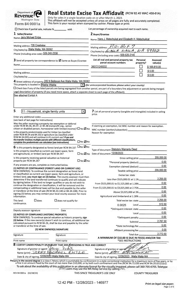
| 1 | 12/28/2023 | SWD | STATUTORY WARRANTY DEED | ENTZE JERRY MICHAEL | MATSCHUKAT HANS & ELIZABETH | | | $205,000.00 | 146977 | 2023-07513 |
| 2 | 10/23/2023 | QCD | QUIT CLAIM DEED | ENTZE MARC ALAN | ENTZE JERRY MICHAEL | | | | 146670 | 2023-06197 |
| 3 | 12/31/2015 | QCD | QUIT CLAIM DEED | ENTZE DANIEL L | ENTZE MARC ALAN | | | $0.00 | 129444 | 2015-11208 |
| 4 | 01/23/2004 | WARRANTY D | WARRANTY DEED | SNYDER, IRA M & ZELLA B, ESTAT | ENTZE, DANIEL L & IRITA B | | | | 103966 | 2004-00822 |
| 5 | 07/16/1982 | WARRANTY D | WARRANTY DEED | | | | | $24,000.00 | 0 | 1869-007925 |
Payout Agreement
| No payout information available.. |