Property
Account |
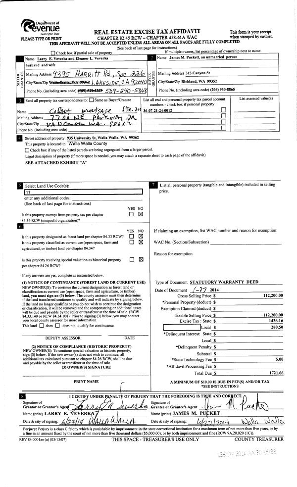
| Property ID: | 7579 | Abbreviated Legal Description: | 21-7-36 TAX 17 |
| Parcel Number: | 360721240012 | Agent Code: | |
| Type: | Real | | |
| Tax Area: | 1 - OL-140-F | Land Use Code | 11 |
| Open Space: | N | DFL | N |
| Historic Property: | N | Remodel Property: | N |
| Multi-Family Redevelopment: | N | | |
| Township: | 7 | Section: | 21 |
| Range: | 36 |
Location |
| Address: | 935 UNIVERSITY ST WA 99362 | Mapsco: | |
| Neighborhood: | G-SFR | Map ID: | |
| Neighborhood CD: | 514011 |
Owner |
| Name: | PUCKETT JAMES M | Owner ID: | 55021 |
| Mailing Address: | 315 CANYON ST RICHLAND, WA 99352 | % Ownership: | 100.0000000000% |
| | | Exemptions: | |
Taxes and Assessment Details
Property Tax Information as of
02/21/2026
Click on "Statement Details" to expand or collapse a tax statement.
* Please enter a valid date ** Please enter a valid date *
Statement Details |
| | TOTAL: | $0.00 | $0.00 | $0.00 | $0.00 | $0.00 | $0.00 |
|
| | $0.00 | $0.00 | $0.00 | $0.00 | $0.00 | $0.00 |
Values
| (+) Improvement Homesite Value: | + | $0 | |
| (+) Improvement Non-Homesite Value: | + | $319,520 | |
| (+) Land Homesite Value: | + | $0 | |
| (+) Land Non-Homesite Value: | + | $44,230 | |
| (+) Curr Use (HS): | + | $0 | $0 |
| (+) Curr Use (NHS): | + | $0 | $0 |
| | | -------------------------- | |
| (=) Market Value: | = | $363,750 | |
| (–) Productivity Loss: | – | $0 | |
| | | -------------------------- | |
| (=) Subtotal: | = | $363,750 | |
| (+) Senior Appraised Value: | + | $0 | |
| (+) Non-Senior Appraised Value: | + | $363,750 | |
| | | -------------------------- | |
| (=) Total Appraised Value: | = | $363,750 | |
| (–) Senior Exemption Loss: | – | $0 | |
| (–) Exemption Loss: | – | $0 | |
| | | -------------------------- | |
| (=) Taxable Value: | = | $363,750 | |
Taxing Jurisdiction
| Owner: | PUCKETT JAMES M | | |
| % Ownership: | 100.0000000000% | | |
| Total Value: | $363,750 | | |
| Tax Area: | 1 - OL-140-F |
| CERFD | CURRENT EXPENSE REFUND 010 | 0.0000000000 | $363,750 | $363,750 | $0.00 | | |
| CURREXP | CURRENT EXPENSE 010 | 1.0175366760 | $363,750 | $363,750 | $370.13 | | |
| HUMNSERV | HUMAN SERVICES 119 | 0.0250000000 | $363,750 | $363,750 | $9.09 | | |
| SLDREL | SOLDIERS RELIEF 121 | 0.0155990005 | $363,750 | $363,750 | $5.67 | | |
| EMERGSER | EMS 147 | 0.3792580840 | $363,750 | $363,750 | $137.96 | | |
| EMSRFD | EMS REFUND 147 | 0.0000000000 | $363,750 | $363,750 | $0.00 | | |
| PORTRFD | PORT REFUND 640 | 0.0000000000 | $363,750 | $363,750 | $0.00 | | |
| PORTWWGEN | PORT OF WW 640 | 0.2460186015 | $363,750 | $363,750 | $89.49 | | |
| SD140BOND | SD #140 BOND 764 | 0.8342371393 | $363,750 | $363,750 | $303.45 | | |
| SD140GEN | SD #140 GENERAL 760 | 2.0646500647 | $363,750 | $363,750 | $751.02 | | |
| ST2 | STATE SCHOOL PART 2 600 | 0.8131451643 | $363,750 | $363,750 | $295.78 | | |
| STATESCHL | STATE SCHOOL 600 | 1.5158548041 | $363,750 | $363,750 | $551.39 | | |
| STREFUND | STATE REFUND LEVY 603 | 0.0000000000 | $363,750 | $363,750 | $0.00 | | |
| CWWBOND | C OF WW BOND 643 | 0.2760494372 | $363,750 | $363,750 | $100.41 | | |
| CWWGEN | CITY OF WW 631 | 1.6100204973 | $363,750 | $363,750 | $585.64 | | |
| CWWRFD | CITY OF WALLA WALLA REFUND 631 | 0.0000000000 | $363,750 | $363,750 | $0.00 | | |
| | Total Tax Rate: | 8.7973694689 | | | | | |
| | | | | Taxes w/Current Exemptions: | $3,200.03 | | |
| | | | | Taxes w/o Exemptions: | $3,200.03 | | |
Improvement / Building
| Improvement #1: | RESIDENTIAL | State Code: | 11 | 1195.0 sqft | Value: | $319,520 |
| Exterior Wall: | SIDING | Heating/Cooling: | WARM & COOLED AIR | | Number of Bathrooms: | 2 | Number of Bedrooms: | 2 | | Plumbing: | 8 | Roof Covering: | COMP SHINGLE |
|
| | Type | Description | Class CD | Sub Class CD | Year Built | Area |
| | MA | Main Area | 1 | 30 | 1934 | 1195.0 |
| | SI1 | SITE IMPROVEMENT | 1 | 30 | 0 | 1.5 |
| | BASE | BASEMENT | 1 | 30 | 1934 | 1000.0 |
| | OPS | OPEN PORCH W/STEPS | 1 | 30 | 1934 | 25.0 |
| | BPF | BASEMENT -PARTITIONED FINISH | 1 | 30 | 1934 | 1000.0 |
| | DTG | Detached Garage | 1 | 30 | 1934 | 264.0 |
Sketch
Property Image
Land
| 1 | RES 1 | Converted: Residential | 0.1400 | 6100.00 | 0.00 | 0.00 | 1.00 | $44,230 | $0 |
Roll Value History
| 2026 | N/A | N/A | N/A | N/A | N/A |
| 2025 | $278,600 | $67,100 | $0 | $345,700 | $345,700 |
| 2024 | $278,600 | $67,100 | $0 | $345,700 | $345,700 |
| 2023 | $319,520 | $44,230 | $0 | $363,750 | $363,750 |
| 2022 | $290,470 | $44,230 | $0 | $334,700 | $334,700 |
| 2021 | $252,590 | $44,230 | $0 | $296,820 | $296,820 |
| 2020 | $148,580 | $44,230 | $0 | $192,810 | $192,810 |
| 2019 | $148,580 | $44,230 | $0 | $192,810 | $192,810 |
| 2018 | $129,200 | $44,230 | $0 | $173,430 | $173,430 |
| 2017 | $124,300 | $27,500 | $0 | $151,800 | $151,800 |
| 2016 | $113,000 | $27,500 | $0 | $140,500 | $140,500 |
| 2015 | $113,000 | $27,500 | $0 | $140,500 | $140,500 |
| 2014 | $113,000 | $27,500 | $0 | $140,500 | $140,500 |
| 2013 | $113,000 | $27,500 | $0 | $140,500 | $140,500 |
| 2012 | $115,600 | $27,500 | $0 | $0 | $0 |
| 2011 | $131,500 | $27,500 | $0 | $0 | $0 |
| 2010 | $131,500 | $27,500 | $0 | $0 | $0 |
| 2009 | $149,200 | $27,500 | $0 | $0 | $0 |
| 2008 | $106,500 | $24,400 | $0 | $0 | $0 |
| 2007 | $106,500 | $24,400 | $0 | $0 | $0 |
Deed and Sales History
| 1 | 06/30/2014 | SWD | STATUTORY WARRANTY DEED | VEVERKA LARRY E | PUCKETT JAMES M | | | $112,200.00 | 126178 | 2014-04543 |
| 2 | 08/09/1976 | WARRANTY D | WARRANTY DEED | | | | | $33,900.00 | 0 | 4506-87000 |
Payout Agreement
| No payout information available.. |