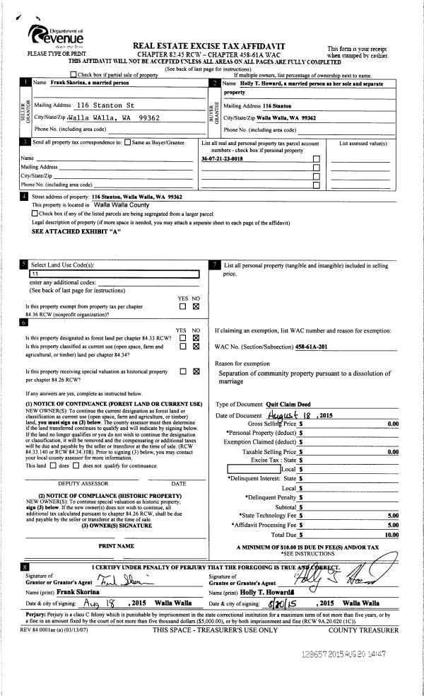
Property
Account |
| Property ID: | 7563 | Abbreviated Legal Description: | 21-7-36 TAX 119 |
| Parcel Number: | 360721230018 | Agent Code: | |
| Type: | Real | | |
| Tax Area: | 1 - OL-140-F | Land Use Code | 11 |
| Open Space: | N | DFL | N |
| Historic Property: | N | Remodel Property: | N |
| Multi-Family Redevelopment: | N | | |
| Township: | 7 | Section: | 21 |
| Range: | 36 |
Location |
| Address: | 116 STANTON ST WA 99362 | Mapsco: | |
| Neighborhood: | G Superior SFR | Map ID: | |
| Neighborhood CD: | 514211 |
Owner |
| Name: | HOWARD HOLLY T | Owner ID: | 57199 |
| Mailing Address: | 116 STANTON ST WALLA WALLA, WA 99362 | % Ownership: | 100.0000000000% |
| | | Exemptions: | |
Taxes and Assessment Details
Values
| (+) Improvement Homesite Value: | + | $0 | |
| (+) Improvement Non-Homesite Value: | + | $578,700 | |
| (+) Land Homesite Value: | + | $0 | |
| (+) Land Non-Homesite Value: | + | $76,400 | |
| (+) Curr Use (HS): | + | $0 | $0 |
| (+) Curr Use (NHS): | + | $0 | $0 |
| | | -------------------------- | |
| (=) Market Value: | = | $655,100 | |
| (–) Productivity Loss: | – | $0 | |
| | | -------------------------- | |
| (=) Subtotal: | = | $655,100 | |
| (+) Senior Appraised Value: | + | $0 | |
| (+) Non-Senior Appraised Value: | + | $655,100 | |
| | | -------------------------- | |
| (=) Total Appraised Value: | = | $655,100 | |
| (–) Senior Exemption Loss: | – | $0 | |
| (–) Exemption Loss: | – | $0 | |
| | | -------------------------- | |
| (=) Taxable Value: | = | $655,100 | |
Taxing Jurisdiction
| Owner: | HOWARD HOLLY T | | |
| % Ownership: | 100.0000000000% | | |
| Total Value: | $655,100 | | |
| Tax Area: | 1 - OL-140-F |
| CERFD | CURRENT EXPENSE REFUND 010 | 0.0000000000 | $655,100 | $655,100 | $0.00 | | |
| CURREXP | CURRENT EXPENSE 010 | 1.0175366760 | $655,100 | $655,100 | $666.59 | | |
| HUMNSERV | HUMAN SERVICES 119 | 0.0250000000 | $655,100 | $655,100 | $16.38 | | |
| SLDREL | SOLDIERS RELIEF 121 | 0.0155990005 | $655,100 | $655,100 | $10.22 | | |
| EMERGSER | EMS 147 | 0.3792580840 | $655,100 | $655,100 | $248.45 | | |
| EMSRFD | EMS REFUND 147 | 0.0000000000 | $655,100 | $655,100 | $0.00 | | |
| PORTRFD | PORT REFUND 640 | 0.0000000000 | $655,100 | $655,100 | $0.00 | | |
| PORTWWGEN | PORT OF WW 640 | 0.2460186015 | $655,100 | $655,100 | $161.17 | | |
| SD140BOND | SD #140 BOND 764 | 0.8342371393 | $655,100 | $655,100 | $546.51 | | |
| SD140GEN | SD #140 GENERAL 760 | 2.0646500647 | $655,100 | $655,100 | $1,352.55 | | |
| ST2 | STATE SCHOOL PART 2 600 | 0.8131451643 | $655,100 | $655,100 | $532.69 | | |
| STATESCHL | STATE SCHOOL 600 | 1.5158548041 | $655,100 | $655,100 | $993.04 | | |
| STREFUND | STATE REFUND LEVY 603 | 0.0000000000 | $655,100 | $655,100 | $0.00 | | |
| CWWBOND | C OF WW BOND 643 | 0.2760494372 | $655,100 | $655,100 | $180.84 | | |
| CWWGEN | CITY OF WW 631 | 1.6100204973 | $655,100 | $655,100 | $1,054.72 | | |
| CWWRFD | CITY OF WALLA WALLA REFUND 631 | 0.0000000000 | $655,100 | $655,100 | $0.00 | | |
| | Total Tax Rate: | 8.7973694689 | | | | | |
| | | | | Taxes w/Current Exemptions: | $5,763.16 | | |
| | | | | Taxes w/o Exemptions: | $5,763.16 | | |
Improvement / Building
| Improvement #1: | RESIDENTIAL | State Code: | 11 | 2236.0 sqft | Value: | $578,700 |
| Exterior Wall: | SIDING | Heating/Cooling: | BASEBOARD HOT WATER | | Number of Bathrooms: | 3 | Number of Bedrooms: | 5 | | Plumbing: | 13 | Roof Covering: | COMP SHINGLE |
|
| | Type | Description | Class CD | Sub Class CD | Year Built | Area |
| | MA | Main Area | 2 | 55 | 1938 | 2236.0 |
| | SI1 | SITE IMPROVEMENT | 2 | 55 | 1938 | 3.0 |
| | BASE | BASEMENT | 2 | 55 | 1938 | 1198.0 |
| | BPF | BASEMENT -PARTITIONED FINISH | 2 | 55 | 1938 | 839.0 |
| | ATG | Attached Garage | 2 | 55 | 1938 | 400.0 |
| | OPS | OPEN PORCH W/STEPS | 2 | 55 | 1938 | 144.0 |
| | OPS | OPEN PORCH W/STEPS | 2 | 55 | 1938 | 58.0 |
| | D2F | Double 2 Story Fireplace | 2 | 55 | 1938 | 1.0 |
| | OUT | OUTSIDE BASEMENT ENTRY | 2 | 55 | 1938 | 1.0 |
| | UPFL | Upper Floor (included in main area) | 2 | 55 | 1938 | 874.0 |
| | CPC | COVERED CARPORT/PATIO | 2 | 55 | 1938 | 520.0 |
Sketch
Property Image
Land
| 1 | RES 1 | Converted: Residential | 0.3889 | 16940.00 | 0.00 | 0.00 | 1.00 | $76,400 | $0 |
Roll Value History
| 2026 | N/A | N/A | N/A | N/A | N/A |
| 2025 | $521,290 | $136,200 | $0 | $657,490 | $657,490 |
| 2024 | $521,290 | $136,200 | $0 | $657,490 | $657,490 |
| 2023 | $578,700 | $76,400 | $0 | $655,100 | $655,100 |
| 2022 | $578,700 | $76,400 | $0 | $655,100 | $655,100 |
| 2021 | $482,250 | $76,400 | $0 | $558,650 | $558,650 |
| 2020 | $385,800 | $76,400 | $0 | $462,200 | $462,200 |
| 2019 | $385,800 | $76,400 | $0 | $462,200 | $462,200 |
| 2018 | $385,800 | $76,400 | $0 | $462,200 | $462,200 |
| 2017 | $320,250 | $49,200 | $0 | $369,450 | $369,450 |
| 2016 | $320,250 | $49,200 | $0 | $369,450 | $369,450 |
| 2015 | $320,250 | $49,200 | $0 | $369,450 | $369,450 |
| 2014 | $305,000 | $49,200 | $0 | $354,200 | $354,200 |
| 2013 | $305,000 | $49,200 | $0 | $354,200 | $354,200 |
| 2012 | $305,000 | $49,200 | $0 | $0 | $0 |
| 2011 | $258,800 | $49,200 | $0 | $0 | $0 |
| 2010 | $258,800 | $49,200 | $0 | $0 | $0 |
| 2009 | $293,000 | $49,200 | $0 | $0 | $0 |
| 2008 | $293,000 | $49,200 | $0 | $0 | $0 |
| 2007 | $293,000 | $49,200 | $0 | $0 | $0 |
Deed and Sales History
| 1 | 08/20/2015 | QCD | QUIT CLAIM DEED | SKORINA FRANK K | HOWARD HOLLY T | | | $0.00 | 128657 | 2015-07297 |
| 2 | 09/02/1992 | WARRANTY D | WARRANTY DEED | | | | | $195,000.00 | 77528 | 1999-207754 |
Payout Agreement
| No payout information available.. |