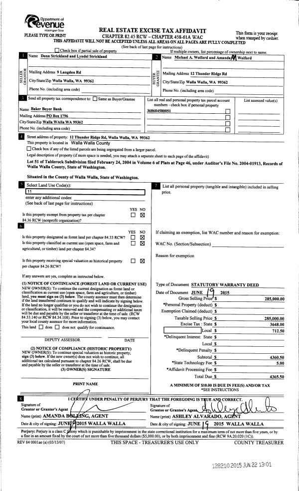
Property
Account |
| Property ID: | 7521 | Abbreviated Legal Description: | TABLEROCK SUBD LOT 51 |
| Parcel Number: | 360604580051 | Agent Code: | |
| Type: | Real | | |
| Tax Area: | 5 - OL-140 | Land Use Code | 11 |
| Open Space: | N | DFL | N |
| Historic Property: | N | Remodel Property: | N |
| Multi-Family Redevelopment: | N | | |
| Township: | 6 | Section: | 4 |
| Range: | 36 |
Location |
| Address: | 12 THUNDER RIDGE RD WA 99362 | Mapsco: | |
| Neighborhood: | VG Res Rural/City Inf | Map ID: | |
| Neighborhood CD: | 615012 |
Owner |
| Name: | WOLFORD MICHAEL A & AMANDA M | Owner ID: | 56825 |
| Mailing Address: | 12 THUNDER RIDGE RD WALLA WALLA, WA 99362 | % Ownership: | 100.0000000000% |
| | | Exemptions: | |
Taxes and Assessment Details
Values
| (+) Improvement Homesite Value: | + | $0 | |
| (+) Improvement Non-Homesite Value: | + | $332,930 | |
| (+) Land Homesite Value: | + | $0 | |
| (+) Land Non-Homesite Value: | + | $120,000 | |
| (+) Curr Use (HS): | + | $0 | $0 |
| (+) Curr Use (NHS): | + | $0 | $0 |
| | | -------------------------- | |
| (=) Market Value: | = | $452,930 | |
| (–) Productivity Loss: | – | $0 | |
| | | -------------------------- | |
| (=) Subtotal: | = | $452,930 | |
| (+) Senior Appraised Value: | + | $0 | |
| (+) Non-Senior Appraised Value: | + | $452,930 | |
| | | -------------------------- | |
| (=) Total Appraised Value: | = | $452,930 | |
| (–) Senior Exemption Loss: | – | $0 | |
| (–) Exemption Loss: | – | $0 | |
| | | -------------------------- | |
| (=) Taxable Value: | = | $452,930 | |
Taxing Jurisdiction
| Owner: | WOLFORD MICHAEL A & AMANDA M | | |
| % Ownership: | 100.0000000000% | | |
| Total Value: | $452,930 | | |
| Tax Area: | 5 - OL-140 |
| CERFD | CURRENT EXPENSE REFUND 010 | 0.0000000000 | $452,930 | $452,930 | $0.00 | | |
| CURREXP | CURRENT EXPENSE 010 | 1.0175366760 | $452,930 | $452,930 | $460.87 | | |
| HUMNSERV | HUMAN SERVICES 119 | 0.0250000000 | $452,930 | $452,930 | $11.32 | | |
| SLDREL | SOLDIERS RELIEF 121 | 0.0155990005 | $452,930 | $452,930 | $7.07 | | |
| EMERGSER | EMS 147 | 0.3792580840 | $452,930 | $452,930 | $171.78 | | |
| EMSRFD | EMS REFUND 147 | 0.0000000000 | $452,930 | $452,930 | $0.00 | | |
| PORTRFD | PORT REFUND 640 | 0.0000000000 | $452,930 | $452,930 | $0.00 | | |
| PORTWWGEN | PORT OF WW 640 | 0.2460186015 | $452,930 | $452,930 | $111.43 | | |
| SD140BOND | SD #140 BOND 764 | 0.8342371393 | $452,930 | $452,930 | $377.85 | | |
| SD140GEN | SD #140 GENERAL 760 | 2.0646500647 | $452,930 | $452,930 | $935.14 | | |
| ST2 | STATE SCHOOL PART 2 600 | 0.8131451643 | $452,930 | $452,930 | $368.30 | | |
| STATESCHL | STATE SCHOOL 600 | 1.5158548041 | $452,930 | $452,930 | $686.58 | | |
| STREFUND | STATE REFUND LEVY 603 | 0.0000000000 | $452,930 | $452,930 | $0.00 | | |
| CWWBOND | C OF WW BOND 643 | 0.2760494372 | $452,930 | $452,930 | $125.03 | | |
| CWWGEN | CITY OF WW 631 | 1.6100204973 | $452,930 | $452,930 | $729.23 | | |
| CWWRFD | CITY OF WALLA WALLA REFUND 631 | 0.0000000000 | $452,930 | $452,930 | $0.00 | | |
| | Total Tax Rate: | 8.7973694689 | | | | | |
| | | | | Taxes w/Current Exemptions: | $3,984.60 | | |
| | | | | Taxes w/o Exemptions: | $3,984.60 | | |
Improvement / Building
| Improvement #1: | RESIDENTIAL | State Code: | 11 | 1840.0 sqft | Value: | $332,930 |
| Exterior Wall: | PLYWOOD | Heating/Cooling: | HEAT PUMP | | Number of Bathrooms: | 2 | Number of Bedrooms: | 3 | | Plumbing: | 13 | Roof Covering: | COMP SHINGLE |
|
| | Type | Description | Class CD | Sub Class CD | Year Built | Area |
| | MA | Main Area | 1 | 40 | 2005 | 1840.0 |
| | SI1 | SITE IMPROVEMENT | 1 | 40 | 2005 | 3.5 |
| | ATG | Attached Garage | 1 | 40 | 2005 | 552.0 |
| | GFP | GAS FIREPLACE | 1 | 40 | 2005 | 1.0 |
| | RPO | OPEN PORCH W/ROOF | 1 | 40 | 2005 | 42.0 |
| | RPO | OPEN PORCH W/ROOF | 1 | 40 | 2005 | 364.0 |
Sketch
Property Image
Land
| 1 | RES 1 | Converted: Residential | 0.2350 | 10238.00 | 0.00 | 0.00 | 1.00 | $120,000 | $0 |
Roll Value History
| 2026 | N/A | N/A | N/A | N/A | N/A |
| 2025 | $356,370 | $180,000 | $0 | $536,370 | $536,370 |
| 2024 | $366,220 | $120,000 | $0 | $486,220 | $486,220 |
| 2023 | $332,930 | $120,000 | $0 | $452,930 | $452,930 |
| 2022 | $332,930 | $95,000 | $0 | $427,930 | $427,930 |
| 2021 | $317,080 | $95,000 | $0 | $412,080 | $412,080 |
| 2020 | $234,870 | $95,000 | $0 | $329,870 | $329,870 |
| 2019 | $234,870 | $95,000 | $0 | $329,870 | $329,870 |
| 2018 | $241,500 | $50,000 | $0 | $291,500 | $291,500 |
| 2017 | $234,470 | $50,000 | $0 | $284,470 | $284,470 |
| 2016 | $223,300 | $50,000 | $0 | $273,300 | $273,300 |
| 2015 | $223,300 | $50,000 | $0 | $273,300 | $273,300 |
| 2014 | $223,300 | $50,000 | $0 | $273,300 | $273,300 |
| 2013 | $223,300 | $50,000 | $0 | $273,300 | $273,300 |
| 2012 | $202,000 | $55,000 | $0 | $0 | $0 |
| 2011 | $187,000 | $70,000 | $0 | $0 | $0 |
| 2010 | $187,000 | $70,000 | $0 | $0 | $0 |
| 2009 | $216,000 | $70,000 | $0 | $0 | $0 |
| 2008 | $216,000 | $70,000 | $0 | $0 | $0 |
| 2007 | $195,200 | $50,000 | $0 | $0 | $0 |
Deed and Sales History
| 1 | 06/22/2015 | SWD | STATUTORY WARRANTY DEED | STRICKLAND DONN & LYNDEL | WOLFORD MICHAEL A & AMANDA M | | | $285,000.00 | 128210 | 2015-05212 |
| 2 | 12/02/2008 | WARRANTY D | WARRANTY DEED | MAYER, BRIAN C & JENNIFER A | STRICKLAND, DONN & LYNDEL | | | $272,000.00 | 116027 | 2008-11909 |
| 3 | 09/08/2005 | WARRANTY D | WARRANTY DEED | ROFF HOMES INC | MAYER, BRIAN C & JENNIFER A | | | $257,500.00 | 108448 | 2005-11153 |
| 4 | 09/16/2004 | WARRANTY D | WARRANTY DEED | GATEWOOD, W PAUL | ROFF HOMES INC | | | $52,900.00 | 105721 | 2004-10675 |
Payout Agreement
| No payout information available.. |