Property
Account |
| Property ID: | 7505 | Abbreviated Legal Description: | MTN VISTA ADDITION LOT 2 BLK 1 |
| Parcel Number: | 350725560102 | Agent Code: | |
| Type: | Real | | |
| Tax Area: | 75 - CP 250 | Land Use Code | 11 |
| Open Space: | N | DFL | N |
| Historic Property: | N | Remodel Property: | N |
| Multi-Family Redevelopment: | N | | |
| Township: | 7 | Section: | 25 |
| Range: | 35 |
Location |
| Address: | 112 NE CEDAR AVE WA 99324 | Mapsco: | |
| Neighborhood: | G SFR | Map ID: | |
| Neighborhood CD: | 114011 |
Owner |
| Name: | BELKNAP RICK & VICKI | Owner ID: | 59575 |
| Mailing Address: | 112 NE CEDAR AVE COLLEGE PLACE, WA 99324 | % Ownership: | 100.0000000000% |
| | | Exemptions: | |
Taxes and Assessment Details
Property Tax Information as of
02/21/2026
Click on "Statement Details" to expand or collapse a tax statement.
* Please enter a valid date ** Please enter a valid date *
Statement Details |
| | TOTAL: | $0.00 | $0.00 | $0.00 | $0.00 | $0.00 | $0.00 |
|
| | $0.00 | $0.00 | $0.00 | $0.00 | $0.00 | $0.00 |
Values
| (+) Improvement Homesite Value: | + | $0 | |
| (+) Improvement Non-Homesite Value: | + | $266,150 | |
| (+) Land Homesite Value: | + | $0 | |
| (+) Land Non-Homesite Value: | + | $75,000 | |
| (+) Curr Use (HS): | + | $0 | $0 |
| (+) Curr Use (NHS): | + | $0 | $0 |
| | | -------------------------- | |
| (=) Market Value: | = | $341,150 | |
| (–) Productivity Loss: | – | $0 | |
| | | -------------------------- | |
| (=) Subtotal: | = | $341,150 | |
| (+) Senior Appraised Value: | + | $0 | |
| (+) Non-Senior Appraised Value: | + | $341,150 | |
| | | -------------------------- | |
| (=) Total Appraised Value: | = | $341,150 | |
| (–) Senior Exemption Loss: | – | $0 | |
| (–) Exemption Loss: | – | $0 | |
| | | -------------------------- | |
| (=) Taxable Value: | = | $341,150 | |
Taxing Jurisdiction
| Owner: | BELKNAP RICK & VICKI | | |
| % Ownership: | 100.0000000000% | | |
| Total Value: | $341,150 | | |
| Tax Area: | 75 - CP 250 |
| CERFD | CURRENT EXPENSE REFUND 010 | 0.0000000000 | $341,150 | $341,150 | $0.00 | | |
| CURREXP | CURRENT EXPENSE 010 | 1.0175366760 | $341,150 | $341,150 | $347.13 | | |
| HUMNSERV | HUMAN SERVICES 119 | 0.0250000000 | $341,150 | $341,150 | $8.53 | | |
| SLDREL | SOLDIERS RELIEF 121 | 0.0155990005 | $341,150 | $341,150 | $5.32 | | |
| COLLPLBOND | C OF CP BOND 644 | 0.4374241808 | $341,150 | $341,150 | $149.23 | | |
| COLLPLGEN | CITY OF CP 632 | 1.4453819216 | $341,150 | $341,150 | $493.09 | | |
| EMERGSER | EMS 147 | 0.3792580840 | $341,150 | $341,150 | $129.38 | | |
| EMSRFD | EMS REFUND 147 | 0.0000000000 | $341,150 | $341,150 | $0.00 | | |
| RURALLIB | RURAL LIBRARY 623 | 0.3710609029 | $341,150 | $341,150 | $126.59 | | |
| PORTRFD | PORT REFUND 640 | 0.0000000000 | $341,150 | $341,150 | $0.00 | | |
| PORTWWGEN | PORT OF WW 640 | 0.2460186015 | $341,150 | $341,150 | $83.93 | | |
| SD250BOND | SD #250 BOND 773 | 1.4560608159 | $341,150 | $341,150 | $496.74 | | |
| SD250GEN | SD #250 GENERAL 770 | 2.3880724087 | $341,150 | $341,150 | $814.69 | | |
| ST2 | STATE SCHOOL PART 2 600 | 0.8131451643 | $341,150 | $341,150 | $277.40 | | |
| STATESCHL | STATE SCHOOL 600 | 1.5158548041 | $341,150 | $341,150 | $517.13 | | |
| STREFUND | STATE REFUND LEVY 603 | 0.0000000000 | $341,150 | $341,150 | $0.00 | | |
| | Total Tax Rate: | 10.1104125603 | | | | | |
| | | | | Taxes w/Current Exemptions: | $3,449.16 | | |
| | | | | Taxes w/o Exemptions: | $3,449.16 | | |
Improvement / Building
| Improvement #1: | RESIDENTIAL | State Code: | 11 | 1118.0 sqft | Value: | $266,150 |
| Exterior Wall: | HARDBOARD | Heating/Cooling: | WARM & COOLED AIR | | Number of Bathrooms: | 2 | Number of Bedrooms: | 3 | | Plumbing: | 9 | Roof Covering: | COMP SHINGLE |
|
| | Type | Description | Class CD | Sub Class CD | Year Built | Area |
| | MA | Main Area | 1 | 30 | 1963 | 1118.0 |
| | SI1 | SITE IMPROVEMENT | 1 | 30 | 1963 | 1.5 |
| | BASE | BASEMENT | 1 | 30 | 1963 | 1118.0 |
| | BPF | BASEMENT -PARTITIONED FINISH | 1 | 30 | 1963 | 1118.0 |
| | ATG | Attached Garage | 1 | 30 | 1963 | 528.0 |
| | RPS | PORCH W/STEPS,ROOF | 1 | 30 | 1963 | 36.0 |
| | D2F | Double 2 Story Fireplace | 1 | 30 | 1963 | 1.0 |
| | CPC | COVERED CARPORT/PATIO | 1 | 30 | 1963 | 396.0 |
| | RPC | OPEN PORCH W/ROOF , CEILED | 1 | 30 | 1963 | 60.0 |
Sketch
Property Image
Land
| 1 | RES 1 | Converted: Residential | 0.2376 | 10350.00 | 0.00 | 0.00 | 1.00 | $75,000 | $0 |
Roll Value History
| 2026 | N/A | N/A | N/A | N/A | N/A |
| 2025 | $292,770 | $125,000 | $0 | $417,770 | $417,770 |
| 2024 | $266,150 | $75,000 | $0 | $341,150 | $341,150 |
| 2023 | $266,150 | $75,000 | $0 | $341,150 | $341,150 |
| 2022 | $266,150 | $75,000 | $0 | $341,150 | $341,150 |
| 2021 | $221,790 | $75,000 | $0 | $296,790 | $296,790 |
| 2020 | $138,620 | $75,000 | $0 | $213,620 | $213,620 |
| 2019 | $153,620 | $60,000 | $0 | $213,620 | $213,620 |
| 2018 | $128,020 | $60,000 | $0 | $188,020 | $188,020 |
| 2017 | $116,380 | $60,000 | $0 | $176,380 | $176,380 |
| 2016 | $105,800 | $60,000 | $0 | $165,800 | $165,800 |
| 2015 | $105,800 | $60,000 | $0 | $165,800 | $165,800 |
| 2014 | $105,800 | $60,000 | $0 | $165,800 | $165,800 |
| 2013 | $105,800 | $60,000 | $0 | $165,800 | $165,800 |
| 2012 | $105,800 | $60,000 | $0 | $0 | $0 |
| 2011 | $105,800 | $60,000 | $0 | $0 | $0 |
| 2010 | $105,800 | $60,000 | $0 | $0 | $0 |
| 2009 | $114,500 | $60,000 | $0 | $0 | $0 |
| 2008 | $112,300 | $30,000 | $0 | $0 | $0 |
| 2007 | $112,300 | $30,000 | $0 | $0 | $0 |
Deed and Sales History
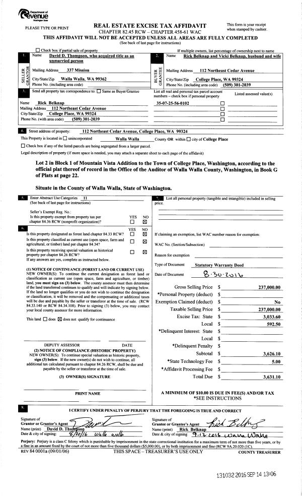
| 1 | 09/14/2016 | SWD | STATUTORY WARRANTY DEED | THOMPSON DAVID D | BELKNAP RICK & VICKI | | | $237,000.00 | 131032 | 2016-07496 |
| 2 | 07/03/2008 | WARRANTY D | WARRANTY DEED | STANLEY, JAMES D & DEBRA L TRU | THOMPSON, DAVID D | | | $180,000.00 | 115289 | 2008-06872 |
| 3 | 02/25/2004 | WARRANTY D | WARRANTY DEED | STANLEY, JAMES D & DEBRA L | STANLEY, JAMES D & DEBRA L TRU | | | | 104086 | 2004-01943 |
| 4 | 06/27/2002 | WARRANTY D | WARRANTY DEED | | | | | $145,000.00 | 99810 | 2002-0007367 |
Payout Agreement
| No payout information available.. |