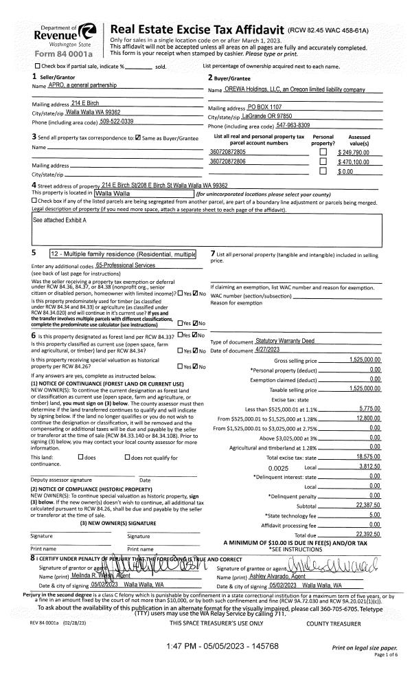
Property
Account |
| Property ID: | 7485 | Abbreviated Legal Description: | ROBERTS TAX 1 BLK 28 |
| Parcel Number: | 360720872806 | Agent Code: | |
| Type: | Real | | |
| Tax Area: | 1 - OL-140-F | Land Use Code | 65 |
| Open Space: | N | DFL | N |
| Historic Property: | N | Remodel Property: | N |
| Multi-Family Redevelopment: | N | | |
| Township: | 7 | Section: | 20 |
| Range: | 36 |
Location |
| Address: | 214 E BIRCH ST WA 99362 | Mapsco: | |
| Neighborhood: | WW Downtown Core area #3 | Map ID: | |
| Neighborhood CD: | 5343 |
Owner |
| Name: | OREWA HOLDINGS LLC | Owner ID: | 73538 |
| Mailing Address: | PO BOX 1107 LAGRANDE, OR 97850 | % Ownership: | 100.0000000000% |
| | | Exemptions: | |
Taxes and Assessment Details
Property Tax Information as of
02/21/2026
Click on "Statement Details" to expand or collapse a tax statement.
* Please enter a valid date ** Please enter a valid date *
Statement Details |
| | TOTAL: | $0.00 | $0.00 | $0.00 | $0.00 | $0.00 | $0.00 |
|
| | $0.00 | $0.00 | $0.00 | $0.00 | $0.00 | $0.00 |
Values
| (+) Improvement Homesite Value: | + | $0 | |
| (+) Improvement Non-Homesite Value: | + | $830,400 | |
| (+) Land Homesite Value: | + | $0 | |
| (+) Land Non-Homesite Value: | + | $139,000 | |
| (+) Curr Use (HS): | + | $0 | $0 |
| (+) Curr Use (NHS): | + | $0 | $0 |
| | | -------------------------- | |
| (=) Market Value: | = | $969,400 | |
| (–) Productivity Loss: | – | $0 | |
| | | -------------------------- | |
| (=) Subtotal: | = | $969,400 | |
| (+) Senior Appraised Value: | + | $0 | |
| (+) Non-Senior Appraised Value: | + | $969,400 | |
| | | -------------------------- | |
| (=) Total Appraised Value: | = | $969,400 | |
| (–) Senior Exemption Loss: | – | $0 | |
| (–) Exemption Loss: | – | $0 | |
| | | -------------------------- | |
| (=) Taxable Value: | = | $969,400 | |
Taxing Jurisdiction
| Owner: | OREWA HOLDINGS LLC | | |
| % Ownership: | 100.0000000000% | | |
| Total Value: | $969,400 | | |
| Tax Area: | 1 - OL-140-F |
| CERFD | CURRENT EXPENSE REFUND 010 | 0.0000000000 | $969,400 | $969,400 | $0.00 | | |
| CURREXP | CURRENT EXPENSE 010 | 0.9851088983 | $969,400 | $969,400 | $954.96 | | |
| HUMNSERV | HUMAN SERVICES 119 | 0.0250000000 | $969,400 | $969,400 | $24.24 | | |
| SLDREL | SOLDIERS RELIEF 121 | 0.0155990000 | $969,400 | $969,400 | $15.12 | | |
| EMERGSER | EMS 147 | 0.3676811629 | $969,400 | $969,400 | $356.43 | | |
| EMSRFD | EMS REFUND 147 | 0.0000000000 | $969,400 | $969,400 | $0.00 | | |
| PORTRFD | PORT REFUND 640 | 0.0000000000 | $969,400 | $969,400 | $0.00 | | |
| PORTWWGEN | PORT OF WW 640 | 0.2344301070 | $969,400 | $969,400 | $227.26 | | |
| SD140BOND | SD #140 BOND 764 | 0.8032434458 | $969,400 | $969,400 | $778.66 | | |
| SD140CAP | SD #140 CAP 762 | 0.3840034221 | $969,400 | $969,400 | $372.25 | | |
| SD140GEN | SD #140 GENERAL 760 | 2.4999999996 | $969,400 | $969,400 | $2,423.50 | | |
| ST2 | STATE SCHOOL PART 2 600 | 0.8853714103 | $969,400 | $969,400 | $858.28 | | |
| STATESCHL | STATE SCHOOL 600 | 1.6424571473 | $969,400 | $969,400 | $1,592.20 | | |
| STREFUND | STATE REFUND LEVY 603 | 0.0000000000 | $969,400 | $969,400 | $0.00 | | |
| CWWBOND | C OF WW BOND 643 | 0.2642134255 | $969,400 | $969,400 | $256.13 | | |
| CWWGEN | CITY OF WW 631 | 1.6110494978 | $969,400 | $969,400 | $1,561.75 | | |
| CWWRFD | CITY OF WALLA WALLA REFUND 631 | 0.0000000000 | $969,400 | $969,400 | $0.00 | | |
| | Total Tax Rate: | 9.7181575166 | | | | | |
| | | | | Taxes w/Current Exemptions: | $9,420.78 | | |
| | | | | Taxes w/o Exemptions: | $9,420.78 | | |
Improvement / Building
| Improvement #1: | COMMERCIAL | State Code: | 65 | 8347.0 sqft | Value: | $830,400 |
| | Type | Description | Class CD | Sub Class CD | Year Built | Area |
| | MA | Main Area | D | * | 1954 | 8347.0 |
| | BRW | BREEZEWAY | D | * | 1954 | 303.0 |
| | SI1 | SITE IMPROVEMENT | D | * | 1954 | 4.0 |
| | BASE | BASEMENT | D | * | 1954 | 2691.0 |
Sketch
Property Image
Land
| 1 | COM 1 | Converted: Commercial | 0.3191 | 13899.00 | 0.00 | 0.00 | 1.00 | $139,000 | $0 |
Roll Value History
| 2026 | N/A | N/A | N/A | N/A | N/A |
| 2025 | $830,400 | $139,000 | $0 | $969,400 | $969,400 |
| 2024 | $830,400 | $139,000 | $0 | $969,400 | $969,400 |
| 2023 | $345,000 | $125,100 | $0 | $470,100 | $470,100 |
| 2022 | $345,000 | $125,100 | $0 | $470,100 | $470,100 |
| 2021 | $345,000 | $125,100 | $0 | $470,100 | $470,100 |
| 2020 | $345,000 | $125,100 | $0 | $470,100 | $470,100 |
| 2019 | $345,000 | $125,100 | $0 | $470,100 | $470,100 |
| 2018 | $345,000 | $125,100 | $0 | $470,100 | $470,100 |
| 2017 | $345,000 | $125,100 | $0 | $470,100 | $470,100 |
| 2016 | $345,000 | $125,100 | $0 | $470,100 | $470,100 |
| 2015 | $345,000 | $125,100 | $0 | $470,100 | $470,100 |
| 2014 | $325,900 | $125,100 | $0 | $451,000 | $451,000 |
| 2013 | $325,900 | $125,100 | $0 | $451,000 | $451,000 |
| 2012 | $346,900 | $55,600 | $0 | $0 | $0 |
| 2011 | $346,900 | $55,600 | $0 | $0 | $0 |
| 2010 | $346,900 | $55,600 | $0 | $0 | $0 |
| 2009 | $346,900 | $55,600 | $0 | $0 | $0 |
| 2008 | $346,900 | $55,600 | $0 | $0 | $0 |
| 2007 | $346,900 | $55,600 | $0 | $0 | $0 |
Deed and Sales History
| 1 | 05/05/2023 | SWD | STATUTORY WARRANTY DEED | APRO GENERAL PARTNERSHIP | OREWA HOLDINGS LLC | | 2-PARCELS | $1,525,000.00 | 145768 | 2023-02387 |
|   | |
| 2 | 03/23/1984 | WARRANTY D | WARRANTY DEED | | | | | $180,000.00 | 0 | 1428-402072 |
Payout Agreement
| No payout information available.. |