| 1 | 11/15/2017 | QCD | QUIT CLAIM DEED | GROVER DYKES HOLDINGS LLC | DYKES HOLDINGS LLC | | 64 PARCELS | $1,609,030.00 | 133617 | 2017-09207 |
|   |
| 2093 |
WA 99360 | SEC 5 TWP 6 RNG 32 PTN. OF ABANDONED RR WITHIN E1/2 |
| 7413 |
WA 99360 | SEC 4 TWP 6 RNG 32 PTN. OF ABANDONED RR WITHIN SW1/4 |
| 7414 |
WA 99360 | SEC 9 TWP 6 RNG 32 PTN. OF ABAND. RR WITHIN W1/2NE1/4 & SE1/4NE1/4 |
| 7415 |
WA 99360 | SEC 23 TWP 7 RNG 32 TAX 2 |
| 7416 |
WA 99360 | SEC 29 TWP 7 RNG 32 PTN. OF ABANKDONED RR RUNNING THRU CENTER SEC |
| 7417 |
WA 99360 | SEC 32 TWP 7 RNG 32 PTN. OF ABANDONED RR WITHIN W1/2E1/2 |
| 7418 |
WA 99360 | SEC 1 TWP 6 RNG 32 TAX 4 |
| 7419 |
WA 99360 | SEC 1 TWP 6 RNG 32 SW/14 LESS TAX 2 & 3 |
| 7420 |
WA 99360 | SEC 1 TWP 6 RNG 32 S1/2SE1/4 LY. SLY. OF CENTER OF WW RIVER |
| 7421 |
WA 99360 | SEC 2 TWP 6 RNG 32 W1/2NE1/4 LESS RD LESS TAX1; LOT 3 LESS RD; S1/2NW1/4; SW1/4 |
| 7422 |
WA 99360 | SEC 2 TWP 6 RNG 32 E1/2NE1/4 LESS RD LESS TAX 1; N1/2SE1/4 |
| 7423 |
WA 99360 | SEC 2 TWP 6 RNG 32 LOT 4 LESS RD |
| 7425 |
WA 99360 | SEC 3 TWP 6 RNG 32 LOT 1 |
| 7426 |
WA 99360 | SEC 3 TWP 6 RNG 32 SE1/4NE1/4; NE1/4SE1/4 |
| 7427 |
WA 99360 | SEC 3 TWP 6 RNG 32 W1/2NE1/4; W1/2; W1/2SE1/4; SE1/4SE1/4 |
| 7428 |
WA 99360 | SEC 4 TWP 6 RNG 32 ALL, LESS NP RY R/W |
| 7429 |
WA 99360 | SEC 5 TWP 6 RNG 32 N1/2NE1/4, LESS NP RY R/W; NW1/4, LESS RD; S1/2SE1/4 |
| 7430 |
WA 99360 | SEC 5 TWP 6 RNG 32 S1/2NE1/4, LESS NP RY R/W; SW1/4; N1/2SE1/4,LESS NP RY R/W |
| 7431 |
WA 99360 | 6-6-32 NE1/4 E OF OLD RD; LESS NEW RD; NW1/4 N OF OLD RD; LESS NEW RD; SE1/4 E OF OLD RD; LESS NEW RD |
| 7432 |
WA 99360 | SEC 6 TWP 6 RNG 32 PARCEL #5 |
| 7433 |
WA 99360 | SEC 7 TWP 6 RNG 32 NE1/4, LESS RD; E1/2SE1/4; NW1/4SE1/4, E OF RD;SW1/4SE1/4, LESS RD |
| 7434 |
WA 99360 | ALL OF SEC 8 TWP 6 RNG 32 |
| 7435 |
WA 99360 | SEC 9 TWP 6 RNG 32 N1/2, LESS NP RY R/W; NW1/4SW1/4 |
| 7436 |
WA 99360 | SEC 10 TWP 6 RNG 32 NE1/4 |
| 7437 |
WA 99360 | SEC 11 TWP 6 RNG 32 E1/2; NE1/4NW1/4; S1/2NW1/4 |
| 7438 |
WA 99360 | 11-6-32 N1/2SW1/4; SE1/4SW1/4 |
| 7439 |
WA 99360 | SEC 11 TWP 6 RNG 32 NW/14NW1/4 |
| 7440 |
WA 99360 | ALL OF SEC 12 TWP 6 RNG 32 |
| 7441 |
WA 99360 | SEC 13 TWP 6 RNG 32 ALL OF FRACTIONAL (N1/2) |
| 7442 |
WA 99360 | SEC 14 TWP 6 RNG 32 NE1/4NE1/4; LOT 4 |
| 7443 |
WA 99360 | SEC 18 TWP 6 RNG 32 N1/2 NE1/4, LESS RD |
| 7444 |
WA 99360 | SEC 10 TWP 7 RNG 32 PTN E1/2SE1/4 |
| 7445 |
WA 99360 | SEC 11 TWP 7 RNG 32 ALL LESS PTN. W/12W1/2 |
| 7446 |
WA 99360 | SEC 13 TWP 7 RNG 32 W1/2, LESS RD |
| 7447 |
WA 99360 | SEC 14 TWP 7 RNG 32 N1/2NE1/4; SW1/4NE1/4; NW1/4 |
| 7448 |
WA 99360 | SEC 14 TWP 7 RNG 32 SE1/4NE1/4, LESS RD; S1/2 LESS RD IN SE1/4 |
| 7451 |
WA 99360 | SEC 21 TWP 7 RNG 32 SW1/4NE1/4, S OF OWR& N R/W; SE1/4NW1/4, S OFOWR& N R/W' NE1/4SW1/4, S OF HWY; SE1/4SW1/4, LESS HWY LESS LANDSOLD |
| 7452 |
WA 99360 | SEC 21 TWP 7 RNG 32 NE1/4SE1/4, S OF OWR&N R/W NW1/4SE1/4, LY. N.OF RIVER & S. OF HWY. S1/2SE1/4 LESS HWY. LESS PTN. TO HWY. IN 1986 |
| 7453 |
WA 99360 | SEC 22 TWP 7 RNG 32 NE1/4, LESS RR R/W & LESS PTN. BETWEEN RR &STATE HWY. |
| 7455 |
WA 99360 | 23-7-32 N1/2; LESS RR ROW & PUBLIC RD ROW; PLUS NE 1/4 SE 1/4; PLUS S1/2 SE 1/4; LESS PUBLIC RD ROW; PLUS SE 1/4 SW 1/4; PLUS PORTION NW 1/4 SW 1/4 |
| 7456 |
WA 99360 | SEC 23 TWP 7 RNG 32 NE1/4SW1/4 LESS HWY & TAX 2 NW1/4SE1/4 LESSHWY LESS PTN TO STATE FOR HWY |
| 7457 |
WA 99360 | SEC 24 TWP 7 RNG 32 W1/2 LESS HWY W1/2E1/2 LESS PTN TO STATE FORHWY |
| 7458 |
WA 99360 | SEC 25 TWP 7 RNG 32 W1/2NW1/4 |
| 7459 |
WA 99360 | SEC 26 TWP 7 RNG 32 NE1/4, LY N & E OF W OWR&N R/W; NW/14 LY N & EOF OWR&N R/W |
| 7460 |
WA 99360 | ALL SEC 27 TWP 7 RNG 32 |
| 7461 |
WA 99360 | ALL SEC 28 TWP 7 RNG 32 |
| 7462 |
WA 99360 | SEC 29 TWP 7 RNG 32 N1/2; LESS NP RY R/W, HWY & CO RD; N1/2SW1/4; LESS CO RD; SE1/4 LESS NP RY HWY & CO RD |
| 7463 |
WA 99360 | SEC 30 TWP 7 RNG 32 SE1/4NE1/4, LESS HWY, CO RD & REL HY; S1/2SW1/2LY 200 FT S OF REL. HWY; NE1/4SE1/4, LESS CO RD TAX 10 |
| 7464 |
WA 99360 | SEC 31 TWP 7 RNG 32 ALL, LESS CO RD IN E1/2 |
| 7465 |
WA 99360 | SEC 32 TWP 7 RNG 32 NE1/4, LESS NP RY & CO RD; S1/2NW1/4, LESS CORD; S1/2, LESS NP RY & CO RD |
| 7466 |
WA 99360 | SEC 34 TWP 7 RNG 32 N1/2; SW1/2 LESS CO RD; N1/2SE1/4; SW1/4SE1/4,LESS CO RD |
| 7467 |
WA 99360 | SEC 34 TWP 7 RNG 32 SE1/4SE1/4 LESS CO RD |
| 7468 |
WA 99360 | SEC 35 TWP 7 RNG 32 SW1/4, LESS CO RD |
| 7469 |
TOUCHET, WA 99360 | SEC 7 TWN 6 RNG 33 W1/2W1/2 |
| 7470 |
WA 99360 | SEC 23 TWP 7 RNG 32 SW1/4SW1/4 LY. ESTLY. OF RR |
| 25630 | RUBY BLUFF
WA 99360 | SEC 18 TWN 6 RNG 33 LOT 1 |
| 26450 | 1392 HINDMAN RD
WA 99360 | SEC 33 TWP 7 RNG 32 ALL LESS CO RD |
| 26783 |
WA 99360 | 15-7-32 ELY PTN SE1/4 |
| 26784 |
WA 99360 | 15-7-32 E1/2NE1/4 LESS SLY STRIP; SELY PTN SW1/4NE1/4 LESS SLYSTRIP; NW CORNER NW1/4SE1/4 |
| 35105 |
WA 99360 | 22-7-32 AMENDED LOT 1 OF SHORT PLAT (E1/2 SEC 22 LY. NLY. OF STRD. #12 & SLY. OF OWR&N R/W, LESS LOTS 2 & 3 OF SHORT PLAT) |
| 35106 | 31 NINE MILE RD
WA 99360 | SEC 22 TWP 7 RNG 32 LOT 3 OF SHORT PLAT (ELY. PTN. SE1/4NE1/4 SEC22 LY. NLY. OF & SLY. OF OWR&N R/W; ALSO PTN. OF W1/2W1/2 SEC. 23LY.NLY. OF ST RD #12 & SWLY. OF OWR&N R/W) |
| 35108 | 22474 W HIGHWAY 12
WA 99360 | 22-7-32 AMENDED LOT 2 OF SHORT PLAT (PTN. WITHIN S1/2NE1/4 LY.NLY. OF ST. RD. #12, LESS LOTS 1 & 3 OF SHORT PLAT) |
|
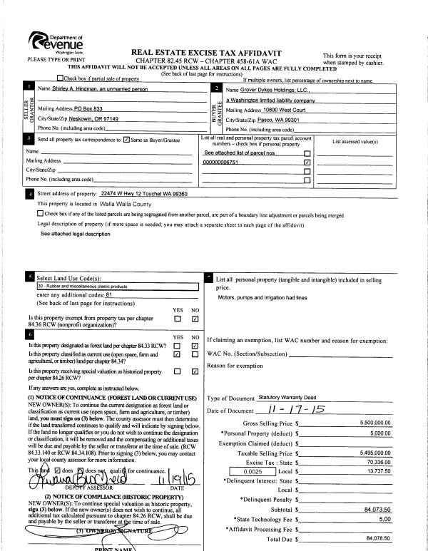
| 2 | 11/19/2015 | SWD | STATUTORY WARRANTY DEED | HINDMAN SHIRLEY A | GROVER DYKES HOLDINGS LLC | | 64 PARCLES | $5,495,000.00 | 129219 | 2015-10030 |
|   |
| 2093 |
WA 99360 | SEC 5 TWP 6 RNG 32 PTN. OF ABANDONED RR WITHIN E1/2 |
| 7413 |
WA 99360 | SEC 4 TWP 6 RNG 32 PTN. OF ABANDONED RR WITHIN SW1/4 |
| 7414 |
WA 99360 | SEC 9 TWP 6 RNG 32 PTN. OF ABAND. RR WITHIN W1/2NE1/4 & SE1/4NE1/4 |
| 7415 |
WA 99360 | SEC 23 TWP 7 RNG 32 TAX 2 |
| 7416 |
WA 99360 | SEC 29 TWP 7 RNG 32 PTN. OF ABANKDONED RR RUNNING THRU CENTER SEC |
| 7417 |
WA 99360 | SEC 32 TWP 7 RNG 32 PTN. OF ABANDONED RR WITHIN W1/2E1/2 |
| 7418 |
WA 99360 | SEC 1 TWP 6 RNG 32 TAX 4 |
| 7419 |
WA 99360 | SEC 1 TWP 6 RNG 32 SW/14 LESS TAX 2 & 3 |
| 7420 |
WA 99360 | SEC 1 TWP 6 RNG 32 S1/2SE1/4 LY. SLY. OF CENTER OF WW RIVER |
| 7421 |
WA 99360 | SEC 2 TWP 6 RNG 32 W1/2NE1/4 LESS RD LESS TAX1; LOT 3 LESS RD; S1/2NW1/4; SW1/4 |
| 7422 |
WA 99360 | SEC 2 TWP 6 RNG 32 E1/2NE1/4 LESS RD LESS TAX 1; N1/2SE1/4 |
| 7423 |
WA 99360 | SEC 2 TWP 6 RNG 32 LOT 4 LESS RD |
| 7425 |
WA 99360 | SEC 3 TWP 6 RNG 32 LOT 1 |
| 7426 |
WA 99360 | SEC 3 TWP 6 RNG 32 SE1/4NE1/4; NE1/4SE1/4 |
| 7427 |
WA 99360 | SEC 3 TWP 6 RNG 32 W1/2NE1/4; W1/2; W1/2SE1/4; SE1/4SE1/4 |
| 7428 |
WA 99360 | SEC 4 TWP 6 RNG 32 ALL, LESS NP RY R/W |
| 7429 |
WA 99360 | SEC 5 TWP 6 RNG 32 N1/2NE1/4, LESS NP RY R/W; NW1/4, LESS RD; S1/2SE1/4 |
| 7430 |
WA 99360 | SEC 5 TWP 6 RNG 32 S1/2NE1/4, LESS NP RY R/W; SW1/4; N1/2SE1/4,LESS NP RY R/W |
| 7431 |
WA 99360 | 6-6-32 NE1/4 E OF OLD RD; LESS NEW RD; NW1/4 N OF OLD RD; LESS NEW RD; SE1/4 E OF OLD RD; LESS NEW RD |
| 7432 |
WA 99360 | SEC 6 TWP 6 RNG 32 PARCEL #5 |
| 7433 |
WA 99360 | SEC 7 TWP 6 RNG 32 NE1/4, LESS RD; E1/2SE1/4; NW1/4SE1/4, E OF RD;SW1/4SE1/4, LESS RD |
| 7434 |
WA 99360 | ALL OF SEC 8 TWP 6 RNG 32 |
| 7435 |
WA 99360 | SEC 9 TWP 6 RNG 32 N1/2, LESS NP RY R/W; NW1/4SW1/4 |
| 7436 |
WA 99360 | SEC 10 TWP 6 RNG 32 NE1/4 |
| 7437 |
WA 99360 | SEC 11 TWP 6 RNG 32 E1/2; NE1/4NW1/4; S1/2NW1/4 |
| 7438 |
WA 99360 | 11-6-32 N1/2SW1/4; SE1/4SW1/4 |
| 7439 |
WA 99360 | SEC 11 TWP 6 RNG 32 NW/14NW1/4 |
| 7440 |
WA 99360 | ALL OF SEC 12 TWP 6 RNG 32 |
| 7441 |
WA 99360 | SEC 13 TWP 6 RNG 32 ALL OF FRACTIONAL (N1/2) |
| 7442 |
WA 99360 | SEC 14 TWP 6 RNG 32 NE1/4NE1/4; LOT 4 |
| 7443 |
WA 99360 | SEC 18 TWP 6 RNG 32 N1/2 NE1/4, LESS RD |
| 7444 |
WA 99360 | SEC 10 TWP 7 RNG 32 PTN E1/2SE1/4 |
| 7445 |
WA 99360 | SEC 11 TWP 7 RNG 32 ALL LESS PTN. W/12W1/2 |
| 7446 |
WA 99360 | SEC 13 TWP 7 RNG 32 W1/2, LESS RD |
| 7447 |
WA 99360 | SEC 14 TWP 7 RNG 32 N1/2NE1/4; SW1/4NE1/4; NW1/4 |
| 7448 |
WA 99360 | SEC 14 TWP 7 RNG 32 SE1/4NE1/4, LESS RD; S1/2 LESS RD IN SE1/4 |
| 7451 |
WA 99360 | SEC 21 TWP 7 RNG 32 SW1/4NE1/4, S OF OWR& N R/W; SE1/4NW1/4, S OFOWR& N R/W' NE1/4SW1/4, S OF HWY; SE1/4SW1/4, LESS HWY LESS LANDSOLD |
| 7452 |
WA 99360 | SEC 21 TWP 7 RNG 32 NE1/4SE1/4, S OF OWR&N R/W NW1/4SE1/4, LY. N.OF RIVER & S. OF HWY. S1/2SE1/4 LESS HWY. LESS PTN. TO HWY. IN 1986 |
| 7453 |
WA 99360 | SEC 22 TWP 7 RNG 32 NE1/4, LESS RR R/W & LESS PTN. BETWEEN RR &STATE HWY. |
| 7455 |
WA 99360 | 23-7-32 N1/2; LESS RR ROW & PUBLIC RD ROW; PLUS NE 1/4 SE 1/4; PLUS S1/2 SE 1/4; LESS PUBLIC RD ROW; PLUS SE 1/4 SW 1/4; PLUS PORTION NW 1/4 SW 1/4 |
| 7456 |
WA 99360 | SEC 23 TWP 7 RNG 32 NE1/4SW1/4 LESS HWY & TAX 2 NW1/4SE1/4 LESSHWY LESS PTN TO STATE FOR HWY |
| 7457 |
WA 99360 | SEC 24 TWP 7 RNG 32 W1/2 LESS HWY W1/2E1/2 LESS PTN TO STATE FORHWY |
| 7458 |
WA 99360 | SEC 25 TWP 7 RNG 32 W1/2NW1/4 |
| 7459 |
WA 99360 | SEC 26 TWP 7 RNG 32 NE1/4, LY N & E OF W OWR&N R/W; NW/14 LY N & EOF OWR&N R/W |
| 7460 |
WA 99360 | ALL SEC 27 TWP 7 RNG 32 |
| 7461 |
WA 99360 | ALL SEC 28 TWP 7 RNG 32 |
| 7462 |
WA 99360 | SEC 29 TWP 7 RNG 32 N1/2; LESS NP RY R/W, HWY & CO RD; N1/2SW1/4; LESS CO RD; SE1/4 LESS NP RY HWY & CO RD |
| 7463 |
WA 99360 | SEC 30 TWP 7 RNG 32 SE1/4NE1/4, LESS HWY, CO RD & REL HY; S1/2SW1/2LY 200 FT S OF REL. HWY; NE1/4SE1/4, LESS CO RD TAX 10 |
| 7464 |
WA 99360 | SEC 31 TWP 7 RNG 32 ALL, LESS CO RD IN E1/2 |
| 7465 |
WA 99360 | SEC 32 TWP 7 RNG 32 NE1/4, LESS NP RY & CO RD; S1/2NW1/4, LESS CORD; S1/2, LESS NP RY & CO RD |
| 7466 |
WA 99360 | SEC 34 TWP 7 RNG 32 N1/2; SW1/2 LESS CO RD; N1/2SE1/4; SW1/4SE1/4,LESS CO RD |
| 7467 |
WA 99360 | SEC 34 TWP 7 RNG 32 SE1/4SE1/4 LESS CO RD |
| 7468 |
WA 99360 | SEC 35 TWP 7 RNG 32 SW1/4, LESS CO RD |
| 7469 |
TOUCHET, WA 99360 | SEC 7 TWN 6 RNG 33 W1/2W1/2 |
| 7470 |
WA 99360 | SEC 23 TWP 7 RNG 32 SW1/4SW1/4 LY. ESTLY. OF RR |
| 25630 | RUBY BLUFF
WA 99360 | SEC 18 TWN 6 RNG 33 LOT 1 |
| 26450 | 1392 HINDMAN RD
WA 99360 | SEC 33 TWP 7 RNG 32 ALL LESS CO RD |
| 26783 |
WA 99360 | 15-7-32 ELY PTN SE1/4 |
| 26784 |
WA 99360 | 15-7-32 E1/2NE1/4 LESS SLY STRIP; SELY PTN SW1/4NE1/4 LESS SLYSTRIP; NW CORNER NW1/4SE1/4 |
| 35105 |
WA 99360 | 22-7-32 AMENDED LOT 1 OF SHORT PLAT (E1/2 SEC 22 LY. NLY. OF STRD. #12 & SLY. OF OWR&N R/W, LESS LOTS 2 & 3 OF SHORT PLAT) |
| 35106 | 31 NINE MILE RD
WA 99360 | SEC 22 TWP 7 RNG 32 LOT 3 OF SHORT PLAT (ELY. PTN. SE1/4NE1/4 SEC22 LY. NLY. OF & SLY. OF OWR&N R/W; ALSO PTN. OF W1/2W1/2 SEC. 23LY.NLY. OF ST RD #12 & SWLY. OF OWR&N R/W) |
| 35108 | 22474 W HIGHWAY 12
WA 99360 | 22-7-32 AMENDED LOT 2 OF SHORT PLAT (PTN. WITHIN S1/2NE1/4 LY.NLY. OF ST. RD. #12, LESS LOTS 1 & 3 OF SHORT PLAT) |
|
| 3 | 03/11/2013 | WARRANTY D | WARRANTY DEED | "HINDMAN, BILLY MARITAL~TRUST" | HINDMAN SHIRLEY A | | | | 123568 | 2013-02239 |
| 4 | 03/29/2004 | WARRANTY D | WARRANTY DEED | "HINDMAN, BILLY MARITAL~TRUST" | HINDMAN BILLY MARITAL TRUST | | | | 104373 | 2004-03298 |
| 5 | 03/01/2004 | WARRANTY D | WARRANTY DEED | "HINDMAN, BILLY" | HINDMAN BILLY MARITAL TRUST | | | | 0 | 03-4-00066-1 |