Property
Account |
| Property ID: | 7401 | Abbreviated Legal Description: | LANGFORDS N 100' OF LOT 3 BLK 19 W 72.5' OF LOT 3 BLK 19 |
| Parcel Number: | 360719591905 | Agent Code: | |
| Type: | Real | | |
| Tax Area: | 1 - OL-140-F | Land Use Code | 12 |
| Open Space: | N | DFL | N |
| Historic Property: | N | Remodel Property: | N |
| Multi-Family Redevelopment: | N | | |
| Township: | 7 | Section: | 19 |
| Range: | 36 |
Location |
| Address: | 720 N 8TH AVE WA 99362 | Mapsco: | |
| Neighborhood: | A Duplex City | Map ID: | |
| Neighborhood CD: | 313031 |
Owner |
| Name: | RASCON PEDRO E & ANDREA K | Owner ID: | 70919 |
| Mailing Address: | 123 THUNDER RIDGE RD WALLA WALLA, WA 99362 | % Ownership: | 100.0000000000% |
| | | Exemptions: | |
Taxes and Assessment Details
Values
| (+) Improvement Homesite Value: | + | $0 | |
| (+) Improvement Non-Homesite Value: | + | $219,710 | |
| (+) Land Homesite Value: | + | $0 | |
| (+) Land Non-Homesite Value: | + | $57,750 | |
| (+) Curr Use (HS): | + | $0 | $0 |
| (+) Curr Use (NHS): | + | $0 | $0 |
| | | -------------------------- | |
| (=) Market Value: | = | $277,460 | |
| (–) Productivity Loss: | – | $0 | |
| | | -------------------------- | |
| (=) Subtotal: | = | $277,460 | |
| (+) Senior Appraised Value: | + | $0 | |
| (+) Non-Senior Appraised Value: | + | $277,460 | |
| | | -------------------------- | |
| (=) Total Appraised Value: | = | $277,460 | |
| (–) Senior Exemption Loss: | – | $0 | |
| (–) Exemption Loss: | – | $0 | |
| | | -------------------------- | |
| (=) Taxable Value: | = | $277,460 | |
Taxing Jurisdiction
| Owner: | RASCON PEDRO E & ANDREA K | | |
| % Ownership: | 100.0000000000% | | |
| Total Value: | $277,460 | | |
| Tax Area: | 1 - OL-140-F |
| CERFD | CURRENT EXPENSE REFUND 010 | 0.0000000000 | $277,460 | $277,460 | $0.00 | | |
| CURREXP | CURRENT EXPENSE 010 | 1.0175366760 | $277,460 | $277,460 | $282.33 | | |
| HUMNSERV | HUMAN SERVICES 119 | 0.0250000000 | $277,460 | $277,460 | $6.94 | | |
| SLDREL | SOLDIERS RELIEF 121 | 0.0155990005 | $277,460 | $277,460 | $4.33 | | |
| EMERGSER | EMS 147 | 0.3792580840 | $277,460 | $277,460 | $105.23 | | |
| EMSRFD | EMS REFUND 147 | 0.0000000000 | $277,460 | $277,460 | $0.00 | | |
| PORTRFD | PORT REFUND 640 | 0.0000000000 | $277,460 | $277,460 | $0.00 | | |
| PORTWWGEN | PORT OF WW 640 | 0.2460186015 | $277,460 | $277,460 | $68.26 | | |
| SD140BOND | SD #140 BOND 764 | 0.8342371393 | $277,460 | $277,460 | $231.47 | | |
| SD140GEN | SD #140 GENERAL 760 | 2.0646500647 | $277,460 | $277,460 | $572.86 | | |
| ST2 | STATE SCHOOL PART 2 600 | 0.8131451643 | $277,460 | $277,460 | $225.62 | | |
| STATESCHL | STATE SCHOOL 600 | 1.5158548041 | $277,460 | $277,460 | $420.59 | | |
| STREFUND | STATE REFUND LEVY 603 | 0.0000000000 | $277,460 | $277,460 | $0.00 | | |
| CWWBOND | C OF WW BOND 643 | 0.2760494372 | $277,460 | $277,460 | $76.59 | | |
| CWWGEN | CITY OF WW 631 | 1.6100204973 | $277,460 | $277,460 | $446.72 | | |
| CWWRFD | CITY OF WALLA WALLA REFUND 631 | 0.0000000000 | $277,460 | $277,460 | $0.00 | | |
| | Total Tax Rate: | 8.7973694689 | | | | | |
| | | | | Taxes w/Current Exemptions: | $2,440.94 | | |
| | | | | Taxes w/o Exemptions: | $2,440.94 | | |
Improvement / Building
| Improvement #1: | RESIDENTIAL | State Code: | 12 | 1536.0 sqft | Value: | $219,710 |
| Exterior Wall: | SIDING | Heating/Cooling: | MINI-SPLIT HP SYSTEM | | Number of Bathrooms: | 2 | Number of Bedrooms: | 4 | | Plumbing: | 12 | Roof Covering: | COMP SHINGLE |
|
| | Type | Description | Class CD | Sub Class CD | Year Built | Area |
| | MA | Main Area | 1 | 25 | 1950 | 1536.0 |
| | SI1 | SITE IMPROVEMENT | 1 | 25 | 1950 | 2.0 |
| | RPS | PORCH W/STEPS,ROOF | 1 | 25 | 1950 | 15.0 |
| | RPS | PORCH W/STEPS,ROOF | 1 | 25 | 1950 | 15.0 |
Sketch
Property Image
Land
| 1 | RES 1 | Converted: Residential | 0.1607 | 7000.00 | 0.00 | 0.00 | 1.00 | $57,750 | $0 |
Roll Value History
| 2026 | N/A | N/A | N/A | N/A | N/A |
| 2025 | $264,840 | $57,800 | $0 | $322,640 | $322,640 |
| 2024 | $220,700 | $57,800 | $0 | $278,500 | $278,500 |
| 2023 | $219,710 | $57,750 | $0 | $277,460 | $277,460 |
| 2022 | $209,250 | $57,750 | $0 | $267,000 | $267,000 |
| 2021 | $109,010 | $25,100 | $0 | $134,110 | $134,110 |
| 2020 | $99,100 | $25,100 | $0 | $124,200 | $124,200 |
| 2019 | $99,100 | $25,100 | $0 | $124,200 | $124,200 |
| 2018 | $94,390 | $25,100 | $0 | $119,490 | $119,490 |
| 2017 | $94,390 | $25,100 | $0 | $119,490 | $119,490 |
| 2016 | $89,890 | $25,100 | $0 | $114,990 | $114,990 |
| 2015 | $82,720 | $25,100 | $0 | $107,820 | $107,820 |
| 2014 | $75,200 | $25,100 | $0 | $100,300 | $100,300 |
| 2013 | $75,200 | $25,100 | $0 | $100,300 | $100,300 |
| 2012 | $44,100 | $25,100 | $0 | $0 | $0 |
| 2011 | $44,100 | $25,100 | $0 | $0 | $0 |
| 2010 | $47,100 | $25,100 | $0 | $0 | $0 |
| 2009 | $63,700 | $12,300 | $0 | $0 | $0 |
| 2008 | $48,500 | $12,300 | $0 | $0 | $0 |
| 2007 | $48,500 | $12,300 | $0 | $0 | $0 |
Deed and Sales History
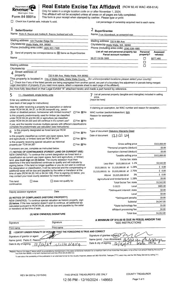
| 1 | 12/16/2024 | SWD | STATUTORY WARRANTY DEED | RASCON PEDRO E & ANDREA K | ALCOMBRACK J'VON | | | $322,000.00 | 148663 | 2024-07232 |
| 2 | 01/05/2022 | SWD | STATUTORY WARRANTY DEED | LITZENBERGER ALLEN R & PEGGY | RASCON PEDRO E & ANDREA K | | | $279,000.00 | 143185 | 2022-00144 |
| 3 | 03/22/2004 | WARRANTY D | WARRANTY DEED | MINNICK-HAYNER AS SUCC TRUSTEE | LITZENBERGER, ALLEN R & PEGGY | | | | 104320 | 2004-02961 |
| 4 | 11/01/2001 | WARRANTY D | WARRANTY DEED | | | | | $60,000.00 | 82731 | 3220-111786 |
Payout Agreement
| No payout information available.. |