Property
Account |
| Property ID: | 7396 | Abbreviated Legal Description: | ROBERTS TAX 8 BLK 27 |
| Parcel Number: | 360720872716 | Agent Code: | |
| Type: | Real | | |
| Tax Area: | 1 - OL-140-F | Land Use Code | 11 |
| Open Space: | N | DFL | N |
| Historic Property: | N | Remodel Property: | N |
| Multi-Family Redevelopment: | N | | |
| Township: | 7 | Section: | 20 |
| Range: | 36 |
Location |
| Address: | 221 NEWELL ST WA 99362 | Mapsco: | |
| Neighborhood: | G-SFR | Map ID: | |
| Neighborhood CD: | 514011 |
Owner |
| Name: | RUDNICK RACHEL MARIE & DAVID AMENEYRO | Owner ID: | 72059 |
| Mailing Address: | 221 NEWELL ST WALLA WALLA, WA 99362 | % Ownership: | 100.0000000000% |
| | | Exemptions: | |
Taxes and Assessment Details
Property Tax Information as of
02/21/2026
Click on "Statement Details" to expand or collapse a tax statement.
* Please enter a valid date ** Please enter a valid date *
Statement Details |
| | TOTAL: | $0.00 | $0.00 | $0.00 | $0.00 | $0.00 | $0.00 |
|
| | $0.00 | $0.00 | $0.00 | $0.00 | $0.00 | $0.00 |
Values
| (+) Improvement Homesite Value: | + | $0 | |
| (+) Improvement Non-Homesite Value: | + | $754,890 | |
| (+) Land Homesite Value: | + | $0 | |
| (+) Land Non-Homesite Value: | + | $70,250 | |
| (+) Curr Use (HS): | + | $0 | $0 |
| (+) Curr Use (NHS): | + | $0 | $0 |
| | | -------------------------- | |
| (=) Market Value: | = | $825,140 | |
| (–) Productivity Loss: | – | $0 | |
| | | -------------------------- | |
| (=) Subtotal: | = | $825,140 | |
| (+) Senior Appraised Value: | + | $0 | |
| (+) Non-Senior Appraised Value: | + | $825,140 | |
| | | -------------------------- | |
| (=) Total Appraised Value: | = | $825,140 | |
| (–) Senior Exemption Loss: | – | $0 | |
| (–) Exemption Loss: | – | $0 | |
| | | -------------------------- | |
| (=) Taxable Value: | = | $825,140 | |
Taxing Jurisdiction
| Owner: | RUDNICK RACHEL MARIE & DAVID AMENEYRO | | |
| % Ownership: | 100.0000000000% | | |
| Total Value: | $825,140 | | |
| Tax Area: | 1 - OL-140-F |
| CERFD | CURRENT EXPENSE REFUND 010 | 0.0000000000 | $825,140 | $825,140 | $0.00 | | |
| CURREXP | CURRENT EXPENSE 010 | 1.0175366760 | $825,140 | $825,140 | $839.61 | | |
| HUMNSERV | HUMAN SERVICES 119 | 0.0250000000 | $825,140 | $825,140 | $20.63 | | |
| SLDREL | SOLDIERS RELIEF 121 | 0.0155990005 | $825,140 | $825,140 | $12.87 | | |
| EMERGSER | EMS 147 | 0.3792580840 | $825,140 | $825,140 | $312.94 | | |
| EMSRFD | EMS REFUND 147 | 0.0000000000 | $825,140 | $825,140 | $0.00 | | |
| PORTRFD | PORT REFUND 640 | 0.0000000000 | $825,140 | $825,140 | $0.00 | | |
| PORTWWGEN | PORT OF WW 640 | 0.2460186015 | $825,140 | $825,140 | $203.00 | | |
| SD140BOND | SD #140 BOND 764 | 0.8342371393 | $825,140 | $825,140 | $688.36 | | |
| SD140GEN | SD #140 GENERAL 760 | 2.0646500647 | $825,140 | $825,140 | $1,703.63 | | |
| ST2 | STATE SCHOOL PART 2 600 | 0.8131451643 | $825,140 | $825,140 | $670.96 | | |
| STATESCHL | STATE SCHOOL 600 | 1.5158548041 | $825,140 | $825,140 | $1,250.79 | | |
| STREFUND | STATE REFUND LEVY 603 | 0.0000000000 | $825,140 | $825,140 | $0.00 | | |
| CWWBOND | C OF WW BOND 643 | 0.2760494372 | $825,140 | $825,140 | $227.78 | | |
| CWWGEN | CITY OF WW 631 | 1.6100204973 | $825,140 | $825,140 | $1,328.49 | | |
| CWWRFD | CITY OF WALLA WALLA REFUND 631 | 0.0000000000 | $825,140 | $825,140 | $0.00 | | |
| | Total Tax Rate: | 8.7973694689 | | | | | |
| | | | | Taxes w/Current Exemptions: | $7,259.06 | | |
| | | | | Taxes w/o Exemptions: | $7,259.06 | | |
Improvement / Building
| Improvement #1: | RESIDENTIAL | State Code: | 11 | 2177.0 sqft | Value: | $754,890 |
| Exterior Wall: | SIDING | Heating/Cooling: | WARM & COOLED AIR | | Number of Bathrooms: | 2 | Number of Bedrooms: | 3 | | Plumbing: | 10 | Roof Covering: | COMP SHINGLE |
|
| | Type | Description | Class CD | Sub Class CD | Year Built | Area |
| | MA | Main Area | 2 | 50 | 1916 | 2177.0 |
| | RCD | WOOD DECK W/ROOF, CEILED | 2 | 50 | 0 | 30.0 |
| | SI1 | SITE IMPROVEMENT | 2 | 50 | 0 | 3.0 |
| | BASE | BASEMENT | 2 | 50 | 1916 | 1040.0 |
| | BPF | BASEMENT -PARTITIONED FINISH | 2 | 50 | 1916 | 940.0 |
| | DTG | Detached Garage | 2 | 50 | 1916 | 240.0 |
| | RPS | PORCH W/STEPS,ROOF | 2 | 50 | 1916 | 70.0 |
| | D2F | Double 2 Story Fireplace | 2 | 50 | 1916 | 1.0 |
| | UPFL | Upper Floor (included in main area) | 2 | 50 | 1916 | 1040.0 |
| | WOD | Wood Deck | 2 | 50 | 1916 | 352.0 |
Sketch
Property Image
Land
| 1 | RES 1 | Converted: Residential | 0.2225 | 9690.00 | 0.00 | 0.00 | 1.00 | $70,250 | $0 |
Roll Value History
| 2026 | N/A | N/A | N/A | N/A | N/A |
| 2025 | $721,370 | $106,590 | $0 | $827,960 | $827,960 |
| 2024 | $721,370 | $106,590 | $0 | $827,960 | $827,960 |
| 2023 | $754,890 | $70,250 | $0 | $825,140 | $825,140 |
| 2022 | $629,080 | $70,250 | $0 | $699,330 | $699,330 |
| 2021 | $449,340 | $70,250 | $0 | $519,590 | $519,590 |
| 2020 | $374,450 | $70,250 | $0 | $444,700 | $444,700 |
| 2019 | $374,450 | $70,250 | $0 | $444,700 | $444,700 |
| 2018 | $374,450 | $70,250 | $0 | $444,700 | $444,700 |
| 2017 | $360,050 | $43,600 | $0 | $403,650 | $403,650 |
| 2016 | $342,900 | $43,600 | $0 | $386,500 | $386,500 |
| 2015 | $342,900 | $43,600 | $0 | $386,500 | $386,500 |
| 2014 | $342,900 | $43,600 | $0 | $386,500 | $386,500 |
| 2013 | $342,900 | $43,600 | $0 | $386,500 | $386,500 |
| 2012 | $342,900 | $43,600 | $0 | $0 | $0 |
| 2011 | $342,900 | $43,600 | $0 | $0 | $0 |
| 2010 | $324,500 | $43,600 | $0 | $0 | $0 |
| 2009 | $346,000 | $43,600 | $0 | $0 | $0 |
| 2008 | $268,100 | $43,600 | $0 | $0 | $0 |
| 2007 | $268,100 | $43,600 | $0 | $0 | $0 |
Deed and Sales History
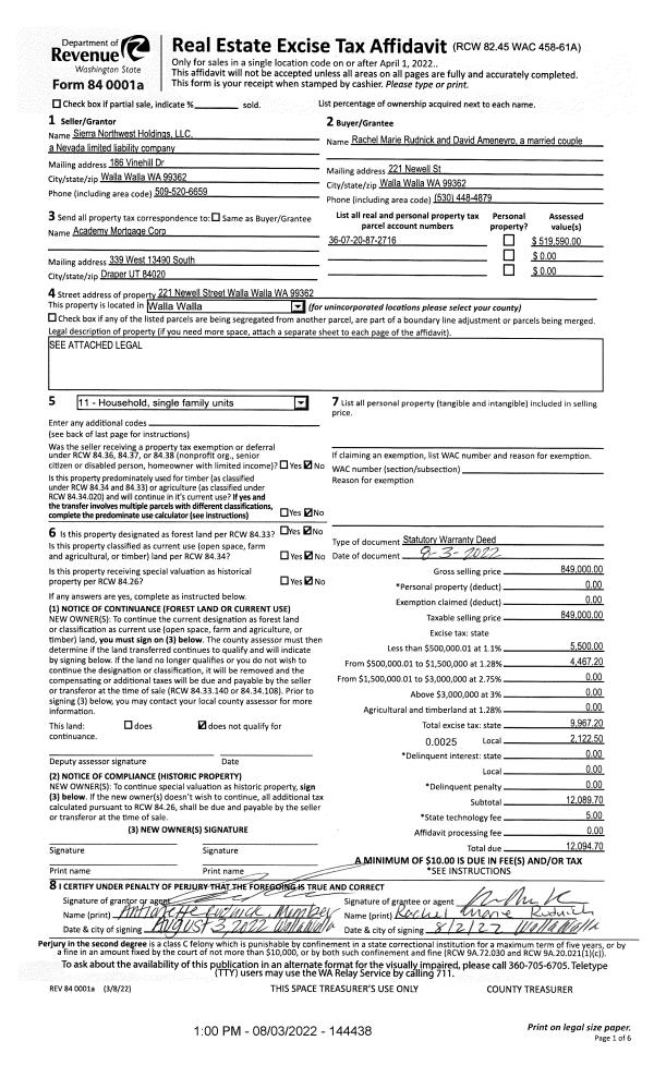
| 1 | 08/03/2022 | SWD | STATUTORY WARRANTY DEED | SIERRA NORTHWEST HOLDINGS LLC | RUDNICK RACHEL MARIE & DAVID AMENEYRO | | | $849,000.00 | 144438 | 2022-06516 |
| 2 | 05/31/2022 | SWD | STATUTORY WARRANTY DEED | RODGERS RYAN & ALISON | SIERRA NORTHWEST HOLDINGS LLC | | | $849,000.00 | 144052 | 2022-04643 |
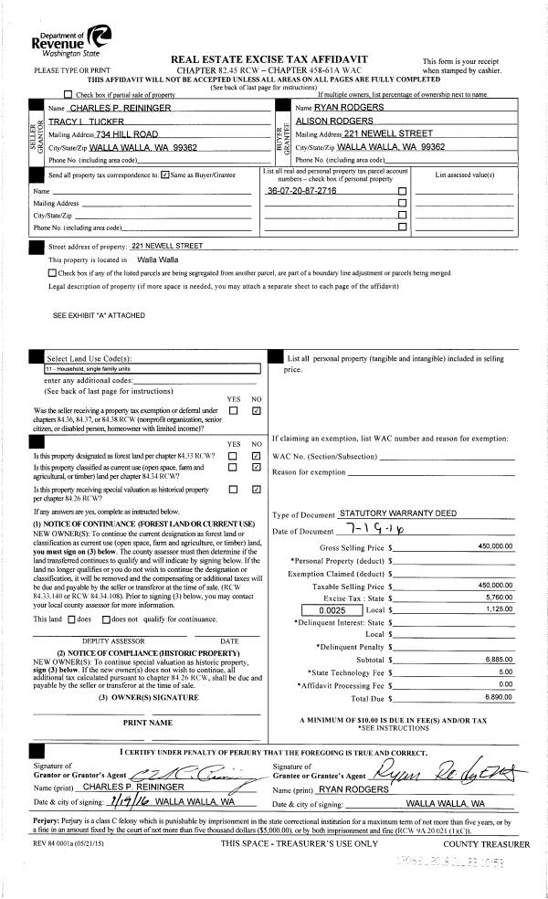
| 3 | 07/22/2016 | SWD | STATUTORY WARRANTY DEED | REININGER CHARLES P | RODGERS RYAN & ALISON | | | $450,000.00 | 130681 | 2016-05730 |
| 4 | 08/03/1992 | WARRANTY D | WARRANTY DEED | | | | | $152,000.00 | 77354 | 1999-206815 |
Payout Agreement
| No payout information available.. |