Property
Account |
| Property ID: | 7384 | Abbreviated Legal Description: | WALNUT GROVE LOT 7 BLK 9; SWLY 6' OF LOT 8 BLK 9 |
| Parcel Number: | 360720780907 | Agent Code: | |
| Type: | Real | | |
| Tax Area: | 1 - OL-140-F | Land Use Code | 11 |
| Open Space: | N | DFL | N |
| Historic Property: | N | Remodel Property: | N |
| Multi-Family Redevelopment: | N | | |
| Township: | 7 | Section: | 20 |
| Range: | 36 |
Location |
| Address: | 601 E SUMACH ST WA 99362 | Mapsco: | |
| Neighborhood: | A-Inferior SFR | Map ID: | |
| Neighborhood CD: | 513111 |
Owner |
| Name: | KOENIGSBERG WILLIAM M | Owner ID: | 63558 |
| Mailing Address: | PO BOX 399 ASHLAND, OR 97520 | % Ownership: | 100.0000000000% |
| | | Exemptions: | |
Taxes and Assessment Details
Property Tax Information as of
02/21/2026
Click on "Statement Details" to expand or collapse a tax statement.
* Please enter a valid date ** Please enter a valid date *
Statement Details |
| | TOTAL: | $0.00 | $0.00 | $0.00 | $0.00 | $0.00 | $0.00 |
|
| | $0.00 | $0.00 | $0.00 | $0.00 | $0.00 | $0.00 |
Values
| (+) Improvement Homesite Value: | + | $0 | |
| (+) Improvement Non-Homesite Value: | + | $273,070 | |
| (+) Land Homesite Value: | + | $0 | |
| (+) Land Non-Homesite Value: | + | $42,000 | |
| (+) Curr Use (HS): | + | $0 | $0 |
| (+) Curr Use (NHS): | + | $0 | $0 |
| | | -------------------------- | |
| (=) Market Value: | = | $315,070 | |
| (–) Productivity Loss: | – | $0 | |
| | | -------------------------- | |
| (=) Subtotal: | = | $315,070 | |
| (+) Senior Appraised Value: | + | $0 | |
| (+) Non-Senior Appraised Value: | + | $315,070 | |
| | | -------------------------- | |
| (=) Total Appraised Value: | = | $315,070 | |
| (–) Senior Exemption Loss: | – | $0 | |
| (–) Exemption Loss: | – | $0 | |
| | | -------------------------- | |
| (=) Taxable Value: | = | $315,070 | |
Taxing Jurisdiction
| Owner: | KOENIGSBERG WILLIAM M | | |
| % Ownership: | 100.0000000000% | | |
| Total Value: | $315,070 | | |
| Tax Area: | 1 - OL-140-F |
| CERFD | CURRENT EXPENSE REFUND 010 | 0.0000000000 | $315,070 | $315,070 | $0.00 | | |
| CURREXP | CURRENT EXPENSE 010 | 1.0175366760 | $315,070 | $315,070 | $320.60 | | |
| HUMNSERV | HUMAN SERVICES 119 | 0.0250000000 | $315,070 | $315,070 | $7.88 | | |
| SLDREL | SOLDIERS RELIEF 121 | 0.0155990005 | $315,070 | $315,070 | $4.91 | | |
| EMERGSER | EMS 147 | 0.3792580840 | $315,070 | $315,070 | $119.49 | | |
| EMSRFD | EMS REFUND 147 | 0.0000000000 | $315,070 | $315,070 | $0.00 | | |
| PORTRFD | PORT REFUND 640 | 0.0000000000 | $315,070 | $315,070 | $0.00 | | |
| PORTWWGEN | PORT OF WW 640 | 0.2460186015 | $315,070 | $315,070 | $77.51 | | |
| SD140BOND | SD #140 BOND 764 | 0.8342371393 | $315,070 | $315,070 | $262.84 | | |
| SD140GEN | SD #140 GENERAL 760 | 2.0646500647 | $315,070 | $315,070 | $650.51 | | |
| ST2 | STATE SCHOOL PART 2 600 | 0.8131451643 | $315,070 | $315,070 | $256.20 | | |
| STATESCHL | STATE SCHOOL 600 | 1.5158548041 | $315,070 | $315,070 | $477.60 | | |
| STREFUND | STATE REFUND LEVY 603 | 0.0000000000 | $315,070 | $315,070 | $0.00 | | |
| CWWBOND | C OF WW BOND 643 | 0.2760494372 | $315,070 | $315,070 | $86.97 | | |
| CWWGEN | CITY OF WW 631 | 1.6100204973 | $315,070 | $315,070 | $507.27 | | |
| CWWRFD | CITY OF WALLA WALLA REFUND 631 | 0.0000000000 | $315,070 | $315,070 | $0.00 | | |
| | Total Tax Rate: | 8.7973694689 | | | | | |
| | | | | Taxes w/Current Exemptions: | $2,771.78 | | |
| | | | | Taxes w/o Exemptions: | $2,771.78 | | |
Improvement / Building
| Improvement #1: | RESIDENTIAL | State Code: | 11 | 1641.0 sqft | Value: | $273,070 |
| Exterior Wall: | SIDING | Heating/Cooling: | WARM & COOLED AIR | | Number of Bathrooms: | 2 | Number of Bedrooms: | 3 | | Plumbing: | 9 | Roof Covering: | COMP SHINGLE |
|
| | Type | Description | Class CD | Sub Class CD | Year Built | Area |
| | MA | Main Area | 1 | 35 | 1900 | 1641.0 |
| | RPC | OPEN PORCH W/ROOF , CEILED | 1 | 35 | 0 | 60.0 |
| | RPC | OPEN PORCH W/ROOF , CEILED | 1 | 35 | 0 | 300.0 |
| | SI1 | SITE IMPROVEMENT | 1 | 35 | 0 | 1.0 |
| | BASE | BASEMENT | 1 | 35 | 1900 | 907.0 |
Sketch
Property Image
Land
| 1 | RES 1 | Converted: Residential | 0.1543 | 6720.00 | 0.00 | 0.00 | 1.00 | $42,000 | $0 |
Roll Value History
| 2026 | N/A | N/A | N/A | N/A | N/A |
| 2025 | $282,530 | $67,200 | $0 | $349,730 | $349,730 |
| 2024 | $269,080 | $67,200 | $0 | $336,280 | $336,280 |
| 2023 | $273,070 | $42,000 | $0 | $315,070 | $315,070 |
| 2022 | $248,250 | $42,000 | $0 | $290,250 | $290,250 |
| 2021 | $177,320 | $42,000 | $0 | $219,320 | $219,320 |
| 2020 | $136,400 | $42,000 | $0 | $178,400 | $178,400 |
| 2019 | $136,400 | $42,000 | $0 | $178,400 | $178,400 |
| 2018 | $170,500 | $42,000 | $0 | $212,500 | $212,500 |
| 2017 | $103,840 | $26,900 | $0 | $130,740 | $130,740 |
| 2016 | $103,840 | $26,900 | $0 | $130,740 | $130,740 |
| 2015 | $103,840 | $26,900 | $0 | $130,740 | $130,740 |
| 2014 | $101,800 | $26,900 | $0 | $128,700 | $128,700 |
| 2013 | $101,800 | $26,900 | $0 | $128,700 | $128,700 |
| 2012 | $101,800 | $26,900 | $0 | $0 | $0 |
| 2011 | $90,100 | $26,900 | $0 | $0 | $0 |
| 2010 | $90,100 | $26,900 | $0 | $0 | $0 |
| 2009 | $103,100 | $26,900 | $0 | $0 | $0 |
| 2008 | $109,800 | $20,200 | $0 | $0 | $0 |
| 2007 | $109,800 | $20,200 | $0 | $0 | $0 |
Deed and Sales History
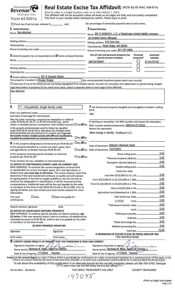
| 1 | 01/22/2024 | WARRANTY D | WARRANTY DEED | DAVIS ANDREW N | 601 E SUMACH LLC | | | | 147045 | 2024-00336 |
| 2 | 11/01/2023 | SWD | STATUTORY WARRANTY DEED | KOENIGSBERG WILLIAM M | DAVIS ANDREW N | | | $360,000.00 | 146722 | 2023-06400 |
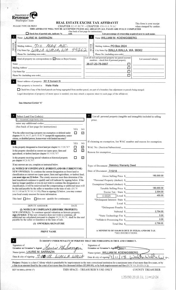
| 3 | 07/11/2018 | SWD | STATUTORY WARRANTY DEED | SARRAZIN LAURIE M | KOENIGSBERG WILLIAM M | | | $180,000.00 | 135098 | 2018-05589 |
| 4 | 10/26/2005 | QCD | QUIT CLAIM DEED | SARRAZIN, AUGUSTE & LAURIE | SARRAZIN, LAURIE M | | | | 108844 | 2005-13361 |
| 5 | 04/24/2000 | WARRANTY D | WARRANTY DEED | | | | | $60,000.00 | 94944 | 2970-003899 |
Payout Agreement
| No payout information available.. |