Property
Account |
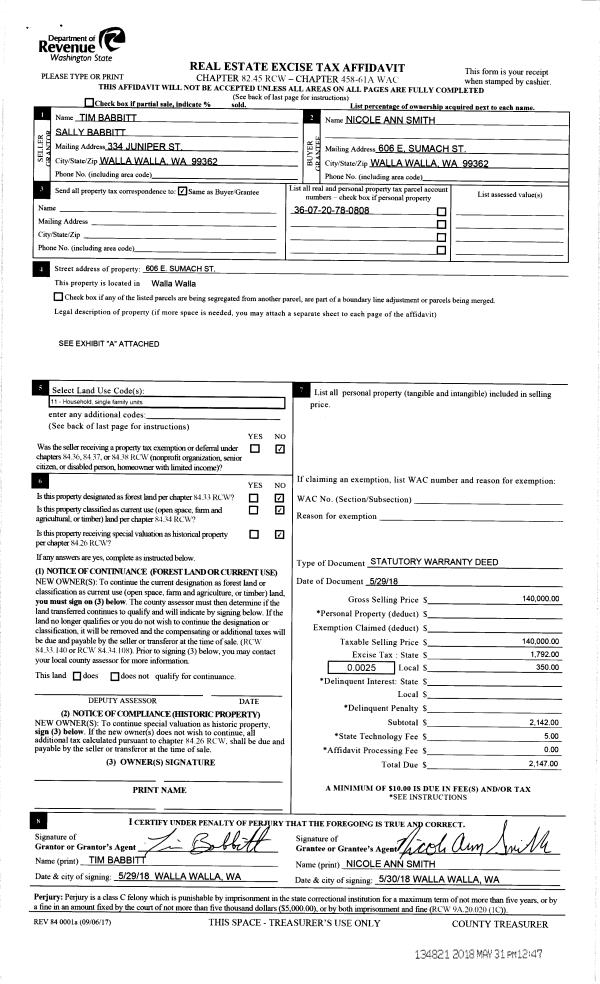
| Property ID: | 7369 | Abbreviated Legal Description: | WALNUT GROVE ELY 40' LOT 8 BLK 8 |
| Parcel Number: | 360720780808 | Agent Code: | |
| Type: | Real | | |
| Tax Area: | 1 - OL-140-F | Land Use Code | 11 |
| Open Space: | N | DFL | N |
| Historic Property: | N | Remodel Property: | N |
| Multi-Family Redevelopment: | N | | |
| Township: | 7 | Section: | 20 |
| Range: | 36 |
Location |
| Address: | 606 E SUMACH ST WA 99362 | Mapsco: | |
| Neighborhood: | A-Inferior SFR | Map ID: | |
| Neighborhood CD: | 513111 |
Owner |
| Name: | RODRIGUEZ LAURA & ANN BULLARD | Owner ID: | 70307 |
| Mailing Address: | 606 E SUMACH ST WALLA WALLA, WA 99362 | % Ownership: | 100.0000000000% |
| | | Exemptions: | |
Taxes and Assessment Details
Values
| (+) Improvement Homesite Value: | + | $0 | |
| (+) Improvement Non-Homesite Value: | + | $234,520 | |
| (+) Land Homesite Value: | + | $0 | |
| (+) Land Non-Homesite Value: | + | $31,000 | |
| (+) Curr Use (HS): | + | $0 | $0 |
| (+) Curr Use (NHS): | + | $0 | $0 |
| | | -------------------------- | |
| (=) Market Value: | = | $265,520 | |
| (–) Productivity Loss: | – | $0 | |
| | | -------------------------- | |
| (=) Subtotal: | = | $265,520 | |
| (+) Senior Appraised Value: | + | $0 | |
| (+) Non-Senior Appraised Value: | + | $265,520 | |
| | | -------------------------- | |
| (=) Total Appraised Value: | = | $265,520 | |
| (–) Senior Exemption Loss: | – | $0 | |
| (–) Exemption Loss: | – | $0 | |
| | | -------------------------- | |
| (=) Taxable Value: | = | $265,520 | |
Taxing Jurisdiction
| Owner: | RODRIGUEZ LAURA & ANN BULLARD | | |
| % Ownership: | 100.0000000000% | | |
| Total Value: | $265,520 | | |
| Tax Area: | 1 - OL-140-F |
| CERFD | CURRENT EXPENSE REFUND 010 | 0.0000000000 | $265,520 | $265,520 | $0.00 | | |
| CURREXP | CURRENT EXPENSE 010 | 1.0175366760 | $265,520 | $265,520 | $270.18 | | |
| HUMNSERV | HUMAN SERVICES 119 | 0.0250000000 | $265,520 | $265,520 | $6.64 | | |
| SLDREL | SOLDIERS RELIEF 121 | 0.0155990005 | $265,520 | $265,520 | $4.14 | | |
| EMERGSER | EMS 147 | 0.3792580840 | $265,520 | $265,520 | $100.70 | | |
| EMSRFD | EMS REFUND 147 | 0.0000000000 | $265,520 | $265,520 | $0.00 | | |
| PORTRFD | PORT REFUND 640 | 0.0000000000 | $265,520 | $265,520 | $0.00 | | |
| PORTWWGEN | PORT OF WW 640 | 0.2460186015 | $265,520 | $265,520 | $65.32 | | |
| SD140BOND | SD #140 BOND 764 | 0.8342371393 | $265,520 | $265,520 | $221.51 | | |
| SD140GEN | SD #140 GENERAL 760 | 2.0646500647 | $265,520 | $265,520 | $548.21 | | |
| ST2 | STATE SCHOOL PART 2 600 | 0.8131451643 | $265,520 | $265,520 | $215.91 | | |
| STATESCHL | STATE SCHOOL 600 | 1.5158548041 | $265,520 | $265,520 | $402.49 | | |
| STREFUND | STATE REFUND LEVY 603 | 0.0000000000 | $265,520 | $265,520 | $0.00 | | |
| CWWBOND | C OF WW BOND 643 | 0.2760494372 | $265,520 | $265,520 | $73.30 | | |
| CWWGEN | CITY OF WW 631 | 1.6100204973 | $265,520 | $265,520 | $427.49 | | |
| CWWRFD | CITY OF WALLA WALLA REFUND 631 | 0.0000000000 | $265,520 | $265,520 | $0.00 | | |
| | Total Tax Rate: | 8.7973694689 | | | | | |
| | | | | Taxes w/Current Exemptions: | $2,335.89 | | |
| | | | | Taxes w/o Exemptions: | $2,335.89 | | |
Improvement / Building
| Improvement #1: | RESIDENTIAL | State Code: | 11 | 867.0 sqft | Value: | $234,520 |
| Exterior Wall: | VINYL | Heating/Cooling: | WARM & COOLED AIR | | Number of Bathrooms: | 1 | Number of Bedrooms: | 2 | | Plumbing: | 6 | Roof Covering: | COMP SHINGLE |
|
| | Type | Description | Class CD | Sub Class CD | Year Built | Area |
| | MA | Main Area | 1 | 30 | 1900 | 867.0 |
| | RPC | OPEN PORCH W/ROOF , CEILED | 1 | 30 | 0 | 126.0 |
| | SI1 | SITE IMPROVEMENT | 1 | 30 | 0 | 1.0 |
| | BASE | BASEMENT | 1 | 30 | 1900 | 100.0 |
| | DTG | Detached Garage | 1 | 20 | 1900 | 160.0 |
| | SWP | Solid Wall Porch | 1 | 30 | 1900 | 108.0 |
Sketch
Property Image
Land
| 1 | RES 1 | Converted: Residential | 0.1139 | 4960.00 | 0.00 | 0.00 | 1.00 | $31,000 | $0 |
Roll Value History
| 2026 | N/A | N/A | N/A | N/A | N/A |
| 2025 | $231,750 | $49,600 | $0 | $281,350 | $281,350 |
| 2024 | $220,710 | $49,600 | $0 | $270,310 | $270,310 |
| 2023 | $234,520 | $31,000 | $0 | $265,520 | $265,520 |
| 2022 | $213,200 | $31,000 | $0 | $244,200 | $244,200 |
| 2021 | $133,250 | $31,000 | $0 | $164,250 | $164,250 |
| 2020 | $106,600 | $31,000 | $0 | $137,600 | $137,600 |
| 2019 | $106,600 | $31,000 | $0 | $137,600 | $137,600 |
| 2018 | $82,000 | $31,000 | $0 | $113,000 | $113,000 |
| 2017 | $84,350 | $19,800 | $0 | $104,150 | $104,150 |
| 2016 | $84,350 | $19,800 | $0 | $104,150 | $104,150 |
| 2015 | $84,350 | $19,800 | $0 | $104,150 | $104,150 |
| 2014 | $82,700 | $19,800 | $0 | $102,500 | $102,500 |
| 2013 | $82,700 | $19,800 | $0 | $102,500 | $102,500 |
| 2012 | $82,700 | $19,800 | $0 | $0 | $0 |
| 2011 | $73,400 | $19,800 | $0 | $0 | $0 |
| 2010 | $73,400 | $19,800 | $0 | $0 | $0 |
| 2009 | $83,800 | $19,800 | $0 | $0 | $0 |
| 2008 | $88,700 | $14,900 | $0 | $0 | $0 |
| 2007 | $88,700 | $14,900 | $0 | $0 | $0 |
Deed and Sales History
| 1 | 09/24/2021 | SWD | STATUTORY WARRANTY DEED | SMITH NICOLE ANN | RODRIGUEZ LAURA & ANN BULLARD | | | $270,000.00 | 142549 | 2021-11703 |
| 2 | 05/31/2018 | SWD | STATUTORY WARRANTY DEED | BABBITT TIM & SALLY | SMITH NICOLE ANN | | | $140,000.00 | 134821 | 2018-04305 |
| 3 | 04/26/2006 | WARRANTY D | WARRANTY DEED | OCAMPO, MICHAEL & CINDY | BABBITT, TIM & SALLY | | | $105,000.00 | 110099 | 2006-04662 |
| 4 | 09/04/1991 | PACD | PURCHASER'S ASSG CONTRACT&DEED | | | | | $26,167.00 | 0 | 1919-106065 |
Payout Agreement
| No payout information available.. |