Property
Account |
| Property ID: | 7366 | Abbreviated Legal Description: | WALNUT GROVE LOT 3 BLK 8 |
| Parcel Number: | 360720780803 | Agent Code: | |
| Type: | Real | | |
| Tax Area: | 1 - OL-140-F | Land Use Code | 11 |
| Open Space: | N | DFL | N |
| Historic Property: | N | Remodel Property: | N |
| Multi-Family Redevelopment: | N | | |
| Township: | 7 | Section: | 20 |
| Range: | 36 |
Location |
| Address: | 622 E SUMACH ST WA 99362 | Mapsco: | |
| Neighborhood: | A-Inferior SFR | Map ID: | |
| Neighborhood CD: | 513111 |
Owner |
| Name: | KOENIGSBERG WILLIAM | Owner ID: | 60218 |
| Mailing Address: | PO BOX 399 ASHLAND, OR 97520 | % Ownership: | 100.0000000000% |
| | | Exemptions: | |
Taxes and Assessment Details
Property Tax Information as of
04/18/2026
Click on "Statement Details" to expand or collapse a tax statement.
* Please enter a valid date ** Please enter a valid date *
Statement Details |
| | TOTAL: | $0.00 | $0.00 | $0.00 | $0.00 | $0.00 | $0.00 |
|
| | $0.00 | $0.00 | $0.00 | $0.00 | $0.00 | $0.00 |
Values
| (+) Improvement Homesite Value: | + | $0 | |
| (+) Improvement Non-Homesite Value: | + | $184,480 | |
| (+) Land Homesite Value: | + | $0 | |
| (+) Land Non-Homesite Value: | + | $38,750 | |
| (+) Curr Use (HS): | + | $0 | $0 |
| (+) Curr Use (NHS): | + | $0 | $0 |
| | | -------------------------- | |
| (=) Market Value: | = | $223,230 | |
| (–) Productivity Loss: | – | $0 | |
| | | -------------------------- | |
| (=) Subtotal: | = | $223,230 | |
| (+) Senior Appraised Value: | + | $0 | |
| (+) Non-Senior Appraised Value: | + | $223,230 | |
| | | -------------------------- | |
| (=) Total Appraised Value: | = | $223,230 | |
| (–) Senior Exemption Loss: | – | $0 | |
| (–) Exemption Loss: | – | $0 | |
| | | -------------------------- | |
| (=) Taxable Value: | = | $223,230 | |
Taxing Jurisdiction
| Owner: | KOENIGSBERG WILLIAM | | |
| % Ownership: | 100.0000000000% | | |
| Total Value: | $223,230 | | |
| Tax Area: | 1 - OL-140-F |
| CERFD | CURRENT EXPENSE REFUND 010 | 0.0000000000 | $223,230 | $223,230 | $0.00 | | |
| CURREXP | CURRENT EXPENSE 010 | 1.0175366760 | $223,230 | $223,230 | $227.14 | | |
| HUMNSERV | HUMAN SERVICES 119 | 0.0250000000 | $223,230 | $223,230 | $5.58 | | |
| SLDREL | SOLDIERS RELIEF 121 | 0.0155990005 | $223,230 | $223,230 | $3.48 | | |
| EMERGSER | EMS 147 | 0.3792580840 | $223,230 | $223,230 | $84.66 | | |
| EMSRFD | EMS REFUND 147 | 0.0000000000 | $223,230 | $223,230 | $0.00 | | |
| PORTRFD | PORT REFUND 640 | 0.0000000000 | $223,230 | $223,230 | $0.00 | | |
| PORTWWGEN | PORT OF WW 640 | 0.2460186015 | $223,230 | $223,230 | $54.92 | | |
| SD140BOND | SD #140 BOND 764 | 0.8342371393 | $223,230 | $223,230 | $186.23 | | |
| SD140GEN | SD #140 GENERAL 760 | 2.0646500647 | $223,230 | $223,230 | $460.89 | | |
| ST2 | STATE SCHOOL PART 2 600 | 0.8131451643 | $223,230 | $223,230 | $181.52 | | |
| STATESCHL | STATE SCHOOL 600 | 1.5158548041 | $223,230 | $223,230 | $338.38 | | |
| STREFUND | STATE REFUND LEVY 603 | 0.0000000000 | $223,230 | $223,230 | $0.00 | | |
| CWWBOND | C OF WW BOND 643 | 0.2760494372 | $223,230 | $223,230 | $61.62 | | |
| CWWGEN | CITY OF WW 631 | 1.6100204973 | $223,230 | $223,230 | $359.40 | | |
| CWWRFD | CITY OF WALLA WALLA REFUND 631 | 0.0000000000 | $223,230 | $223,230 | $0.00 | | |
| | Total Tax Rate: | 8.7973694689 | | | | | |
| | | | | Taxes w/Current Exemptions: | $1,963.82 | | |
| | | | | Taxes w/o Exemptions: | $1,963.82 | | |
Improvement / Building
| Improvement #1: | RESIDENTIAL | State Code: | 11 | 953.0 sqft | Value: | $184,480 |
| Exterior Wall: | VINYL | Heating/Cooling: | WARM & COOLED AIR | | Number of Bathrooms: | 1 | Number of Bedrooms: | 2 | | Plumbing: | 6 | Roof Covering: | COMP SHINGLE |
|
| | Type | Description | Class CD | Sub Class CD | Year Built | Area |
| | MA | Main Area | 1 | 30 | 1900 | 953.0 |
| | SWP | Solid Wall Porch | 1 | 30 | 0 | 49.0 |
| | SI1 | SITE IMPROVEMENT | 1 | 30 | 0 | 1.0 |
| | RPC | OPEN PORCH W/ROOF , CEILED | 1 | 30 | 0 | 65.0 |
| | CPC | COVERED CARPORT/PATIO | 1 | 30 | 0 | 306.0 |
Sketch
Property Image
Land
| 1 | RES 1 | Converted: Residential | 0.1423 | 6200.00 | 0.00 | 0.00 | 1.00 | $38,750 | $0 |
Roll Value History
| 2026 | N/A | N/A | N/A | N/A | N/A |
| 2025 | $201,600 | $62,000 | $0 | $263,600 | $263,600 |
| 2024 | $192,000 | $62,000 | $0 | $254,000 | $254,000 |
| 2023 | $184,480 | $38,750 | $0 | $223,230 | $223,230 |
| 2022 | $167,710 | $38,750 | $0 | $206,460 | $206,460 |
| 2021 | $124,230 | $38,750 | $0 | $162,980 | $162,980 |
| 2020 | $99,390 | $38,750 | $0 | $138,140 | $138,140 |
| 2019 | $99,390 | $38,750 | $0 | $138,140 | $138,140 |
| 2018 | $90,350 | $38,750 | $0 | $129,100 | $129,100 |
| 2017 | $77,930 | $24,800 | $0 | $102,730 | $102,730 |
| 2016 | $77,930 | $24,800 | $0 | $102,730 | $102,730 |
| 2015 | $77,930 | $24,800 | $0 | $102,730 | $102,730 |
| 2014 | $76,400 | $24,800 | $0 | $101,200 | $101,200 |
| 2013 | $76,400 | $24,800 | $0 | $101,200 | $101,200 |
| 2012 | $76,400 | $24,800 | $0 | $0 | $0 |
| 2011 | $76,400 | $24,800 | $0 | $0 | $0 |
| 2010 | $76,400 | $24,800 | $0 | $0 | $0 |
| 2009 | $87,600 | $24,800 | $0 | $0 | $0 |
| 2008 | $75,100 | $18,600 | $0 | $0 | $0 |
| 2007 | $75,100 | $18,600 | $0 | $0 | $0 |
Deed and Sales History
| 1 | 12/19/2016 | SWD | STATUTORY WARRANTY DEED | LOPEZ CESAR | KOENIGSBERG WILLIAM | | | $135,000.00 | 131619 | 2016-10432 |
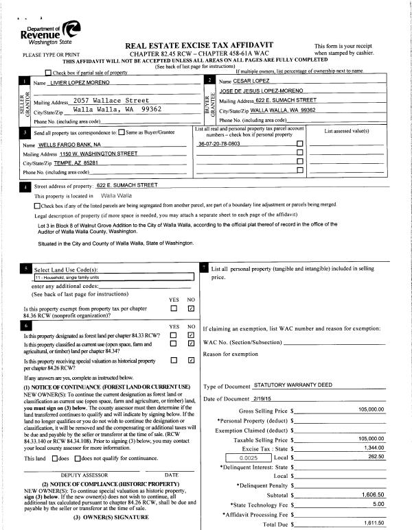
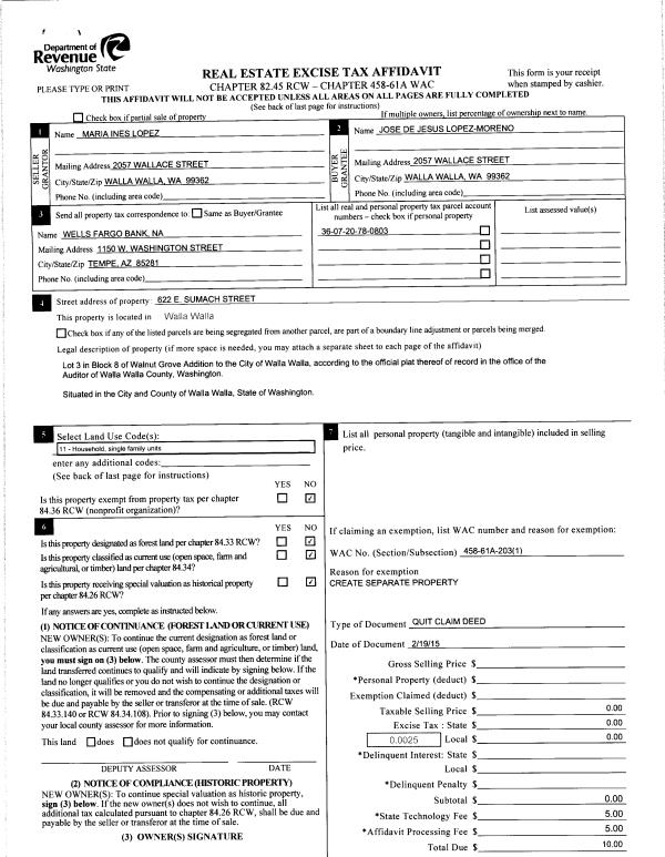
| 2 | 02/20/2015 | QCD | QUIT CLAIM DEED | LOPEZ MARIA INES | LOPEZ-MORENO JOSE DE JESUS | | | | 127456 | 2015-01528 |
| 3 | 02/20/2015 | SWD | STATUTORY WARRANTY DEED | MORENO LIVIER LOPEZ | LOPEZ CESAR | | | $105,000.00 | 127455 | 2015-01527 |
| 4 | 04/20/2007 | WARRANTY D | WARRANTY DEED | LOPEZ, JOSE & MARIA I | MORENO, LIVIER LOPEZ | | | $115,000.00 | 112666 | 2007-04451 |
| 5 | 12/15/2000 | WARRANTY D | WARRANTY DEED | | | | | $49,000.00 | 96319 | 3060-011860 |
Payout Agreement
| No payout information available.. |