Property
Account |
| Property ID: | 7358 | Abbreviated Legal Description: | GARRISON CRK HGTS #2 PHASE 1 LOT 21 BLK 2 |
| Parcel Number: | 350736710221 | Agent Code: | |
| Type: | Real | | |
| Tax Area: | 77 - CP-250-F | Land Use Code | 11 |
| Open Space: | N | DFL | N |
| Historic Property: | N | Remodel Property: | N |
| Multi-Family Redevelopment: | N | | |
| Township: | 7 | Section: | 36 |
| Range: | 35 |
Location |
| Address: | 942 SE SENTRY DR WA 99324 | Mapsco: | |
| Neighborhood: | G SFR | Map ID: | |
| Neighborhood CD: | 114011 |
Owner |
| Name: | ELLIS DANIEL J & LYNELLE R | Owner ID: | 3018 |
| Mailing Address: | 942 SE SENTRY DR COLLEGE PLACE, WA 99324 | % Ownership: | 100.0000000000% |
| | | Exemptions: | |
Taxes and Assessment Details
Values
| (+) Improvement Homesite Value: | + | $0 | |
| (+) Improvement Non-Homesite Value: | + | $472,630 | |
| (+) Land Homesite Value: | + | $0 | |
| (+) Land Non-Homesite Value: | + | $75,000 | |
| (+) Curr Use (HS): | + | $0 | $0 |
| (+) Curr Use (NHS): | + | $0 | $0 |
| | | -------------------------- | |
| (=) Market Value: | = | $547,630 | |
| (–) Productivity Loss: | – | $0 | |
| | | -------------------------- | |
| (=) Subtotal: | = | $547,630 | |
| (+) Senior Appraised Value: | + | $0 | |
| (+) Non-Senior Appraised Value: | + | $547,630 | |
| | | -------------------------- | |
| (=) Total Appraised Value: | = | $547,630 | |
| (–) Senior Exemption Loss: | – | $0 | |
| (–) Exemption Loss: | – | $0 | |
| | | -------------------------- | |
| (=) Taxable Value: | = | $547,630 | |
Taxing Jurisdiction
| Owner: | ELLIS DANIEL J & LYNELLE R | | |
| % Ownership: | 100.0000000000% | | |
| Total Value: | $547,630 | | |
| Tax Area: | 77 - CP-250-F |
| CERFD | CURRENT EXPENSE REFUND 010 | 0.0000000000 | $547,630 | $547,630 | $0.00 | | |
| CURREXP | CURRENT EXPENSE 010 | 1.0175366760 | $547,630 | $547,630 | $557.23 | | |
| HUMNSERV | HUMAN SERVICES 119 | 0.0250000000 | $547,630 | $547,630 | $13.69 | | |
| SLDREL | SOLDIERS RELIEF 121 | 0.0155990005 | $547,630 | $547,630 | $8.54 | | |
| COLLPLBOND | C OF CP BOND 644 | 0.4374241808 | $547,630 | $547,630 | $239.55 | | |
| COLLPLGEN | CITY OF CP 632 | 1.4453819216 | $547,630 | $547,630 | $791.53 | | |
| EMERGSER | EMS 147 | 0.3792580840 | $547,630 | $547,630 | $207.69 | | |
| EMSRFD | EMS REFUND 147 | 0.0000000000 | $547,630 | $547,630 | $0.00 | | |
| RURALLIB | RURAL LIBRARY 623 | 0.3710609029 | $547,630 | $547,630 | $203.20 | | |
| PORTRFD | PORT REFUND 640 | 0.0000000000 | $547,630 | $547,630 | $0.00 | | |
| PORTWWGEN | PORT OF WW 640 | 0.2460186015 | $547,630 | $547,630 | $134.73 | | |
| SD250BOND | SD #250 BOND 773 | 1.4560608159 | $547,630 | $547,630 | $797.38 | | |
| SD250GEN | SD #250 GENERAL 770 | 2.3880724087 | $547,630 | $547,630 | $1,307.78 | | |
| ST2 | STATE SCHOOL PART 2 600 | 0.8131451643 | $547,630 | $547,630 | $445.30 | | |
| STATESCHL | STATE SCHOOL 600 | 1.5158548041 | $547,630 | $547,630 | $830.13 | | |
| STREFUND | STATE REFUND LEVY 603 | 0.0000000000 | $547,630 | $547,630 | $0.00 | | |
| | Total Tax Rate: | 10.1104125603 | | | | | |
| | | | | Taxes w/Current Exemptions: | $5,536.75 | | |
| | | | | Taxes w/o Exemptions: | $5,536.75 | | |
Improvement / Building
| Improvement #1: | RESIDENTIAL | State Code: | 11 | 2241.0 sqft | Value: | $472,630 |
| Exterior Wall: | VINYL | Heating/Cooling: | WARM & COOLED AIR | | Number of Bathrooms: | 3 | Number of Bedrooms: | 3 | | Plumbing: | 12 | Roof Covering: | COMP SHINGLE |
|
| | Type | Description | Class CD | Sub Class CD | Year Built | Area |
| | MA | Main Area | 4 | 40 | 1994 | 2241.0 |
| | GFP | GAS FIREPLACE | 4 | 40 | 1994 | 1.0 |
| | PRC | PORCH W STEPS, ROOF,CEILED | 4 | 40 | 1994 | 36.0 |
| | SI1 | SITE IMPROVEMENT | 4 | 40 | 1994 | 2.5 |
| | ATG | Attached Garage | 4 | 40 | 1994 | 750.0 |
| | WDR | WOOD DECK W/ROOF | 4 | 40 | 1994 | 153.0 |
| | UPFL | Upper Floor (included in main area) | 4 | 40 | 1994 | 741.0 |
| | BON2 | BONUS RM ATT/REC OR APT FINISH | 4 | 40 | 1994 | 300.0 |
| | UTST | Utility Storage Shed | 4 | 40 | 1994 | 45.2 |
Sketch
Property Image
Land
| 1 | RES 1 | Converted: Residential | 0.2575 | 11218.00 | 0.00 | 0.00 | 1.00 | $75,000 | $0 |
Roll Value History
| 2026 | N/A | N/A | N/A | N/A | N/A |
| 2025 | $401,730 | $140,000 | $0 | $541,730 | $541,730 |
| 2024 | $472,630 | $75,000 | $0 | $547,630 | $547,630 |
| 2023 | $472,630 | $75,000 | $0 | $547,630 | $547,630 |
| 2022 | $450,120 | $75,000 | $0 | $525,120 | $525,120 |
| 2021 | $375,100 | $75,000 | $0 | $450,100 | $450,100 |
| 2020 | $267,930 | $75,000 | $0 | $342,930 | $342,930 |
| 2019 | $277,930 | $65,000 | $0 | $342,930 | $342,930 |
| 2018 | $231,610 | $65,000 | $0 | $296,610 | $296,610 |
| 2017 | $231,610 | $65,000 | $0 | $296,610 | $296,610 |
| 2016 | $231,610 | $65,000 | $0 | $296,610 | $296,610 |
| 2015 | $243,800 | $65,000 | $0 | $308,800 | $308,800 |
| 2014 | $243,800 | $65,000 | $0 | $308,800 | $308,800 |
| 2013 | $243,800 | $65,000 | $0 | $308,800 | $308,800 |
| 2012 | $243,800 | $65,000 | $0 | $0 | $0 |
| 2011 | $243,800 | $65,000 | $0 | $0 | $0 |
| 2010 | $243,800 | $65,000 | $0 | $0 | $0 |
| 2009 | $260,000 | $65,000 | $0 | $0 | $0 |
| 2008 | $193,400 | $40,000 | $0 | $0 | $0 |
| 2007 | $193,400 | $40,000 | $0 | $0 | $0 |
Deed and Sales History
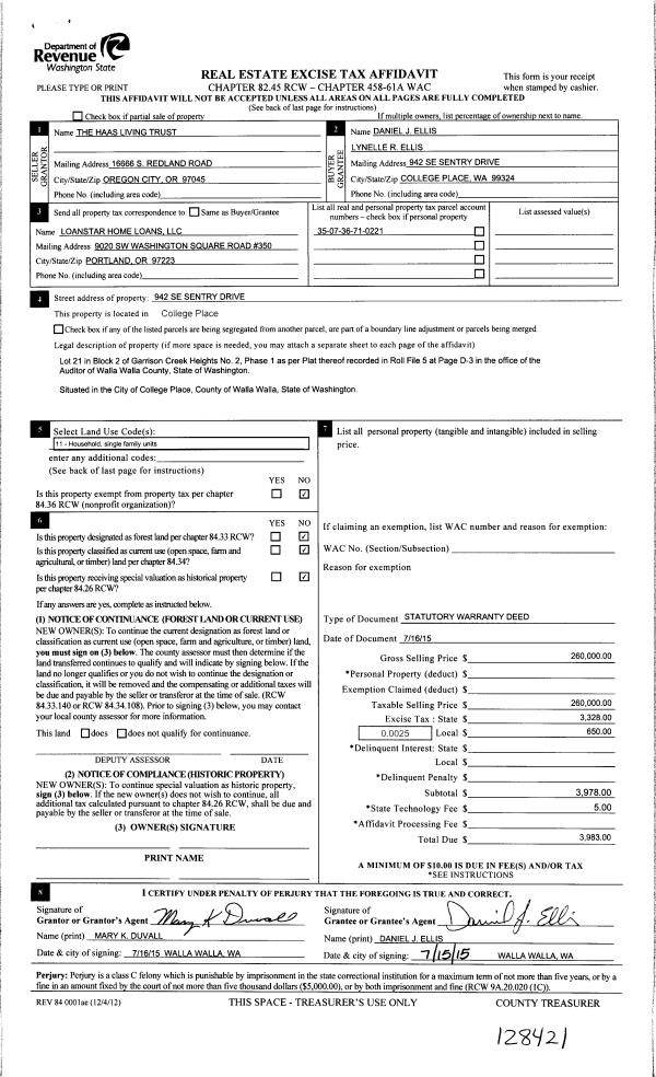
| 1 | 07/17/2015 | SWD | STATUTORY WARRANTY DEED | HAAS LIVING TRUST | ELLIS DANIEL J & LYNELLE R | | | $260,000.00 | 128421 | 2015-06119 |
| 2 | 07/05/2011 | WARRANTY D | WARRANTY DEED | HAAS, ELMER C & MARY E | HAAS LIVING TRUST | | | | 120352 | 2011-05128 |
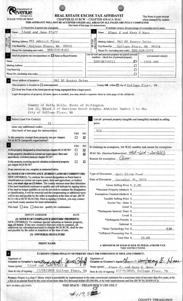
| 3 | 12/29/2010 | QCD | QUIT CLAIM DEED | PFAFF, LLOYD & JUNE | HAAS, ELMER C & MARY E | | | | 119558 | 2010-10803 |
| 4 | 02/02/1995 | WARRANTY D | WARRANTY DEED | | | | | $167,000.00 | 83459 | 2279-501037 |
Payout Agreement
| No payout information available.. |