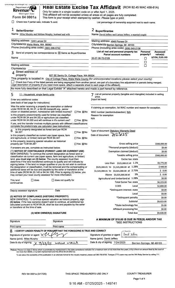
Property
Account |
| Property ID: | 7347 | Abbreviated Legal Description: | REPLAT OF GARRISON CRK HGTS LOT 9 BLK 1 |
| Parcel Number: | 350736700109 | Agent Code: | |
| Type: | Real | | |
| Tax Area: | 77 - CP-250-F | Land Use Code | 11 |
| Open Space: | N | DFL | N |
| Historic Property: | N | Remodel Property: | N |
| Multi-Family Redevelopment: | N | | |
| Township: | 7 | Section: | 36 |
| Range: | 35 |
Location |
| Address: | 827 SE SENTRY DR WA 99324 | Mapsco: | |
| Neighborhood: | G SFR | Map ID: | |
| Neighborhood CD: | 114011 |
Owner |
| Name: | MURPHY MILES & MELISSA | Owner ID: | 65865 |
| Mailing Address: | 827 SE SENTRY DR COLLEGE PLACE, WA 99324 | % Ownership: | 100.0000000000% |
| | | Exemptions: | |
Taxes and Assessment Details
Property Tax Information as of
02/21/2026
Click on "Statement Details" to expand or collapse a tax statement.
* Please enter a valid date ** Please enter a valid date *
Statement Details |
| | TOTAL: | $0.00 | $0.00 | $0.00 | $0.00 | $0.00 | $0.00 |
|
| | $0.00 | $0.00 | $0.00 | $0.00 | $0.00 | $0.00 |
Values
| (+) Improvement Homesite Value: | + | $0 | |
| (+) Improvement Non-Homesite Value: | + | $481,520 | |
| (+) Land Homesite Value: | + | $0 | |
| (+) Land Non-Homesite Value: | + | $75,000 | |
| (+) Curr Use (HS): | + | $0 | $0 |
| (+) Curr Use (NHS): | + | $0 | $0 |
| | | -------------------------- | |
| (=) Market Value: | = | $556,520 | |
| (–) Productivity Loss: | – | $0 | |
| | | -------------------------- | |
| (=) Subtotal: | = | $556,520 | |
| (+) Senior Appraised Value: | + | $0 | |
| (+) Non-Senior Appraised Value: | + | $556,520 | |
| | | -------------------------- | |
| (=) Total Appraised Value: | = | $556,520 | |
| (–) Senior Exemption Loss: | – | $0 | |
| (–) Exemption Loss: | – | $0 | |
| | | -------------------------- | |
| (=) Taxable Value: | = | $556,520 | |
Taxing Jurisdiction
| Owner: | MURPHY MILES & MELISSA | | |
| % Ownership: | 100.0000000000% | | |
| Total Value: | $556,520 | | |
| Tax Area: | 77 - CP-250-F |
| CERFD | CURRENT EXPENSE REFUND 010 | 0.0000000000 | $556,520 | $556,520 | $0.00 | | |
| CURREXP | CURRENT EXPENSE 010 | 1.0175366760 | $556,520 | $556,520 | $566.28 | | |
| HUMNSERV | HUMAN SERVICES 119 | 0.0250000000 | $556,520 | $556,520 | $13.91 | | |
| SLDREL | SOLDIERS RELIEF 121 | 0.0155990005 | $556,520 | $556,520 | $8.68 | | |
| COLLPLBOND | C OF CP BOND 644 | 0.4374241808 | $556,520 | $556,520 | $243.44 | | |
| COLLPLGEN | CITY OF CP 632 | 1.4453819216 | $556,520 | $556,520 | $804.38 | | |
| EMERGSER | EMS 147 | 0.3792580840 | $556,520 | $556,520 | $211.06 | | |
| EMSRFD | EMS REFUND 147 | 0.0000000000 | $556,520 | $556,520 | $0.00 | | |
| RURALLIB | RURAL LIBRARY 623 | 0.3710609029 | $556,520 | $556,520 | $206.50 | | |
| PORTRFD | PORT REFUND 640 | 0.0000000000 | $556,520 | $556,520 | $0.00 | | |
| PORTWWGEN | PORT OF WW 640 | 0.2460186015 | $556,520 | $556,520 | $136.91 | | |
| SD250BOND | SD #250 BOND 773 | 1.4560608159 | $556,520 | $556,520 | $810.33 | | |
| SD250GEN | SD #250 GENERAL 770 | 2.3880724087 | $556,520 | $556,520 | $1,329.01 | | |
| ST2 | STATE SCHOOL PART 2 600 | 0.8131451643 | $556,520 | $556,520 | $452.53 | | |
| STATESCHL | STATE SCHOOL 600 | 1.5158548041 | $556,520 | $556,520 | $843.60 | | |
| STREFUND | STATE REFUND LEVY 603 | 0.0000000000 | $556,520 | $556,520 | $0.00 | | |
| | Total Tax Rate: | 10.1104125603 | | | | | |
| | | | | Taxes w/Current Exemptions: | $5,626.63 | | |
| | | | | Taxes w/o Exemptions: | $5,626.63 | | |
Improvement / Building
| Improvement #1: | RESIDENTIAL | State Code: | 11 | 2359.0 sqft | Value: | $481,520 |
| Exterior Wall: | PLYWOOD | Heating/Cooling: | WARM & COOLED AIR | | Number of Bathrooms: | 3 | Number of Bedrooms: | 4 | | Plumbing: | 13 | Roof Covering: | COMP SHINGLE |
|
| | Type | Description | Class CD | Sub Class CD | Year Built | Area |
| | MA | Main Area | 2 | 40 | 1992 | 2359.0 |
| | SI1 | SITE IMPROVEMENT | 2 | 40 | 1992 | 2.5 |
| | UPFL | Upper Floor (included in main area) | 2 | 40 | 1992 | 1288.0 |
| | ATG | Attached Garage | 2 | 40 | 1992 | 748.0 |
| | OPS | OPEN PORCH W/STEPS | 2 | 40 | 1992 | 14.0 |
| | S1F | Single One Story Fireplace | 2 | 40 | 1992 | 2.0 |
| | RCD | WOOD DECK W/ROOF, CEILED | 2 | 40 | 1992 | 528.0 |
| | WOD | Wood Deck | 2 | 40 | 1992 | 591.0 |
| | WOD | Wood Deck | 2 | 40 | 1992 | 352.0 |
Sketch
Property Image
Land
| 1 | RES 1 | Converted: Residential | 0.3160 | 13764.00 | 0.00 | 0.00 | 1.00 | $75,000 | $0 |
Roll Value History
| 2026 | N/A | N/A | N/A | N/A | N/A |
| 2025 | $409,300 | $140,000 | $0 | $549,300 | $549,300 |
| 2024 | $481,520 | $75,000 | $0 | $556,520 | $556,520 |
| 2023 | $481,520 | $75,000 | $0 | $556,520 | $556,520 |
| 2022 | $458,590 | $75,000 | $0 | $533,590 | $533,590 |
| 2021 | $382,160 | $75,000 | $0 | $457,160 | $457,160 |
| 2020 | $263,560 | $75,000 | $0 | $338,560 | $338,560 |
| 2019 | $273,560 | $65,000 | $0 | $338,560 | $338,560 |
| 2018 | $227,970 | $65,000 | $0 | $292,970 | $292,970 |
| 2017 | $227,970 | $65,000 | $0 | $292,970 | $292,970 |
| 2016 | $227,970 | $65,000 | $0 | $292,970 | $292,970 |
| 2015 | $227,970 | $65,000 | $0 | $292,970 | $292,970 |
| 2014 | $253,300 | $65,000 | $0 | $318,300 | $318,300 |
| 2013 | $253,300 | $65,000 | $0 | $318,300 | $318,300 |
| 2012 | $253,300 | $65,000 | $0 | $0 | $0 |
| 2011 | $253,300 | $65,000 | $0 | $0 | $0 |
| 2010 | $253,300 | $65,000 | $0 | $0 | $0 |
| 2009 | $270,100 | $65,000 | $0 | $0 | $0 |
| 2008 | $193,300 | $40,000 | $0 | $0 | $0 |
| 2007 | $193,300 | $40,000 | $0 | $0 | $0 |
Deed and Sales History
| 1 | 07/25/2025 | SWD | STATUTORY WARRANTY DEED | MURPHY MILES & MELISSA | JEFFERY DAVID & LARISSA | | | $560,000.00 | 149741 | 2025-04303 |
| 2 | 09/05/2019 | SWD | STATUTORY WARRANTY DEED | DUMONT JAMES G & DEBORAH L | MURPHY MILES & MELISSA | | | $435,000.00 | 137625 | 2019-06893 |
| 3 | 09/18/2001 | WARRANTY D | WARRANTY DEED | | | | | $225,000.00 | 98038 | 3190-110108 |
Payout Agreement
| No payout information available.. |