Property
Account |
| Property ID: | 7306 | Abbreviated Legal Description: | WALNUT GROVE LOT 9 BLK 1 |
| Parcel Number: | 360720780109 | Agent Code: | |
| Type: | Real | | |
| Tax Area: | 1 - OL-140-F | Land Use Code | 11 |
| Open Space: | N | DFL | N |
| Historic Property: | N | Remodel Property: | N |
| Multi-Family Redevelopment: | N | | |
| Township: | 7 | Section: | 20 |
| Range: | 36 |
Location |
| Address: | 713 N MAIN ST WA 99362 | Mapsco: | |
| Neighborhood: | A-SFR | Map ID: | |
| Neighborhood CD: | 513011 |
Owner |
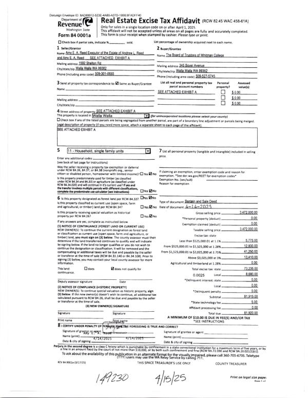
| Name: | BOARD OF TRUSTEES OF WHITMAN COLLEGE | Owner ID: | 76931 |
| Mailing Address: | 345 BOYER AVE WALLA WALLA, WA 99362 | % Ownership: | 100.0000000000% |
| | | Exemptions: | |
Taxes and Assessment Details
Values
| (+) Improvement Homesite Value: | + | N/A | |
| (+) Improvement Non-Homesite Value: | + | N/A | |
| (+) Land Homesite Value: | + | N/A | |
| (+) Land Non-Homesite Value: | + | N/A | Ag / Timber Use Value |
| (+) Curr Use (HS): | + | N/A | N/A |
| (+) Curr Use (NHS): | + | N/A | N/A |
| | | -------------------------- | |
| (=) Market Value: | = | N/A | |
| (–) Productivity Loss: | – | N/A | |
| | | -------------------------- | |
| (=) Subtotal: | = | N/A | |
| (+) Senior Appraised Value: | + | N/A | |
| (+) Non-Senior Appraised Value: | + | N/A | |
| | | -------------------------- | |
| (=) Total Appraised Value: | = | N/A | |
| (–) Senior Exemption Loss: | – | N/A | |
| (–) Exemption Loss: | – | N/A | |
| | | -------------------------- | |
| (=) Taxable Value: | = | N/A | |
Taxing Jurisdiction
| Owner: | BOARD OF TRUSTEES OF WHITMAN COLLEGE | | |
| % Ownership: | 100.0000000000% | | |
| Total Value: | N/A | | |
| Tax Area: | 1 - OL-140-F |
| CERFD | CURRENT EXPENSE REFUND 010 | N/A | N/A | N/A | N/A | | |
| CURREXP | CURRENT EXPENSE 010 | N/A | N/A | N/A | N/A | | |
| HUMNSERV | HUMAN SERVICES 119 | N/A | N/A | N/A | N/A | | |
| SLDREL | SOLDIERS RELIEF 121 | N/A | N/A | N/A | N/A | | |
| EMERGSER | EMS 147 | N/A | N/A | N/A | N/A | | |
| EMSRFD | EMS REFUND 147 | N/A | N/A | N/A | N/A | | |
| PORTRFD | PORT REFUND 640 | N/A | N/A | N/A | N/A | | |
| PORTWWGEN | PORT OF WW 640 | N/A | N/A | N/A | N/A | | |
| SD140BOND | SD #140 BOND 764 | N/A | N/A | N/A | N/A | | |
| SD140GEN | SD #140 GENERAL 760 | N/A | N/A | N/A | N/A | | |
| ST2 | STATE SCHOOL PART 2 600 | N/A | N/A | N/A | N/A | | |
| STATESCHL | STATE SCHOOL 600 | N/A | N/A | N/A | N/A | | |
| STREFUND | STATE REFUND LEVY 603 | N/A | N/A | N/A | N/A | | |
| CWWBOND | C OF WW BOND 643 | N/A | N/A | N/A | N/A | | |
| CWWGEN | CITY OF WW 631 | N/A | N/A | N/A | N/A | | |
| CWWRFD | CITY OF WALLA WALLA REFUND 631 | N/A | N/A | N/A | N/A | | |
| | Total Tax Rate: | N/A | | | | | |
| | | | | Taxes w/Current Exemptions: | N/A | | |
| | | | | Taxes w/o Exemptions: | N/A | | |
Improvement / Building
| Improvement #1: | RESIDENTIAL | State Code: | 11 | 893.0 sqft | Value: | N/A |
| Exterior Wall: | SIDING | Heating/Cooling: | FORCED AIR | | Number of Bathrooms: | 1 | Number of Bedrooms: | 2 | | Plumbing: | 6 | Roof Covering: | COMP SHINGLE |
|
| | Type | Description | Class CD | Sub Class CD | Year Built | Area |
| | MA | Main Area | 5 | 35 | 1905 | 893.0 |
| | RCD | WOOD DECK W/ROOF, CEILED | 5 | 35 | 0 | 168.0 |
| | SI1 | SITE IMPROVEMENT | 5 | 35 | 0 | 2.5 |
| | SWP | Solid Wall Porch | 5 | 35 | 0 | 48.0 |
| | DTG | Detached Garage | 5 | 35 | 0 | 240.0 |
Sketch
Property Image
Land
| 1 | RES 1 | Converted: Residential | 0.1354 | 5900.00 | 0.00 | 0.00 | 1.00 | N/A | N/A |
Roll Value History
| 2026 | N/A | N/A | N/A | N/A | N/A |
| 2025 | $135,000 | $59,000 | $0 | $194,000 | $194,000 |
| 2024 | $197,960 | $59,000 | $0 | $256,960 | $256,960 |
| 2023 | $161,630 | $36,880 | $0 | $198,510 | $198,510 |
| 2022 | $161,630 | $36,880 | $0 | $198,510 | $198,510 |
| 2021 | $129,300 | $36,880 | $0 | $166,180 | $166,180 |
| 2020 | $99,460 | $36,880 | $0 | $136,340 | $136,340 |
| 2019 | $99,460 | $36,880 | $0 | $136,340 | $136,340 |
| 2018 | $90,420 | $36,880 | $0 | $127,300 | $127,300 |
| 2017 | $70,340 | $23,600 | $0 | $93,940 | $93,940 |
| 2016 | $63,950 | $23,600 | $0 | $87,550 | $87,550 |
| 2015 | $63,950 | $23,600 | $0 | $87,550 | $87,550 |
| 2014 | $60,900 | $23,600 | $0 | $84,500 | $84,500 |
| 2013 | $60,900 | $23,600 | $0 | $84,500 | $84,500 |
| 2012 | $60,900 | $23,600 | $0 | $0 | $0 |
| 2011 | $60,900 | $23,600 | $0 | $0 | $0 |
| 2010 | $56,900 | $23,600 | $0 | $0 | $0 |
| 2009 | $65,800 | $23,600 | $0 | $0 | $0 |
| 2008 | $54,100 | $23,600 | $0 | $0 | $0 |
| 2007 | $54,100 | $23,600 | $0 | $0 | $0 |
Deed and Sales History
| 1 | 04/14/2025 | BARGAIN & | BARGAIN & SALE DEED | REED ANDREW L & AMY | BOARD OF TRUSTEES OF WHITMAN COLLEGE | | 11-PARCELS | $3,472,000.00 | 149230 | 2025-01982 |
|   | |
| 2 | 12/17/2003 | QCD | QUIT CLAIM DEED | REED, ANDREW L | REED, ANDREW L | | | | 103751 | 2003-19051 |
| 3 | 01/03/2001 | WARRANTY D | WARRANTY DEED | | | | | $55,000.00 | 96414 | 3060-100048 |
Payout Agreement
| No payout information available.. |