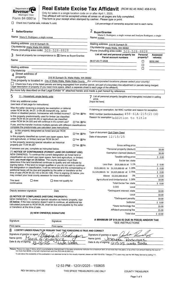
Property
Account |
| Property ID: | 7282 | Abbreviated Legal Description: | WALLA WALLA & TRACTS LOT 8 BLK F; AND TRACTS TAX 5 LOT 7 BLK F |
| Parcel Number: | 360720772508 | Agent Code: | |
| Type: | Real | | |
| Tax Area: | 1 - OL-140-F | Land Use Code | 11 |
| Open Space: | N | DFL | N |
| Historic Property: | N | Remodel Property: | N |
| Multi-Family Redevelopment: | N | | |
| Township: | 7 | Section: | 20 |
| Range: | 36 |
Location |
| Address: | 316 W SUMACH ST WA 99362 | Mapsco: | |
| Neighborhood: | F SFR | Map ID: | |
| Neighborhood CD: | 512011 |
Owner |
| Name: | RODRIGUEZ MARIA G | Owner ID: | 66105 |
| Mailing Address: | 421 N 7TH AVE WALLA WALLA, WA 99362 | % Ownership: | 100.0000000000% |
| | | Exemptions: | |
Taxes and Assessment Details
Property Tax Information as of
02/21/2026
Click on "Statement Details" to expand or collapse a tax statement.
* Please enter a valid date ** Please enter a valid date *
Statement Details |
| | TOTAL: | $0.00 | $0.00 | $0.00 | $0.00 | $0.00 | $0.00 |
|
| | $0.00 | $0.00 | $0.00 | $0.00 | $0.00 | $0.00 |
Values
| (+) Improvement Homesite Value: | + | $0 | |
| (+) Improvement Non-Homesite Value: | + | $113,570 | |
| (+) Land Homesite Value: | + | $0 | |
| (+) Land Non-Homesite Value: | + | $53,370 | |
| (+) Curr Use (HS): | + | $0 | $0 |
| (+) Curr Use (NHS): | + | $0 | $0 |
| | | -------------------------- | |
| (=) Market Value: | = | $166,940 | |
| (–) Productivity Loss: | – | $0 | |
| | | -------------------------- | |
| (=) Subtotal: | = | $166,940 | |
| (+) Senior Appraised Value: | + | $0 | |
| (+) Non-Senior Appraised Value: | + | $166,940 | |
| | | -------------------------- | |
| (=) Total Appraised Value: | = | $166,940 | |
| (–) Senior Exemption Loss: | – | $0 | |
| (–) Exemption Loss: | – | $0 | |
| | | -------------------------- | |
| (=) Taxable Value: | = | $166,940 | |
Taxing Jurisdiction
| Owner: | RODRIGUEZ MARIA G | | |
| % Ownership: | 100.0000000000% | | |
| Total Value: | $166,940 | | |
| Tax Area: | 1 - OL-140-F |
| CERFD | CURRENT EXPENSE REFUND 010 | 0.0000000000 | $166,940 | $166,940 | $0.00 | | |
| CURREXP | CURRENT EXPENSE 010 | 1.0175366760 | $166,940 | $166,940 | $169.87 | | |
| HUMNSERV | HUMAN SERVICES 119 | 0.0250000000 | $166,940 | $166,940 | $4.17 | | |
| SLDREL | SOLDIERS RELIEF 121 | 0.0155990005 | $166,940 | $166,940 | $2.60 | | |
| EMERGSER | EMS 147 | 0.3792580840 | $166,940 | $166,940 | $63.31 | | |
| EMSRFD | EMS REFUND 147 | 0.0000000000 | $166,940 | $166,940 | $0.00 | | |
| PORTRFD | PORT REFUND 640 | 0.0000000000 | $166,940 | $166,940 | $0.00 | | |
| PORTWWGEN | PORT OF WW 640 | 0.2460186015 | $166,940 | $166,940 | $41.07 | | |
| SD140BOND | SD #140 BOND 764 | 0.8342371393 | $166,940 | $166,940 | $139.27 | | |
| SD140GEN | SD #140 GENERAL 760 | 2.0646500647 | $166,940 | $166,940 | $344.67 | | |
| ST2 | STATE SCHOOL PART 2 600 | 0.8131451643 | $166,940 | $166,940 | $135.75 | | |
| STATESCHL | STATE SCHOOL 600 | 1.5158548041 | $166,940 | $166,940 | $253.06 | | |
| STREFUND | STATE REFUND LEVY 603 | 0.0000000000 | $166,940 | $166,940 | $0.00 | | |
| CWWBOND | C OF WW BOND 643 | 0.2760494372 | $166,940 | $166,940 | $46.08 | | |
| CWWGEN | CITY OF WW 631 | 1.6100204973 | $166,940 | $166,940 | $268.78 | | |
| CWWRFD | CITY OF WALLA WALLA REFUND 631 | 0.0000000000 | $166,940 | $166,940 | $0.00 | | |
| | Total Tax Rate: | 8.7973694689 | | | | | |
| | | | | Taxes w/Current Exemptions: | $1,468.63 | | |
| | | | | Taxes w/o Exemptions: | $1,468.63 | | |
Improvement / Building
| Improvement #1: | RESIDENTIAL | State Code: | 11 | 1220.0 sqft | Value: | $113,570 |
| Exterior Wall: | PLYWOOD | Foundation: | POST & PIER | | Heating/Cooling: | BASEBOARD ELECTRIC | Number of Bathrooms: | 1 | | Number of Bedrooms: | 3 | Plumbing: | 6 | | Roof Covering: | COMP SHINGLE |   |   |
|
| | Type | Description | Class CD | Sub Class CD | Year Built | Area |
| | MA | Main Area | 1 | 20 | 1875 | 1220.0 |
| | SI1 | SITE IMPROVEMENT | 1 | 20 | 0 | 1.0 |
| | WDR | WOOD DECK W/ROOF | 1 | 20 | 0 | 90.0 |
| | WDR | WOOD DECK W/ROOF | 1 | 20 | 0 | 96.0 |
| | BNV | BUILDING NO VALUE | 1 | 20 | 0 | 676.0 |
Sketch
Property Image
Land
| 1 | RES 1 | Converted: Residential | 0.3134 | 13650.00 | 0.00 | 0.00 | 1.00 | $53,370 | $0 |
Roll Value History
| 2026 | N/A | N/A | N/A | N/A | N/A |
| 2025 | $153,600 | $78,490 | $0 | $232,090 | $232,090 |
| 2024 | $153,600 | $78,490 | $0 | $232,090 | $232,090 |
| 2023 | $113,570 | $53,370 | $0 | $166,940 | $166,940 |
| 2022 | $113,570 | $53,370 | $0 | $166,940 | $166,940 |
| 2021 | $56,780 | $53,370 | $0 | $110,150 | $110,150 |
| 2020 | $56,780 | $53,370 | $0 | $110,150 | $110,150 |
| 2019 | $56,780 | $53,370 | $0 | $110,150 | $110,150 |
| 2018 | $47,320 | $53,370 | $0 | $100,690 | $100,690 |
| 2017 | $48,500 | $24,800 | $0 | $73,300 | $73,300 |
| 2016 | $48,500 | $24,800 | $0 | $73,300 | $73,300 |
| 2015 | $48,500 | $24,800 | $0 | $73,300 | $73,300 |
| 2014 | $48,500 | $24,800 | $0 | $73,300 | $73,300 |
| 2013 | $48,500 | $24,800 | $0 | $73,300 | $73,300 |
| 2012 | $48,500 | $24,800 | $0 | $0 | $0 |
| 2011 | $48,500 | $24,800 | $0 | $0 | $0 |
| 2010 | $48,500 | $24,800 | $0 | $0 | $0 |
| 2009 | $48,500 | $24,800 | $0 | $0 | $0 |
| 2008 | $48,500 | $24,800 | $0 | $0 | $0 |
| 2007 | $48,500 | $24,800 | $0 | $0 | $0 |
Deed and Sales History
| 1 | 12/31/2025 | QCD | QUIT CLAIM DEED | RODRIGUEZ MARIA G | RODRIGUEZ MARIA G & JOSELYNE RODRIGUEZ | | | | 150605 | 2025-08052 |
| 2 | 10/14/2019 | ADMD | ADMINISTRATOR'S DEED | RODRIGUEZ RUBEN H & MARIA G | RODRIGUEZ MARIA G | | | $0.00 | 137870 | 2019-08275 |
| 3 | 11/03/1992 | WARRANTY D | WARRANTY DEED | | | | | $24,950.00 | 77912 | 2019-209898 |
Payout Agreement
| No payout information available.. |