Property
Account |
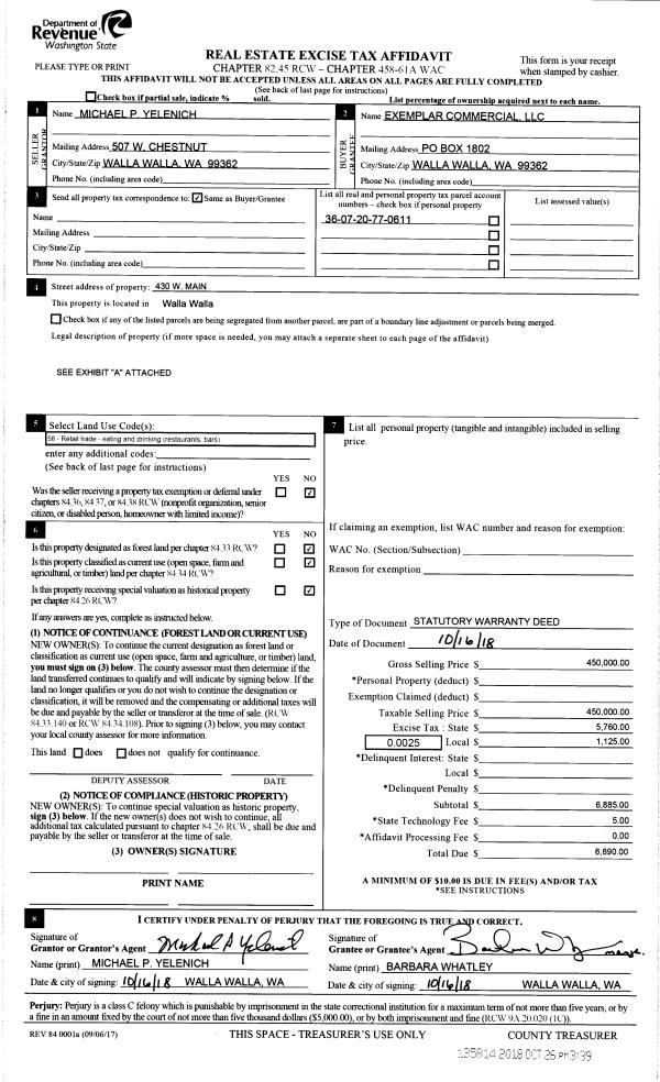
| Property ID: | 7246 | Abbreviated Legal Description: | WALLA WALLA TAX 4 LOT 6 BLK 6 |
| Parcel Number: | 360720770611 | Agent Code: | |
| Type: | Real | | |
| Tax Area: | 1 - OL-140-F | Land Use Code | 58 |
| Open Space: | N | DFL | N |
| Historic Property: | N | Remodel Property: | N |
| Multi-Family Redevelopment: | N | | |
| Township: | 7 | Section: | 20 |
| Range: | 36 |
Location |
| Address: | 430 W MAIN ST WA 99362 | Mapsco: | |
| Neighborhood: | WW Downtown Core area #3 | Map ID: | |
| Neighborhood CD: | 5343 |
Owner |
| Name: | EXEMPLAR COMMERCIAL LLC | Owner ID: | 48162 |
| Mailing Address: | PO BOX 1802 WALLA WALLA, WA 99362 | % Ownership: | 100.0000000000% |
| | | Exemptions: | |
Taxes and Assessment Details
Property Tax Information as of
02/21/2026
Click on "Statement Details" to expand or collapse a tax statement.
* Please enter a valid date ** Please enter a valid date *
Statement Details |
| | TOTAL: | $0.00 | $0.00 | $0.00 | $0.00 | $0.00 | $0.00 |
|
| | $0.00 | $0.00 | $0.00 | $0.00 | $0.00 | $0.00 |
Values
| (+) Improvement Homesite Value: | + | $0 | |
| (+) Improvement Non-Homesite Value: | + | $367,800 | |
| (+) Land Homesite Value: | + | $0 | |
| (+) Land Non-Homesite Value: | + | $75,600 | |
| (+) Curr Use (HS): | + | $0 | $0 |
| (+) Curr Use (NHS): | + | $0 | $0 |
| | | -------------------------- | |
| (=) Market Value: | = | $443,400 | |
| (–) Productivity Loss: | – | $0 | |
| | | -------------------------- | |
| (=) Subtotal: | = | $443,400 | |
| (+) Senior Appraised Value: | + | $0 | |
| (+) Non-Senior Appraised Value: | + | $443,400 | |
| | | -------------------------- | |
| (=) Total Appraised Value: | = | $443,400 | |
| (–) Senior Exemption Loss: | – | $0 | |
| (–) Exemption Loss: | – | $0 | |
| | | -------------------------- | |
| (=) Taxable Value: | = | $443,400 | |
Taxing Jurisdiction
| Owner: | EXEMPLAR COMMERCIAL LLC | | |
| % Ownership: | 100.0000000000% | | |
| Total Value: | $443,400 | | |
| Tax Area: | 1 - OL-140-F |
| CERFD | CURRENT EXPENSE REFUND 010 | 0.0000000000 | $443,400 | $443,400 | $0.00 | | |
| CURREXP | CURRENT EXPENSE 010 | 1.0175366760 | $443,400 | $443,400 | $451.18 | | |
| HUMNSERV | HUMAN SERVICES 119 | 0.0250000000 | $443,400 | $443,400 | $11.09 | | |
| SLDREL | SOLDIERS RELIEF 121 | 0.0155990005 | $443,400 | $443,400 | $6.92 | | |
| EMERGSER | EMS 147 | 0.3792580840 | $443,400 | $443,400 | $168.16 | | |
| EMSRFD | EMS REFUND 147 | 0.0000000000 | $443,400 | $443,400 | $0.00 | | |
| PORTRFD | PORT REFUND 640 | 0.0000000000 | $443,400 | $443,400 | $0.00 | | |
| PORTWWGEN | PORT OF WW 640 | 0.2460186015 | $443,400 | $443,400 | $109.08 | | |
| SD140BOND | SD #140 BOND 764 | 0.8342371393 | $443,400 | $443,400 | $369.90 | | |
| SD140GEN | SD #140 GENERAL 760 | 2.0646500647 | $443,400 | $443,400 | $915.47 | | |
| ST2 | STATE SCHOOL PART 2 600 | 0.8131451643 | $443,400 | $443,400 | $360.55 | | |
| STATESCHL | STATE SCHOOL 600 | 1.5158548041 | $443,400 | $443,400 | $672.13 | | |
| STREFUND | STATE REFUND LEVY 603 | 0.0000000000 | $443,400 | $443,400 | $0.00 | | |
| CWWBOND | C OF WW BOND 643 | 0.2760494372 | $443,400 | $443,400 | $122.40 | | |
| CWWGEN | CITY OF WW 631 | 1.6100204973 | $443,400 | $443,400 | $713.88 | | |
| CWWRFD | CITY OF WALLA WALLA REFUND 631 | 0.0000000000 | $443,400 | $443,400 | $0.00 | | |
| | Total Tax Rate: | 8.7973694689 | | | | | |
| | | | | Taxes w/Current Exemptions: | $3,900.76 | | |
| | | | | Taxes w/o Exemptions: | $3,900.76 | | |
Improvement / Building
| Improvement #1: | COMMERCIAL | State Code: | 58 | 2184.0 sqft | Value: | $367,800 |
| | Type | Description | Class CD | Sub Class CD | Year Built | Area |
| | MA | Main Area | D | | 1948 | 2184.0 |
| | SI1 | SITE IMPROVEMENT | D | * | 1948 | 5.0 |
| | OSP | Open | D | * | 1948 | 592.0 |
| | UTST | Utility Storage Shed | D | * | 1948 | 126.0 |
| | PRKSTLA | PARK STALL AVERAGE | D | * | 1948 | 7.0 |
| | CPC | COVERED CARPORT/PATIO | D | 30 | 1948 | 560.0 |
Sketch
Property Image
Land
| 1 | COM 1 | Converted: Commercial | 0.1928 | 8400.00 | 0.00 | 0.00 | 1.00 | $75,600 | $0 |
Roll Value History
| 2026 | N/A | N/A | N/A | N/A | N/A |
| 2025 | $365,900 | $92,400 | $0 | $458,300 | $458,300 |
| 2024 | $365,900 | $84,000 | $0 | $449,900 | $449,900 |
| 2023 | $367,800 | $75,600 | $0 | $443,400 | $443,400 |
| 2022 | $367,800 | $75,600 | $0 | $443,400 | $443,400 |
| 2021 | $315,500 | $75,600 | $0 | $391,100 | $391,100 |
| 2020 | $273,800 | $75,600 | $0 | $349,400 | $349,400 |
| 2019 | $273,800 | $75,600 | $0 | $349,400 | $349,400 |
| 2018 | $142,800 | $75,600 | $0 | $218,400 | $218,400 |
| 2017 | $138,900 | $75,600 | $0 | $214,500 | $214,500 |
| 2016 | $138,900 | $75,600 | $0 | $214,500 | $214,500 |
| 2015 | $138,900 | $75,600 | $0 | $214,500 | $214,500 |
| 2014 | $135,900 | $75,600 | $0 | $211,500 | $211,500 |
| 2013 | $135,900 | $75,600 | $0 | $211,500 | $211,500 |
| 2012 | $120,200 | $50,400 | $0 | $0 | $0 |
| 2011 | $120,200 | $50,400 | $0 | $0 | $0 |
| 2010 | $120,200 | $50,400 | $0 | $0 | $0 |
| 2009 | $120,200 | $50,400 | $0 | $0 | $0 |
| 2008 | $120,200 | $50,400 | $0 | $0 | $0 |
| 2007 | $120,200 | $50,400 | $0 | $0 | $0 |
Deed and Sales History
| 1 | 10/26/2018 | SWD | STATUTORY WARRANTY DEED | YELENICH MICHAEL P | EXEMPLAR COMMERCIAL LLC | | | $450,000.00 | 135814 | 2018-08874 |
| 2 | 02/11/2005 | WARRANTY D | WARRANTY DEED | YELENICH, MICHAEL P(& BARBARA) | YELENICH, MICHAEL P | | | | 0 | CC#04-3-00284-7 |
| 3 | 03/01/1990 | QCD | QUIT CLAIM DEED | | | | | $80,000.00 | 0 | 1919-106654 |
Payout Agreement
| No payout information available.. |