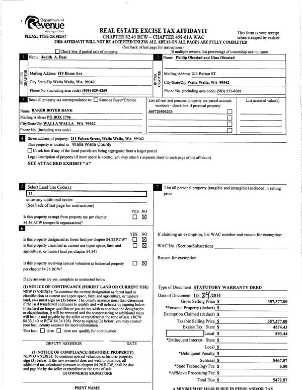
Property
Account |
| Property ID: | 7223 | Abbreviated Legal Description: | BROOKSIDE PARK LOT 3 BLK 2 |
| Parcel Number: | 360720500203 | Agent Code: | |
| Type: | Real | | |
| Tax Area: | 1 - OL-140-F | Land Use Code | 11 |
| Open Space: | N | DFL | N |
| Historic Property: | N | Remodel Property: | N |
| Multi-Family Redevelopment: | N | | |
| Township: | 7 | Section: | 20 |
| Range: | 36 |
Location |
| Address: | 211 FULTON ST WA 99362 | Mapsco: | |
| Neighborhood: | G Superior SFR | Map ID: | |
| Neighborhood CD: | 514211 |
Owner |
| Name: | OHNSTAD PHILLLIP & GINA | Owner ID: | 55700 |
| Mailing Address: | 211 FULTON ST WALLA WALLA, WA 99362 | % Ownership: | 100.0000000000% |
| | | Exemptions: | |
Taxes and Assessment Details
Values
| (+) Improvement Homesite Value: | + | $0 | |
| (+) Improvement Non-Homesite Value: | + | $527,550 | |
| (+) Land Homesite Value: | + | $0 | |
| (+) Land Non-Homesite Value: | + | $43,500 | |
| (+) Curr Use (HS): | + | $0 | $0 |
| (+) Curr Use (NHS): | + | $0 | $0 |
| | | -------------------------- | |
| (=) Market Value: | = | $571,050 | |
| (–) Productivity Loss: | – | $0 | |
| | | -------------------------- | |
| (=) Subtotal: | = | $571,050 | |
| (+) Senior Appraised Value: | + | $0 | |
| (+) Non-Senior Appraised Value: | + | $571,050 | |
| | | -------------------------- | |
| (=) Total Appraised Value: | = | $571,050 | |
| (–) Senior Exemption Loss: | – | $0 | |
| (–) Exemption Loss: | – | $0 | |
| | | -------------------------- | |
| (=) Taxable Value: | = | $571,050 | |
Taxing Jurisdiction
| Owner: | OHNSTAD PHILLLIP & GINA | | |
| % Ownership: | 100.0000000000% | | |
| Total Value: | $571,050 | | |
| Tax Area: | 1 - OL-140-F |
| CERFD | CURRENT EXPENSE REFUND 010 | 0.0000000000 | $571,050 | $571,050 | $0.00 | | |
| CURREXP | CURRENT EXPENSE 010 | 1.0175366760 | $571,050 | $571,050 | $581.06 | | |
| HUMNSERV | HUMAN SERVICES 119 | 0.0250000000 | $571,050 | $571,050 | $14.28 | | |
| SLDREL | SOLDIERS RELIEF 121 | 0.0155990005 | $571,050 | $571,050 | $8.91 | | |
| EMERGSER | EMS 147 | 0.3792580840 | $571,050 | $571,050 | $216.58 | | |
| EMSRFD | EMS REFUND 147 | 0.0000000000 | $571,050 | $571,050 | $0.00 | | |
| PORTRFD | PORT REFUND 640 | 0.0000000000 | $571,050 | $571,050 | $0.00 | | |
| PORTWWGEN | PORT OF WW 640 | 0.2460186015 | $571,050 | $571,050 | $140.49 | | |
| SD140BOND | SD #140 BOND 764 | 0.8342371393 | $571,050 | $571,050 | $476.39 | | |
| SD140GEN | SD #140 GENERAL 760 | 2.0646500647 | $571,050 | $571,050 | $1,179.02 | | |
| ST2 | STATE SCHOOL PART 2 600 | 0.8131451643 | $571,050 | $571,050 | $464.35 | | |
| STATESCHL | STATE SCHOOL 600 | 1.5158548041 | $571,050 | $571,050 | $865.63 | | |
| STREFUND | STATE REFUND LEVY 603 | 0.0000000000 | $571,050 | $571,050 | $0.00 | | |
| CWWBOND | C OF WW BOND 643 | 0.2760494372 | $571,050 | $571,050 | $157.64 | | |
| CWWGEN | CITY OF WW 631 | 1.6100204973 | $571,050 | $571,050 | $919.40 | | |
| CWWRFD | CITY OF WALLA WALLA REFUND 631 | 0.0000000000 | $571,050 | $571,050 | $0.00 | | |
| | Total Tax Rate: | 8.7973694689 | | | | | |
| | | | | Taxes w/Current Exemptions: | $5,023.75 | | |
| | | | | Taxes w/o Exemptions: | $5,023.75 | | |
Improvement / Building
| Improvement #1: | RESIDENTIAL | State Code: | 11 | 2161.0 sqft | Value: | $527,550 |
| Exterior Wall: | SIDING | Heating/Cooling: | WARM & COOLED AIR | | Number of Bathrooms: | 2 | Number of Bedrooms: | 3 | | Plumbing: | 10 | Roof Covering: | COMP SHINGLE |
|
| | Type | Description | Class CD | Sub Class CD | Year Built | Area |
| | MA | Main Area | 4 | 50 | 1910 | 2161.0 |
| | UPFL | Upper Floor (included in main area) | 4 | 50 | 1910 | 940.0 |
| | SI1 | SITE IMPROVEMENT | 4 | 50 | 1910 | 4.0 |
| | BASE | BASEMENT | 4 | 50 | 1910 | 1161.0 |
| | BPF | BASEMENT -PARTITIONED FINISH | 4 | 50 | 1910 | 870.0 |
| | D2F | Double 2 Story Fireplace | 4 | 50 | 1910 | 1.0 |
| | RCD | WOOD DECK W/ROOF, CEILED | 4 | 50 | 1910 | 60.0 |
| | DTG | Detached Garage | 4 | 50 | 2020 | 297.0 |
| | WOD | Wood Deck | 4 | 50 | 1910 | 384.0 |
Sketch
Property Image
Land
| 1 | RES 1 | Converted: Residential | 0.1377 | 6000.00 | 0.00 | 0.00 | 1.00 | $43,500 | $0 |
Roll Value History
| 2026 | N/A | N/A | N/A | N/A | N/A |
| 2025 | $509,240 | $66,000 | $0 | $575,240 | $575,240 |
| 2024 | $509,240 | $66,000 | $0 | $575,240 | $575,240 |
| 2023 | $527,550 | $43,500 | $0 | $571,050 | $571,050 |
| 2022 | $527,550 | $43,500 | $0 | $571,050 | $571,050 |
| 2021 | $439,630 | $43,500 | $0 | $483,130 | $483,130 |
| 2020 | $351,700 | $43,500 | $0 | $395,200 | $395,200 |
| 2019 | $351,700 | $43,500 | $0 | $395,200 | $395,200 |
| 2018 | $351,700 | $43,500 | $0 | $395,200 | $395,200 |
| 2017 | $316,850 | $27,000 | $0 | $343,850 | $343,850 |
| 2016 | $316,850 | $27,000 | $0 | $343,850 | $343,850 |
| 2015 | $316,850 | $27,000 | $0 | $343,850 | $343,850 |
| 2014 | $280,400 | $27,000 | $0 | $307,400 | $307,400 |
| 2013 | $280,400 | $27,000 | $0 | $307,400 | $307,400 |
| 2012 | $283,500 | $27,000 | $0 | $0 | $0 |
| 2011 | $283,500 | $27,000 | $0 | $0 | $0 |
| 2010 | $268,700 | $27,000 | $0 | $0 | $0 |
| 2009 | $301,600 | $27,000 | $0 | $0 | $0 |
| 2008 | $258,700 | $27,000 | $0 | $0 | $0 |
| 2007 | $258,700 | $27,000 | $0 | $0 | $0 |
Deed and Sales History
| 1 | 11/24/2014 | SWD | STATUTORY WARRANTY DEED | DEAL JUDITH A | OHNSTAD PHILLLIP & GINA | | | $357,377.00 | 127003 | 2014-08532 |
| 2 | 07/15/2003 | WARRANTY D | WARRANTY DEED | DEAL, DAVID M EST | DEAL, JUDITH A | | | | 0 | 01-4--00197-1 |
| 3 | 08/02/1971 | WARRANTY D | WARRANTY DEED | | | | | $25,900.00 | 0 | 3410-515858 |
Payout Agreement
| No payout information available.. |